






















MIDTBYEN
Ørjaveita 2
41 m2
|
2 990 000 kr
|
1 soverom
|
Andelsleilighet
|
Attraktiv 2-roms leilighet i 4. etasje med vestvendt balkong midt i sentrum | "Alt" inkludert i felleskost. | Heis
Pris og areal
Prisantydning
2 990 000 ,-
Omkostninger
1 350 ,-
totalpris
2 991 350 ,-
felleskostnader
4 817 ,- per mnd
fellesformue
71 204 ,-
bruksareal
44 m2
internt bruksareal
41 m2
eksternt bruksareal
3 m2
Kort fortalt
Emera Eiendomsmegling ved Adrian Dyrstad presenterer Ørjaveita 2. En lys og tiltalende 2-roms andelsleilighet med svært sentral beliggenhet i Trondheim. Boligen ligger i 4. etasje med heis, og byr på en vestvendt balkong med gode solforhold og flott utsyn over byen og fjorden. Store vindusflater gir rikelig med naturlig lys. En vesentlig fordel med denne boligen er at både strøm, fjernvarme, TV og internett er inkludert i felleskostnadene, noe som gir en forutsigbar og trygg boøkonomi. Et utmerket valg for førstegangskjøpere, par, pendlere eller studenter. Kort oppsummert: - Strøm, fjernvarme, TV og internett er inkludert i felleskostnader - Vestvendt balkong med sjøutsikt - 4. etasje med heis i bygget - Tilhørende bod i 1. etasje - Svært sentralt med gangavstand til alt
Nøkkelinfo
Boligtype
Andelsleilighet
Eierform
Andel
Antall soverom
1
antall bad
1
etasje
4
byggeår
2005
energimerking
B - Lysegrønn
heis
Ja
Objektbeskrivelse
Tomten
Det er eiet tomt, eid av borettslaget.
Byggeår
2005
Etasje
4
Arealer
BRA-i: 41m2
BRA-e: 3m2
Totalt BRA: 44m2
TBA: 5m2
Arealbeskrivelse
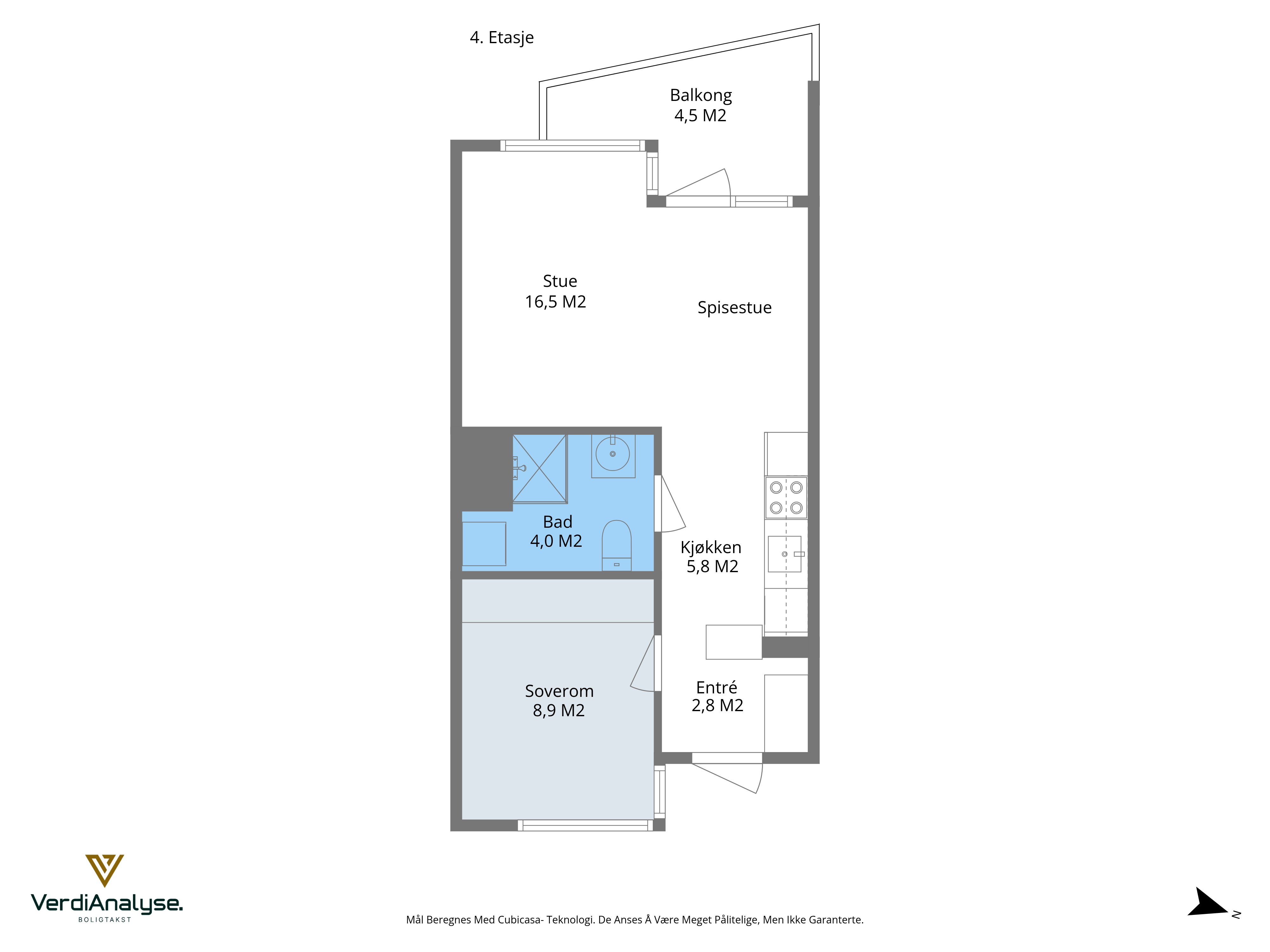
Leilighet i 4. etasje
1. etasje
BRA-E: 3 m² Bod
4. etasje
BRA-I: 41 m² Entré, bad, kjøkken, stue, soverom
4. etasje
5 m² Balkong
Fellesarealer og rettigheter til bruk
Det gjøres særskilt oppmerksom på at boden som er medtatt i BRA-e og totalt BRA, ligger på borettslagets fellesareal, men disponeres av denne andelen. Borettslaget kan på et senere tidspunkt omdisponere bruken av dette arealet.
Antall soverom
1
Antall rom
2
Innhold
Leiligheten ligger i 4. etasje og består av følgende rom: Entré, bad, kjøkken, stue og ett soverom. Balkong på ca. 5 m². Leiligheten disponerer bod i 1. etasje på ca. 3 m².
Standard
Velkommen hjem! Denne lyse og romslige 2-roms andelsleiligheten ligger i byggets 4. etasje midt i hjertet av Trondheim sentrum. Leiligheten har en attraktiv og skjermet beliggenhet til tross for sentral plassering. Herfra er det kort vei til alt byen har å tilby, inkludert studiesteder som NTNU Kalvskinnet og Handelshøyskolen BI. Det er også svært gode kollektivforbindelser til øvrige deler av Trondheim. Stuen er på 16,5 m² og oppleves som lys og innbydende med store vindusflater som slipper inn rikelig med naturlig dagslys. Rommet har god plass til ønsket møblement og åpner naturlig opp for et spisebord i praktisk sone mellom stue og kjøkken. Fra stuen er det direkte adkomst til en romslig vestvendt balkong på 4,5 m², hvor man kan nyte solrike dager og utsikt mot Trondheimsfjorden med Fosenalpene som bakteppe. Kjøkkenet har glatte fronter og benkeplate av laminat. Kjøkkenet har frittstående komfyr, oppvaskmaskin og kjøle-/fryseskap, samt skapmontert ventilator over stekesonen. Planløsningen gjør det enkelt å lage mat samtidig som man har kontakt med stue og spiseplass. Soverommet måler rundt 9 m² og har god plass til dobbeltseng og tilhørende møblement. Soverommet har også en stor skyvedørsgarderobe som gir rikelig med lagringsplass. Her kan man enkelt innrede etter ønske og behov. Badet er flislagt med gulvvarme og har en tidløs innredning med glatte fronter, helstøpt servantskål og speil med overlys. Badet har dusjhjørne med innfellbare glassdører, som gir god plass, samt opplegg for vaskemaskin. Entréen ønsker velkommen med god plass til garderobeløsning og tilhørende møblement for oppbevaring, slik at man enkelt kan holde orden fra første steg inn i leiligheten. Leiligheten har lave, forutsigbare felleskostnader hvor strøm, fjernvarme, internett og kabel-TV er inkludert. I tillegg disponerer man en bod på ca. 3 m² i 1. etasje. Med heis i bygget, romslig balkong og attraktiv beliggenhet midt i Trondheim sentrum, er dette et perfekt valg for førstegangskjøpere, studenter, par eller pendlere.
Innbo og løsøre
Salgsoppgaven inkluderer NEFs standardliste "Oversikt over løsøre og tilbehør", som legges til grunn med mindre annet er spesifisert i salgsoppgaven. Gjenstander som er nevnt i standardlisten, men som ikke finnes på eiendommen, vil heller ikke følge med i salget. Alt utstyr og installasjoner som medfølger overtas slik de er, uten garanti, med mindre det foreligger en gjeldende garanti fra produsent eller leverandør. Kjøper aksepterer at det kan forekomme hull og merker etter montering av inventar og utstyr som ikke er en del av overdragelsen.
Parkering
Det medfølger ingen parkeringsplass med leiligheten. Gateparkering etter gjeldende bestemmelser.
Sammendrag av selgers egenerklæring
Selger har i forbindelse med salget fylt ut egenerklæringsskjema som vedlagt salgsoppgaven. I skjemaet fremkommer følgende informasjon: Følgende informasjon fremkommer: Ved kjøring av oppvaskmaskin kan strømmen gå av og til. Dette skjer ekstremt sjeldent, og har ikke klart å identifisere spesifikt hvorfor. Lysbryter på badet kan være uresponsiv på tilfeldige tidspunkt. Vet ikke grunn, og funker stort sett alltid. Vaskemaskin på badet fylles tidvis med vann. Vet ikke grunn og har ikke klart å identifisere et mønster på når. Vaskemaskinen var med når jeg kjøpte leiligheten og begynner å bli noen år. Kjenner du til om det er/har vært sopp/råteskader/insekter/skadedyr på eiendommen som rotter, mus, maur eller lignende? Ja. Ble observert mus i borettslaget 2024, og ble satt ut feller. Ikke fått noe oppdatering om at man har sett noe mer. Kjenner du til om det er/har vært skjeggkre i boligen? Ja. Det ble oppgitt ved kjøp i 2020 at det hadde blitt observert skjeggkre i boden i borettslaget. Men at det har blitt gjort tiltak. Etter dette har det ikke vært observert noe mer skjeggkre som jeg er bevisst. Jeg har ikke sett noe tegn til noe slikt i egen bolig. Kjenner du til om det er/har vært sopp/råteskader/insekter/skadedyr i sameiet/laget/selskapet (fellesareal eller i andre boliger) som rotter, mus, maur eller lignende? Ja. Som tidligere nevnt, mus i 2024 i svalgang. Kjenner du til om det er/har vært skjeggkre i sameiet/laget/selskapet (fellesareal eller i andre boliger)? Ja. Som nevnt tidligere: sett i boden før kjøp i 2020. Usikker på tidshorisont, men ikke sett/hørt om noe siden. Samsvarserklæring: Det fremgår av tilstandsrapporten at det mangler/ikke er fremlagt samsvarserklæring for det elektriske anlegget.
Bygningssakkyndig
Ole-Einar Fjeldheim
Byggemåte
I forbindelse med salget er det blitt utført en tilstandsrapport av en bygningssakkyndig, som gir en teknisk gjennomgang av boligen og påpeker eventuelle avvik. Rapporten, sammen med selgers egenerklæring, er vedlagt salgsoppgaven. Det er viktig at interessenter grundig gjennomgår disse dokumentene før bud legges inn. All informasjon i tilstandsrapporten anses som kjent for kjøper, og det vil ikke være mulig å reklamere på forhold som er nevnt i rapporten. Spesielt forhold som er vurdert med TG2 og TG3 bør vurderes nøye, da de indikerer avvik fra normal slitasje og/eller høy alder, noe som kan innebære behov for utbedringer. Bygningsdeler som er merket med TGIU er ikke blitt vurdert av takstmannen. Beskrivelsen av boligen nedenfor er hentet direkte fra tilstandsrapporten: Bygningen, som er en boligblokk, ble oppført i 2005 og er på 6 etasjer. Grunnmur, hovedkonstruksjon og etasjeskillere består av betong. Utvendige fasader er kledd med fasadeplater. Flat og skrå takkonstruksjon som er tekket med takmembran. Vinduer med 2-lags glass. Det er heis i bygget. Byggemåte iht. takstmann. Bygningsdeler med TG2: - Bad - Sluk, membran og tettesjikt | Mer enn halvparten av forventet brukstid er passert på membranløsningen. Mer enn halvparten av forventet brukstid er passert for membranløsningen på våtrommet. Membraner har en begrenset teknisk levetid, og funksjonen svekkes gradvis som følge av aldring, slitasje og belastning fra normal bruk. Siden membranen ligger skjult under fliser og øvrige overflater, lar tilstanden seg ikke visuelt kontrollere, og vurderingen baseres derfor primært på alder og opplysninger om utførelse. - Bad - Veggmontert toalett | Det er ikke påvist tilfredsstillende løsning for å synliggjøre lekkasje fra innebygget sisterne. Det er ikke påvist noen tilfredsstillende løsning for å synliggjøre eventuell lekkasje fra den innebygde sisternen. Manglende lekkasjesikring utgjør et avvik fra dagens krav, men løsningen var i samsvar med gjeldende regler på installasjonstidspunktet. Helse, miljø og sikkerhet: - Rekkverk - Deler av rekkverket er like under dagens krav, som er 100 cm. Dette skyldes at gulvet er belagt med tremmer, som fører til at den effektive rekkverkshøyden fra ferdig gulv til topp rekkverk havner like under kravet. Det er ikke krav om utbedring av rekkverkshøyde opp til dagens forskriftskrav. Ingen strakstiltak er nødvendig og avviket utgjør svært liten sikkerhetsrisiko. For å gjenopprette rekkverkshøyde som tilfredsstiller kravet, anbefales det å fjerne tremmer på gulvet. - Balkong - Det opplyses at det kan plutselig oppstå en lyd fra balkongen, særlig på sommerstid. Lyden oppleves til å stamme fra rekkverk og/eller konstruksjon av metall. Årsaken er ukjent, men basert på opplysninger kan dette stamme fra utvidelser i metallkonstruksjoner som følge av klimatiske forhold, og en plutselig friksjonslyd mellom deler av betong og metall oppstår. Det anbefales å orientere styret i borettslaget om forholdet tilknyttet lyder fra balkongen, slik at de kan stå i regi for videre kartlegging og eventuelle utbedringer. - Det opplyses at det er observert noen få tilfeller med skjeggkre i bygget, men aldri i den aktuelle boenheten. Videre bemerkes musefeller plassert stedvis på utvendig side. Omfanget av skadedyr i bygget er ukjent, men forholdet er under oppsyn/behandling av styret. Opplistingen over er ikke uttømmende. Interessenter oppfordres til å sette seg inn i tilstandsrapporten som ligger vedlagt salgsoppgaven..
Omkostninger
Kr 2 990 000 Prisantydning Kr 0 Andel av fellesgjeld Kr 2 990 000 Pris inkl. fellesgjeld Omkostninger Kr 260 Panteattest kjøper Kr 545 Tinglysingsgebyr BRL - pantedokument Kr 545 Tinglysingsgebyr BRL - skjøte Kr 8 900 Boligkjøperforsikring (valgfritt) Kr 1 350 Omkostninger eksl. boligkjøperforsikring Kr 10 250 Omkostninger inkl. boligkjøperforsikring
Felleskostnader
4 817,- per mnd
Totale felleskostnader per måned: kr 4 817,- Felleskostnadene er fordelt slik: - Felleskostnader: kr 3 280,- - A konto strøm: kr 450,- - Fjernvarme: kr 433,- - Internett: kr 262,- - Kabel-tv: kr 392,- Kostnadene for strøm og fjernvarme er et a konto-beløp som avregnes mot faktisk forbruk én gang i året. Styret har som mål å holde en rimelig og forutsigbar husleie. Justeringer av felleskostnadene skjer i hovedsak som følge av prisvekst og nødvendig vedlikehold.
Kommunale avgifter
Kommunale avgifter faktureres borettslaget og er dekket gjennom de månedlige felleskostnadene.
Fellesformue
71 204,-
Fellesgjeld
Det er ingen lån registrert for borettslaget.
Formuesverdi
Formuesverdi primær: 746 323 pr. 2025
Formuesverdi sekundær: 2 985 290 pr. 2025
Skatteetaten beregner en boligverdi (beregnet markedsverdi for bolig) basert på SSBs statistiske opplysninger om omsatte boliger. I beregningen tas det hensyn til din boligs beliggenhet, areal, byggeår og type bolig. Formuesverdien er en prosentandel av denne boligverdien.For mer informasjon om formuesverdi, se Skatteetatens nettsider.
Beliggenhet
Med adresse i Ørjaveita 2 bor du midt i hjertet av Trondheim, med umiddelbar tilgang til alt Midtbyen har å by på. Leiligheten ligger tilbaketrukket og rolig til tross for sin meget sentrale beliggenhet. Her leves livet til fots, enten du skal gjøre unna de daglige innkjøpene på Kiwi Munkegata eller den søndagsåpne Joker Fjordgata. Kjøpesenteret Byhaven ligger også bare et par minutter unna for et bredere utvalg av butikker og tjenester. Dette er en beliggenhet for deg som verdsetter en urban og effektiv hverdag. Området er et sentrum for mat- og kulturopplevelser. Byen byr på alt fra uformelle lunsjsteder som Sellanraa Bok & Bar til Michelin-restauranter som Speilsalen for de spesielle anledningene. Kulturelt er det kort vei til alt fra pop- og rockhistorie på Rockheim til teater på Nye Hjorten teater. Her har du byens rike tilbud rett utenfor inngangsdøren. Trondheim Torg ligger kun en kort spasertur unna. I tillegg finner du Nordre gate, byens hovedhandlegate, i umiddelbar nærhet til leiligheten. Her tilbys et bredt utvalg av butikker, restauranter og hyggelige kafeer. Selv med en så sentral plassering er det enkelt å komme seg rundt, enten det er i byen eller ut av den. Fra knutepunkt som Trondheim Torg og Trondheim S, begge innen 5-7 minutters gange, har du et omfattende nettverk av buss- og togforbindelser. Dette gir også enkel tilgang til byens grønne omgivelser. En kort tur tar deg til Ladestien for en sykkeltur langs fjorden eller til Bymarka for løpe- og skiturer i et stort nettverk av stier. Fra leiligheten er det gangavstand til Nidelva med sine flotte turstier. Langs elva finner du attraktive rekreasjonsområder som Bakklandet, perfekt for rolige spaserturer, joggeturer eller sykkelturer langs elvebredden. Trening i hverdagen er også lett tilgjengelig med treningssentre som 3T-Midtbyen, TrenHer Fjordgata og Fresh Fitness, kun et par minutter unna. For studenter ligger leiligheten svært sentralt til, med kort avstand til studiesteder som Handelshøyskolen BI og NTNU Kalvskinnet. Det er også gode bussforbindelser til øvrige studiesteder, inkludert NTNU Gløshaugen, NTNU Handelshøyskolen og NTNU Dragvoll.
Adkomst
På høyre side i annonsen finner du et kartutsnitt. Ved å klikke på kartet kan du enkelt planlegge din rute fra valgt startpunkt og helt frem til boligen. Det vil være skiltet ved fellesvisninger for enkel orientering.
Energiklasse
B - Lysegrønn
Info energiklasse
Se fullstendig energiattest som ligger vedlagt salgsoppgave.
Oppvarming
Boligen har følgende oppvarmingskilder: - Fjernvarme. Hvis et rom på visningen mangler fast installert oppvarmingskilde, vil ikke dette bli inkludert i handelen.
Om borettslaget
NERBYEN BORETTSLAG Org.nr: 987162880
Nerbyen Borettslag er et samvirkeforetak som har til formål å gi andelseierne bruksrett til egen bolig i lagets eiendom (borett). Borettslaget består av 43 andelsleiligheter. Kun fysiske personer kan eie andeler, og ingen kan eie mer enn én andel. Eiendommen er seksjonert. Borettslagets tomt er seksjon 1 i Eiersekjonssameiet Nerbyen. Sameiet omfatter samtlige eierseksjoner (snr. 1 til og med 5) beliggende på gnr. 401. bnr. 20. i Trondheim kommune. Sameiet består av både bolig- og næringsseksjoner. Vi gjør oppmerksom på følgende saker i borettslaget: Styret har gjennomført en større renovering av tre vaskerom i Tempogården (fullført 2024). Det følger av årsrapport for 2024 at det var planlagt oppstart for planlegging av utvendig vedlikehold på nybygget, potensielt malerarbeid, samt ytterligere utskifting av lysarmaturer i fellesområdene.
Regnskap / Budsjett / Kostnadsøkninger
Borettslaget hadde i 2024 samlede driftsinntekter på kr 2 345 495 og samlede driftskostnader på kr 2 026 246. Dette ga et positivt årsresultat på kr 387 294.
Forretningsfører
Obos Eiendomsforvaltning AS
Styregodkjennelse
Kjøper må godkjennes av borettslagets styre. Styret kan kun nekte godkjenning dersom det foreligger saklig grunnlag, jf. borettslagsloven § 4-4.
Forkjøpsrett
Det praktiseres ikke forkjøpsrett i borettslaget.
Forsikringsselskap og polisenummer felles forsikring
Fremtind Forsikring AS
4406566/60
Vedtekter / husordensregler
Det er tillatt med elektrisk grill og gassgrill på balkonger, men kullgrill er forbudt. Det er begrenset antall parkeringsplasser for sykler. De som bruker sykler daglig og hyppig har fortrinnsrett til sykkelparkeringen (portrom og bodområde). Alle andre anvises til private boder for oppbevaring av sykler. Vedtekter for Nerbyen borettslag og Eierseksjonssameiet Nerbyen, samt husordensregler for Nerbyen borettslag, er vedlagt salgsoppgaven.
Husdyrhold
Husdyrhold er tillatt med mindre det er til sjenanse eller ulempe for de andre beboerne. Beboere som har husdyr, må sørge for å ha full kontroll over dyret til enhver tid, og påse at dyret ikke sjenerer noen eller etterlater ekskrementer på borettslagets område.
Adgang til utleie
Det er begrenset adgang til å leie ut bolig i borettslag. Med styrets godkjenning og under visse vilkår kan boligen leies ut i inntil 3 år, jf. borettslagsloven § 5-3 til § 5-10. Andelseier som selv bor i boligen, har imidlertid rett til å leie ut deler av boligen til andre uten styregodkjenning, jf. borettslagsloven § 5-4. Korttidsutleie er tillatt i opptil 30 døgn per år uten samtykke fra styret. Dette følger av borettslagets vedtekter: Utleie av boligen i Borettslaget Nerbyen er i utgangspunktet tillatt, men krever styrets forutgående samtykke. Andelseier plikter å sende skriftlig søknad til styret ved fremleie/utleie av boligen. Med styrets godkjenning kan andelseiere overlate bruken av hele boligen dersom andelseieren selv eller nær familie har bebodd boligen i minst 1 av de siste 2 årene. I slike tilfeller kan bruken overlates for opptil 3 år. Utleie er også tillatt dersom andelseieren skal være midlertidig borte som følge av arbeid, utdanning, militærtjeneste, sykdom eller andre tungtveiende grunner. Styret kan kun nekte godkjenning dersom brukerens forhold gir saklig grunn til det, eller dersom brukeren ikke kunne blitt andelseier i borettslaget (f.eks. hvis vedkommende ikke er en fysisk person). Dersom styret ikke har sendt svar på skriftlig søknad om godkjenning innen 1 måned etter at søknaden er mottatt, skal brukeren regnes som godkjent.
Ferdigattest / brukstillatelse
Det er utstedt ferdigattest for riving deler av bygg, påbygg, nybygg og ombygging datert 04.11.2005. I tillegg til hovedattesten foreligger det flere byggesaker for eiendommen: - Ferdigattest for utbedringer av brannsikkerheten for borettslaget Nerbyn, datert 29.06.2011. Det foreligger godkjente byggetegninger i kommunens arkiv fra prosjektet, datert 2003. Tegningene samsvarer med dagens bruk av boligen. Dokumenter kan fås ved henvendelse til megler.
Vei, vann og avløp
Eiendommen er tilknyttet offentlig vann- og avløpssystem. Stikkledningene fra eiendommen og ut til det kommunale nettet er private, og vedlikeholdsansvaret for disse påhviler borettslaget. Adkomst til eiendommen skjer via offentlig vei.
Regulerings- og arealplaner
Eiendommen er regulert til bevaring av bygninger og område for boliger/forretning/kontor etter reguleringsplan r0118ag. Eiendommen er i kommuneplanens arealdel avsatt til byggesone 1 og sentrumsformål - framtidig. Området er videre omfattet av hensynssoner for bevaring av kulturmiljø og naturmiljø, samt båndlegging etter lov om kulturminner knyttet til Trondheim middelalderby (arkeologi) i kommuneplanens arealdel. Eiendommen ligger innenfor virkeområdet for kommunens hyblifiseringsbestemmelse. Dette innebærer at det kreves særskilt tillatelse fra kommunen for å dele opp eller bruksendre en boenhet til hybler. Det pågår planarbeid i nærområdet som kan få betydning for eiendommen: - r20180048: Detaljregulering for Olav Tryggvasons gate Hovedformålet med prosjektet er å legge til rette for at oppnå målet om at veksten i persontransporten skal tas med gåing, sykling og kollektivtransport. Fornying av fire sentrale gater i kollektivbuen er et tverretatlig samarbeidsprosjekt som ble startet opp i april 2018. Gateprosjektene består av de fire gatene Olav Tryggvasons gate, Kongens gate, Innherredsveien og Elgeseter gate. Det er lagt opp til nær samordning mellom gateprosjektene og tilgrensende prosjekter. - r20180001: Områderegulering for Nordøstre kvadrant i Midtbyen (status: planforslag). Hensikten med områdereguleringsplanen er å styrke Midtbyen som byens historiske og kulturelle sentrum gjennom bevaring og videreutvikling av det unike kulturmiljøet, særlig trehusbebyggelsen. Planen skal samtidig legge til rette for handel, service og kultur, sikre en hensiktsmessig arealutnyttelse og gi et tydelig vern av kulturhistorisk verdifulle bygg, strukturer og byrom. - r20210037: Detaljregulering for Olav Trygvasons gate 30 (status: planforslag). Ta kontakt med megler for mer informasjon. Kopi av situasjonskart, målebrev, reguleringsplaner m/bestemmelser etc. ligger vedlagt i salgsoppgaven eller kan fås ved henvendelse til megler. Vi oppfordrer interessenter til å gjøre seg kjent med disse.
Tinglyste heftelser og rettigheter
På eiendommen er det tinglyst følgende heftelser og rettigheter som følger eiendommens matrikkel ved overskjøting til ny hjemmelshaver: 5001/401/20/1: Dokumentnr: 910014 - Opprettelse av matrikkelenheten OPPRETTELSE - BESTÅENDE EIENDOM EIENDOMMEN ER OPRETTET FØR 1930 26.08.2004 - Dokumentnr: 17640 - Sammenslåing Sammenslått med denne matrikkelenhet: Knr:1601 Gnr:401 Bnr:21 19.04.2005 - Dokumentnr: 7535 - Seksjonering Opprettet seksjoner: Snr: 1 Formål: Samleseksjon bolig Sameiebrøk: 1762/4099 Snr: 2 Formål: Næring Sameiebrøk: 1334/4099 Snr: 3 Formål: Næring Sameiebrøk: 638/4099 Snr: 4 Formål: Næring Sameiebrøk: 365/4099 Bestemmelser om tilleggsdel, se under servitutter. Gjelder seksjon nr.1,2 og 4 Gjelder denne registerenheten med flere 01.01.2018 - Dokumentnr: 116579 - Omnummerering ved kommuneendring Tidligere: Knr:1601 Gnr:401 Bnr:20 Gjelder denne registerenheten med flere Dokumenter kan fås ved henvendelse til megler.
Boligselgerforsikring
Selger har tegnet boligselgerforsikring som dekker selgers ansvar etter avhendingsloven begrenset oppad kr. 20 000 000,-. Egenerklæringsskjema er vedlagt salgsoppgaven og interessenter oppfordres til å gjennomgå denne før bud inngis.
Boligkjøperforsikring
Kjøper har anledning til å tegne boligkjøperforsikring. Vedlagt i salgsoppgaven følger informasjon om Boligkjøperforsikring fra Söderberg & Partners. Boligkjøperforsikring er en rettshjelpsforsikring som gir trygghet og profesjonell juridisk hjelp dersom det oppdages uventede feil eller mangler ved boligen de neste fem årene. Les mer om Boligkjøperforsikring i vedlagte materiell eller på https://www.soderbergpartners.no/eiendom/boligkjoper/
Diverse
Borettslagsmodellen innebærer at borettslaget eier eiendommen, mens andelseierne eier andeler i borettslaget, som gir borett til en bestemt bolig. Andelseierne har ikke personlig ansvar for borettslagets fellesgjeld, men de må dekke borettslagets løpende utgifter. Manglende innbetaling av fellesutgiftene som følge av andre andelshaveres mislighold, eller dersom borettslaget sitter på fraflyttede og/eller usolgte andeler, må dekkes av de øvrige andelseierne. Borettslaget har legalpanterett i andelen for krav på dekning av felleskostnader og andre krav fra borettslaget, på inntil 2 ganger folketrygdens grunnbeløp. Kjøper og selger er forpliktet til å undertegne standard kjøpekontrakt utarbeidet av Emera i forbindelse med eiendomstransaksjonen. Kjøpekontrakten kan besiktiges hos eiendomsmegler før bud inngis. Kontakt eiendomsmegler for spørsmål. Selger leverer eiendommen i ryddig og rengjort stand.
Sentrale lover
Regelverk og generelle opplysninger Boligen selges med det inventar og utstyr som i henhold til gjeldende lover, forskrifter eller offentlige pålegg skal følge med eiendommen, jf. avhendingsloven § 3-4. Fastmonterte eller spesialtilpassede installasjoner og innredning som anses som varig tilknyttet boligen, følger normalt med i handelen, med mindre det foreligger en særskilt avtale mellom partene om noe annet, jf. avhendingsloven § 3-5. En standard tilbehørsliste utarbeidet av Norges Eiendomsmeglerforbund (NEF) følger salgsoppgaven, og gjelder som utgangspunkt for hva som inkluderes i salget – med mindre avvik er tydelig avtalt mellom kjøper og selger. Om informasjonsgrunnlaget Opplysninger om boligens størrelse og utforming, både innvendig og utvendig, bygger på informasjon hentet fra vedlagte tilstands- og boligsalgsrapport. Innholdet i salgsoppgaven er basert på selgers informasjon, fagkyndig vurdering, samt opplysninger fra offentlige registre som kommunen og Kartverket. Det er viktig at kjøper setter seg grundig inn i alle salgsdokumentene, herunder salgsoppgave, tilstandsrapport og selgers egenerklæring. Kjøper anses for å være kjent med forhold som er tydelig beskrevet i salgsdokumentene, slike forhold kan ikke senere gjøres gjeldende som en mangel ved boligen. Dette gjelder uavhengig av om dokumentene er lest. Det kan være forskjell mellom boligens faktiske bruk av rom og det som er godkjent av myndighetene. Alle interessenter anbefales derfor å undersøke eiendommen nøye, gjerne sammen med fagperson, før bud gis. Dersom kjøper velger å kjøpe uten å ha sett eiendommen, kan det ikke etter overtakelse reklameres på forhold som burde ha vært oppdaget ved en ordinær gjennomgang. Dersom det oppstår behov for ytterligere avklaringer, oppfordres interessenter til å kontakte eiendomsmegler eller egne rådgivere før de gir bud. Slitasje og bruk Det må også forventes at eiendommer som har vært i bruk, vil kunne ha tegn til slitasje og eventuelle skader. Slik normal bruksslitasje og behov for vedlikehold må kjøper påregne, og dette vil normalt ikke gi grunnlag for reklamasjon eller prisavslag. Avtalerettslig Partenes rettigheter og plikter reguleres av avtalen mellom partene, og all tilgjengelig dokumentasjon som forelå for kjøper før handelen ble inngått. I tillegg gjelder avhendingsloven. Det gjelder ulike avtalevilkår avhengig av om kjøper er forbrukerkjøper eller ikke, og dette er nærmere forklart nedenfor. Budgivning og selgers vurdering På grunn av ulike ansvarsforhold kan selger velge å prioritere bud fra ikke-forbrukere, selv om budet er lavere enn et forbrukerbud. Når kjøper ikke er forbruker, kan selges ansvar begrenses ettersom boligen selges «som den er», noe som kan være av verdi for selger. Det understrekes at selger står fritt til å velge hvilket bud som aksepteres, og er ikke forpliktet til å velge det høyeste. Alle budgivere må ved inngivelse av bud opplyse om de opptrer som forbruker eller som næringsdrivende/person som handler hovedsakelig som ledd i næringsvirksomhet. Det vil opplyses hvis konkurrerende bud kommer fra en ikke-forbruker. Forbrukerkjøp – definisjon og vilkår: Et forbrukerkjøp foreligger når en fysisk person kjøper eiendom uten at formålet hovedsakelig er knyttet til næringsvirksomhet. En eiendom anses å ha en mangel dersom den ikke oppfyller kravene som følger av avtalen, eller ved brudd på bestemmelser i avhendingsloven §§ 3-2 til 3-8. Det samme gjelder hvis eiendommen ikke samsvarer med det som med rimelighet kunne forventes ut fra blant annet alder, type og synlig tilstand – eller hvis det er tilbakeholdt, eller gitt feilaktige opplysninger, og dette har påvirket avtalen. Dersom det er avvik mellom oppgitt og faktisk innvendig areal på minst 2 % og samtidig minst 1 kvadratmeter, kan dette utløse rett til kompensasjon etter § 3-3 i avhendingsloven. Ved beregning av krav om prisavslag eller erstatning må kjøper selv dekke kostnader med inntil kr 10 000 (som en egenandel). Ikke-forbruker – definisjon og vilkår: Dersom kjøper er en juridisk enhet, eller en fysisk person som handler i næringssammenheng, regnes kjøpet ikke som et forbrukerkjøp. Ved slike kjøp selges eiendommen «som den er», og selgers ansvar er begrenset til det som følger direkte av avtalen, jf. avhendingsloven § 3-9. I disse tilfellene fravikes § 3-3 andre ledd, og eventuelle arealavvik vurderes etter § 3-8. Kjøperens plikt til å foreta grundige undersøkelser gjelder også fullt ut for kjøpere som ikke omfattes av forbrukerdefinisjonen.
Betalingsbetingelser
Hele oppgjøret må betales samlet fra en norsk bankkonto. Overføringer fra utlandet aksepteres kun unntaksvis, og kun dersom dette er forhåndsavtalt med megler i forbindelse med aksept av budet.
Viktig informasjon om budgivning
Bud kan legges inn på nettannonsen på "gi bud" knappen eller via hjemmesiden. Ved elektronisk budgivning kan bud legges inn trygt og enkelt med bank-ID. Eiendomsmegler kan også kontaktes for tilsendelse av budkjema, og budskjema finnes også i salgsoppgaven. Alle bud skal inngi skriftlig til eiendomsmegler. Kravet til skriftlighet gjelder også ved forhøyelse av bud, motbud og selgers aksept eller avslag. Før et bud kan formidles til selger må megler innhente gyldig legitimasjon og signatur fra budgiver. Kravet til legitimasjon og signatur er oppfylt dersom budgiver bruker e-signatur som f eks. bankID. Etter det første budet er inngitt, kan budgiver inngi bud pr e-post eller pr SMS til megler. Hvis budgiver skal by på eiendommen i henhold til en kjøpsfullmakt må megler kontaktes og fullmakten oversendes før budgivning. Et bud bør inneholde eiendommens adresse (eventuelt gnr/bnr), kjøpesum, budgivers kontaktinformasjon, finansieringsplan, akseptfrist, overtakelsesdato og eventuelle forbehold som for eksempel usikker finansiering, salg av nåværende bolig ol. Normalt vil ikke et bud med forbehold bli akseptert før forbeholdet er avklart. Konferer gjerne med megler før bud avgis. Bud som har forbehold om konfidensialitet ("hemmelige bud") vil ikke bli formidlet til selger. Alle interessenter oppfordres til å inngi bud via eiendomsmegler. Megler skal legge til rette for en forsvarlig avvikling av budrunden. I forbrukerforhold (dvs. der selger er forbruker) skal megleren ikke formidle bud med kortere akseptfrist enn til kl. 12.00 første virkedag etter siste annonserte visning. Senere bud må ha en akseptfrist som er lang nok til at budet og eventuelle forbehold kan videreformidles til alle involverte parter slik at disse får tid til å områ seg, jf. forskrift om eiendomsmegling § 6-3. Akseptfrist bør derfor være på minimum 30 minutter, og budforhøyelser bør skje senest 10 minutter før fristens utløp. Dersom bud inngis med en frist som åpenbart er for kort til at megleren kan avvikle budrunden på en forsvarlig måte, vil megler fraråde budet. Eiendomsmegler skal så snart som mulig bekrefte skriftlig overfor budgivere at budene deres er mottatt, og vil uoppfordret gi sin vurdering av det enkelte bud overfor selgeren. Etter at handel har kommet i stand, eller dersom en budrunde avsluttes uten at handel er kommet i stand, kan en budgiver kreve kopi av budjournalen i anonymisert form. Kopi av budjournal gis til kjøper og selger uten ugrunnet opphold etter at handel er kommet i stand. Hvis budgiver ønsker å være anonym, kan bud fremmes via en fullmektig. For mer informasjon om budgivningsprosessen, se «Forbrukerinformasjon om budgivning», som er vedlagt salgsoppgaven, eller ta kontakt med megler.
Vederlag megler
Fast provisjon: kr 40.000 Tilrettelegging: kr 17.500 Visninger/overtagelser: kr 2.990 pr. stk. Markedspakke: kr 20.000 Oppgjørshonorar inkl. factoring: kr 5.900 Grunnpakke bolig info: kr 10.000 Eierskiftegebyr: kr 6.725 Utlegg: Selger dekker utlegg i henhold til oppdragsavtalen. Disse er estimert til ca. kr 21 725,00, og omfatter vanligvis innhenting av informasjon fra kommunen, eventuell forretningsfører, samt kopi av tinglyste dokumenter. Total kostnad ved salg til prisantydning: kr 103 115,00. Dette inkluderer både vederlag og stipulerte utlegg. Ved avbrutt oppdrag: Dersom oppdraget sies opp eller utløper uten at salget gjennomføres, har megler krav på rimelig vederlag for medgått tid og for utført arbeid. Dette omfatter blant annet vederlag knyttet til tilrettelegging, markedsføring og eventuelle avholdte visninger, samt påløpte utlegg. Timepris ved slik beregning er kr 3500.
Hvitvasking
Eiendomsmeglere er underlagt lov om hvitvasking, og er blant annet forpliktet til å gjennomføre kundetiltak av både selger og kjøper. Hvis kjøper ikke bidrar til at megler får gjennomført kundetiltak og dette fører til at avtalen ikke kan gjennomføres eller blir forsinket, er dette et mislighold fra kjøpers side. Et vesentlig mislighold kan gi selger rett til å heve avtalen og til å gjennomføre dekningssalg for kjøpers regning. Dersom selger ikke bidrar til at megler får gjennomført løpende kundetiltak underveis i oppdraget, må eiendomsmegler stanse gjennomføringen av transaksjonen. Selger vil i et slikt tilfelle ha misligholdt sine forpliktelser, og kjøper vil kunne ha et krav mot selger etter avhendingsloven. Hvis kundetiltak ikke lar seg gjennomføre, vil Emera eiendomsmegling ikke kunne bistå med handelen eller foreta oppgjør.
Personopplysningsloven
Personopplysninger blir behandlet i samsvar med personopplysningsloven. Se www.emera.no for vår personvernerklæring.
Oppdragsnummer
05260017
Status salgsoppgave
Salgsoppgave sist endret: 02. mars 2026
Megler
Ansvarlig megler
Adrian Dyrstad
Megler
Adrian Dyrstad
Meglerforetaket
Era eiendomsmegling AS Org.nr: 936749259
Samarbeidspartnere og tilknyttede foretak
Emera Norge AS og eiendomsmeglingsforetakene som er tilknyttet Emera har samarbeid med forskjellige foretak som tilbyr forbrukerne produkter eller tjenester i forbindelse med et salgsoppdrag. Våre samarbeidspartene er:
Søderberg & Partners AS - formidler av boligselger- og boligkjøperforsikring Overo AS - leverandør av digitale oppgjørsskjemaer og overtakelsesprotokoller som også inneholder tilbud til forbruker om tilpassede strøm-, internett- og alarmtjenester.
Hvilke produkter/tjenester kjøper og selger får i forbindelse med oppdraget, kan variere ut fra hvor i landet eiendommen ligger.
Plantegning
Plantegning
Tilstandsrapport
Salgsoppgave
Energiattest
Egenerklæring boligselgerforsikring
Boligkjøperforsikring
Når du kjøper bolig, er det viktig å sikre seg mot uforutsette utgifter. Söderberg & Partners og Emera Eiendomsmegling hjelper deg med å skape trygghet i boligkjøpet.
Fritt meglervalg
Valg av megler skal være frivillig. Megler kan ikke inngå oppdrag om eiendomsmegling dersom inngåelsen av oppdraget er satt som vilkår i avtale om annet enn eiendomsmegling, for eksempel tilbud om lån eller andre banktjenester, jf. eiendomsmeglingsloven § 6-3 (3).