



































LILLESTRØM
Alexander Kiellands gate 12A
51 m2
|
4 150 000 kr
|
2 soverom
|
Andelsleilighet
|
Lekker 3-roms med gjennomgående høy standard | Oppgradert i 2025 | Solrik balkong | Parkering |Sentral beliggenhet
Pris og areal
Prisantydning
4 150 000 ,-
Omkostninger
18 656 ,-
totalpris
4 745 546 ,-
felleskostnader
6 265 ,- per mnd
fellesgjeld
576 890 ,-
bruksareal
58 m2
internt bruksareal
51 m2
eksternt bruksareal
7 m2
Kort fortalt
Velkommen til Alexander Kiellands gate 12A! En svært lekker 3-roms leilighet med gjennomgående høy standard og solrik balkong. Etter omfattende oppgraderinger i 2025 fremstår boligen som særdeles innbydende, med stilrene fargevalg, moderne overflater og en harmonisk helhet som skaper en eksklusiv og lun atmosfære. Her får du en lys, elegant og svært velholdt bolig med smarte løsninger og gode kvaliteter. Planløsningen er praktisk og arealeffektiv, og gir en god romfølelse i alle oppholdsrom. Beliggenheten er sentral og etterspurt, med kort gangavstand til Lillestrøm sentrum, kollektivtransport, skoler og flotte turområder. -Nytt kjøkken (2025) -Oppusset bad (2025) -Balkong på ca. 8 m² -Parkeringsplass -Kjeller- og loftsbod -Ingen dokumentavgift -Nye gulv og malte overflater Velkommen!
Nøkkelinfo
Boligtype
Andelsleilighet
Eierform
Andel
Antall soverom
2
antall bad
1
etasje
1
byggeår
1957
energimerking
F - Grønn
tomteareal
6029.7 m2 (eiet)
Objektbeskrivelse
Tomten
Tomtestørrelse: 6029.7 m2 (eiet)
Tomten er fellesareal, hvilket betyr at sameiet eier og forvalter de aktuelle områdene i fellesskap. Dette gir ikke den enkelte seksjon rett til eksklusiv bruk eller disponering av arealene, med mindre annet er spesifisert i en avtale eller fremgår av sameiets vedtekter. Matrikkelkart viser at tomten til borettslaget har både grenser med middels - høy nøyaktighet, 3-30 cm og mindre nøyaktig, 31-199 cm. Kartet viser også at tomten har Bolig, uthus, landbruk i dag.
Byggeår
1957
Etasje
1
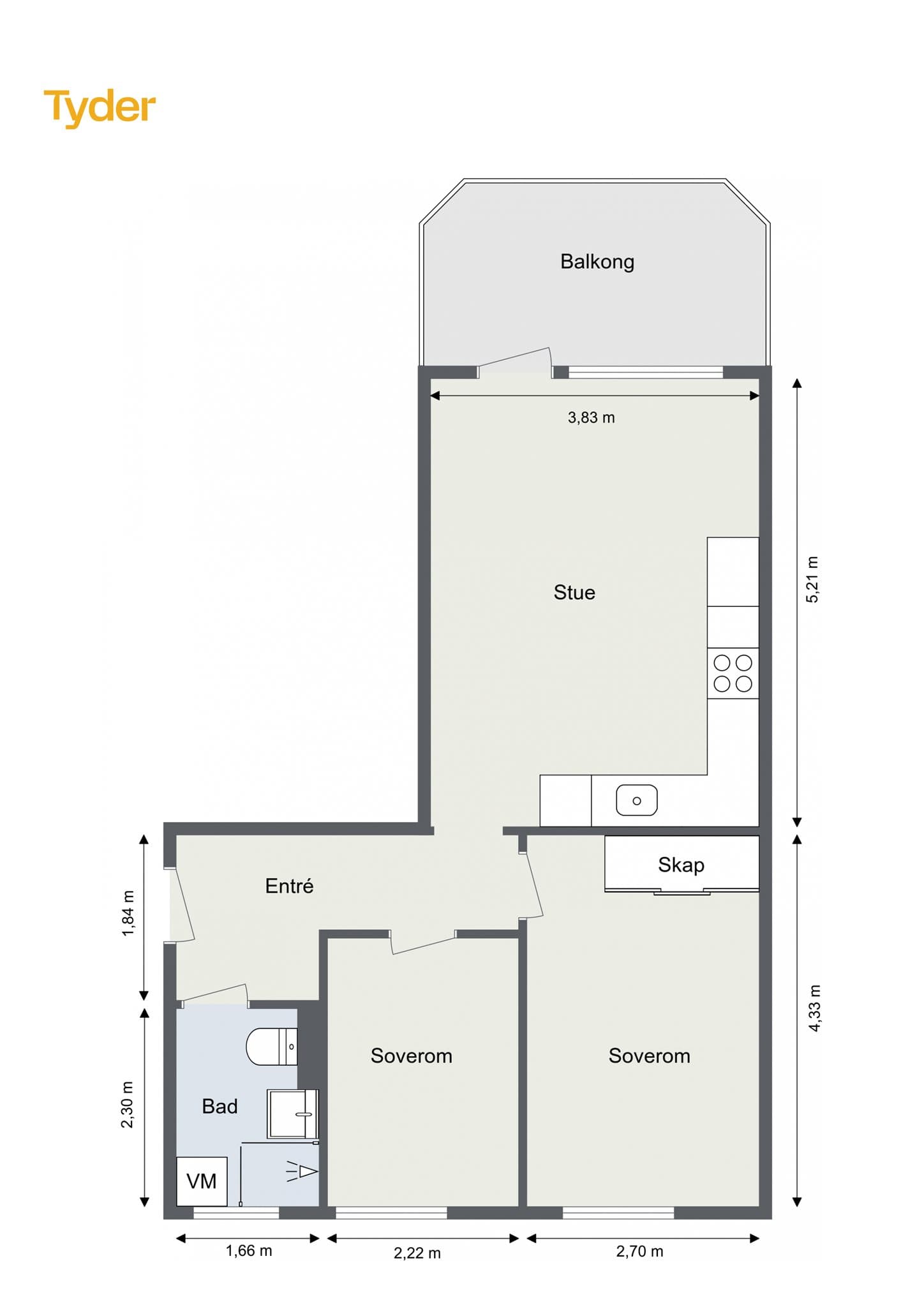
Arealer
BRA-i: 51m2
BRA-e: 7m2
Totalt BRA: 58m2
TBA: 8m2
Arealbeskrivelse
Kjeller
BRA-E: 3 m² Bod
1. etasje
BRA-I: 51 m² Bad, Entré, To soverom, Stue/kjøkken
5. etasje
BRA-E: 4 m² Bod
1. etasje
8 m² Balkong
Ikke målbare arealer
Innvendig areal er oppmålt på stedet. Loftsbod er ikke måleverdig i sin helhet på grunn av lav takhøyde iht. retningslinjer for arealmåling NS 3940. Gulvareal (GUA) er oppmålt til ca. 9 m².
Fellesarealer og rettigheter til bruk
Det gjøres særskilt oppmerksom på at boden som er medtatt i BRA-e og totalt BRA, ligger på borettsagets fellesareal, men disponeres av denne andelen. Borettslaget kan på et senere tidspunkt omdisponere bruken av dette arealet.
Antall soverom
2
Antall rom
3
Innhold
ENTRÉ Romslig entré med adkomst til alle rom i boligen. Hyggelige fargetoner på veggene og laminat på gulvet gir et godt førsteinntrykk. Praktiske opphengsmuligheter for jakker og sko, samt plass til et mindre skap i gangen. STUE Stor og åpen stue- og kjøkkenløsning med moderne fargevalg og stilfullt gulv. Rikelig med naturlig lys fra store vindusflater og terrassedør. Den praktiske, firkantede løsningen gjør rommet enkelt å møblere. Fra stuen er det adkomst til en solrik balkong på ca. 8 m² med utsikt mot hyggelige grøntarealer. KJØKKEN Kjøkkenet ligger i åpen løsning til stuen og har en svart lekker utførsel. Kjøkkeninnredning med glatte fronter og laminat benkeplate med nedfelt kum. Integrerte hvitevarer inkluderer induksjonstopp, stekeovn, oppvaskmaskin og kjøl/frys. BAD Nytt i 2025 - i regi av borettslaget. Flislagte overflater i lyse toner. Baderomsinnredning med benkeskap med glatte fronter og veggskap med speil over servant. Dusj med dører i herdet glass, servant og vegghengt toalett med innebygget sisterne. Opplegg for vaskemaskin. SOVEROM Leiligheten har to soverom. Hovedsoverommet er romslig, med garderobeskap og plass til dobbeltseng, samt samme stilrene uttrykk som resten av boligen. Skyvedørsgarderobe med speilfronter. Soverom 2 er også av god størrelse og egner seg godt som gjesterom, barnerom eller hjemmekontor – etter behov. BOD Gode oppbevaringsmuligheter med bod i kjeller på ca. 3 m², samt loftsbod på ca. 4 m² med godt gulvareal. GULV Innvendige gulv er belagt med laminat. VEGGER Sparklet og malte overflater på plater/murpuss. Panel. HIMLING Sparklet og malte plater. Pusset og malte overflater. Himlingshøyde ca. 2,46 m målt i stue/kjøkken. Himlingshøyde ca. 2,38 m målt i entre.
Innbo og løsøre
Salgsoppgaven inkluderer NEFs standardliste "Oversikt over løsøre og tilbehør", som legges til grunn med mindre annet er spesifisert i salgsoppgaven. Gjenstander som er nevnt i standardlisten, men som ikke finnes på eiendommen, vil heller ikke følge med i salget. Alt utstyr og installasjoner som medfølger overtas slik de er, uten garanti, med mindre det foreligger en gjeldende garanti fra produsent eller leverandør. Kjøper aksepterer at det kan forekomme hull og merker etter montering av inventar og utstyr som ikke er en del av overdragelsen.
Parkering
Borettslaget består av 56 boenheter. Andelseierene har fast parkeringsplass til hver leilighet.
Sammendrag av selgers egenerklæring
Selgers egenerklæringsskjema følger vedlagt salgsoppgaven. Interessenter oppfordres til å gjennomgå dette nøye. Følgende opplysninger er spesielt viktig å merke seg: Seler har eid eiendommen i et år. Kjenner du til om det er utført arbeid på bad/våtrom? Svar: Ja, kun av faglært Beskrivelse: VBM har utbedret alle våtrom inkluder soilrør i borettslaget. De står for rør, el, tømrer, membran, prosjekter m.m Arbeid utført av: VBM Ble tettesjikt/membran/sluk oppgradert/fornyet? Svar: Ja Beskrivelse: Utført i 2025 av VBM Er arbeidet byggemeldt? Svar: Ja Beskrivelse: Utført med Bori som BHR og VBM som TE Kjenner du til feil eller om har vært utført arbeid/kontroll på vann/avløp? Svar: Ja, kun av faglært Beskrivelse: De har vært uheldige og ikke skrudd fast røroverføring fra avløpspumpe på kjøkken til avløp. Det har derfor vært en vannlekkasje i området foran kjøkkenvasken. Avløpet ble koblet til med nye slange klemmer. Arbeid utført av: E&H rørleggerbedrift AS Kjenner du til om det er/har vært problemer med drenering, fuktinnsig, øvrig fukt eller fuktmerker i underetasje/kjeller? Beskrivelse: Det har kommet vann inn i felles kjeller Kjenner du til om det er/har vært f.eks. sprekker i mur, skjeve gulv eller lignende? Svar: Ja Beskrivelse: Undergulv, vegger og tak er ikke gjort noe med. De har skjevheter/svanker som antagelig er fra byggeår. Det er lagt flytende gulv oppå eksisterende undergulv og det er nok derfor ikke i henhold til NS 3420 krav til planhet og lodd. Kjenner du til om det er/har vært utført arbeid på el-anlegget eller andre installasjoner (f.eks. oljetank, sentralfyr, ventilasjon)? Svar: Ja, av faglært og ufaglært/egeninnsats/dugnad Beskrivelse: VBM elektro AS har gjort arbeider med bad og i sikringsskap. Hemnes el AS har gjort arbeider på kjøkken, gang og lite soverom samt sikringsskap. Har skrevet opp ufaglært for de punktene som er gjenstående. Vi har ikke gjort noen på eksisterende hoved soverom. Og jeg har ikke oversikt over hva som er gjort fra før, det finnes fremdeles gamle punkter i leiligheten. Dette gjelder alle rom. El-anlegget har blitt oppdatert, men tidligere takstmann har gitt TG 3 på elektrisk anlegg pga vennetjeneste og manglende dokumentasjon. Arbeid utført av: Hemnes el AS, VBM elektro AS Foreligger det samsvarserklæring (i henhold til forskrift om elektriske lavspenningsanlegg)? Svar: Nei Har du ladeanlegg/ladeboks for elbil i dag? Svar: Ja Beskrivelse: På parkeringsplass som følger leiligheten. Vi har ikke brukt denne. Kjenner du til om ufaglærte har utført arbeid som normalt bør utføres av faglærte, utover det som er nevnt tidligere (f.eks. drenering, murerarbeid, tømrerarbeid etc)? Svar: Ja Beskrivelse: Innv. leilighet er malt av ufaglærte, Tømrer arbeider er utført av tømrer, men det er ikke rettet opp underlag. Gulv, vegger, tak, dører, kjøkken m.m er derfor ikke gjort i henhold til legge anvisning. Kjenner du til om det har vært utført arbeid på terrasse/garasje/tak/fasade? Svar: Ja, kun av faglært Beskrivelse: Har utført arbeidet med fasaden Arbeid utført av: Front AS Kjenner du til manglende brukstillatelse eller ferdigattest? Svar: Ja Beskrivelse: Det foreligger midlertidig brukstillatelse for eiendommen datert 19.08.1957 Kjenner du til om sameiet/laget/selskapet er involvert i tvister av noe slag? Svar: Ja Beskrivelse: Det kan komme en sak mot Bori eller VBM (dette er ikke avklart pr d.d) Tilleggskommentar: Det er knirk i gulv noen steder. Samsvarserklæring: Det fremgår av selgers egenerklæringsskjema / tilstandsrapporten at det mangler/ikke er fremlagt samsvarserklæring for deler av det elektriske arbeidet i boligen. Det er fremlagt samsvarserklæring på deler av anlegget: Samsvarserklæring signert og datert 04.01.2023 er fremvist for følgende arbeider: - Bytte av defekt termostat. Samsvarserklæring signert og datert 28.08.2025 er fremvist for følgende arbeider: - Oppussing av leilighet. Jobb er ikke ferdigstilt. Samsvarserklæring signert og datert 10.11.2025 er fremvist for følgende arbeider: - Skifte 6 stk spotter. - Skifte bryter og stikk. Samsvarserklæring signert og datert 21.11.2025 er fremvist for følgende arbeider: - Nytt elektrisk opplegg i forbindelse med oppussing av bad. Ny kurs til vaskemaskin. Stikk i gang. For elektriske anlegg er det krav om samsvarserklæring fra godkjent installatørbedrift, på alle arbeider utført etter 01.01.1999. I dette tilfellet foreligger det ikke samsvarserklæring for deler av anlegget. Dette kan medføre en økt risiko, dersom det ikke er utført av en godkjent installatørbedrift, som har gjort de nødvendige kontrollene for å sikre eget arbeid. Det anbefales på generelt grunnlag at anlegget kontrolleres av en el. - takstmann. Dette anbefales på alle anlegg i forbindelse med boligsalg.
Bygningssakkyndig
Matias Løberg
Byggemåte
I forbindelse med salget er det blitt utført en tilstandsrapport av en kvalifisert bygningssakkyndig. Rapporten gir en grundig vurdering av boligens tilstand og påpeker eventuelle avvik som ble oppdaget under befaringen. Tilstandsrapporten og selgers egenerklæring er vedlagt salgsoppgaven, og det er viktig at interessenter setter seg grundig inn i disse dokumentene før bud legges inn. Kjøper anses kjent med opplysninger som kommer tydelig frem i tilstandsrapporten, og det vil ikke være mulig å gjøre slike forhold gjeldende som en mangel. Spesielt forhold som er vurdert med TG2 og TG3 bør vurderes nøye, da de indikerer avvik fra normal slitasje og/eller høy alder, noe som kan innebære behov for utbedringer. Bygningsdeler som er merket med TGIU er ikke blitt vurdert av takstmannen. Beskrivelsen av boligen nedenfor er hentet direkte fra tilstandsrapporten: Andelsleilighet i boligblokk med to eksterne boder i henholdsvis loft og kjeller. Gjennomgående leilighet i 1. etasje med balkong. Bygningsdeler vurdert med TG2: -Vindu -Etasjeskiller -Vannbåren varme -Ventilasjon Bygningsdeler som ikke har blitt undersøkt (TGIU): -Hulltaking – Bad, 1. etasje. Beskrivelse: Hulltaking for måling av fukt er ikke utført da badet er nyere enn 5 år, og dokumentasjon påutførelse av badet foreligger. HMS (forhold av betydning for Helse, miljø og sikkerhet): Entrédør er ikke merket med brannklassifisering. Det er ukjent om døren er en branndør. Forholdet kan være et avvik ift. dagens branntekniske krav, og kan utgjøre en risiko ved brann. Dersom døren ikke tilfredsstiller krav til branndør, må det påregnes utskifting. Følgende dokumentasjon på oppgraderingsarbeider de siste fem år er fremvist: - Komplett FDV-dokumentasjon for bad. - Garantiskjema for varmekabler. - Diverse dokumentasjon på elektriske arbeider. For detaljer vises det til punktet om elektrisk anlegg.
Omkostninger
4 150 000 (Prisantydning) 576 890 (Andel av fellesgjeld) 4 726 890 (Pris inkl. fellesgjeld) Omkostninger 8 900 (Boligkjøperforsikring (valgfritt)) 260 (Panteattest kjøper) 545 (Tinglysingsgebyr BRL - pantedokument) 545 (Tinglysingsgebyr BRL - skjøte) 8 406 (Gebyr utlysing forkjøpsrett) 18 656 (Omkostninger totalt) 4 745 546 (Totalpris inkl. omkostninger)
Felleskostnader
6 265,- per mnd
Felleskostnader: Eiendomsskatt, kommunale avgifter, felles bygningsforsikring, grunnpakke kabel tv/internett, drift og vedlikehold, honorar til styret forretningsfører og revisor, Avdrag IN, Renter IN, Vedlikeholdsavsetning. Felleskostnadene betales hver måned. Borettslaget kan endre felleskostnadene med en måneds skriftlig varsel.
Eiendomsskatt
Inkludert i fellesutgiftene.
Kommunale avgifter
Inkludert i fellesutgiftene.
Fellesgjeld
576 890,-
Borettslaget har IN-ordning med mulighet for å nedbetale andel fellesgjeld 31.03 og 30.09.
BOLIGBANKEN ASA 4,95% Annuitetslån (IN), Info pr 31.03.26 Term: 12 Tot Restgjeld: 34 378 594 Andel saldo: 576 890 Løpetid: 31.05.25 -31.05.60
Sikringsordning fellesgjeld
Selskapet er med i sikringsordning for fellesutgifter.
Formuesverdi
Formuesverdi primær: 828 223 pr. 2024
Formuesverdi sekundær: 3 312 890 pr. 2024
Skatteetaten beregner en boligverdi (beregnet markedsverdi for bolig) basert på SSBs statistiske opplysninger om omsatte boliger. I beregningen tas det hensyn til din boligs beliggenhet, areal, byggeår og type bolig. Formuesverdien er en prosentandel av denne boligverdien.For mer informasjon om formuesverdi, se Skatteetatens nettsider.
Beliggenhet
Boligen har en attraktiv beliggenhet i et moderne og sentrumsnært område i Lillestrøm, med kort vei til både kollektivtransport og et bredt utvalg av byens tilbud. Her bor du med enkel tilgang til alt du trenger i hverdagen, samtidig som du har et levende byliv rett utenfor døren. Lillestrøm er i stadig utvikling, spesielt innen kultur og opplevelser, og byr på et variert tilbud av restauranter, kafeer, butikker og uteliv. Sentrum kan friste med både kjøpesenter, hyggelige handlegater, kulturhus og kino. Det arrangeres jevnlig konserter og arrangementer på torget, og den populære Byfesten trekker hvert år mange mennesker til byen med liv og underholdning på flere scener. I nærområdet finner du flere gode fritidsmuligheter. Åråsen stadion ligger en kort spasertur unna, og i området ellers finner du blant annet Sørum gård, Skedsmohallen, flotte turstier og Lillestrøm golfklubb. Ved Nitelva ligger Nebbursvollen friluftsbad – et populært sted på varme dager, med bassenger, sklier og fine grøntområder. Området byr også på gode turmuligheter året rundt, med opplyste stier som egner seg godt for både gåturer og løpeturer, samt kunstinstallasjoner langs veiene. Når det gjelder servicetilbud, har du flere dagligvarebutikker i nærheten, som blant annet Bunnpris, Meny, Rema 1000 og Kiwi. I tillegg ligger Lillestrøm Torv og sentrumsgatene innen kort gangavstand, og for et enda større utvalg er det også kort vei til både Coop Obs og Strømmen Storsenter. Kollektivtilbudet er svært godt, med både buss og tog i umiddelbar nærhet. Nærmeste bussholdeplass ligger kun et par minutters gange fra boligen, med forbindelser til blant annet Lillestrøm togstasjon. Herfra går toget hyppig, og du bruker rundt 10 minutter til Oslo S og cirka 12 minutter til Gardermoen. Området har også et godt tilbud av skoler og barnehager. I nærheten finner du blant annet Volla, Vigernes og Kjeller skole, samt Kjellervolla ungdomsskole og videregående skoler i Lillestrøm og Skedsmo. OsloMet har også en avdeling på Kjeller, som enkelt kan nås med sykkel eller buss. For de minste finnes det flere barnehager i området, som Måsan, Sølepytten og Volla barnehage.
Adkomst
På høyre side i annonsen finner du et kartutsnitt. Ved å klikke på kartet kan du enkelt planlegge din rute fra valgt startpunkt og helt frem til boligen. Det vil være skiltet ved fellesvisninger for enkel orientering.
Energiklasse
F - Grønn
Info strømforbruk
Selger opplyser at det årlige strømforbruket for 2025 var: Fra innflytting i mars og ut 2025, har vi brukt 3166 kWh. Mars til desember 2025: Forbruk 6469 kr Det er viktig å merke seg at energiforbruket kan variere fra husstand til husstand.
Info energiklasse
Se fullstendig energiattest fra selger som vedlegg til salgsoppgave. Megler påtar seg ikke ansvar for informasjonen som fremgår av energiattesten. Alle eiendommer som selges eller leies ut skal ha en energiattest. Unntak gjelder blant annet for frittstående bygninger med et bruksareal mindre enn 50 m². Det er eier som har plikt til å fremlegge energiattest og er ansvarlig for at opplysningene er korrekte. Dersom eier ikke har lagt frem energiattest, og eier etter skriftlig anmodning fra kjøper ikke har fremlagt energiattest før avtale om salg er inngått, kan kjøper få laget en energiattest ved hjelp av ekspert for selgers regning, innen ett år etter at avtale om salg er inngått. Dette følger av forskrift om energimerking av bygninger og tekniske anlegg § 5 (3). Energiattesten er basert på nåværende eiers/husstandens forbruk og utgifter de siste årene. Forbruket kan variere avhengig av faktorer som antall familiemedlemmer, ønsket innetemperatur, egne avtaler om energiforsyning med mer. Megler påtar seg ikke ansvar for informasjonen som fremgår av energiattesten.
Oppvarming
Borettslaget har månedlig forbruksfakturering av energi og varmt vann etter måler.
Om borettslaget
Alexander Kiellandsgate Borettslag 1 Org.nr: 959125775
Alexander Kiellands gate Borettslag 1 ble stiftet 07.05.1958 og har organisasjonsnummer 959 125 775. Borettslaget består av 56 andelsboliger fordelt på 3 bygninger med adressene Alexander Kiellands gate 12, 14 og 16. Eiendommen har gnr 81, bnr 1550 i Lillestrøm kommune. Oppussing: Andelseiere som skal pusse opp leiligheten, særlig de arbeider som krever sertifiserte utførere (rørleggere, elektrikere), skal informere styret om dette, og sikre at arbeidene utføres i henhold til de retningslinjer som er utarbeidet av borettslaget samt gjeldende lover og forskrifter. Vaktmestertjeneste: Borettslaget har ingen vaktmester. Firmaet Renhold Senter AS er engasjert for å vaske fellesarealene. Bergheim Snøservice står for snørydding og gressklipping. Parkering: Borettslaget har nummererte parkeringsplasser ved alle bygningene – nr. 12, 14 og 16. Det er opparbeidet infrastruktur for el-lading ved hver parkeringsplass. Det er også merket 4 gjesteparkeringer foran nr 14 og nr 16, og hver andelseier har fått 2 “Gjesteparkeringskort”. Nøkler: Nøkler/rekvisisjon fås ved henvendelse til styreleder og må betales av den Bruksoverlating (utleie m.m): Søknadsskjema ved bruksoverlating kan lastes ned fra www.bori.no eller fås ved henvendelse til BORI. Søknader skal behandles av borettslagets styre. Eier må sørge for at styret og forretningsfører har oppdatert kontaktinformasjon om både eier og beboer. Vaskeri: Det er fellesvaskeri i kjelleren i Alexander Kiellands gate 14 (alle kan bruke inngangen ned trappen på midten av bygget). Automaten tar kun 20-kroninger. Brannsikringsutstyr: Lovverket krever at hver bolig skal være utstyrt med røykvarsler og brannslukningsutstyr. Dersom utstyret er defekt (jf. egenkontroll) meldes dette skriftlig til styret. Kabel-TV, bredbånd og telefoni: Tjenesten leveres av Telenor. Servicetlf. 915 09 000. Nettside: www.telenor.no Dekoder med kort og router tilhører borettslaget og skal medfølge ved salg. For å endre navn på andelseier, kontakt Telenor på tl. 915 09 000. Megler har ikke fått innsyn i generalforsamling/innkalling for 2026. Borettslaget har enda ikke gjennomført årets generalforsamling. Informasjonen under stammer fra møte gjennomført i mai 2025. Saker som ble vedtatt på generalforsamling i mai 2025: -Styret skal etablere rutiner for å bekrefte mottak av henvendelser til generalforsamlingen. Styrets innstilling: Forslaget støttes, styret vil i fremtiden opprette rutiner for å bekrefte mottak av forslag -Styret foreslår at kostnadene ved oppussing/rehabilitering av bad fordeles etter størrelsen på badene. Dette innebærer at andelseiere med like store bad vil bli belastet med samme kostnad. Bakgrunnen for forslaget er å sikre en mest mulig rettferdig fordeling, der hver andelseier betaler i forhold til det faktiske arealet som oppgraderes. Styrets innstilling: Kostnadene ved oppussing/rehabilitering av bad fordeles etter størrelsen på badene. Vedlikeholdshistorikk siste 10 år (2015-2024) 2024: Byttet dørpumpe og beslag i 14A Byttet dør til kjellernedgang i 14B Ny avtale med Bergheim inkluderer feiing om våren og strøing om vinteren Skiftet noen soilrør og sluk i kjeller i 12 Fjernet gamle GET-kabler mellom blokkene og tettet gjennomføringer i tak forå unngå lekkasje 2023: Byttet deler av soilrør i fyrrom 16A Byttet sluk i kjeller 14B Installert ny type røykvarslere I fellesområder, levetid 5 år 2022: Opparbeidet P-plasser til alle andeler og erstattet masse ved alle blokker Opparbeidet infrastruktur for EL-lading til hver P-plass Montert utelys endevegg nr 12 ved avfallsbrønner 2021: Byttet alle takluker Montert oppslagstavler for informasjon i alle oppganger Byttet gjerde langs gangvei mot COOP Montert bom mot Alexander Kiellandsgate ved nr 12 Erstattet søppelkonteiner med avfallsbrønner ved 12 Utarbeidet tilstandsrapport bad og alle rørsystemer 12,14 og 16 2020: Byttet fra 3 til 1 ekspansjonstank I fyrrom Byttet ledninger og lamper i alle fellesarealer loft og kjeller Installert magnetfiltre inntaksrør varmtvann alle blokker 2019: Montert bom mot Alexander Kiellandsgate ved nr 12 Installert vannmålere til alle blokker Byttet soilrør fyrrom 16 Byttet lamper på endevegg 14 og 16 Byttet brannslukningsapparater alle leiligheter Byttet hovedledning i 14 2018: Installert magnetfiltre inntaksrør varmtvann alle blokker Byttet alle takluker Montert korktavler for info i alle oppganger 2017: Byttet hovedledning i 14 Byttet fra 3 til 1 ekspansjonstank I fyrrom Byttet ledninger og lamper i alle fellesarealer loft og kjeller 2016: Byttet brannslukningsapparater alle leiligheter 2015: Installert vannmålere til alle blokker Byttet soilrør fyrrom 16 Byttet lamper på endevegg 14 og 16
Regnskap / Budsjett / Kostnadsøkninger
Driftsinntekter: 3 182 108 (mot budsjett 3 179 552) Driftskostnader: 2 826 613 (mot budsjett 2 729 327) Finanskostnader: 385 584 (mot budsjett 435 000) Årsresultat: -29 689 (mot budsjett 15 225) Regnskapet godkjennes og resultatet overføres til udekket tap. Styret er ikke i en rettslig tvist som kan medføres økonomisk ansvar for borettslaget.
Forretningsfører
Bori Bbl
Styregodkjennelse
Kjøper må godkjennes av borettslagets styre. Styret kan kun nekte godkjenning dersom det foreligger saklig grunnlag, jf. borettslagsloven § 4-4.
Forkjøpsrett
Intern forkjøpsrett (Forkjøpsrett i samme borettslag/sameie). Borettslaget er frittstående og praktiserer kun intern forkjøpsrett. Forkjøpsretten er forhåndsutlyst og hadde med meldefrist 31.03.2026, kl 14.00. Endelig avklaring fås etter budaksept.
Forsikringsselskap og polisenummer felles forsikring
Fremtind Forsikring AS
20565203
Vedtekter / husordensregler
Vi oppfordrer alle interressenter til å sette seg inn i borettslagets vedtekter og husordenregler. Under er noen av det viktigste oppramset, men listen er ikke uttømmende: Alexander Kiellandsgate Borettslag 1 - Lillestrøm. -Dersom andel skifter eier, har andelseierne i borettslaget forkjøpsrett. -Bare fysiske personer (enkeltpersoner) kan være andelseiere i borettslaget. Ingen fysiske personer kan eie mer enn én andel. -Hver andel gir enerett til å bruke en bolig i borettslaget og rett til å nytte fellesarealer til det de er beregnet eller vanlig brukt til, og til annet som er i samsvar med tiden og forholdene. -Borettslaget har fellesvaskeri dette skal kun brukes mellom 08.00-20.00 -Tørkestativ skal ikke benyttes på søndager og helligdager. -Det skal være ro i leiligheten mellom 23.00-06.00. -Dører til loft og kjeller skal alltid være låst. -Det er forbudt å sparke fotball på gårdsplassen og plenen. -Parkerign skal skje på anviste plasser.
Husdyrhold
Dyrehold er tillatt, men det skal søkes om hos styret og må avklares med naboer i forbindelse med mulige allergier.
Adgang til utleie
Det er begrenset adgang til å leie ut bolig i borettslag. Med styrets godkjenning og under visse vilkår kan boligen leies ut i inntil 3 år, jf. borettslagsloven § 5-3 til § 5-10. Andelseier som selv bor i boligen, har imidlertid rett til å leie ut deler av boligen til andre uten styregodkjenning, jf. borettslagsloven § 5-4. Korttidsutleie er tillatt i opptil 30 døgn per år uten samtykke fra styret.
Ferdigattest / brukstillatelse
Det foreligger en innflyttningattest, datert: 19.08.1957. Innflyttningsattesten henviser til alle 12 leiligheter i oppgang A og B. Det er merknader i attesten som skal utbedres. Innflyttningsattesten, datert: 1957 bekrefter at boligen lovlig kan benyttes, men at det fortsatt gjenstår arbeid før ferdigattest kan utstedes. For å kunne søke om ferdigattest må merknader i attesten gjennomføres på eiendommen - før søknad sende sinn. Det gjøres oppmerksom på at ferdigattest ikke vil bli utstedt for ufullførte byggesaker/bygningsmeldinger som er fra før 1998. At attesten eksisterer, gir derimot ingen garanti for at bygget er oppført i samsvar med tillatelsen og gjeldende regelverk, eller at det senere er utført arbeid på bygget som ikke er byggemeldt eller godkjent. Kjøper påtar seg risikoen for fremtidig bruk og eventuelle pålegg fra offentlige myndigheter. TEGNINGER: Det foreligger godkjente tegninger datert 04.03.1954. Tegningene er av eldre dato og fremstår som noe vanskelig å tyde, herunder er rombetegnelsene delvis utydelige. Basert på det som lar seg tolke, er det registrert følgende avvik fra de opprinnelige tegningene: -Kjøkkenet er flyttet til stuen. Tidligere kjøkken benyttes i dag som soverom. Begge rom er godkjent for varig opphold, og tiltaket vurderes derfor ikke å være søknadspliktig. Det anbefales imidlertid at endringen meldes til kommunen.
Vei, vann og avløp
Eiendommen er tilknyttet offentlig vann- og avløpssystem. Stikkledningene fra eiendommen og ut til det kommunale nettet er private, og vedlikeholdsansvaret for disse påhviler borettslaget. Adkomst til eiendommen skjer via offentlig vei - siste stikkvei inn er privat.
Regulerings- og arealplaner
Kommuneplan, tilsendt av Lillestrøm kommune viser at eiendommen er regulert til boligbebyggelse - nåværende. Reguleringsplan på bakken, tilsendt av Lillestrøm kommune viser at det ikke ligger noe reguleringsplaner på eiendommen i dag. Det er markert et område på andre siden av hovedveien regulert til blokker, offentlig institusjon og kjørevei. Det vises til reguleringsplan 447/08: Reguleringsbestemmelser for Alexander Kiellands gate. Formål: Offentlig trafikkområde - Gate med fortau, Annen veggrunn. Geodata mottatt av kommunen viser at eiendommen er berørt av følgende: -Konsesjonsområde fjernvarme -Friluftslivsområder: Nærturterreng -Marin grense: Areal under marin grense -Mulighet for marin leire: Stor -Radon aktsomhet: Moderat/lav -Differensierte støykrav: gul sone - støy fra vei -Flom aktsomhetsområder: Potensielt flomfareområde Kommuneplanens arealdel 2023 - 2035 kan ses hos megler.
Tinglyste heftelser og rettigheter
På eiendommen er det tinglyst følgende heftelser og rettigheter som følger eiendommens matrikkel ved overskjøting til ny hjemmelshaver: 3205/81/1550: 12.06.1973 - Dokumentnr: 103218 - Bestemmelse om bebyggelse Rettighetshaver: Knr:3205 Gnr:81 Bnr:1812 13.08.1976 - Dokumentnr: 104605 - Erklæring/avtale Bestemmelse om kloakkledning Vegvesenets betingelser vedtatt 22.11.1954 - Dokumentnr: 6236 - Registrering av grunn Denne matrikkelenhet opprettet fra: Knr:3205 Gnr:81 Bnr:1477 20.01.1961 - Dokumentnr: 903825 - Sammenslått med denne matrikkelenhet: gnr 81 bnr 1724 og 1728 01.01.2020 - Dokumentnr: 1614134 - Omnummerering ved kommuneendring Tidligere: Knr:0231 Gnr:81 Bnr:1550 01.01.2024 - Dokumentnr: 189598 - Omnummerering ved kommuneendring Tidligere: Knr:3030 Gnr:81 Bnr:1550 Grunnboksutskrift kan ses hos megler.
Legalpant
Borettslaget har legalpant på inntil 2G som sikkerhet for betaling av felleskostnader. Dette betyr at borettslaget har prioritet over tinglyste lån når det gjelder betaling av felleskostnader, og kan kreve inn pengene før andre kreditorer, selv om de har lån registrert på andelen.
Boligselgerforsikring
Selger har tegnet boligselgerforsikring som dekker selgers ansvar etter avhendingsloven begrenset oppad kr. 20 000 000,-. Egenerklæringsskjema er vedlagt salgsoppgaven og interessenter oppfordres til å gjennomgå denne før bud inngis.
Boligkjøperforsikring
Kjøper har anledning til å tegne boligkjøperforsikring. Vedlagt i salgsoppgaven følger informasjon om Boligkjøperforsikring fra Söderberg & Partners. Boligkjøperforsikring er en rettshjelpsforsikring som gir trygghet og profesjonell juridisk hjelp dersom det oppdages uventede feil eller mangler ved boligen de neste fem årene. Les mer om Boligkjøperforsikring i vedlagte materiell eller på https://www.soderbergpartners.no/eiendom/boligkjoper/
Diverse
Borettslagsmodellen innebærer at borettslaget eier eiendommen, mens andelseierne eier andeler i borettslaget, som gir borett til en bestemt bolig. Andelseierne har ikke personlig ansvar for borettslagets fellesgjeld, men de må dekke borettslagets løpende utgifter. Manglende innbetaling av fellesutgiftene som følge av andre andelshaveres mislighold, eller dersom borettslaget sitter på fraflyttede og/eller usolgte andeler, må dekkes av de øvrige andelseierne. Borettslaget har legalpanterett i andelen for krav på dekning av felleskostnader og andre krav fra borettslaget, på inntil 2 ganger folketrygdens grunnbeløp. Kjøper og selger er forpliktet til å undertegne standard kjøpekontrakt utarbeidet av Emera i forbindelse med eiendomstransaksjonen. Kjøpekontrakten kan besiktiges hos eiendomsmegler før bud inngis. Kontakt eiendomsmegler for spørsmål. Selger leverer eiendommen i ryddig og rengjort stand. Det gjøres oppmerksom på at megler ikke har innhentet særskilte opplysninger om det finnes pålegg fra brann-/feiervesen på eiendommen. Det gjøres oppmerksom på at vedlagte plantegninger ikke stemmer hva gjelder faktisk innredning og møblering etc. Den er ikke målbar, avvik og feil kan forekomme.
Sentrale lover
Regelverk og generelle opplysninger Boligen selges med det inventar og utstyr som i henhold til gjeldende lover, forskrifter eller offentlige pålegg skal følge med eiendommen, jf. avhendingsloven § 3-4. Fastmonterte eller spesialtilpassede installasjoner og innredning som anses som varig tilknyttet boligen, følger normalt med i handelen, med mindre det foreligger en særskilt avtale mellom partene om noe annet, jf. avhendingsloven § 3-5. En standard tilbehørsliste utarbeidet av Norges Eiendomsmeglerforbund (NEF) følger salgsoppgaven, og gjelder som utgangspunkt for hva som inkluderes i salget – med mindre avvik er tydelig avtalt mellom kjøper og selger. Om informasjonsgrunnlaget Opplysninger om boligens størrelse og utforming, både innvendig og utvendig, bygger på informasjon hentet fra vedlagte tilstands- og boligsalgsrapport. Innholdet i salgsoppgaven er basert på selgers informasjon, fagkyndig vurdering, samt opplysninger fra offentlige registre som kommunen og Kartverket. Det er viktig at kjøper setter seg grundig inn i alle salgsdokumentene, herunder salgsoppgave, tilstandsrapport og selgers egenerklæring. Kjøper anses for å være kjent med forhold som er tydelig beskrevet i salgsdokumentene, slike forhold kan ikke senere gjøres gjeldende som en mangel ved boligen. Dette gjelder uavhengig av om dokumentene er lest. Det kan være forskjell mellom boligens faktiske bruk av rom og det som er godkjent av myndighetene. Alle interessenter anbefales derfor å undersøke eiendommen nøye, gjerne sammen med fagperson, før bud gis. Dersom kjøper velger å kjøpe uten å ha sett eiendommen, kan det ikke etter overtakelse reklameres på forhold som burde ha vært oppdaget ved en ordinær gjennomgang. Dersom det oppstår behov for ytterligere avklaringer, oppfordres interessenter til å kontakte eiendomsmegler eller egne rådgivere før de gir bud. Slitasje og bruk Det må også forventes at eiendommer som har vært i bruk, vil kunne ha tegn til slitasje og eventuelle skader. Slik normal bruksslitasje og behov for vedlikehold må kjøper påregne, og dette vil normalt ikke gi grunnlag for reklamasjon eller prisavslag. Avtalerettslig Partenes rettigheter og plikter reguleres av avtalen mellom partene, og all tilgjengelig dokumentasjon som forelå for kjøper før handelen ble inngått. I tillegg gjelder avhendingsloven. Det gjelder ulike avtalevilkår avhengig av om kjøper er forbrukerkjøper eller ikke, og dette er nærmere forklart nedenfor. Budgivning og selgers vurdering På grunn av ulike ansvarsforhold kan selger velge å prioritere bud fra ikke-forbrukere, selv om budet er lavere enn et forbrukerbud. Når kjøper ikke er forbruker, kan selges ansvar begrenses ettersom boligen selges «som den er», noe som kan være av verdi for selger. Det understrekes at selger står fritt til å velge hvilket bud som aksepteres, og er ikke forpliktet til å velge det høyeste. Alle budgivere må ved inngivelse av bud opplyse om de opptrer som forbruker eller som næringsdrivende/person som handler hovedsakelig som ledd i næringsvirksomhet. Det vil opplyses hvis konkurrerende bud kommer fra en ikke-forbruker. Forbrukerkjøp – definisjon og vilkår: Et forbrukerkjøp foreligger når en fysisk person kjøper eiendom uten at formålet hovedsakelig er knyttet til næringsvirksomhet. En eiendom anses å ha en mangel dersom den ikke oppfyller kravene som følger av avtalen, eller ved brudd på bestemmelser i avhendingsloven §§ 3-2 til 3-8. Det samme gjelder hvis eiendommen ikke samsvarer med det som med rimelighet kunne forventes ut fra blant annet alder, type og synlig tilstand – eller hvis det er tilbakeholdt, eller gitt feilaktige opplysninger, og dette har påvirket avtalen. Dersom det er avvik mellom oppgitt og faktisk innvendig areal på minst 2 % og samtidig minst 1 kvadratmeter, kan dette utløse rett til kompensasjon etter § 3-3 i avhendingsloven. Ved beregning av krav om prisavslag eller erstatning må kjøper selv dekke kostnader med inntil kr 10 000 (som en egenandel). Ikke-forbruker – definisjon og vilkår: Dersom kjøper er en juridisk enhet, eller en fysisk person som handler i næringssammenheng, regnes kjøpet ikke som et forbrukerkjøp. Ved slike kjøp selges eiendommen «som den er», og selgers ansvar er begrenset til det som følger direkte av avtalen, jf. avhendingsloven § 3-9. I disse tilfellene fravikes § 3-3 andre ledd, og eventuelle arealavvik vurderes etter § 3-8. Kjøperens plikt til å foreta grundige undersøkelser gjelder også fullt ut for kjøpere som ikke omfattes av forbrukerdefinisjonen. Boligen selges med det inventar og utstyr som i henhold til gjeldende lover, forskrifter eller offentlige pålegg skal følge med eiendommen, jf. avhendingsloven § 3-4. Fastmonterte eller spesialtilpassede installasjoner og innredning som anses som varig tilknyttet boligen, følger normalt med i handelen, med mindre det foreligger en særskilt avtale mellom partene om noe annet, jf. avhendingsloven § 3-5. En standard tilbehørsliste utarbeidet av Norges Eiendomsmeglerforbund (NEF) følger salgsoppgaven, og gjelder som utgangspunkt for hva som inkluderes i salget – med mindre avvik er tydelig avtalt mellom kjøper og selger.
Betalingsbetingelser
Hele oppgjøret må betales samlet fra en norsk bankkonto. Overføringer fra utlandet aksepteres kun unntaksvis, og kun dersom dette er forhåndsavtalt med megler i forbindelse med aksept av budet.
Viktig informasjon om budgivning
Bud kan legges inn på nettannonsen på "gi bud" knappen eller via hjemmesiden. Ved elektronisk budgivning kan bud legges inn trygt og enkelt med bank-ID. Eiendomsmegler kan også kontaktes for tilsendelse av budkjema, og budskjema finnes også i salgsoppgaven. Alle bud skal inngi skriftlig til eiendomsmegler. Kravet til skriftlighet gjelder også ved forhøyelse av bud, motbud og selgers aksept eller avslag. Før et bud kan formidles til selger må megler innhente gyldig legitimasjon og signatur fra budgiver. Kravet til legitimasjon og signatur er oppfylt dersom budgiver bruker e-signatur som f eks. bankID. Etter det første budet er inngitt, kan budgiver inngi bud pr e-post eller pr SMS til megler. Hvis budgiver skal by på eiendommen i henhold til en kjøpsfullmakt må megler kontaktes og fullmakten oversendes før budgivning. Et bud bør inneholde eiendommens adresse (eventuelt gnr/bnr), kjøpesum, budgivers kontaktinformasjon, finansieringsplan, akseptfrist, overtakelsesdato og eventuelle forbehold som for eksempel usikker finansiering, salg av nåværende bolig ol. Normalt vil ikke et bud med forbehold bli akseptert før forbeholdet er avklart. Konferer gjerne med megler før bud avgis. Bud som har forbehold om konfidensialitet ("hemmelige bud") vil ikke bli formidlet til selger. Alle interessenter oppfordres til å inngi bud via eiendomsmegler. Megler skal legge til rette for en forsvarlig avvikling av budrunden. I forbrukerforhold (dvs. der selger er forbruker) skal megleren ikke formidle bud med kortere akseptfrist enn til kl. 12.00 første virkedag etter siste annonserte visning. Senere bud må ha en akseptfrist som er lang nok til at budet og eventuelle forbehold kan videreformidles til alle involverte parter slik at disse får tid til å områ seg, jf. forskrift om eiendomsmegling § 6-3. Akseptfrist bør derfor være på minimum 30 minutter, og budforhøyelser bør skje senest 10 minutter før fristens utløp. Dersom bud inngis med en frist som åpenbart er for kort til at megleren kan avvikle budrunden på en forsvarlig måte, vil megler fraråde budet. Eiendomsmegler skal så snart som mulig bekrefte skriftlig overfor budgivere at budene deres er mottatt, og vil uoppfordret gi sin vurdering av det enkelte bud overfor selgeren. Etter at handel har kommet i stand, eller dersom en budrunde avsluttes uten at handel er kommet i stand, kan en budgiver kreve kopi av budjournalen i anonymisert form. Kopi av budjournal gis til kjøper og selger uten ugrunnet opphold etter at handel er kommet i stand. Hvis budgiver ønsker å være anonym, kan bud fremmes via en fullmektig. For mer informasjon om budgivningsprosessen, se «Forbrukerinformasjon om budgivning», som er vedlagt salgsoppgaven, eller ta kontakt med megler.
Vederlag megler
Fast provisjon: kr 40 000,00 Fakturagebyr per stk. kr 1500,- (Hvis vi skal ta foto og takst faktura) kr 0,00 Grunnpakke bolig info** kr 11 700,00 Markedspakke inkl. stor annonse på FINN.no, Emera digital mm kr 18 550,00 Oppgjørshonorar inkl. factoring kr 9 900,00 Tilretteleggingshonorar kr 10 000,00 Visnings-/overtagelseshonorar pr. stk. kr 2 000,00 Eierskiftegebyr kr 6 725,00 Utlegg: Selger dekker utlegg i henhold til oppdragsavtalen. Disse er estimert til ca. kr 23 625,00, og omfatter vanligvis innhenting av informasjon fra kommunen, eventuell forretningsfører, samt kopi av tinglyste dokumenter. Ved avbrutt oppdrag: Dersom oppdraget sies opp eller utløper uten at salget gjennomføres, har megler krav på rimelig vederlag for medgått tid og for utført arbeid. Dette omfatter blant annet vederlag knyttet til tilrettelegging, markedsføring og eventuelle avholdte visninger, samt påløpte utlegg. Timepris ved slik beregning er kr 3500.
Hvitvasking
Eiendomsmeglere er underlagt lov om hvitvasking, og er blant annet forpliktet til å gjennomføre kundetiltak av både selger og kjøper. Hvis kjøper ikke bidrar til at megler får gjennomført kundetiltak og dette fører til at avtalen ikke kan gjennomføres eller blir forsinket, er dette et mislighold fra kjøpers side. Et vesentlig mislighold kan gi selger rett til å heve avtalen og til å gjennomføre dekningssalg for kjøpers regning. Dersom selger ikke bidrar til at megler får gjennomført løpende kundetiltak underveis i oppdraget, må eiendomsmegler stanse gjennomføringen av transaksjonen. Selger vil i et slikt tilfelle ha misligholdt sine forpliktelser, og kjøper vil kunne ha et krav mot selger etter avhendingsloven. Hvis kundetiltak ikke lar seg gjennomføre, vil Emera eiendomsmegling ikke kunne bistå med handelen eller foreta oppgjør.
Personopplysningsloven
Personopplysninger blir behandlet i samsvar med personopplysningsloven. Se www.emera.no for vår personvernerklæring.
Oppdragsnummer
02260052
Vedlegg til salgsoppgave
Se alle dokumenter vedlagt i salgsoppgaven.
Status salgsoppgave
Salgsoppgave sist endret: 11. april 2026
Megler
Megler
Regine Hodt
Meglerforetaket
Emera No2 AS Org.nr: 934963407
Samarbeidspartnere og tilknyttede foretak
Emera Norge AS og eiendomsmeglingsforetakene som er tilknyttet Emera har samarbeid med forskjellige foretak som tilbyr forbrukerne produkter eller tjenester i forbindelse med et salgsoppdrag. Våre samarbeidspartene er:
Søderberg & Partners AS - formidler av boligselger- og boligkjøperforsikring Overo AS - leverandør av digitale oppgjørsskjemaer og overtakelsesprotokoller som også inneholder tilbud til forbruker om tilpassede strøm-, internett- og alarmtjenester.
Hvilke produkter/tjenester kjøper og selger får i forbindelse med oppdraget, kan variere ut fra hvor i landet eiendommen ligger.
Tilstandsrapport
Egenerklæring boligselgerforsikring
Salgsoppgave
Boligkjøperforsikring
Når du kjøper bolig, er det viktig å sikre seg mot uforutsette utgifter. Söderberg & Partners og Emera Eiendomsmegling hjelper deg med å skape trygghet i boligkjøpet.
Fritt meglervalg
Valg av megler skal være frivillig. Megler kan ikke inngå oppdrag om eiendomsmegling dersom inngåelsen av oppdraget er satt som vilkår i avtale om annet enn eiendomsmegling, for eksempel tilbud om lån eller andre banktjenester, jf. eiendomsmeglingsloven § 6-3 (3).