























SKJETTEN
Alingsåsveien 25
83 m2
|
3 390 000 kr
|
2 soverom
|
Andelsleilighet
|
Stor 3-roms oppussingsobjekt med attraktiv beliggenhet - Nytt bad fra 21/22 - Trappefri adkomst - Garasjeplass
Pris og areal
Prisantydning
3 390 000 ,-
Omkostninger
19 056 ,-
totalpris
3 776 365 ,-
felleskostnader
6 356 ,- per mnd
fellesgjeld
367 309 ,-
fellesformue
97 875 ,-
bruksareal
101 m2
internt bruksareal
83 m2
eksternt bruksareal
3 m2
Kort fortalt
Emera Eiendomsmegling v/ Eirik Blix har gleden av å presentere Alingsåsveien 25! Leiligheten har en svært sentral beliggenhet på Skjetten, hvor du bor i nærhet til alt av fasiliteter og servicetilbud. Bussen stopper like ved, og nærmeste dagligvare er kun minutter unna til fots. Leiligheten inneholder romslig stue, kjøkken, to gode soverom og et pent flislagt bad som ble renovert i regi av borettslaget i 2021/2022. Fra stuen er det utgang til innglasset balkong med plass til en hyggelig sittegruppe. Leiligheten disponerer i tillegg egen garasjeplass og flere boder. Høydepunkter: - 3-roms oppussingsobjekt med stort potensiale - Nytt bad fra 21/22 - Trappefri adkomst - Garasjeplass - 2 romslige soverom - Innglasset balkong - Disponerer 3 stk boder Velkommen til visning!
Nøkkelinfo
Boligtype
Andelsleilighet
Eierform
Andel
Antall soverom
2
antall bad
1
etasje
1
byggeår
1975
energimerking
G
tomteareal
14873.2 m2 (eiet)
garasje
Ja
veranda
Ja
Objektbeskrivelse
Tomten
Tomtestørrelse: 14873.2 m2 (eiet)
Tomten er flat og kupert og opparbeidet med plen, busker, blomsterbed og variert beplantning. Opparbeidet lekeplass på området. Asfaltert gårdsplass og internveier.
Byggeår
1975
Etasje
1
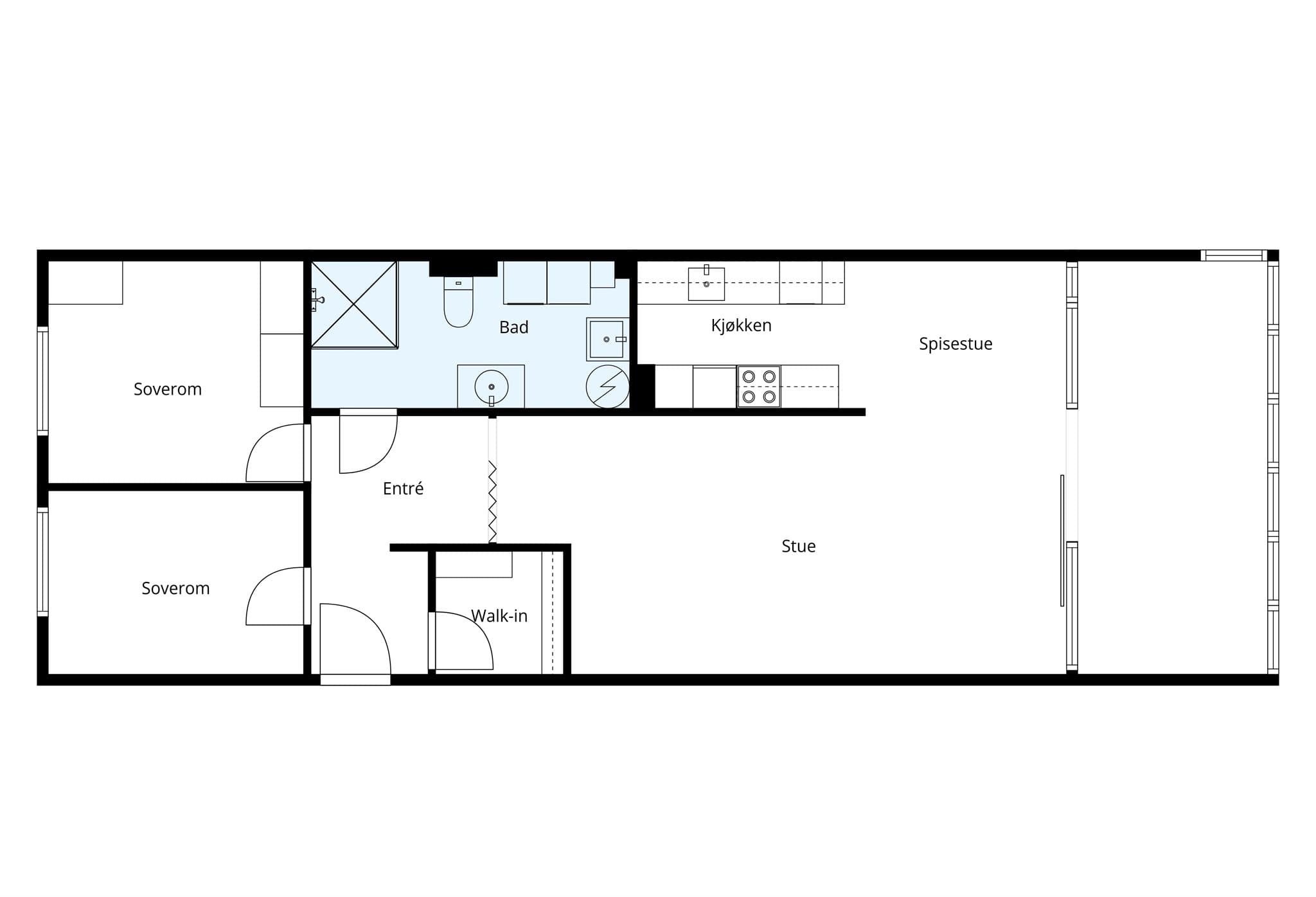
Arealer
BRA-i: 83m2
BRA-e: 3m2
Totalt BRA: 101m2
Arealbeskrivelse
1. etasje
BRA-I: 83 m² Entré, bad, bod, stue, kjøkken, soverom, soverom 2
BRA-B: 15 m² Innglasset balkong
Underetasje
BRA-E: 3 m² Bod, bod 2
Antall soverom
2
Antall rom
3
Innhold
Planløsning: 1.etg: Entré, bod, stue, kjøkken, bad, soverom, soverom 2.
Standard
Leiligheten er å anse som et oppussingsobjekt, men badet ble renovert i 2021/2022. Entrè: Romslig entrè med direkte adkomst til praktisk bod som tilbyr godt med lagringsplass. Stue: Leiligheten har en stor og luftig stue med god plass til sofakrok, mediemøblement og spisebord. Fra stuen er det utgang til en innglasset balkong på ca. 15 kvm. Kjøkken: Kjøkkenet har godt med skap- og benkeplass. Innredning med glatte fronter og benkeplate i laminat. Kjøleskap, komfyr, oppvaskmaskin medfølger. Bad: Delikat flislagt baderom, pusset opp i regi av borettslaget i 2021/2022. Badet fremstår funksjonelt og tidsriktig. Innredningen består av servant, klosett, dusj på gulv, utslagsvask av stål og opplegg for vaskemaskin/tørketrommel. Soverom: Leiligheten har 2 soverom av god størrelse. Garderobeskap på hovedsoverom medfølger. Ellers har begge soverommene god plass til seng, nattbord og skap. Lagringsplass: Det er godt med lagringsplass i innvendig bod. Ellers disponerer leiligheten to boder, målt til 1,7kvm og 1 kvm, samt et låsbart skap på ca. 0,4 kvm. Innvendig overflater, utover våtrom: - Gulv: Parkett, laminat. - Vegger: Tapetserte malte overflater. - Himling: Sparklet/pussede og malte overflater. Teknisk: - Varmtvannsbereder, med en kapasitet på ca. 194 liter, produsert i 2022. - Sikringer av automatsikringer. - Innvendige vannledninger er av plast (rør-i-rør). - Hovedstoppekran: Plassert i fordelerskap på bad. - Mekanisk avtrekk fra bad og kjøkken. Lufttilførsel via friskluftsventiler.
Innbo og løsøre
Salgsoppgaven inkluderer NEFs standardliste "Oversikt over løsøre og tilbehør", som legges til grunn med mindre annet er spesifisert i salgsoppgaven. Gjenstander som er nevnt i standardlisten, men som ikke finnes på eiendommen, vil heller ikke følge med i salget. Alt utstyr og installasjoner som medfølger overtas slik de er, uten garanti, med mindre det foreligger en gjeldende garanti fra produsent eller leverandør. Kjøper aksepterer at det kan forekomme hull og merker etter montering av inventar og utstyr som ikke er en del av overdragelsen. Alle skap i boligen medfølger.
Parkering
Leiligheten disponerer en garasjeplass (nr 103) i felles garasjeanlegg.
Sammendrag av selgers egenerklæring
Selger har lastet opp vedlegg til egenerklæringsskjemaet. Disse er vedlagt salgsoppgaven og interessenter oppfordres til å gjennomgå disse nøye før bud inngis. 2. Kjenner du til om det er utført arbeid på bad/våtrom? Svar: Ja, kun av faglært Beskrivelse: Badene i hele borettslaget ble rehabilitert av totalentreprenør i 2021/2022. Arbeid utført av: Sans bygg / OBOS prosjekt 2.1 Ble tettesjikt/membran/sluk oppgradert/fornyet? Svar: Ja Beskrivelse: Grunnpakken Alingsåsen Borettslag: • Riving, Snekker, Maling -Badet rives i sin helhet og bygges opp med nye membraner på gulv og vegger. -Nedsenket tak av gips i farge NCS-0502Y (eggehvit) -Nye gerikter (hvite NCS0502Y) -Innkassing av vegghengt toalett og fordelerskap for rør i en kasse som går fra gulv til tak med størrelse ca 25x80cm. • Rørlegger -Vegghengt toalett med soft-close sete. -Servantinnredning med speilskap, lys og servantbatteri -Dusjgarnityr, dusjbatteri og dusjvegger -Utslagsvask og tappekran -kjøkkenbatteri med avstengning for oppvaskmaskin. -Opplegg til vaskemaskin -Nye vannrør i sin helhet. -Vannrør til utstyr legges i vegg, eller synlig på vegg med forkrommede rør. -Nye avløpsrør frem til vannlås på kjøkken. -Nytt sluk i dusjsonen. -Sluk på vaskerom -Fordelerskap for vannrør. Plasseres over vegghengt toalett i hvitlakkert skap ca 50x50cm (det blir ikke mulighet for «hylle» over wc.) Eventuelt remomontering av øvrig utstyr kan avtales på førbefaring • Elektriker -10 stk downlights i himling med dimmer i sideleiligheter (gjelder for bad, wc og vaskerom) -4 stk downlights i himling med dimmer i midtleiligheter (Bad) -To kurser strøm til bad og to doble stikkontakter plassert ved vaskemaskin -Varmekabler • Flislegger -Flislegging av gulv og vegger med fliser fra utvalget i grunnpakken -Gulvfliser legges rettlagt som standard i prosjektet. 2.2 Er arbeidet byggemeldt? Svar: Ja Beskrivelse: Kjenner ikke detaljene i dette, men regner med det siden dette var et totalprosjekt. 4. Kjenner du til feil eller om har vært utført arbeid/kontroll på vann/avløp? Svar: Ja, kun av faglært Beskrivelse: Se beskrivelse over Arbeid utført av: Sans bygg / OBOS prosjekt 11. Kjenner du til om det er/har vært utført arbeid på el-anlegget eller andre installasjoner (f.eks. oljetank, sentralfyr, ventilasjon)? Svar: Ja, kun av faglært Beskrivelse: Utbedre, og lukket avvik etter eltilsyn. Arbeid utført av: Nordengen AS 11.1 Foreligger det samsvarserklæring (i henhold til forskrift om elektriske lavspenningsanlegg)? Svar: Ja 12. Kjenner du til om det er utført kontroll av el-anlegget og/eller andre installasjoner (f.eks. oljetank, sentralfyr, ventilasjon)? Svar: Ja Beskrivelse: Eltilsyn 31.03.2025, saken utbedret og avsluttet 07.03.2026 Samsvarserklæring: Det fremgår av selgers egenerklæringsskjema / tilstandsrapporten at det foreligger samsvarserklæring for det elektriske arbeidet i boligen. Det tas forbehold om at det kan være utført andre arbeider på det elektriske anlegget som ikke har samsvarserklæring.
Bygningssakkyndig
Joachim Andre Mæhlum Kirkerud
Byggemåte
Støpt plate på antatt komprimerte masser og/eller fjell. Yttervegger, etasjeskillere og takkonstruksjoner av armert betong. Flatt tak, antatt tekket med papp/folie. Taket er ikke besiktiget. Fasaden er forblendet med betongplater. I forbindelse med salget er det blitt utført en tilstandsrapport av en kvalifisert bygningssakkyndig. Rapporten gir en grundig vurdering av boligens tilstand og påpeker eventuelle avvik som ble oppdaget under befaringen. Tilstandsrapporten og selgers egenerklæring er vedlagt salgsoppgaven, og det er viktig at interessenter setter seg grundig inn i disse dokumentene før bud legges inn. Kjøper anses kjent med opplysninger som kommer tydelig frem i tilstandsrapporten, og det vil ikke være mulig å gjøre slike forhold gjeldende som en mangel. Spesielt forhold som er vurdert med TG2 og TG3 bør vurderes nøye, da de indikerer avvik fra normal slitasje og/eller høy alder, noe som kan innebære behov for utbedringer. Bygningsdeler som er merket med TGIU er ikke blitt vurdert av takstmannen. Beskrivelsen av boligen nedenfor er hentet direkte fra tilstandsrapporten: LIM INN BYGGEMÅTE FRA TILSTANDSRAPPORT Bygningsdeler vurdert med TG2: - Utvendig > Vinduer Vinduene har nådd en alder der det erfaringsmessig foreligger en usikker fremtidig funksjon. Over tid svekkes kantforseglingen mellom glasslagene, noe som øker risikoen for punktering og redusert isolasjonsevne. Utskifting av vinduer bør planlegges. - Utvendig > Dører Balkongdøren har nådd en alder der det erfaringsmessig foreligger en usikker fremtidig funksjon. Over tid svekkes kantforseglingen mellom glasslagene, noe som øker risikoen for punktering og redusert isolasjonsevne. Utskifting av dører med isolerglass bør planlegges. Bygningsdeler vurdert med TG3: -INGEN. Bygningsdeler som ikke har blitt undersøkt (TGIU): -INGEN. HMS (forhold av betydning for Helse, miljø og sikkerhet): - INGEN.
Omkostninger
3 390 000 (Prisantydning) 367 309 (Andel av fellesgjeld) 3 757 309 (Pris inkl. fellesgjeld) Omkostninger 9 300 (Boligkjøperforsikring (valgfritt)) 260 (Panteattest kjøper) 545 (Tinglysingsgebyr BRL - pantedokument) 545 (Tinglysingsgebyr BRL - skjøte) 8 406 (Gebyr utlysing forkjøpsrett) 19 056 (Omkostninger totalt) 3 776 365 (Totalpris inkl. omkostninger)
Felleskostnader
6 356,- per mnd
Garasje, styrehonorar, forretningsførsel, revisjonshonorar, felles bygningsforsikring, diverse vedlikehold, strøm fellesarealer, kommunale avgifter, renovasjon, eiendomsskatt, finanskostnader\nedbetaling gjeld, premie sikringsordning, diverse konsulenttjenester, vaktmestertjenester og grunnpakke TV og internett. Felleskostnader utgjør: Felleskostnader kr. 4 148,- Parkeringsplass kr. 150,- Stipulerte avdrag kr. 577,- Stipulerte rente kr. 1 481 ,- Totalt kr. 6 356,-
Kommunale avgifter
Kommunale avgifter er inkludert i felleskostnader.
Fellesformue
97 875,-
Fellesgjeld
367 309,-
Kjøperen må være innforstått med at fellesgjelden i borettslaget og fellesutgiftene kan variere over tid, også at den kan øke som følge av beslutninger i borettslagets styre eller generalforsamlinger.
Bank: HANDELSBANKEN Rente: 4,85% Annuitetslån, Info pr 30.04.26 Termin: 12 Total restgjeld: 107 625 257 ,- Andel saldo: 367 309,- Løpetid: 07.10.22 - 30.09.52
Sikringsordning fellesgjeld
Selskapet er tilknyttet en sikringsordning som gir en sikkerhet for manglende innbetaling av felleskostnader.
Formuesverdi
Formuesverdi primær: 1 052 949 pr. 2024
Formuesverdi sekundær: 4 211 797 pr. 2024
Skatteetaten beregner en boligverdi (beregnet markedsverdi for bolig) basert på SSBs statistiske opplysninger om omsatte boliger. I beregningen tas det hensyn til boligens beliggenhet, areal, byggeår og type bolig. Stortinget har vedtatt en ny modell for beregning som skal benyttes fra og med inntektesåret 2026, og den nye modellen henter informasjon om omsatte boliger fra grunnkretser i stedet for kommuner. Formuesverdien er en prosentandel av den beregnede boligverdien. Den nye utregningsmodellen kan medføre en høyere eller lavere markedsverdien enn tidligere. Det tas derfor forbehold om at formuesverdien kan bli endret og eventuelt øke ved endelig fastsettelse i skatteåret. For mer informasjon om formuesverdi, se Skatteetatens nettsider.
Beliggenhet
Eiendommen ligger i et sentralt, populært og meget barnevennlig boligområde på Skjetten i Lillestrøm kommune, med nærhet til skoler, flere barnehager, samt et rikt utvalg av fasiliteter og servicetilbud. I nærmiljøet finnes flere kunstgressbaner, lekeplasser, idrettshall, svømmehall, skateramp, alpinanlegg, golfbane, klatrepark og treningssentre, noe som gjør området til et attraktivt sted å bosette seg. Boligen ligger også i nærhet til skog og mark med fine turområder og preparerte lysløyper, samt Nebbursvollen Friluftsbad som er Lillestrøms populære badested med basseng, sandvolleyball baner, grøntområder, kiosk m.m. Området har også asfalterte gang- og sykkelveier i naturskjønne omgivelser langs Nitelva. Det er etablert grillplasser på fellesområdet til borettslaget, til fri benyttelse. I dumpa nedenfor blokka er det også en flott grillplass med gapahuk. Det er gangavstand til Skjetten Nærsenter som innehar et godt utvalg. Det er kort vei til Strømmen Storsenter med over 200 butikker og tilknyttede virksomheter. Det finnes ellers gode kjøpesentre i Lillestrøm og Lørenskog, der sistnevnte har både Metro og Lørenskog Storsenter/Triaden.
Adkomst
På høyre side i annonsen finner du et kartutsnitt. Ved å klikke på kartet kan du enkelt planlegge din rute fra valgt startpunkt og helt frem til boligen. Det vil være skiltet ved fellesvisninger for enkel orientering.
Bebyggelse
Området består hovedsakelig av blokkbebyggelse.
Skolekrets
Ta kontakt med skolekontoret for nærmere informasjon.
Offentlig kommunikasjon
Det er kort vei til busstopp ved Skjetten nærsenter. I rushtiden går det Expressbuss fra Skjetten til og fra Oslo med en reisetid på ca. 30 min. Sjekk ruter.no for rutetabell. Tog fra Sagdalen og Lillestrøm. Sjekk vy.no for rutetabell.
Energiklasse
G
Oppvarming
Elektrisk oppvarming. Elektriske varmekabler på bad.
Om borettslaget
Alingsåsveien Borettslag Org.nr: 948037815
Alingsåsveien Borettslag ble stiftet oktober 1974 og består av 295 andelsboliger, fordelt på 8 bygninger med adresse Alingsåsveien 1 - 45. Borettslaget har egen hjemmeside: https:/ / alingsasveien.borettslag.net/ . Borettslagets styre har kontor i Alingsåsveien 25 og treffes der hver annen onsdag kl. 19.00 - 19.30 og per epost styret@alingsasveien.no. Vaktmester kan kontaktes på telefon 45 60 29 97 hverdager kl. 08.00 - 16.00 og via e-post til vaktmester@alingsasveien.no. Borettslaget har rehabilitert alle rør og våtrom i 2021-2022. Alle avløpsrør, sluk og vannrør er nye. Bad revet og fullstendig bygget opp på nytt. Prosjektet er ferdigstilt i 2022.
Regnskap / Budsjett / Kostnadsøkninger
Megler har kopi av budsjett for år: 2025 og årsregnskap for år: 2024. Dette kan interessenter få oversendt. Det fremkommer av innkalling til årsmøte 2024 at styret arbeider med følgende oppgaver: På sikt må det gjøres noe med parkeringshuset. Gulvene består av betong, hvilket betyr at alt vann fra bilene renner ned i gulvet. Spesielt på vinteren kan vannet inneholde salter og andre veikjemikalier som på sikt kan gjøre skade på betongen. Det kan derfor hende at leien for parkeringsplassene økes. Det er i 2024 ikke planlagt vedlikehold utover vanlig vedlikehold. Det kan være nødvendig å foreta noe med dreneringen rundt garasjeanlegget grunnet problemer med vann. Det jobbes også med vurderinger rundt fremtidig vedlikehold av garasjen. Det fremgår av innkalling til årsmøte 2025: Andre planer: På sikt må det gjøres noe med parkeringshuset, men styret vet ikke når. Gulvene består av betong, hvilket betyr at alt vann fra bilene renner ned i gulvet. Spesielt på vinteren kan vannet inneholde salter og andre veikjemikalier som på sikt vil gjøre skade på betongen. Det kan derfor hende at leien for parkeringsplassene økes. Kjøper må derfor påregne økning i felleskostnader og fellesgjeld på sikt i forbindelse med fremtidig vedlikehold av parkeringshuset. Vedlikehold: Borettslaget har følgende planer for vedlikehold: I 2025 planlegges det å bytte til ledlamper i de tidligere kjølebodene og andre innvendige boder som ikke har ledlamper. Dette skyldes at det viser seg vanskelig å få kjøpt lyskilder med riktig sokkel. Ut over dette er det i 2025 ikke planlagt vedlikehold utover vanlig vedlikehold. Det jobbes med vurderinger rundt fremtidig vedlikehold av parkeringshuset. Det fremgår av protokoll fra årsmøte 2025: Nedsettelse av arbeidsgruppe for enhetlig utforming av gjerder på hagesiden av blokkene. Bakgrunn Per i dag er det store variasjoner i materialvalg, høyde og utforming av hagegjerder på baksiden av borettslagets blokker. Dette skaper et uensartet uttrykk, noe som kan påvirke både estetikken og helhetsinntrykket av borettslaget. Et mer enhetlig utseende vil kunne: -Skape et harmonisk og estetisk helhetsinntrykk for borettslaget. -Øke verdien på boligene ved å gi et mer gjennomført og profesjonelt preg. -Sikre felles retningslinjer for alle andelseiere som disponerer hageparsell. For å sikre en grundig prosess foreslås det at borettslaget oppretter en arbeidsgruppe bestående av andelseiere med underetasjer og hageparseller, samt eventuelt andre interesserte andelseiere. Arbeidsgruppen skal jobbe med forslag til enhetlige retningslinjer for utforming av gjerder på hagesiden. Arbeidet skal koordineres i samarbeid med styret, og resultatet må godkjennes av styret. Styrets innstilling: Saken tas til orientering, og styret støtter opprettelsen av arbeidsgruppen. Styreleder informerer pr. mail den 05.02.2026: Det er ingen umiddelbare planer om økning av felleskostnader. Parkeringshuset må rehabiliteres, men prosjektet er ikke igangsatt og vil tidligst skje i 2027. Det betyr da låneopptak og følgelig økning i felleskostnader. For øvrig er det ingen planer i 2026 utover løpende vedlikehold.
Forretningsfører
Bori Bbl
Styregodkjennelse
Kjøper skal godkjennes av styret i borettslaget. Dette kan ikke nektes uten saklig grunn. Kjøper er forpliktet til å gjennomføre handelen uavhengig av om kjøper på overtakelsestidspunktet er godkjent av borettslaget som ny andelseier. Risikoen for å bli godkjent som ny andelseier påhviler kjøper. Dersom kjøper på overtakelsestidspunktet ikke er godkjent som ny andelseier, har kjøper dog ikke rett til å ta eiendommen i bruk, jf. borettslagslovens § 4-5 (2). Blir kjøper ikke godkjent som ny eier må kjøper besørge videresalg av andelen. Hjemmel overføres til kjøper og oppgjør utbetales til selger.
Forkjøpsrett
Kommunen har tinglyst forkjøpsrett. Borettslaget og boligbyggelagets medlemmer har forkjøpsrett. Kontakt megler for mer informasjon. Forkjøpsretten avklares parallelt med salget, og meldefrist er 28.04.2026. Konferer eventuelt med megler for mer informasjon om forkjøpsretten, herunder frist for avklaring av denne.
Forsikringsselskap og polisenummer felles forsikring
Protector Forsikring ASA
2226401-2.1
Vedtekter / husordensregler
Megler har kopi av selskapets husordensregler og vedtekter. Dette kan interessenter få oversendt. Spørsmål vedrørende dyrehold rettes til megler.
Husdyrhold
Dyrehold skal ikke være til sjenanse for andre beboere. Hunder skal luftes i bånd. Dyreekskrementer skal fjernes øyeblikkelig. Hannkatter skal kastreres, hunnkatter skal gis p-piller eller sprøyte.
Adgang til utleie
Det er begrenset adgang til å leie ut bolig i borettslag. Med styrets godkjenning og under visse vilkår kan boligen leies ut i inntil 3 år, jf. borettslagsloven § 5-3 til § 5-10. Andelseier som selv bor i boligen, har imidlertid rett til å leie ut deler av boligen til andre uten styregodkjenning, jf. borettslagsloven § 5-4. Korttidsutleie er tillatt i opptil 30 døgn per år uten samtykke fra styret.
Ferdigattest / brukstillatelse
Det foreligger ferdigattest for "boligblokk" datert: 04.12.1975. Det foreligger ferdigattest for "vesentlig endring/ rep. - Boligblokk på 5 eller flere etasjer" datert: 06.12.2004. Det foreligger ferdigattest for modernisering av baderom datert 16.01.2023. Ferdigattest er en sluttattest fra bygningsmyndighetene om at et søknadspliktig tiltak er ferdigstilt. At ferdigattest eksisterer gir ingen garanti for at det ikke er utført arbeid på boligen som ikke er byggemeldt eller godkjent. Godkjente bygningstegninger fra kommunen samsvarer ikke med dagens situasjon/ planløsning. Godkjente tegninger viser separat toalettrom og bad. Disse er nå slått sammen til større bad. Dette er ikke søknadspliktig. Godkjente bygningstegninger ligger vedlagt i salgsoppgaven.
Vei, vann og avløp
Adkomst fra offentlig vei inn på borettslagets eiendom. Eiendommen er tilknyttet offentlig vannforsyning og offentlig avløpsnett via private stikkledninger.
Regulerings- og arealplaner
Eiendommen er regulert til boligbebyggelse, og inngår i: - Reguleringsbestemmelser i tilknytning til reguleringsplan for Skjettenområdet, stadfestet 27.06.1969. - Kommuneplanens arealdel 2023-2035. Eiendommen grenser til hensynnsone H560_10, bevaring naturmiljø, raviner Eiendommen ligger i følge kart fra kommunen i område med mulighet for marin leire, hvor muligheten er kategorisert til "svært stor". Plankart ligger vedlagt i salgsoppgaven. Planer med bestemmelser kan sees hos megler. For ytterligere spørsmål oppfordres det til å ta kontakt med kommunen.
Tinglyste heftelser og rettigheter
På eiendommen er det tinglyst følgende heftelser og rettigheter som følger eiendommens matrikkel ved overskjøting til ny hjemmelshaver: 3205/69/42: 29.06.1977 - Dokumentnr: 4241 - Forkjøpsrett BESTEMMELSER OM FORKJØPSRETT MED FLERE BESTEMMELSER Gjelder denne registerenheten med flere Forklaring: Borettslaget har disposisjonsrett, samt rett og plikt til å delta med ideell andel i fremtidig vedlikehold av fellesarealer som er felleseie med øvrige borettslag i Skjettenbyen. Biloppstillingsplasser på borettslagenes respektive eiendommer disponeres av borettslagene de hører til etter antall leiligheter. Vedlikehold av p-plasser er underlagt Fellesorganet i Skjettenbyen. Skedsmo kommune har vederlagsfri rett til å ha liggende, samt utføre inspeksjon/ vedlikehold av sine anlegg på eiendommen (vann- og avløp). Skedsmo og Sørum elektrisitetsforskyningm A/ S Kykkelsrud og Televerket har rett til å ha anlegg, samt inspeksjon/ vedlikehold av disse (elektrisk). Fellesorgan har rett til inspeksjon/ vedlikehold til fellesantenneanlegg. Borettslaget har rett og plikt til å bidra med sin ideelle andel av driftsutgiftene til Fellesorgan utgått fra borettslagene på Skjetten. Skedsmo kommune kan eie ihht lov, og har forkjøpsrett på vegne av enkeltpersoner, til hver tredje andel som overdras 07.06.1978 - Dokumentnr: 3691 - Erklæring/avtale Rettighetshaver: Televerket Bestemmelser om telefonledninger/stolper/kabler/grøfter m.v. Forklaring: Skedsmo kommune fikk tillatelse til å etablere og benytte telefonkabel over borettslagets eiendom.
Legalpant
Borettslaget har legalpant på inntil 2G som sikkerhet for betaling av felleskostnader. Dette betyr at borettslaget har prioritet over tinglyste lån når det gjelder betaling av felleskostnader, og kan kreve inn pengene før andre kreditorer, selv om de har lån registrert på andelen.
Boligkjøperforsikring
Kjøper har anledning til å tegne boligkjøperforsikring. Vedlagt i salgsoppgaven følger informasjon om Boligkjøperforsikring fra Söderberg & Partners. Boligkjøperforsikring er en rettshjelpsforsikring som gir trygghet og profesjonell juridisk hjelp dersom det oppdages uventede feil eller mangler ved boligen de neste fem årene. Les mer om Boligkjøperforsikring i vedlagte materiell eller på https://www.soderbergpartners.no/eiendom/boligkjoper/
Diverse
Borettslagsmodellen innebærer at borettslaget eier eiendommen, mens andelseierne eier andeler i borettslaget, som gir borett til en bestemt bolig. Andelseierne har ikke personlig ansvar for borettslagets fellesgjeld, men de må dekke borettslagets løpende utgifter. Manglende innbetaling av fellesutgiftene som følge av andre andelshaveres mislighold, eller dersom borettslaget sitter på fraflyttede og/eller usolgte andeler, må dekkes av de øvrige andelseierne. Borettslaget har legalpanterett i andelen for krav på dekning av felleskostnader og andre krav fra borettslaget, på inntil 2 ganger folketrygdens grunnbeløp. Kjøper og selger er forpliktet til å undertegne standard kjøpekontrakt utarbeidet av Emera i forbindelse med eiendomstransaksjonen. Kjøpekontrakten kan besiktiges hos eiendomsmegler før bud inngis. Kontakt eiendomsmegler for spørsmål. Leiligheten blir ikke ytterligere vasket før overtakelse. Det gjøres oppmerksom på at vedlagte plantegninger ikke stemmer hva gjelder faktisk innredning og møblering etc. Den er ikke målbar, avvik og feil kan forekomme.
Sentrale lover
Regelverk og generelle opplysninger Boligen selges med det inventar og utstyr som i henhold til gjeldende lover, forskrifter eller offentlige pålegg skal følge med eiendommen, jf. avhendingsloven § 3-4. Fastmonterte eller spesialtilpassede installasjoner og innredning som anses som varig tilknyttet boligen, følger normalt med i handelen, med mindre det foreligger en særskilt avtale mellom partene om noe annet, jf. avhendingsloven § 3-5. En standard tilbehørsliste utarbeidet av Norges Eiendomsmeglerforbund (NEF) følger salgsoppgaven, og gjelder som utgangspunkt for hva som inkluderes i salget – med mindre avvik er tydelig avtalt mellom kjøper og selger. Om informasjonsgrunnlaget Opplysninger om boligens størrelse og utforming, både innvendig og utvendig, bygger på informasjon hentet fra vedlagte tilstands- og boligsalgsrapport. Innholdet i salgsoppgaven er basert på selgers informasjon, fagkyndig vurdering, samt opplysninger fra offentlige registre som kommunen og Kartverket. Det er viktig at kjøper setter seg grundig inn i alle salgsdokumentene, herunder salgsoppgave, tilstandsrapport og selgers egenerklæring. Kjøper anses for å være kjent med forhold som er tydelig beskrevet i salgsdokumentene, slike forhold kan ikke senere gjøres gjeldende som en mangel ved boligen. Dette gjelder uavhengig av om dokumentene er lest. Det kan være forskjell mellom boligens faktiske bruk av rom og det som er godkjent av myndighetene. Alle interessenter anbefales derfor å undersøke eiendommen nøye, gjerne sammen med fagperson, før bud gis. Dersom kjøper velger å kjøpe uten å ha sett eiendommen, kan det ikke etter overtakelse reklameres på forhold som burde ha vært oppdaget ved en ordinær gjennomgang. Dersom det oppstår behov for ytterligere avklaringer, oppfordres interessenter til å kontakte eiendomsmegler eller egne rådgivere før de gir bud. Slitasje og bruk Det må også forventes at eiendommer som har vært i bruk, vil kunne ha tegn til slitasje og eventuelle skader. Slik normal bruksslitasje og behov for vedlikehold må kjøper påregne, og dette vil normalt ikke gi grunnlag for reklamasjon eller prisavslag. Avtalerettslig Partenes rettigheter og plikter reguleres av avtalen mellom partene, og all tilgjengelig dokumentasjon som forelå for kjøper før handelen ble inngått. I tillegg gjelder avhendingsloven. Det gjelder ulike avtalevilkår avhengig av om kjøper er forbrukerkjøper eller ikke, og dette er nærmere forklart nedenfor. Budgivning og selgers vurdering På grunn av ulike ansvarsforhold kan selger velge å prioritere bud fra ikke-forbrukere, selv om budet er lavere enn et forbrukerbud. Når kjøper ikke er forbruker, kan selges ansvar begrenses ettersom boligen selges «som den er», noe som kan være av verdi for selger. Det understrekes at selger står fritt til å velge hvilket bud som aksepteres, og er ikke forpliktet til å velge det høyeste. Alle budgivere må ved inngivelse av bud opplyse om de opptrer som forbruker eller som næringsdrivende/person som handler hovedsakelig som ledd i næringsvirksomhet. Det vil opplyses hvis konkurrerende bud kommer fra en ikke-forbruker. Forbrukerkjøp – definisjon og vilkår: Et forbrukerkjøp foreligger når en fysisk person kjøper eiendom uten at formålet hovedsakelig er knyttet til næringsvirksomhet. En eiendom anses å ha en mangel dersom den ikke oppfyller kravene som følger av avtalen, eller ved brudd på bestemmelser i avhendingsloven §§ 3-2 til 3-8. Det samme gjelder hvis eiendommen ikke samsvarer med det som med rimelighet kunne forventes ut fra blant annet alder, type og synlig tilstand – eller hvis det er tilbakeholdt, eller gitt feilaktige opplysninger, og dette har påvirket avtalen. Dersom det er avvik mellom oppgitt og faktisk innvendig areal på minst 2 % og samtidig minst 1 kvadratmeter, kan dette utløse rett til kompensasjon etter § 3-3 i avhendingsloven. Ved beregning av krav om prisavslag eller erstatning må kjøper selv dekke kostnader med inntil kr 10 000 (som en egenandel). Ikke-forbruker – definisjon og vilkår: Dersom kjøper er en juridisk enhet, eller en fysisk person som handler i næringssammenheng, regnes kjøpet ikke som et forbrukerkjøp. Ved slike kjøp selges eiendommen «som den er», og selgers ansvar er begrenset til det som følger direkte av avtalen, jf. avhendingsloven § 3-9. I disse tilfellene fravikes § 3-3 andre ledd, og eventuelle arealavvik vurderes etter § 3-8. Kjøperens plikt til å foreta grundige undersøkelser gjelder også fullt ut for kjøpere som ikke omfattes av forbrukerdefinisjonen.
Viktig informasjon om budgivning
Bud kan legges inn på nettannonsen på "gi bud" knappen eller via hjemmesiden. Ved elektronisk budgivning kan bud legges inn trygt og enkelt med bank-ID. Eiendomsmegler kan også kontaktes for tilsendelse av budkjema, og budskjema finnes også i salgsoppgaven. Alle bud skal inngi skriftlig til eiendomsmegler. Kravet til skriftlighet gjelder også ved forhøyelse av bud, motbud og selgers aksept eller avslag. Før et bud kan formidles til selger må megler innhente gyldig legitimasjon og signatur fra budgiver. Kravet til legitimasjon og signatur er oppfylt dersom budgiver bruker e-signatur som f eks. bankID. Etter det første budet er inngitt, kan budgiver inngi bud pr e-post eller pr SMS til megler. Hvis budgiver skal by på eiendommen i henhold til en kjøpsfullmakt må megler kontaktes og fullmakten oversendes før budgivning. Et bud bør inneholde eiendommens adresse (eventuelt gnr/bnr), kjøpesum, budgivers kontaktinformasjon, finansieringsplan, akseptfrist, overtakelsesdato og eventuelle forbehold som for eksempel usikker finansiering, salg av nåværende bolig ol. Normalt vil ikke et bud med forbehold bli akseptert før forbeholdet er avklart. Konferer gjerne med megler før bud avgis. Megler skal legge til rette for en forsvarlig avvikling av budrunden. I forbrukerforhold (dvs. der selger er forbruker) skal megleren ikke formidle bud med kortere akseptfrist enn til kl. 12.00 første virkedag etter siste annonserte visning. Senere bud må ha en akseptfrist som er lang nok til at budet og eventuelle forbehold kan videreformidles til alle involverte parter slik at disse får tid til å områ seg, jf. forskrift om eiendomsmegling § 6-3. Akseptfrist bør derfor være på minimum 30 minutter, og budforhøyelser bør skje senest 10 minutter før fristens utløp. Dersom bud inngis med en frist som åpenbart er for kort til at megleren kan avvikle budrunden på en forsvarlig måte, vil megler fraråde budet. Bud som har forbehold om konfidensialitet ("hemmelige bud") vil ikke bli formidlet til selger. Alle interessenter oppfordres til å inngi bud via eiendomsmegler. Eiendomsmegler skal så snart som mulig bekrefte skriftlig overfor budgivere at budene deres er mottatt, og vil uoppfordret gi sin vurdering av det enkelte bud overfor selgeren. Etter at handel har kommet i stand, eller dersom en budrunde avsluttes uten at handel er kommet i stand, kan en budgiver kreve kopi av budjournalen i anonymisert form. Kopi av budjournal gis til kjøper og selger uten ugrunnet opphold etter at handel er kommet i stand. Hvis budgiver ønsker å være anonym, kan bud fremmes via en fullmektig. For mer informasjon om budgivningsprosessen, se «Forbrukerinformasjon om budgivning», som er vedlagt salgsoppgaven, eller ta kontakt med megler.
Vederlag megler
Fast provisjon: kr 39 900,00 Eiendomsregisteret og e-signeringer kr 1 800,00 Markedspakke inkl. fotograf, boligfilm, stor annonse på FINN.no, Ukens bolig i 7 dager, Emera digital mm kr 23 500,00 Oppgjørshonorar inkl. factoring kr 9 900,00 Tilretteleggingshonorar kr 16 900,00 Visnings-/overtagelseshonorar pr. stk. kr 3 000,00 Eierskiftegebyr kr 6 725,00 Utlegg: Selger dekker utlegg i henhold til oppdragsavtalen. Disse er estimert til ca. kr 9 870,00, og omfatter vanligvis innhenting av informasjon fra kommunen, eventuell forretningsfører, samt kopi av tinglyste dokumenter. Total kostnad ved salg til prisantydning: kr 64 970,00 Dette inkluderer både vederlag og stipulerte utlegg. Ved avbrutt oppdrag: Dersom oppdraget sies opp eller utløper uten at salget gjennomføres, har megler krav på rimelig vederlag for medgått tid og for utført arbeid. Dette omfatter blant annet vederlag knyttet til tilrettelegging, markedsføring og eventuelle avholdte visninger, samt påløpte utlegg. Timepris ved slik beregning er kr 3500.
Hvitvasking
Eiendomsmeglere er underlagt lov om hvitvasking, og er blant annet forpliktet til å gjennomføre kundetiltak av både selger og kjøper. Hvis kjøper ikke bidrar til at megler får gjennomført kundetiltak og dette fører til at avtalen ikke kan gjennomføres eller blir forsinket, er dette et mislighold fra kjøpers side. Et vesentlig mislighold kan gi selger rett til å heve avtalen og til å gjennomføre dekningssalg for kjøpers regning. Dersom selger ikke bidrar til at megler får gjennomført løpende kundetiltak underveis i oppdraget, må eiendomsmegler stanse gjennomføringen av transaksjonen. Selger vil i et slikt tilfelle ha misligholdt sine forpliktelser, og kjøper vil kunne ha et krav mot selger etter avhendingsloven. Hvis kundetiltak ikke lar seg gjennomføre, vil Emera eiendomsmegling ikke kunne bistå med handelen eller foreta oppgjør.
Personopplysningsloven
Personopplysninger blir behandlet i samsvar med personopplysningsloven. Se www.emera.no for vår personvernerklæring.
Oppdragsnummer
04260105
Status salgsoppgave
Salgsoppgave sist endret: 22. april 2026
Megler
Ansvarlig megler
Eirik Blix
Megler
Eirik Blix
Meglerforetaket
Meglerhuset Romerike AS Org.nr: 936357660
Samarbeidspartnere og tilknyttede foretak
Emera Norge AS og eiendomsmeglingsforetakene som er tilknyttet Emera har samarbeid med forskjellige foretak som tilbyr forbrukerne produkter eller tjenester i forbindelse med et salgsoppdrag. Våre samarbeidspartene er:
Søderberg & Partners AS - formidler av boligselger- og boligkjøperforsikring Overo AS - leverandør av digitale oppgjørsskjemaer og overtakelsesprotokoller som også inneholder tilbud til forbruker om tilpassede strøm-, internett- og alarmtjenester.
Hvilke produkter/tjenester kjøper og selger får i forbindelse med oppdraget, kan variere ut fra hvor i landet eiendommen ligger.
Egenerklæring boligselgerforsikring
Tilstandsrapport
Energiattest
Salgsoppgave
Boligkjøperforsikring
Når du kjøper bolig, er det viktig å sikre seg mot uforutsette utgifter. Söderberg & Partners og Emera Eiendomsmegling hjelper deg med å skape trygghet i boligkjøpet.
Fritt meglervalg
Valg av megler skal være frivillig. Megler kan ikke inngå oppdrag om eiendomsmegling dersom inngåelsen av oppdraget er satt som vilkår i avtale om annet enn eiendomsmegling, for eksempel tilbud om lån eller andre banktjenester, jf. eiendomsmeglingsloven § 6-3 (3).