

















DALGÅRD
Anders Wigens veg 28C
34 m2
|
2 450 000 kr
|
Eierseksjon
|
Pen & lys selveierleilighet fra 2006 | Sørvendt terrasse | Sovealkove | Gode bussforbindelser til sentrum & studiesteder
Pris og areal
Prisantydning
2 450 000 ,-
Omkostninger
77 740 ,-
totalpris
2 604 563,2 ,-
felleskostnader
2 397,65 ,- per mnd
fellesgjeld
76 823,2 ,-
fellesformue
13 032 ,-
bruksareal
39 m2
internt bruksareal
34 m2
eksternt bruksareal
5 m2
Kort fortalt
Eskil Wahl v/ Emera Eiendomsmegling ønsker velkommen til Anders Wigens veg 28C! Lys og pen selveierleilighet med rolig og attraktiv beliggenhet på Dalgård. Her bor du tilbaketrukket, samtidig som du har kort vei til Trondheim sentrum, studiesteder og servicetilbud. Leiligheten har en smart planløsning med åpen stue- og kjøkkenløsning og sovealkove. Fra stuen er det utgang til en solrik, sørvendt terrasse hvor man virkelig kan nyte fine sommerdager. Her bor du med nærhet til dagligvare, kollektivtransport og flotte turmuligheter i Bymarka. Boligen har en utvendig sportsbod på ca. 5 kvm. Høydepunkter: - Sovealkove - Sørvendt terrasse - God planløsning - Rolig beliggenhet - Gode bussforbindelser - 11 p-plasser på deling for de mindre leilighetene - Bod på 5 kvm Velkommen!
Nøkkelinfo
Boligtype
Eierseksjon
Eierform
Selveier
antall bad
1
etasje
1
byggeår
2006
energimerking
C
Objektbeskrivelse
Tomten
Eiet tomt, eid av sameiet.
Byggeår
2006
Etasje
1
Arealer
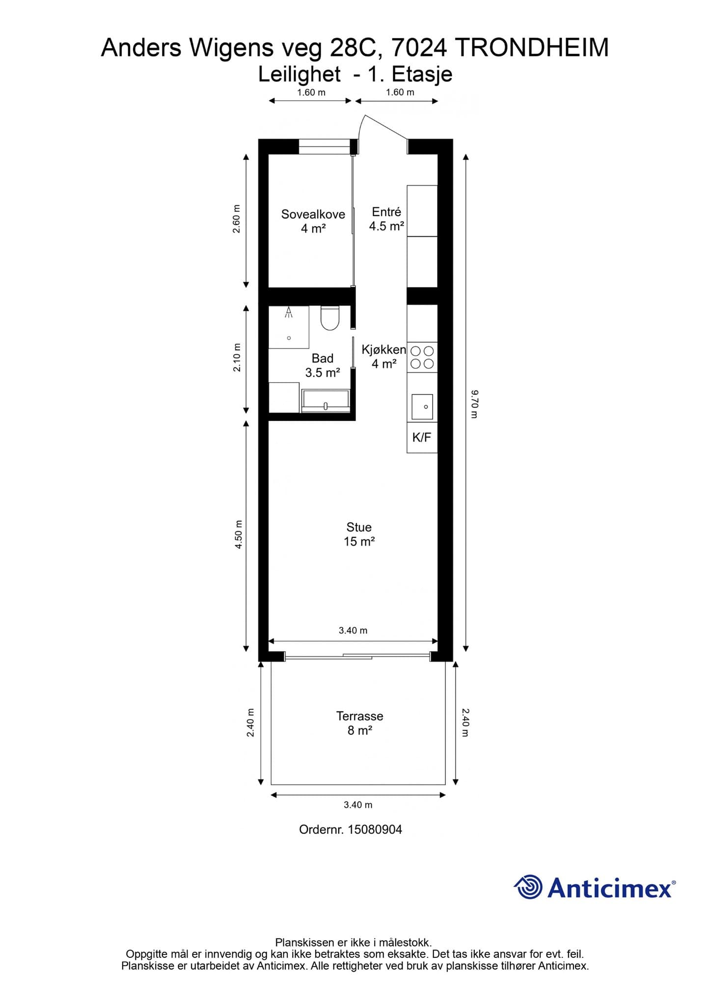
BRA-i: 34m2
BRA-e: 5m2
Totalt BRA: 39m2
TBA: 8m2
Arealbeskrivelse
Leilighet
1. etasje
BRA-I: 34 m² Entre, sovealkove, bad, kjøkken og stue.
BRA-E: 5 m² Utvendig bod.
1. etasje
8 m² Terrasse.
Fellesarealer og rettigheter til bruk
Det gjøres særskilt oppmerksom på at boden som er medtatt i BRA-e og totalt BRA, ligger på sameiets fellesareal, men disponeres av denne seksjonen. Sameiet kan på et senere tidspunkt omdisponere bruken av dette arealet.
Bygningssakkyndiges kommentar til arealoppmåling
På befaringsdagen ble det ikke avdekket bodarealer på grunn av manglende informasjon. Ifølge huseier følger det med en utvendig bod på 5 m2. Forholdet er ikke videre undersøkt i denne rapporten.
Antall rom
1
Innhold
Leiligheten ligger i 1. etasje og består av følgende rom: Entré, sovealkove, bad, kjøkken og stue. Fra stuen er det utgang til en terrasse på 8 m². Leiligheten disponerer en utvendig bod på 5 m².
Standard
Velkommen hjem! Entré Leiligheten har en innbydende entré med plass til oppbevaring av yttertøy og sko. Entréen gir et godt førsteinntrykk og leder naturlig videre inn i leilighetens øvrige rom. Stue Lys og pen stue med store vindusflater som gir rikelig med naturlig lysinnslipp. Stuen har god plass til sofagruppe samt en mindre spisegruppe. Stue og kjøkken er til sammen ca. 19 kvm og har en åpen løsning som bidrar til en luftig og trivelig romfølelse. Fra stuen er det utgang til en herlig sørvendt terrasse på ca. 8 kvm med svært gode solforhold. Terrassen er overbygd, noe som gjør den anvendelig gjennom flere årstider, og her ligger forholdene godt til rette for å nyte fine sommerdager. Kjøkken Kjøkkenet har et tidløst uttrykk med trefargede fronter som skaper en varm og stilren atmosfære. Det er godt med skap- og benkeplass, og kjøkkenet er utstyrt med integrert stekeovn, platetopp og oppvaskmaskin. Den åpne løsningen mot stuen gjør kjøkkenet til en naturlig del av oppholdsrommet. Sovealkove Leiligheten har en praktisk sovealkove med plass til seng. En stor vindusflate sørger for godt med dagslys, og løsningen gir en tydelig avgrenset sone for søvn samtidig som arealet utnyttes effektivt. Bad Lyst og tidløst baderom med servantinnredning, speil, toalett og dusjhjørne. Badet har også opplegg for vaskemaskin, noe som gir en praktisk og funksjonell hverdag. Bod Leiligheten disponerer en praktisk utvendig bod på ca. 5 kvm som gir god lagringsplass for sportsutstyr, sesongoppbevaring og øvrige eiendeler.
Innbo og løsøre
Salgsoppgaven inkluderer NEFs standardliste "Oversikt over løsøre og tilbehør", som legges til grunn med mindre annet er spesifisert i salgsoppgaven. Gjenstander som er nevnt i standardlisten, men som ikke finnes på eiendommen, vil heller ikke følge med i salget. Alt utstyr og installasjoner som medfølger overtas slik de er, uten garanti, med mindre det foreligger en gjeldende garanti fra produsent eller leverandør. Kjøper aksepterer at det kan forekomme hull og merker etter montering av inventar og utstyr som ikke er en del av overdragelsen.
Parkering
Sameiet disponerer totalt 24 parkeringsplasser. 10 tilhører de store seksjonene på 69 kvm, 2 plasser reserveres til gjesteparkering og 1 tilpasset personer med nedsatt funksjonsevne. De resterende 11 plassene tilhører de små seksjonene på 33 kvm på deling.
Sammendrag av selgers egenerklæring
Selger har i forbindelse med salget fylt ut egenerklæringsskjema. I skjemaet fremkommer følgende informasjon: Kjenner du til om det er utført arbeid på bad/våtrom? Ja. Kun av faglært. I følge tidligere eiere skiftet K. Lund termostat på varmtvannstank sommer 2016 og GF Elektro skiftet termostat til varmekabler på bad april 2017. Kjenner du til om det har vært utført arbeid på terrasse/garasje/tak/fasade? Ja. Kun av faglært. Det ble gjort utbedringer av balkonger, svalganger, diverse utbedringer av utvendig fasade og tak på samtlige leiligheter av NCC i 2017 (ferdigstilt i Mai 2017 i følge tidligere eiere). Selgers egenerklæringsskjema følger vedlagt salgsoppgaven. Interessenter oppfordres til å gjennomgå dette nøye. Samsvarserklæring: Det fremgår av tilstandsrapporten at det mangler/ikke er fremlagt samsvarserklæring for det elektriske anlegget.
Bygningssakkyndig
Lars Petter Borseth
Byggemåte
I forbindelse med salget er det blitt utført en tilstandsrapport av en bygningssakkyndig, som gir en teknisk gjennomgang av boligen og påpeker eventuelle avvik. Rapporten, sammen med selgers egenerklæring, er vedlagt salgsoppgaven. Det er viktig at interessenter grundig gjennomgår disse dokumentene før bud legges inn. All informasjon i tilstandsrapporten anses som kjent for kjøper, og det vil ikke være mulig å reklamere på forhold som er nevnt i rapporten. Spesielt forhold som er vurdert med TG2 og TG3 bør vurderes nøye, da de indikerer avvik fra normal slitasje og/eller høy alder, noe som kan innebære behov for utbedringer. Bygningsdeler som er merket med TGIU er ikke blitt vurdert av takstmannen. Beskrivelsen av boligen nedenfor er hentet direkte fra tilstandsrapporten: Byggemåte: Leilighetsbygg oppført i 2006. Grunnmur og bærende konstruksjoner i hovedsak av betong. Bygget er oppført med støpt gulv mot grunn. Yttervegger av trekonstruksjoner. Utvendige fasader er kledd med både liggende og stående trekledning. Etasjeskillere av betong. Pulttak i trekonstruksjoner. Entrédør med sikkerhetslås og glassfelter. Vinduer med karmer av tre. Balkongdør med karmer av tre. Boligen ventileres hovedsakelig gjennom et mekanisk balansert ventilasjonssystem (med varmegjenvinning). Bygningsdeler med TG2: Våtrom: - Vanntett sjikt / membran i gulv og vegger: Vanntett sjikt har en alder som tilsier at fremtidig funksjon er usikker. Konsekvensen er at bygningsdelen erfaringsmessig har risiko for nedsatt funksjon, utettheter eller andre aldersrelaterte problemer. Bygningsdelen er skjult, så den faktiske tilstanden og dagens tettefunksjon er ukjent. Foreslått tiltak er videre overvåking, slik at komplett utskiftning kan iverksettes når dette viser seg å være nødvendig. - Sanitærutstyr og innredning: Drenering fra innebygget toalettsisterne er ikke registrert. Konsekvens er at det derfor ikke kan verifiseres om installasjonen er utført slik at eventuelt lekkasjevann raskt blir synliggjort. Foreslått tiltak er lokal utbedring, og andre tiltak som videre undersøkelser eventuelt viser at er nødvendig. Kjøkken: - Overflate gulv: Synlige deler av gulvets overflatemateriale bærer preg av slitasje med enkelte riper og hakk. Forholdet vurderes i hovedsak til å være av estetisk betydning, men riper og hakk av en viss dybde kan gjøre at fuktighet som for eksempel fra rengjøring forårsaker misfarging eller lignende konsekvenser. Fornying av overflater, lokale utbedringer eller utskiftning kan iverksettes ved behov. - Vannrør: Tydelige rørslag (trykkslag) i vannrør registreres. Årsaken kan skyldes ulike forhold som ikke lar seg fastslå ved visuell inspeksjon. Konsekvensen er at på sikt kan gjentatte trykkstøt av en viss intensitet gi nedsatt levetid for rør og rørdeler. Foreslått tiltak er videre undersøkelser for å kartlegge hvilke tiltak som vil være tilstrekkelige. - Ventilator: Ukjent om ventilatoren gir tilstrekkelig avtrekk. Ved funksjonstest registreres liten effekt. Konsekvens er at eventuell mangelfull ventilasjon kan medføre økt fuktbelastning og redusert luftkvalitet. Foreslått tiltak er nærmere undersøkelser, for eksempel gjennom funksjonstesting under bruk, for å avklare behovet for eventuelle tiltak. Tekniske anlegg: - Fordelerskap og fordelerstammer: Ingen tilkomst til fordelerskap (bak vaskemaskin). Konsekvens er at det ikke er mulig å verifisere om utførelsen er korrekt, eller vurdere tilstanden. Foreslått tiltak er videre undersøkelser og kartlegging av dagens tilstand. - Varmtvannsbereder: På bakgrunn av berederens alder vurderes det at fremtidig funksjon er usikker. Konsekvensen er at bygningsdelen erfaringsmessig har risiko for nedsatt funksjon, funksjonssvikt eller andre aldersrelaterte problemer. Foreslått tiltak er videre overvåking av tilstanden, slik at reparasjon eller utskiftning kan iverksettes når dette blir nødvendig. Varmtvannsberederen er bygget inne, og kan derfor ikke undersøkes (plassert over himling på bad). Konsekvens er derfor at type bereder, alder og hvilken tilstand denne har, ikke er kjent. Grunnet plasseringen vil en eventuell utskifting utløse behov for destruktive inngrep. Foreslått tiltak er videre undersøkelser og kartlegging av ovennevnte forhold. - Mekaniske ventilasjonsanlegg (utover det som nevnes under andre sjekkpunkter): Mekanisk ventilasjonsanlegg og tilknyttet utstyr har en alder som tilsier at fremtidig funksjon er usikker. Konsekvensen er at bygningsdelen erfaringsmessig har risiko for nedsatt funksjon, funksjonssvikt eller andre aldersrelaterte problemer. Foreslått tiltak er videre overvåking, slik at lokal reparasjon eller utskiftning kan iverksettes når dette blir nødvendig. TGIU: Det er usikkert om, eller når, ventilasjonskanalene sist ble inspisert og renset, noe som er anbefalt å utføre minst hvert femte år. Andre rom: - Overflate gulv: Synlige deler av gulvets overflatemateriale på stue bærer preg av slitasje med enkelte riper og hakk. Forholdet vurderes i hovedsak til å være av estetisk betydning, men riper og hakk av en viss dybde kan gjøre at fuktighet som for eksempel fra rengjøring forårsaker misfarging eller lignende konsekvenser. Fornying av overflater, lokale utbedringer eller utskiftning kan iverksettes ved behov. Interessenter oppfordres til å sette seg inn i tilstandsrapporten som ligger vedlagt salgsoppgaven.
Omkostninger
2 450 000,00 (Prisantydning) 76 823 (Andel av fellesgjeld) -------------------------------------------------------- 2 526 823 (Pris inkl. fellesgjeld) Omkostninger 13 500 (Boligkjøperforsikring* (valgfritt)) 63 150 (Dokumentavgift) 545 (Tinglysingsgebyr - hjemmel) 545 (Tinglysningsgebyr - pantedokument) -------------------------------------------------------- 64 240 (Omkostninger totalt (uten Boligkjøperforsikring)) 77 740 (Omkostninger totalt (med Boligkjøperforsikring)) -------------------------------------------------------- 2 591 063 (Totalpris inkl. omkostninger (uten Boligkjøperforsikring)) 2 604 563 (Totalpris inkl. omkostninger (med Boligkjøperforsikring)) --------------------------------------------------------
Felleskostnader
2 397,65,- per mnd
Totale fellesutgifter er kr 2 397,65 per måned. Felleskostnader inkluderer betjening av fellesgjeld, kabel-TV, bygningsforsikring, forretningsførsel, drift og vedlikehold. Fellesutgiftene er fordelt slik: • Felleskostnader: kr 1 163,- • Lån leiligheter: kr 879,65 • Kabel-tv: kr 355,- Det er viktig å merke seg at fellesutgiftene kan variere over tid som følge av endringer i rentenivået på sameiets lån, beslutninger på årsmøtet eller andre nødvendige vedlikeholdstiltak.
Eiendomsskatt
2 209,- pr. 2023
Eiendomsskatten ble i 2023 beregnet til kr. 2 209,-.
Kommunale avgifter
9 731,- pr. 2025
Dette inkluderer vann, avløp, renovasjon, feiing/tilsyn og eiendomsskatt. Fakturert beløp fra mars 2025 til februar 2026 var kr 9 731,-.
Fellesformue
13 032,-
Fellesgjeld
76 823,2,-
Sameiet har lån, og vilkårene er som følger: Bank: OBOS-banken AS Lånenummer: 98207564699 Type: Annuitetslån, 12 terminer per år Restsaldo: kr 2 594 531,- Andel av saldo: kr 76 823,20 Innfrielsesdato: 30.10.2036 Type Rente: Flytende rente Rente: 7,04 %
Formuesverdi
Formuesverdi primær: 672 584 pr. 2024
Formuesverdi sekundær: 2 690 336 pr. 2024
Skatteetaten beregner en boligverdi (beregnet markedsverdi for bolig) basert på SSBs statistiske opplysninger om omsatte boliger. I beregningen tas det hensyn til boligens beliggenhet, areal, byggeår og type bolig. Stortinget har vedtatt en ny modell for beregning som skal benyttes fra og med inntektesåret 2026, og den nye modellen henter informasjon om omsatte boliger fra grunnkretser i stedet for kommuner. Formuesverdien er en prosentandel av den beregnede boligverdien. Den nye utregningsmodellen kan medføre en høyere eller lavere markedsverdien enn tidligere. Det tas derfor forbehold om at formuesverdien kan bli endret og eventuelt øke ved endelig fastsettelse i skatteåret. For mer informasjon om formuesverdi, se Skatteetatens nettsider.
Beliggenhet
Leiligheten ligger i et attraktivt og rolig område på Dalgård, med en tilbaketrukket plassering skjermet for trafikk og støy. Her bor du i et veletablert nabolag, samtidig som det er kort vei til både byliv og naturopplevelser. Daglige gjøremål er lett tilgjengelig med kort gangavstand til dagligvarebutikker, servicetilbud og kollektivtransport. Området har svært gode bussforbindelser med hyppige avganger til Trondheim sentrum, samt forbindelser til sentrale studiesteder som NTNU Gløshaugen og Dragvoll, St. Olavs hospital og Høyskoleparken. Dette gjør beliggenheten spesielt attraktiv for studenter. For barnefamilier er området ideelt, med trygg gangavstand til både skole og barnehage. I tillegg ligger Dalgård idrettsanlegg like i nærheten. Fritidsmulighetene er mange og varierte. Fra boligen har du direkte tilgang til flotte grøntområder og ikke minst Bymarka, et av Trondheims mest populære turområder. Her finner du et stort nettverk av turstier og skiløyper som kan benyttes året rundt. I tillegg ligger idylliske badeplasser som Haukvannet og Lianvannet i nærheten, perfekte for både bading og rekreasjon.
Adkomst
På høyre side i annonsen finner du et kartutsnitt. Ved å klikke på kartet kan du enkelt planlegge din rute fra valgt startpunkt og helt frem til boligen. Det vil være skiltet ved fellesvisninger for enkel orientering.
Energiklasse
C
Info energiklasse
Se fullstendig energiattest som ligger vedlagt salgsoppgave.
Oppvarming
Oppvarming av boligen skjer med elektrisitet via panelovner og gulvvarme/varmekabler i enkelte rom. Det er også varmegjenvinning fra ventilasjonsanlegget. Hvis et rom på visningen mangler fast installert oppvarmingskilde, vil ikke dette bli inkludert i handelen.
Om sameiet
Dalgårdstunet Sameie Org.nr: 989589806
Dalgårdstunet Sameie er et eierseksjonssameie som består av 26 boligseksjoner. På årsmøtet avholdt i mai 2025 ble det vedtatt at styret skal undersøke muligheten for å etablere en sykkelbod med tak og søke kommunen om midler til dette.
Regnskap / Budsjett / Kostnadsøkninger
Sameiet hadde i 2024 samlede driftsinntekter på kr 940 332 og samlede driftskostnader på kr 696 346. Dette ga et positivt årsresultat på kr 41 876.
Forretningsfører
OBOS Eiendomsforvaltning AS
Styregodkjennelse
Det kreves ikke styregodkjenning av ny eier.
Forkjøpsrett
Det foreligger ingen forkjøpsrett på eiendommen.
Forsikringsselskap og polisenummer felles forsikring
Gjensidige Forsikring Asa
89594738
Vedtekter / husordensregler
Eier forplikter seg til å gjøre seg kjent med vedtekter og eventuelle husordensregler. Kopi av disse ligger vedlagt i salgsoppgaven.
Husdyrhold
Husdyrhold er tillatt med mindre det er til sjenanse eller ulempe for de andre beboerne. Beboere som har husdyr, må sørge for å ha full kontroll over dyret til enhver tid, og påse at dyret ikke sjenerer noen eller etterlater ekskrementer på boligsameiets område.
Adgang til utleie
Boligen kan leies ut i samsvar med gjeldende lovverk, og vedtektene setter ingen begrensninger på eierens utleieadgang. Korttidsutleie er tillatt i inntil 90 døgn per år, jf. eierseksjonsloven § 24. Denne grensen kan endres i vedtektene, men den må være satt mellom 60 og 120 døgn. Med korttidsutleie menes utleie i en sammenhengende periode på opptil 30 døgn. Utleie skal meldes til sameiets styre eller forretningsfører for registrering.
Ferdigattest / brukstillatelse
Det foreligger ferdigattest for nybygg boligbygning datert 05.07.2006. Ferdigattest utstedes av bygningsmyndighetene basert på dokumentasjon mottatt fra kontrollansvarlig når et søknadspliktig tiltak er utført i samsvar med tillatelsen og øvrige krav etter plan- og bygningslovgivningen. Det er viktig å merke seg at selv om ferdigattest foreligger, gir det ingen garanti for at bygget er oppført i henhold til tillatelsen og gjeldende regelverk, eller at det senere er utført arbeid på bygget som ikke er byggemeldt eller godkjent. Det foreligger byggetegninger fra kommunen datert 2005. Tegningene samsvarer med dagens bruk av boligen.
Vei, vann og avløp
Eiendommen er tilknyttet offentlig vann- og avløpssystem. Stikkledningene fra eiendommen og ut til det kommunale nettet er private, og vedlikeholdsansvaret for disse påhviler sameiet. Adkomst til eiendommen skjer via offentlig vei.
Regulerings- og arealplaner
Eiendommen er etter reguleringsplan r0348e og r20140028 regulert til konsentrert småhusbebyggelse, felles avkjørsel, felles gangareal, felles grøntareal, felles lekeareal, felles parkeringsplass og gang-/sykkelveg. Eiendommen er i kommuneplanens arealdel avsatt til sentrumsformål - nåværende og byggesone 2. Det er igangsatt planleggingsarbeid som inkluderer eller berører eiendommen. Dette gjelder følgende planer under arbeid: - Plan-ID r20220042: Del av Gamle Oslovei og Kyvatnet - Plan-ID r20220043: Odd Husbys veg, Dalgårdvegen og General Bangs veg Hensikten med planarbeidet er å sikre en sammenhengende sykkelveg med fortau, inkludert gode gang og sykkelkryssinger, ved hjelp av regulering, samt gi syklister og gående god framkommelighet, og et tilbud som oppleves trygt og trafikksikkert for alle. Kopi av situasjonskart, målebrev, reguleringsplaner m/bestemmelser etc. ligger vedlagt i salgsoppgaven eller kan fås ved henvendelse til megler. Vi oppfordrer interessenter til å gjøre seg kjent med disse.
Tinglyste heftelser og rettigheter
På eiendommen er det tinglyst følgende heftelser og rettigheter som følger eiendommens matrikkel ved overskjøting til ny hjemmelshaver: 5001/103/236/7: 12.09.1975 - Dokumentnr: 13759 - Best. om adkomstrett Gjelder denne registerenheten med flere 31.01.2006 - Dokumentnr: 2369 - Erklæring/avtale Denne seksjon har tilleggsdel - bygning. Gjelder denne registerenheten med flere 08.02.2006 - Dokumentnr: 3082 - Erklæring/avtale Rettighetshaver: Knr:5001 Gnr:103 Bnr:1504 Rettighetshaver: Knr:5001 Gnr:103 Bnr:1505 Bestemmelse om adkomstrett og vedlikehold Kan ikke slettes uten samtykke fra kommunen Gjelder denne registerenheten med flere 08.02.2006 - Dokumentnr: 3082 - Erklæring/avtale Rettighetshaver: Knr:5001 Gnr:103 Bnr:1504 Rettighetshaver: Knr:5001 Gnr:103 Bnr:1505 Rett til å legge,ha liggende vann og avløpsledninger mot vedlikehold Kan ikke slettes uten samtykke fra kommunen Gjelder denne registerenheten med flere 12.12.2011 - Dokumentnr: 1036540 - Erklæring/avtale Rettighetshaver: Knr:5001 Gnr:103 Bnr:614 Bestemmelse om adkomstrett Bestemmelse om anlegg og vedlikehold av ledninger m.m. Gjelder denne registerenheten med flere 31.01.2006 - Dokumentnr: 2369 - Seksjonering Opprettet seksjoner: Snr: 7 Formål: Bolig Sameiebrøk: 33/1218 Bestemmelser om tilleggsdel, se under servitutter. Gjelder seksjon nr. 1-26 08.02.2006 - Dokumentnr: 3017 - Registrering av grunn Utskilt fra denne matrikkelenhet: Knr:5001 Gnr:103 Bnr:1504 08.02.2006 - Dokumentnr: 3018 - Registrering av grunn Utskilt fra denne matrikkelenhet: Knr:5001 Gnr:103 Bnr:1505 01.01.2018 - Dokumentnr: 247269 - Omnummerering ved kommuneendring Tidligere: Knr:1601 Gnr:103 Bnr:236 Snr:7 28.12.2020 - Dokumentnr: 3537509 - Erklæring/avtale Rettighet hefter i: Knr:5001 Gnr:103 Bnr:1670 Snr:1 Rettighet hefter i: Knr:5001 Gnr:103 Bnr:1670 Snr:2 Rettighet hefter i: Knr:5001 Gnr:103 Bnr:1670 Snr:3 Rettighet hefter i: Knr:5001 Gnr:103 Bnr:1670 Snr:4 Rettighet hefter i: Knr:5001 Gnr:103 Bnr:1670 Snr:5 Rettighet hefter i: Knr:5001 Gnr:103 Bnr:1670 Snr:6 Rettighet hefter i: Knr:5001 Gnr:103 Bnr:1670 Snr:7 Rettighet hefter i: Knr:5001 Gnr:103 Bnr:1670 Snr:8 Rettighet hefter i: Knr:5001 Gnr:103 Bnr:1670 Snr:9 Rettighet hefter i: Knr:5001 Gnr:103 Bnr:1670 Snr:10 Rettighet hefter i: Knr:5001 Gnr:103 Bnr:1670 Snr:11 Rettighet hefter i: Knr:5001 Gnr:103 Bnr:1670 Snr:12 Rettighet hefter i: Knr:5001 Gnr:103 Bnr:1670 Snr:13 Rettighet hefter i: Knr:5001 Gnr:103 Bnr:1670 Snr:14 Rettighet hefter i: Knr:5001 Gnr:103 Bnr:1670 Snr:15 Rettighet hefter i: Knr:5001 Gnr:103 Bnr:1670 Snr:16 Rettighet hefter i: Knr:5001 Gnr:103 Bnr:1670 Snr:17 Rettighet hefter i: Knr:5001 Gnr:103 Bnr:1670 Snr:18 Rettighet hefter i: Knr:5001 Gnr:103 Bnr:1670 Snr:19 Rettighet hefter i: Knr:5001 Gnr:103 Bnr:1670 Snr:20 Rettighet hefter i: Knr:5001 Gnr:103 Bnr:1670 Snr:21 Rettighet hefter i: Knr:5001 Gnr:103 Bnr:1670 Snr:22 Rettighet hefter i: Knr:5001 Gnr:103 Bnr:1670 Snr:23 Rettighet hefter i: Knr:5001 Gnr:103 Bnr:1670 Snr:24 Rettighet hefter i: Knr:5001 Gnr:103 Bnr:1670 Snr:25 Rettighet hefter i: Knr:5001 Gnr:103 Bnr:1670 Snr:26 Rettighet hefter i: Knr:5001 Gnr:103 Bnr:1670 Snr:27 Rettighet hefter i: Knr:5001 Gnr:103 Bnr:1670 Snr:28 Rettighet hefter i: Knr:5001 Gnr:103 Bnr:1670 Snr:29 Rettighet hefter i: Knr:5001 Gnr:103 Bnr:1670 Snr:30 Rettighet hefter i: Knr:5001 Gnr:103 Bnr:1670 Snr:31 Rettighet hefter i: Knr:5001 Gnr:103 Bnr:1670 Snr:32 Rettighet hefter i: Knr:5001 Gnr:103 Bnr:1670 Snr:33 Rettighet hefter i: Knr:5001 Gnr:103 Bnr:1670 Snr:34 Rettighet hefter i: Knr:5001 Gnr:103 Bnr:1670 Snr:35 Rettighet hefter i: Knr:5001 Gnr:103 Bnr:1670 Snr:36 Rettighet hefter i: Knr:5001 Gnr:103 Bnr:1670 Snr:37 Rettighet hefter i: Knr:5001 Gnr:103 Bnr:1670 Snr:38 Rettighet hefter i: Knr:5001 Gnr:103 Bnr:1670 Snr:39 Rettighet hefter i: Knr:5001 Gnr:103 Bnr:1670 Snr:40 Rettighet hefter i: Knr:5001 Gnr:103 Bnr:1670 Snr:41 Rettighet hefter i: Knr:5001 Gnr:103 Bnr:1670 Snr:42 Rettighet hefter i: Knr:5001 Gnr:103 Bnr:1670 Snr:43 Rettighet hefter i: Knr:5001 Gnr:103 Bnr:1670 Snr:44 Rettighet hefter i: Knr:5001 Gnr:103 Bnr:1670 Snr:45 Rettighet hefter i: Knr:5001 Gnr:103 Bnr:1670 Snr:46 Rettighet hefter i: Knr:5001 Gnr:103 Bnr:1670 Snr:47 Rettighet hefter i: Knr:5001 Gnr:103 Bnr:1670 Snr:48 Rettighet hefter i: Knr:5001 Gnr:103 Bnr:1670 Snr:49 Rettighet hefter i: Knr:5001 Gnr:103 Bnr:1670 Snr:50 Rettighet hefter i: Knr:5001 Gnr:103 Bnr:1670 Snr:51 Rettighet hefter i: Knr:5001 Gnr:103 Bnr:1670 Snr:52 Rettighet hefter i: Knr:5001 Gnr:103 Bnr:1670 Snr:53 Rettighet hefter i: Knr:5001 Gnr:103 Bnr:1670 Snr:54 Rettighet hefter i: Knr:5001 Gnr:103 Bnr:1670 Snr:55 Rettighet hefter i: Knr:5001 Gnr:103 Bnr:1670 Snr:56 Rettighet hefter i: Knr:5001 Gnr:103 Bnr:1670 Snr:57 Rettighet hefter i: Knr:5001 Gnr:103 Bnr:1670 Snr:58 Rettighet hefter i: Knr:5001 Gnr:103 Bnr:1670 Snr:59 Rettighet hefter i: Knr:5001 Gnr:103 Bnr:1670 Snr:60 Rettighet hefter i: Knr:5001 Gnr:103 Bnr:1670 Snr:61 Bestemmelse om snørydding Gjelder denne registerenheten med flere Dokumenter kan fås ved henvendelse til megler.
Legalpant
Kommunen har legalpant som sikkerhet for betaling av kommunale avgifter og eventuell eiendomsskatt. De øvrige seksjonseierne i sameiet har legalpant på inntil 2G som sikkerhet for krav knyttet til sameieforholdet, som felleskostnader. Legalpant er pant som ikke vises i grunnboksutskriften, og har prioritet foran tinglyste lån, for eksempel banklån på seksjonen. Legalpant til kommunen har høyere prioritet enn legalpant til sameiet.
Boligselgerforsikring
Selger har tegnet boligselgerforsikring som dekker selgers ansvar etter avhendingsloven begrenset oppad kr. 20 000 000,-. Egenerklæringsskjema er vedlagt salgsoppgaven og interessenter oppfordres til å gjennomgå denne før bud inngis.
Boligkjøperforsikring
Kjøper har anledning til å tegne boligkjøperforsikring. Vedlagt i salgsoppgaven følger informasjon om Boligkjøperforsikring fra Söderberg & Partners. Boligkjøperforsikring er en rettshjelpsforsikring som gir trygghet og profesjonell juridisk hjelp dersom det oppdages uventede feil eller mangler ved boligen de neste fem årene. Les mer om Boligkjøperforsikring i vedlagte materiell eller på https://www.soderbergpartners.no/eiendom/boligkjoper/
Diverse
Det informeres om at ingen kan eie mer enn to boligseksjoner i sameiet, i henhold til eierseksjonsloven § 23. Seksjoner som eies av nærstående eller gjennom et firma regnes også med. I henhold til eierseksjonsloven § 31 er sameierne ansvarlige overfor sameiets kreditorer i forhold til sin sameiebrøk. Ved manglende betaling av fellesutgifter har sameiet legal panterett i den enkelte eierseksjon, begrenset til inntil 2 ganger folketrygdens grunnbeløp. Kjøper og selger er forpliktet til å signere den standard kjøpekontrakten utarbeidet av Emera som en del av eiendomshandleren. Kjøpekontrakten kan gjennomgås hos eiendomsmegler før budet legges inn. Kontakt eiendomsmegler for eventuelle spørsmål. Selger leverer eiendommen i ryddig og rengjort stand.
Sentrale lover
Regelverk og generelle opplysninger Boligen selges med det inventar og utstyr som i henhold til gjeldende lover, forskrifter eller offentlige pålegg skal følge med eiendommen, jf. avhendingsloven § 3-4. Fastmonterte eller spesialtilpassede installasjoner og innredning som anses som varig tilknyttet boligen, følger normalt med i handelen, med mindre det foreligger en særskilt avtale mellom partene om noe annet, jf. avhendingsloven § 3-5. En standard tilbehørsliste utarbeidet av Norges Eiendomsmeglerforbund (NEF) følger salgsoppgaven, og gjelder som utgangspunkt for hva som inkluderes i salget – med mindre avvik er tydelig avtalt mellom kjøper og selger. Om informasjonsgrunnlaget Opplysninger om boligens størrelse og utforming, både innvendig og utvendig, bygger på informasjon hentet fra vedlagte tilstands- og boligsalgsrapport. Innholdet i salgsoppgaven er basert på selgers informasjon, fagkyndig vurdering, samt opplysninger fra offentlige registre som kommunen og Kartverket. Det er viktig at kjøper setter seg grundig inn i alle salgsdokumentene, herunder salgsoppgave, tilstandsrapport og selgers egenerklæring. Kjøper anses for å være kjent med forhold som er tydelig beskrevet i salgsdokumentene, slike forhold kan ikke senere gjøres gjeldende som en mangel ved boligen. Dette gjelder uavhengig av om dokumentene er lest. Det kan være forskjell mellom boligens faktiske bruk av rom og det som er godkjent av myndighetene. Alle interessenter anbefales derfor å undersøke eiendommen nøye, gjerne sammen med fagperson, før bud gis. Dersom kjøper velger å kjøpe uten å ha sett eiendommen, kan det ikke etter overtakelse reklameres på forhold som burde ha vært oppdaget ved en ordinær gjennomgang. Dersom det oppstår behov for ytterligere avklaringer, oppfordres interessenter til å kontakte eiendomsmegler eller egne rådgivere før de gir bud. Slitasje og bruk Det må også forventes at eiendommer som har vært i bruk, vil kunne ha tegn til slitasje og eventuelle skader. Slik normal bruksslitasje og behov for vedlikehold må kjøper påregne, og dette vil normalt ikke gi grunnlag for reklamasjon eller prisavslag. Avtalerettslig Partenes rettigheter og plikter reguleres av avtalen mellom partene, og all tilgjengelig dokumentasjon som forelå for kjøper før handelen ble inngått. I tillegg gjelder avhendingsloven. Det gjelder ulike avtalevilkår avhengig av om kjøper er forbrukerkjøper eller ikke, og dette er nærmere forklart nedenfor. Budgivning og selgers vurdering På grunn av ulike ansvarsforhold kan selger velge å prioritere bud fra ikke-forbrukere, selv om budet er lavere enn et forbrukerbud. Når kjøper ikke er forbruker, kan selges ansvar begrenses ettersom boligen selges «som den er», noe som kan være av verdi for selger. Det understrekes at selger står fritt til å velge hvilket bud som aksepteres, og er ikke forpliktet til å velge det høyeste. Alle budgivere må ved inngivelse av bud opplyse om de opptrer som forbruker eller som næringsdrivende/person som handler hovedsakelig som ledd i næringsvirksomhet. Det vil opplyses hvis konkurrerende bud kommer fra en ikke-forbruker. Forbrukerkjøp – definisjon og vilkår: Et forbrukerkjøp foreligger når en fysisk person kjøper eiendom uten at formålet hovedsakelig er knyttet til næringsvirksomhet. En eiendom anses å ha en mangel dersom den ikke oppfyller kravene som følger av avtalen, eller ved brudd på bestemmelser i avhendingsloven §§ 3-2 til 3-8. Det samme gjelder hvis eiendommen ikke samsvarer med det som med rimelighet kunne forventes ut fra blant annet alder, type og synlig tilstand – eller hvis det er tilbakeholdt, eller gitt feilaktige opplysninger, og dette har påvirket avtalen. Dersom det er avvik mellom oppgitt og faktisk innvendig areal på minst 2 % og samtidig minst 1 kvadratmeter, kan dette utløse rett til kompensasjon etter § 3-3 i avhendingsloven. Ved beregning av krav om prisavslag eller erstatning må kjøper selv dekke kostnader med inntil kr 10 000 (som en egenandel). Ikke-forbruker – definisjon og vilkår: Dersom kjøper er en juridisk enhet, eller en fysisk person som handler i næringssammenheng, regnes kjøpet ikke som et forbrukerkjøp. Ved slike kjøp selges eiendommen «som den er», og selgers ansvar er begrenset til det som følger direkte av avtalen, jf. avhendingsloven § 3-9. I disse tilfellene fravikes § 3-3 andre ledd, og eventuelle arealavvik vurderes etter § 3-8. Kjøperens plikt til å foreta grundige undersøkelser gjelder også fullt ut for kjøpere som ikke omfattes av forbrukerdefinisjonen.
Betalingsbetingelser
Hele oppgjøret må betales samlet fra en norsk bankkonto. Overføringer fra utlandet aksepteres kun unntaksvis, og kun dersom dette er forhåndsavtalt med megler i forbindelse med aksept av budet.
Viktig informasjon om budgivning
Bud kan legges inn på nettannonsen på "gi bud" knappen eller via hjemmesiden. Ved elektronisk budgivning kan bud legges inn trygt og enkelt med bank-ID. Eiendomsmegler kan også kontaktes for tilsendelse av budkjema, og budskjema finnes også i salgsoppgaven. Alle bud skal inngi skriftlig til eiendomsmegler. Kravet til skriftlighet gjelder også ved forhøyelse av bud, motbud og selgers aksept eller avslag. Før et bud kan formidles til selger må megler innhente gyldig legitimasjon og signatur fra budgiver. Kravet til legitimasjon og signatur er oppfylt dersom budgiver bruker e-signatur som f eks. bankID. Etter det første budet er inngitt, kan budgiver inngi bud pr e-post eller pr SMS til megler. Hvis budgiver skal by på eiendommen i henhold til en kjøpsfullmakt må megler kontaktes og fullmakten oversendes før budgivning. Et bud bør inneholde eiendommens adresse (eventuelt gnr/bnr), kjøpesum, budgivers kontaktinformasjon, finansieringsplan, akseptfrist, overtakelsesdato og eventuelle forbehold som for eksempel usikker finansiering, salg av nåværende bolig ol. Normalt vil ikke et bud med forbehold bli akseptert før forbeholdet er avklart. Konferer gjerne med megler før bud avgis. Bud som har forbehold om konfidensialitet ("hemmelige bud") vil ikke bli formidlet til selger. Alle interessenter oppfordres til å inngi bud via eiendomsmegler. Megler skal legge til rette for en forsvarlig avvikling av budrunden. I forbrukerforhold (dvs. der selger er forbruker) skal megleren ikke formidle bud med kortere akseptfrist enn til kl. 12.00 første virkedag etter siste annonserte visning. Senere bud må ha en akseptfrist som er lang nok til at budet og eventuelle forbehold kan videreformidles til alle involverte parter slik at disse får tid til å områ seg, jf. forskrift om eiendomsmegling § 6-3. Akseptfrist bør derfor være på minimum 30 minutter, og budforhøyelser bør skje senest 10 minutter før fristens utløp. Dersom bud inngis med en frist som åpenbart er for kort til at megleren kan avvikle budrunden på en forsvarlig måte, vil megler fraråde budet. Eiendomsmegler skal så snart som mulig bekrefte skriftlig overfor budgivere at budene deres er mottatt, og vil uoppfordret gi sin vurdering av det enkelte bud overfor selgeren. Etter at handel har kommet i stand, eller dersom en budrunde avsluttes uten at handel er kommet i stand, kan en budgiver kreve kopi av budjournalen i anonymisert form. Kopi av budjournal gis til kjøper og selger uten ugrunnet opphold etter at handel er kommet i stand. Hvis budgiver ønsker å være anonym, kan bud fremmes via en fullmektig. For mer informasjon om budgivningsprosessen, se «Forbrukerinformasjon om budgivning», som er vedlagt salgsoppgaven, eller ta kontakt med megler.
Vederlag megler
Provisjon ved salg til prisantydning: kr 36 770,00 Grunnpakke (Kommunal info, gebyr utlegg, tinglysing, grunnbok) kr 10 000,00 Markedspakke inkl. stor FINN-annonse kr 17 900,00 Oppgjørshonorar kr 5 900,00 Tilretteleggingshonorar inkl. Interiørveiledning kr 17 500,00 innhenting av info fra forretningsfører kr 5 000,00 Visnings-/overtagelseshonorar pr. stk. kr 2 990,00 Utlegg: Selger dekker utlegg i henhold til oppdragsavtalen. Disse er estimert til ca. kr 22 725,00. Total kostnad ved salg til prisantydning: kr 118 765. Dette inkluderer både vederlag og stipulerte utlegg. Ved avbrutt oppdrag: Dersom oppdraget sies opp eller utløper uten at salget gjennomføres, har megler krav på rimelig vederlag for medgått tid og for utført arbeid. Dette omfatter blant annet vederlag knyttet til tilrettelegging, markedsføring og eventuelle avholdte visninger, samt påløpte utlegg. Timepris ved slik beregning er kr 3500.
Hvitvasking
Eiendomsmeglere er underlagt lov om hvitvasking, og er blant annet forpliktet til å gjennomføre kundetiltak av både selger og kjøper. Hvis kjøper ikke bidrar til at megler får gjennomført kundetiltak og dette fører til at avtalen ikke kan gjennomføres eller blir forsinket, er dette et mislighold fra kjøpers side. Et vesentlig mislighold kan gi selger rett til å heve avtalen og til å gjennomføre dekningssalg for kjøpers regning. Dersom selger ikke bidrar til at megler får gjennomført løpende kundetiltak underveis i oppdraget, må eiendomsmegler stanse gjennomføringen av transaksjonen. Selger vil i et slikt tilfelle ha misligholdt sine forpliktelser, og kjøper vil kunne ha et krav mot selger etter avhendingsloven. Hvis kundetiltak ikke lar seg gjennomføre, vil Emera eiendomsmegling ikke kunne bistå med handelen eller foreta oppgjør.
Personopplysningsloven
Personopplysninger blir behandlet i samsvar med personopplysningsloven. Se www.emera.no for vår personvernerklæring.
Oppdragsnummer
05260052
Status salgsoppgave
Salgsoppgave sist endret: 13. april 2026
Megler
Ansvarlig megler
Eskil Wahl
Megler
Eskil Wahl
Meglerforetaket
Era eiendomsmegling AS Org.nr: 936749259
Samarbeidspartnere og tilknyttede foretak
Emera Norge AS og eiendomsmeglingsforetakene som er tilknyttet Emera har samarbeid med forskjellige foretak som tilbyr forbrukerne produkter eller tjenester i forbindelse med et salgsoppdrag. Våre samarbeidspartene er:
Søderberg & Partners AS - formidler av boligselger- og boligkjøperforsikring Overo AS - leverandør av digitale oppgjørsskjemaer og overtakelsesprotokoller som også inneholder tilbud til forbruker om tilpassede strøm-, internett- og alarmtjenester.
Hvilke produkter/tjenester kjøper og selger får i forbindelse med oppdraget, kan variere ut fra hvor i landet eiendommen ligger.
Salgsoppgave
Egenerklæring boligselgerforsikring
Tilstandsrapport
Boligkjøperforsikring
Når du kjøper bolig, er det viktig å sikre seg mot uforutsette utgifter. Söderberg & Partners og Emera Eiendomsmegling hjelper deg med å skape trygghet i boligkjøpet.
Fritt meglervalg
Valg av megler skal være frivillig. Megler kan ikke inngå oppdrag om eiendomsmegling dersom inngåelsen av oppdraget er satt som vilkår i avtale om annet enn eiendomsmegling, for eksempel tilbud om lån eller andre banktjenester, jf. eiendomsmeglingsloven § 6-3 (3).
