



















































EKEBERG/SIMENSBRÅTEN
Vårveien 71
239 m2
|
12 990 000 kr
|
5 soverom
|
Enebolig
|
Utbygd og vedlikeholdt enebolig med 2 hybler & garasje | Solrike uteplasser på samlet 57 kvm | Barnevennlig i blindvei
Pris og areal
Prisantydning
12 990 000 ,-
Omkostninger
344 740 ,-
totalpris
13 334 740 ,-
bruksareal
265 m2
internt bruksareal
239 m2
eksternt bruksareal
26 m2
Kort fortalt
Milad Alexander Sabori v. Emera Eiendomsmegling ønsker velkommen til Vårveien 71! En velholdt enebolig med fleksibel planløsning og gode utleiemuligheter, beliggende i et etablert nabolag i Simensbråten. Eiendommen har en hoveddel og to hybler i underetasjen, perfekt for utleie eller en flergenerasjonsfamilie. Boligen ligger i et barnevennlig område med kort vei til marka og enkel tilgang til Ryen T-banestasjon. Høydepunkter: Stor enebolig med samlet BRA-i på 230 m² Skattefri leieinntekter ved utleie av to hybler - ca. 23 000,- i mnd. Uteplasser på totalt 57 m² som vender både sydøst og vest Garasje på 26 m² Fem soverom Vaskerom Barnevennlig beliggenhet i blindvei Se "Standard" for nylige oppgraderinger
Nøkkelinfo
Boligtype
Enebolig
Eierform
Eier
Antall soverom
5
antall bad
3
byggeår
1973
energimerking
G
tomteareal
803 m2 (eiet)
garasje
Ja
veranda
Ja
Objektbeskrivelse
Tomten
Tomtestørrelse: 803 m2 (eiet)
Eiet tomt på 803 m² ifølge arealbekreftelse fra kommunen. Tomten er skrå mot baksiden av boligen. Hagen består av plenarealer, diverse beplantning og trær. Gårdsplassen er gruset. Deler av uthuset på nordvestlig side av tomten er plassert på nabotomten uten at det foreligger avtale om dette. Uthuset kan kreves flyttet eller fjernet av naboen. Noen av naboene har adkomstrett over tomten, se vedlagt kart og erklæring for oversikt.
Byggeår
1973
Arealer
BRA-i: 239m2
BRA-e: 26m2
Totalt BRA: 265m2
TBA: 57m2
Arealbeskrivelse
Enebolig
Kjeller
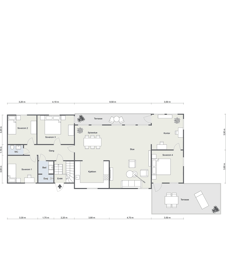
BRA-I: 100 m² Entré, to kjøkken, to bad, to stuer, gang, hall, soverom, bod
BRA-E: 26 m² Garasje
1. etasje
BRA-I: 139 m² fire soverom, hall m/trapp, kontor, stue, gang, spisestue, kjøkken, bad/vaskerom, toalettrom
Kjeller
22 m² Terrasse- og balkongareal
1. etasje
35 m² Terrasse- og balkongareal
Antall soverom
5
Antall rom
8
Innhold
Enebolig over to plan som består av følgende rom: 1. etasje: Hall med trapp, stue, spisestue, kjøkken, kontor, fire soverom, bad/vaskerom og toalettrom. Kjeller: Entré, hall, to stuer, to kjøkken, soverom, to bad og bod. Eiendommen har terrasse- og balkongareal på totalt 57 m², hvorav 35 m² er i 1. etasje og 22 m² i kjelleretasjen. Det er en garasje på 26 m² tilknyttet bygningskroppen.
Standard
Dette er en innholdsrik enebolig over to plan med en fleksibel planløsning og to hybler i underetasjen. Hovedetasjen er i stor grad nyoppusset med nytt elektrisk anlegg fra 2026, mens kjelleren byr på flere muligheter, inkludert en nylig oppgradert del og en eldre del med potensial. Boligen har store uteplasser på til sammen 57 m² fordelt på begge plan. Oppgraderinger og forbedringer gjort av selger: - Varmekabler i oppkjørselen / veien foran huset - Nye automatiske sikringer (automatsikringer) installert i både bolig og garasje - Nytt kjøkken i kjeller - Nytt bad i kjeller - Vinterhage er erstattet, og det er bygget to nye rom - Det er søkt om rammetillatelse for tilbygg og påbygg - Oppussing av 1. etasje, med unntak av bad, toalett og kjøkken - Oljetank er fjernet - Ny ladeboks for elbil installert i garasjen Hall: Fra en malt hovedytterdør kommer du inn i en hall som fordeler tilgangen til resten av hovedetasjen. Døren inn til stuen har glassfelt, som gir et glimt av de store fellesrommene innenfor. Stue og spisestue: Stuen og spisestuen utgjør et stort, åpent areal med en gjennomgående og lys atmosfære. En bred vindusrekke fyller rommet med dagslys og gir utsikt over nærområdet. Her er det god plass til både en romslig sofagruppe og et stort spisebord for sosiale sammenkomster. Fra spisestuen er det direkte utgang til en stor terrasse. Kjøkken: Kjøkkenet i første etasje har en praktisk U-form med godt med skap- og benkeplass. Innredningen har glatte fronter og benkeplate i laminat. Av hvitevarer medfølger kjøleskap, oppvaskmaskin, komfyr og platetopp. Rommet har et moderniseringsbehov. Soverom: Hovedetasjen inneholder fire soverom av varierende størrelse. Dette gir fleksibilitet til å innrede etter behov, enten det er som barnerom, gjesterom eller kontor. Et av rommene har utgang til terrassen. Alle rommene er en del av den nyoppussede etasjen. Bad/vaskerom: Badet i første etasje er kombinert med vaskerom og har opplegg for vaskemaskin. Rommet har flislagt gulv med elektriske varmekabler, dusjhjørne og servantinnredning. Badet er funksjonelt, men har et moderniseringsbehov. Toalettrom: I tillegg til badet har etasjen et separat toalettrom. Kontor: Et eget rom i denne etasjen er definert som kontor, og gir en fin, adskilt arbeidsplass. Terrasse 1. etasje: Fra stuen er det utgang til en terrasse på 35 m². Dette er en god uteplass som fungerer som en fin utvidelse av boligen i sommerhalvåret. Kjelleretasje: En malt tretrapp leder ned til kjelleren. Denne etasjen er innholdsrik og har en sammensatt standard. Her finnes det som i praksis er to separate deler, hver med kjøkken, bad og stue. En del ble oppgradert i 2023, mens den andre delen har eldre standard og behov for oppussing. Kjelleren har også egen inngang og utgang til en markterrasse. Kjeller – oppgradert del (2023): Den ene delen av kjelleren har et kjøkken og et bad som begge ble renovert i 2023. Kjøkkenet har en moderne innredning med glatte fronter. Badet er flislagt med elektriske varmekabler, vegghengt toalett og dusjhjørne. Stuen i denne delen har en vedovn som gir varme og en lun atmosfære. Kjeller – eldre del: Den andre delen av kjelleren har en eldre standard og et tydelig oppussingsbehov. Her er det et kjøkken med profilerte fronter og en stue. Badet i denne delen har et totalrenoveringsbehov. Soverom i kjeller: Kjelleren har i tillegg et soverom. Markterrasse: Fra kjelleren er det utgang til en markterrasse på 22 m². Overflater: Gulv: Laminat. Fliser på bad/vaskerom i 1. etasje og begge bad i kjeller. Vegger: Trepanel, malte plater og strie. Fliser på bad/vaskerom i 1. etasje og begge bad i kjeller. Himling: Malte plater. Lagring: Bod i kjeller. Garasje på 26 m². For fullstendig teknisk informasjon om boligen, se punktet Byggemåte i salgsoppgaven. Dersom det er registrert avvik med tilstandsgrad (TG) 2 eller 3 i tilstandsrapporten, oppfordres interessenter spesielt til å undersøke disse forholdene nærmere, da gitte tilstandsgrader er et konkret uttrykk for alder/slitasje/ødeleggelser/konsekvenser som innebærer kostnader til utbedring. Kjøper må innta disse vurderingene og medfølgende utbedringskostnader i sin kjøpsbeslutning, jf. avhl. § 3-10. Det samme gjelder eventuelt andre opplysninger om kjente risikofaktorer, som for eksempel ufaglært arbeid, begrenset kontroll av det elektriske anlegget og opplysninger fra selgers egenerklæringsskjema.
Innbo og løsøre
Når ikke annet er avtalt, overdras eiendommen med innredninger og utstyr som etter lov, forskrift eller annet offentlig vedtak skal følge med, jf. avhendingsloven. Det samme gjelder varig innredning og utstyr som enten er fastmontert eller er særskilt tilpasset bygningen. Loven inneholder ingen detaljert oversikt over hva som omfattes av «innredning og utstyr», og over hva som skal regnes som «fastmontert eller særskilt tilpasset». Partene kan fritt avtale hva som skal følge eiendommen ved salg. Bransjens liste over løsøre og tilbehør som skal følge med eiendommen, er en del av avtalen mellom kjøper og selger dersom ikke annet er opplyst i salgsoppgaven, kjøper har tatt forbehold i bud eller annen måte er inngått. Er ikke annet avtalt, vil løsøre og tilbehør medfølge slik dette fremkommer av avhendingsloven og bransjens tilbehørsliste inntatt i salgsoppgaven.
Parkering
Garasje med et areal på 26 m². Det er i tillegg gode parkeringsmuligheter på egen tomt.
Sammendrag av selgers egenerklæring
Selger har i forbindelse med salget fylt ut egenerklæringsskjema som vedlagt salgsoppgaven. I skjemaet fremkommer følgende informasjon: Følgende informasjon fremkommer: Kjellerbad 2 er av eldre dato og har behov for oppgradering. Kjøkken er eldre og har synlige skader/slitasje på fronter. Drenering rundt boligen og tak er gammel. Det kan være behov for utbedring. Kjenner du til om det er/har vært feil tilknyttet våtrommene, f.eks. sprekker, lekkasje, råte, lukt eller soppskader? Ja. Det er opplyst fukt og sopp i kjeller bad 2. Kjenner du til om det er utført arbeid på bad/våtrom? Ja. Faglært arbeid: Hvilket år ble jobben fullført?: Ikke spesifisert Firmanavn: TT Bygg & Oppussingstjenester Beskrivelse av arbeidet: Nyt bad i Kjeller 1 2.1 Ble tettesjikt/membran/sluk oppgradert/fornyet? Ja. Nyt membran, Sluk osv. 2.2 Er arbeidet byggemeldt? Nei. Kjenner du til om det er/har vært utført arbeid på el-anlegget eller andre installasjoner (f.eks. oljetank, sentralfyr, ventilasjon)? Ja. Faglært arbeid: Hvilket år ble jobben fullført?: Ikke spesifisert Firmanavn: AJS Proaktiv AS Beskrivelse av arbeidet: Ny elektrikk i 1st etasje 11.1 Foreligger det samsvarserklæring (i henhold til forskrift om elektriske lavspenningsanlegg)? Ja. Har du ladeanlegg/ladeboks for elbil i dag? Ja. Faglært arbeid: Hvilket år ble jobben fullført?: Ikke spesifisert Firmanavn: Helset Elektro AS Beskrivelse av arbeidet: Ladeboks i garasje Kjenner du til om det har vært utført arbeid på terrasse/garasje/tak/fasade? Ja. Faglært arbeid: Hvilket år ble jobben fullført?: Ikke spesifisert Firmanavn: BYGG OG ANLEGG ENTREPRENØR AS Beskrivelse av arbeidet: Tilbygg av ny rom over garasje. Selges eiendommen med utleiedel, leilighet, hybel eller tilsvarende? Ja. Den eiendom har 2 hybeler. 17.1 Er ovenfornevnte godkjent hos bygningsmyndighetene? Ja. De er godkjent enheter. Kjenner du til om det er innredet/bruksendret/bygget ut i kjeller eller loft eller andre deler av boligen? Ja. Et bad i kjeller og soverom. 18.1 Er innredning/utbyggingen godkjent hos bygningsmyndighetene? Ja. Det ligger godkjent papirer fra kommune. Er det andre forhold av betydning ved eiendommen som kan være relevant for kjøper å vite om (f.eks. rasfare, tinglyste forhold eller private avtaler)? Ja. Den eiendom har tinglyst garasjeplass i Lyngveien 48, og vår nabo har kjørerett over tomten.
Bygningssakkyndig
Tore Haugstulen
Byggemåte
Informasjon er hentet fra vedlagte tilstandsrapport, datert 12.04.2026. Bygning: Enebolig oppført i 1973 over to plan, bestående av 1. etasje og kjeller. Veggene har bindingsverkskonstruksjon fra byggeår med stående bordkledning. Etasjeskiller er av betongdekke. Bygningen har grunnmur i lettklinkerblokker og stripefundamenter av betong. Rom under terreng har en konstruksjon som gjør hulltaking unødvendig. Tak: Taktekkingen er av pappshingel. Takkonstruksjonen har W-takstoler i tre. Takrenner og nedløp er av stål. Pipe/Ildsted: Boligen har mursteinspipe og vedovn i kjeller. Vinduer: Bygningen har malte trevinduer med 2-lags glass. Dører: Bygningen har malt hovedytterdør. Innvendig har boligen malte fyllingsdører. Trapper/adkomst: Boligen har malt tretrapp. Balkong/terrasse: Totalt terrasse- og balkongareal (TBA) er 57 m² (35 m² i 1. etasje og 22 m² i kjeller). VVS-installasjoner: Innvendige vannledninger er av plast (rør i rør). Det er avløpsrør av plast. Ventilasjon: Boligen har naturlig ventilasjon. Bad/vaskerom i 1. etasje og bad i kjeller har mekanisk avtrekk. Det er kjøkkenventilator med avtrekk ut i kjøkken i 1. etasje, kjøkken i kjeller og kjøkken 2 i kjeller. Tekniske detaljer: Oppvarming med elektriske varmekabler på bad/vaskerom i 1. etasje og bad i kjeller. Det er en vedovn i kjeller. Elektrisk anlegg: noe skjult og noe åpent anlegg Foreligger det eltilsynsrapport de siste 5 år, og det er ikke foretatt arbeid på anlegget etter denne, utenom retting av eventuelle avvik i eltilsynsrapport (dvs en el-tilsynsrapport uten avvik)? - Nei Når ble det elektriske anlegget installert eller sist gang totalt rehabilitert (årstall)? Med totalt rehabilitert menes fullstendig utskiftet anlegg fra inntakssikring og videre. - 2026 i første etg er det nytt elektrisk i følge eier Er alle elektriske arbeider/anlegg i boligen utført av en registrert elektroinstallasjonsvirksomhet? - Ja i følge eier Er det elektriske anlegget utført eller er det foretatt tilleggsarbeider på det elektriske anlegget etter 1.1.1999? - Ja Eksisterer det samsvarserklæring? Ja i følge eier Foreligger det kontrollrapport fra offentlig myndighet – Det Lokale Eltilsyn (DLE) eller eventuelt andre tilsvarende kontrollinstanser med avvik som ikke er utbedret eller kontrollen er over 5 år? - Nei i følge eier Forekommer det ofte at sikringene løses ut? - Nei i følge eier Har det vært brann, branntilløp eller varmgang (for eksempel termiske skader på deksler, kontaktpunkter eller lignende) i boligens elektriske anlegg? - Nei i følge eier Er det tegn til at det har vært termiske skader (tegn på varmgang) på kabler, brytere, downlights, stikkontakter og elektrisk utstyr? Sjekk samtidig tilstanden på elektrisk tilkobling av varmtvannsbereder, jamfør eget punkt under varmtvannstank - Nei Er der synlig defekter på kabler eller er disse ikke tilstrekkelig festet? - Nei Er det tegn på at kabelinnføringer og hull i inntak og sikringsskap ikke er tette, så langt dette er mulig å sjekke uten å fjerne kapslinger? - Ja Finnes det kursfortegnelse, og er den i samsvar med antall sikringer? - Ja Foreta en helhetsvurdering av det elektriske anlegget, dets alder, allmenne tilstand og fare for liv og helse. Bør det elektriske anlegget ha en utvidet el-kontroll? - Ja Anlegget i kjeller bør gjennomgås TG3 - Store eller alvorlige avvik: - Overflater | Det er stedvis påvist synlige skader på overflater. Overflater har en del slitasjegrad utover det en kan forvente. Kjeller trenger oppusning, 1 etg er nyoppusset utenom bad og kjøkken. Overflater må utbedres eller skiftes. - Terrengforhold | skrå tomt mot baksiden av boligen med dårlig/eldre drenering. Det er påvist dårlig fall eller flatt terreng inn mot grunnmur og dermed muligheter for større vannansamlinger. Terrenget faller inn mot bygningen og det er maksimale forhold for vann inn mot muren. Det bør foretas terrengjusteringer. Ytterligere undersøkelser anbefales. - Kjøkken 1. etasje - Overflater og innredning | Det er påvist at overflater/kjøkkeninnredning har omfattende skader. Det er påvist skader på overflater/kjøkkeninnredning utover normal slitasjegrad. Det er ved bruk av fuktindikator rundt utsatte hvitevarer påvist indikasjoner på fuktighet. Det må foretas full utskiftning av overflater/innredning. - Bad 2 i kjeller - Generelt | Våtrommet må oppgraderes for å tåle normal bruk etter dagens krav. Våtrommet må totalrenoveres. Alle forhold med tettesjikt, våtsone, sluk m.m. må dokumenteres. Våtrommet har behov for omfattende oppgraderinger. For å sikre en løsning som oppfyller gjeldende krav, bør tettesjikt, sluk og røropplegg oppgraderes og dokumenteres. Manglende oppgradering av våtrommet medfører høy risiko for at konstruksjonene ikke vil tåle vanlig bruk av vann eller lekkasjer. Dette kan føre til fuktskader på tilstøtende konstruksjoner. - Bad 2 i kjeller - Tilliggende konstruksjoner | Hulltaking er ikke foretatt da det allerede er påvist andre avvik i våtsonen. Ved fuktmåling i nedre del av vegg mot våtsone fra tilstøtende rom, måles høye fuktverdier. Gjennomføre ytterligere undersøkelser og foreta utbedring av skade. Dersom tiltaket ikke utføres er det fare for ytterligere skadeutvikling. TG2 - Avvik som kan kreve tiltak: - Taktekking | Mer enn halvparten av forventet brukstid er passert på taktekkingen. Overvåk tilstanden jevnlig. For å få tilstandsgrad 0 eller 1 må tekkingen skiftes ut, men tidspunktet for når dette er nødvendig er vanskelig å si noe om. Når taktekking og undertak begynner å bli gamle, øker risikoen for lekkasjer, noe som kan føre til omfattende og kostbare reparasjoner av underliggende konstruksjoner dersom en ikke foretar tiltak på konstruksjonene før dette oppstår. - Nedløp og beslag | Det mangler snøfangere på hele eller deler av taket, men det var ikke krav om dette på byggemeldingstidspunktet. Det er ikke krav om utbedring av snøfangere opp til dagens krav. - Veggkonstruksjon | Det er ingen musesperre i nedre kant av konstruksjon. Det er værslitt/oppsprukket trevirke/trepaneler. Lokal utbedring/utskiftning bør utføres. Musesperre må etableres. - Vinduer | Det er påvist at enkelte vinduer er vanskelig å åpne/lukke. Det er påvist tegn på innvendig kondensering av enkelte vindusglass. Karmene i vinduer er slitte og det er sprekker i trevirket. Det må påregnes noe vedlikehold og at enkelte vinduer må skiftes ut. - Vannledninger | Det er påvist at eventuelt lekkasjevann fra rør i rør system ikke ledes til sluk eller annen kompenserende løsning. Det bør foretas tiltak på anlegget som sikrer bedre løsning på eventuelt lekkasjevann fra rør i rør system. - Fuktsikring og drenering | Mer enn halvparten av forventet levetid på drenering er overskredet. Tiltak for redrenering rundt boligen kan ikke utelukkes. Overvåk tilstanden jevnlig. For å få tilstandsgrad 0 eller 1 må dreneringen skiftes ut, men tidspunktet for når dette er nødvendig er vanskelig å si noe om. - Grunnmur og fundamenter | Grunnmuren har sprekkdannelser. Lokal utbedring må utføres. - Bad/vaskerom 1. etasje - Overflater vegger og himling | Svertesopp er registrert. Det må gjøres tiltak for å utbedre avviket. - Bad/vaskerom 1. etasje - Overflater gulv | Det er mulighet for at det kan forekomme vannlekkasje på våtrommet hvor vann ikke vil gå til sluk. Det er påvist at høydeforskjell fra topp slukrist til gulv/synlig topp membran ved dørterskel er mindre enn 25 mm. Det er påvist symptom på fukt/råteskader. Til tross for avviket i fall/høydeforskjell til sluk, vil gulvet fortsatt kunne lede vann mot sluket, men med redusert effektivitet. Dette kan potensielt øke risikoen for vannansamling i enkelte områder av badet. Det må gjennomføres ytterligere undersøkelser og foretas utbedring av eventuell skade. - Bad/vaskerom 1. etasje - Sluk, membran og tettesjikt | Membran kan ikke konstateres (ikke synlig og det foreligger heller ikke dokumentasjon). Mer enn halvparten av forventet brukstid er passert på membranløsningen. Mer enn halvparten av forventet brukstid er passert på slukløsningen. Sluket må sjekkes og rengjøres jevnlig. Overvåk tilstanden jevnlig. For å få tilstandsgrad 0 eller 1 må slukløsningen skiftes ut og sannsynligvis må også membransjiktet skiftes/utbedres. Det er imidlertid vanskelig å si noe om tidspunktet for når dette er nødvendig. Eldre sluk av plast er ofte utsatt for lekkasjer og særlig i overganger. Eventuelle lekkasjer kan medføre fuktskader på tilliggende konstruksjoner. Det er viktig å merke seg at levetiden til en membran varierer basert på kvalitet, installasjon og bruk. Eldre membraner kan bli sprø og sprekke opp, noe som fører til at de mister sin vanntettende funksjon. Dette kan resultere i vannlekkasjer gjennom vegger og gulv og fuktskader. - Bad/vaskerom 1. etasje - Sanitærutstyr og innredning | Det er påvist skader på innredning. Dersom avvik ikke utbedres er det fare for videre skadeutvikling. - Bad/vaskerom 1. etasje - Tilliggende konstruksjoner | Hulltaking er ikke foretatt da det allerede er påvist andre avvik i våtsonen. Hulltaking er ikke foretatt da det allerede er påvist andre avvik i våtsonen. Gjennomføre ytterligere undersøkelser og foreta utbedring av skade. - Kjøkken i kjeller - Overflater og innredning | Det er påvist skader på overflater/kjøkkeninnredning utover normal slitasjegrad. Det må påregnes lokal utbedring/utskiftning. - Kjøkken 2 i kjeller - Overflater og innredning | Det er påvist skader på overflater/kjøkkeninnredning utover normal slitasjegrad. Det er påvist skader/fuktskjolder i kjøkkengulvet. Det er ikke behov for utbedringstiltak. Det må påregnes lokal utbedring/utskiftning. TGIU - Ikke undersøkt/utilgjengelig: - Bad i kjeller - Tilliggende konstruksjoner | Hulltaking er ikke foretatt da det ikke er fysisk mulig pga tilliggende konstruksjoner. Helse, miljø og sikkerhet - Innvendige trapper - Åpninger i rekkverk | Åpninger i rekkverk er større enn dagens forskriftskrav til rekkverk i innvendige trapper. Det er ikke krav om utbedring av åpninger i innvendige trapper opp til dagens krav. Åpninger i innvendige trapper er såpass store at det ut ifra sikkerhetsmessige forhold anbefales å lage mindre åpninger. - Innvendige trapper - Åpninger mellom trinn | Åpninger mellom trinn i innvendig trapp er større enn dagens forskriftskrav. Det er ikke krav om utbedring av åpninger i innvendige trapper opp til dagens krav. Åpninger i innvendige trapper er såpass store at det ut ifra sikkerhetsmessige forhold anbefales å lage mindre åpninger. - Radon | Det er ikke foretatt radonmålinger, og bygget er heller ikke utført med radonsperre. Det bør gjennomføres radonmålinger. - Utvendige trapper - Rekkverkshøyder | Rekkverkshøyder er under dagens forskriftskrav til rekkverk i utvendige trapper. Opplistingen over er ikke uttømmende og du oppfordres til å lese og sette deg grundig inn i alt salgsmateriell. For ordens skyld nevner vi at TGIU står for tilstandsgrad ikke undersøkt, f.eks. fordi en del av bygget ikke har vært tilgjengelig for inspeksjon. Disse delene kan dermed ha feil eller mangler som ikke er avdekket. Tilstandsrapporten beskriver byggverkets tekniske tilstand. Det er ikke foretatt kontroll av de elektriske installasjonene (el-takst) selv om bygningssakkyndig kan ha knyttet noen kommentarer til elanlegget ut i fra helt enkle vurderingskriterier. Siden elanlegget ikke er kontrollert er det sannsynlig at det siden kan avdekkes avvik fra dagens forskriftskrav og oppstå funksjonssvikt. Videre må kjøper være forberedt på det må foretas oppgraderinger på grunn av slitasje, fraværende vedlikehold, arbeider som er utført av ufaglærte, utidsmessighet eller tekniske løsninger som ikke holder dagens standard. I Norge er det en av oppgavene til Det lokale el-tilsynet (DLE) å foreta tilsyn av elektriske anlegg i boliger og fritidsboliger. Alle boliger skal ha periodisk kontroll hvert 20 år og hytter/fritidsboliger kontrolleres hvert 30 år. El-anlegget er en bygningsdel som er gjenstand for konstant utvikling, det må derfor påregnes at dagens anlegg ikke nødvendigvis er dimensjonert for oppgradering av kjøkken med nye elektriske apparater, rehabilitering av bad m/varmekabler eller installeringer elbillader.
Kommunale avgifter
35 915,- pr. 2026
Feie-og tilsynsgebyr: 474,00 Renovasjonsgebyr: 14 566,19 Vann-og avløpsgebyr: 20 875,28 Totale avgifter: 35 915,47
Eiendomsskatt
13 750,- pr. 2026
I Oslo kommune er det eiendomsskatt på boliger og fast eiendom som overstiger en fastsatt verdi. Informasjonen over er hentet fra eiendomsskattelistene. http://www.oslo.kommune.no/skatt-og-naring/skatt-og-avgift/eiendomsskatt/eiendomsskatt Eiendomskatt for 2026 er estimert til ca. 13 750,-.
Formuesverdi
Formuesverdi primær: 4 847 152 pr. 2024
Formuesverdi sekundær: 13 353 074 pr. 2024
Skatteetaten beregner en boligverdi (beregnet markedsverdi for bolig) basert på SSBs statistiske opplysninger om omsatte boliger. I beregningen tas det hensyn til boligens beliggenhet, areal, byggeår og type bolig. Stortinget har vedtatt en ny modell for beregning som skal benyttes fra og med inntektesåret 2026, og den nye modellen henter informasjon om omsatte boliger fra grunnkretser i stedet for kommuner. Formuesverdien er en prosentandel av den beregnede boligverdien. Den nye utregningsmodellen kan medføre en høyere eller lavere markedsverdien enn tidligere. Det tas derfor forbehold om at formuesverdien kan bli endret og eventuelt øke ved endelig fastsettelse i skatteåret. For mer informasjon om formuesverdi, se Skatteetatens nettsider.
Beliggenhet
Vårveien 71 ligger tilbaketrukket på Simensbråten, et område som kombinerer småhusfølelsen med umiddelbar nærhet til byens puls. Herfra har du gangavstand til Ryen T-banestasjon, som tar deg til sentrum på under ti minutter. Samtidig gir den høye og frie beliggenheten en følelse av å være på landet, midt i byen. Hverdagslogistikken er enkel. De daglige innkjøpene kan gjøres på Rema 1000 Ryen, en kort spasertur unna. Flere barnehager, som Svartdalsparken Kanvas-barnehage og Brumlebassen barnehage, ligger innenfor ti minutters gange. For skolebarn er det gangavstand til Ryenberget skole. Med bil er det også kort vei til Manglerud Senter for et bredere utvalg av butikker og tjenester. Når arbeidsuken er over, åpner marka seg. Området byr på flotte turmuligheter, med stier som leder mot Brannfjell og Ekeberg. For organiserte aktiviteter finnes SATS og EVO på Ryen, samt Svartdalen balløkke og Høyenhallen for ballspill og bordtennis. Ekebergparken, med sin unike kombinasjon av skulptur, natur og utsikt over fjorden, er en kort tur unna for kulturelt påfyll i det fri.
Adkomst
På høyre side i annonsen finner du et kartutsnitt. Ved å klikke på kartet kan du enkelt planlegge din rute fra valgt startpunkt og helt frem til boligen. Det vil være skiltet ved fellesvisninger for enkel orientering.
Energiklasse
G
Info energiklasse
Boligen er ikke energimerket i forbindelse med salget. Det gjøres oppmerksom på at kjøper kan få utarbeidet en energiattest på selgers regning, innen ett år etter at avtalen om salg er inngått.
Oppvarming
Elektrisk oppvarming med varmekabler på bad/vaskerom i 1. etasje og på bad i kjeller. Boligen har også vedovn i kjeller.
Ferdigattest / brukstillatelse
Det foreligger ferdigattest for nybygg av enebolig med hybelleiligheter datert 25.03.1977. Ferdigattest utstedes av bygningsmyndighetene basert på dokumentasjon mottatt fra kontrollansvarlig når et søknadspliktig tiltak er utført i samsvar med tillatelsen og øvrige krav etter plan- og bygningslovgivningen. Det er viktig å merke seg at selv om ferdigattest foreligger, gir det ingen garanti for at bygget er oppført i henhold til tillatelsen og gjeldende regelverk, eller at det senere er utført arbeid på bygget som ikke er byggemeldt eller godkjent. Jf. plan- og bygningsloven § 21-10 (5) utstedes det ikke lengre ferdigattest for tiltak det er søkt om før 01.01.1998. Dette innebærer at byggverkene lovlig kan brukes og omsettes uten at det foreligger ferdigattest. Det betyr imidlertid ikke at ulovlige bygde tiltak blir lovlige. Det foreligger i tillegg følgende dokumentasjon i saken: - Ekspedisjonsdokument for levegg/utepeis datert 01.10.1993. Det foreligger godkjente og byggemeldte tegninger datert juli/august 1972, med stempel fra Oslo bygningskontroll datert 28.03.1974. Det er avvik mellom godkjente byggetegninger og dagens planløsning: 1. etasje: - Tidligere terrasse og vinterhage er omgjort til kontor og soverom - Det er bygget en terrasse i tilknytning soverom 4 i 1. etasje Underetasjen: - Vask- og tørkerom er omgjort til bad - WC er omgjort til bod - I gangen er det satt opp en lettvegg - Rom benevnt som "Klær" er omgjort til soverom Fasadeendringen og bruksendringene er ikke omsøkt eller godkjent. Bruksendring fra tilleggsdel til hoveddel og fasadeendringer en søknadspliktige bruksendringer. Kjøper overtar eiendommen slik den fremstår på visning med risiko og ansvaret for eventuelle pålegg fra kommunen og kostnader forbundet med dette.
Vei, vann og avløp
Eiendommen er tilknyttet offentlig vei, vann og avløp. Alle eiendommer som er tilknyttet offentlig vann og avløp har private stikkledninger, som vedlikeholdes for eiers egen regning. For ytterligere opplysninger om de private stikkledningene tar man kontakt med kommunen.
Regulerings- og arealplaner
Eiendommen er regulert til Bolig m.tilh. anlegg innenfor feltnavn 110, i henhold til reguleringsplan S-4220 «REGULERINGSPLAN FOR SMÅHUSOMRÅDER I OSLOS YTRE BY,(SMÅHUSPLANEN)», vedtatt 15.03.2006. Eiendommen omfattes av Kommuneplanen 2015-2030, vedtatt 23.09.2015. Arealbruken er i planen avsatt til bebyggelse og anlegg, eksisterende. Eiendommen er regulert etter reguleringsplan S-4220 «Småhusplanen», vedtatt 15.03.2006. Kommunal- og distriktsdepartementet (KDD) har avgjort 14.10.2023 å ikke godkjenne revidert småhusplan for Oslo kommune. Begrunnelsen er at planen ikke oppfyller krav til vurdering av flom- og skredfare. Det er midlertidig forbud mot tiltak i de aktuelle områdene (saksnummer 202304720 hos PBE). Forbudet gjelder fram til ny plan er vedtatt. I områder omfattet av midlertidig forbud mot tiltak kan man ikke gjennomføre tiltak etter Plan- og bygningsloven uten at tiltakene eksplisitt er unntatt fra forbudet. Eiendommen berøres av følgende hensynssoner i henhold til Kommuneplanen 2015-2030: - Hensynssone H310_2: Faresone for steinsprang. Ved tiltak i sonen må sikkerhet mot skred dokumenteres i henhold til krav i byggteknisk forskrift (TEK17). - Hensynssone H190_2: Andre sikringssoner. Sonen er knyttet til jernbanen og kan medføre restriksjoner for bygge- og anleggstiltak. Området er stadig under endring/utvikling, bygg settes opp, rehabiliteres og rives ned. Vi anbefaler derfor alle budgivere å sette seg inn i gjeldende reguleringsbestemmelser. Kopi av situasjonskart, målebrev, reguleringsplaner m/bestemmelser etc. ligger vedlagt i salgsoppgaven eller kan fås ved henvendelse til megler. Vi oppfordrer interessenter til å gjøre seg kjent med disse.
Tinglyste heftelser og rettigheter
På eiendommen er det tinglyst følgende heftelser og rettigheter som følger eiendommens matrikkel ved overskjøting til ny hjemmelshaver: 0301/149/672: 02.07.2014 - Dokumentnr: 548147 - Bestemmelse om veg RETTIGHETSHAVER: KNR: 0301 GNR: 149 BNR: 157 RETTIGHETSHAVER: KNR: 0301 GNR: 149 BNR: 559 RETTIGHETSHAVER: KNR: 0301 GNR: 149 BNR: 673 RETTIGHETSHAVER: KNR: 0301 GNR: 149 BNR: 674 RETTIGHETSHAVER: KNR: 0301 GNR: 149 BNR: 721 14.11.2017 - Dokumentnr: 1270275 - Bestemmelse om vannledning RETTIGHETSHAVER: KNR: 0301 GNR: 149 BNR: 264 FNR: 0 SNR: 1 RETTIGHETSHAVER: KNR: 0301 GNR: 149 BNR: 264 FNR: 0 SNR: 2 RETTIGHETSHAVER: KNR: 0301 GNR: 149 BNR: 264 FNR: 0 SNR: 3 GJELDER DENNE REGISTERENHETEN MED FLERE 14.11.2017 - Dokumentnr: 1270275 - Bestemmelse om kloakkledning RETTIGHETSHAVER: KNR: 0301 GNR: 149 BNR: 264 FNR: 0 SNR: 1 RETTIGHETSHAVER: KNR: 0301 GNR: 149 BNR: 264 FNR: 0 SNR: 2 RETTIGHETSHAVER: KNR: 0301 GNR: 149 BNR: 264 FNR: 0 SNR: 3 GJELDER DENNE REGISTERENHETEN MED FLERE 14.03.2018 - Dokumentnr: 543087 - Bestemmelse om vannledning Rettighetshaver: OSLO KOMMUNE ORG.NR: 958 935 420 GJELDER DENNE REGISTERENHETEN MED FLERE 14.03.2018 - Dokumentnr: 543087 - Bestemmelse om kloakkledning Rettighetshaver: OSLO KOMMUNE ORG.NR: 958 935 420 GJELDER DENNE REGISTERENHETEN MED FLERE Eiendommens rettigheter: 16.06.2005 - Dokumentnr: 38078 - Erklæring/avtale Rettighet hefter i: KNR: 0301 GNR: 149 BNR: 264 FNR: 0 SNR: 1 Rettighet hefter i: KNR: 0301 GNR: 149 BNR: 264 FNR: 0 SNR: 2 Rettighet hefter i: KNR: 0301 GNR: 149 BNR: 264 FNR: 0 SNR: 3 Rettighet hefter i: KNR: 0301 GNR: 149 BNR: 264 FNR: 0 SNR: 4 Rettighet hefter i: KNR: 0301 GNR: 149 BNR: 264 FNR: 0 SNR: 5 Rettighet hefter i: KNR: 0301 GNR: 149 BNR: 264 FNR: 0 SNR: 6 Bestemmelse om adkomstrett Rettighetshaver: Gjelder også fremtidig utskilte parseller av.d.e. Med flere bestemmelser GJELDER DENNE REGISTERENHETEN MED FLERE 02.07.2014 - Dokumentnr: 548015 - Bestemmelse om veg Rettighet hefter i: KNR: 0301 GNR: 149 BNR: 721 GJELDER DENNE REGISTERENHETEN MED FLERE 02.07.2014 - Dokumentnr: 548166 - Bestemmelse om veg Rettighet hefter i: KNR: 0301 GNR: 149 BNR: 157 FNR: 0 SNR: 1 Rettighet hefter i: KNR: 0301 GNR: 149 BNR: 157 FNR: 0 SNR: 2 Rettighet hefter i: KNR: 0301 GNR: 149 BNR: 157 FNR: 0 SNR: 3 GJELDER DENNE REGISTERENHETEN MED FLERE 02.07.2014 - Dokumentnr: 548178 - Bestemmelse om veg Rettighet hefter i: KNR: 0301 GNR: 149 BNR: 673 GJELDER DENNE REGISTERENHETEN MED FLERE 26.02.2016 - Dokumentnr: 170241 - Best. om adkomstrett Rettighet hefter i: KNR: 0301 GNR: 149 BNR: 556 Avtalen skal ikke overføres ved fradeling av gnr. 149 bnr. 556 18.04.2016 - Dokumentnr: 339121 - Best. om adkomstrett Rettighet hefter i: KNR: 0301 GNR: 149 BNR: 264 FNR: 0 SNR: 1 Rettighet hefter i: KNR: 0301 GNR: 149 BNR: 264 FNR: 0 SNR: 2 Rettighet hefter i: KNR: 0301 GNR: 149 BNR: 264 FNR: 0 SNR: 3 Rettighet hefter i: KNR: 0301 GNR: 149 BNR: 264 FNR: 0 SNR: 4 Rettighet hefter i: KNR: 0301 GNR: 149 BNR: 264 FNR: 0 SNR: 5 Rettighet hefter i: KNR: 0301 GNR: 149 BNR: 264 FNR: 0 SNR: 6 GJELDER DENNE REGISTERENHETEN MED FLERE 14.11.2017 - Dokumentnr: 1270275 - Bestemmelse om veg Rettighet hefter i: KNR: 0301 GNR: 149 BNR: 721 Bestemmelse om flytting av vei GJELDER DENNE REGISTERENHETEN MED FLERE 21.03.2024 - Dokumentnr: 1244906 - Erklæring/avtale Rettighet hefter i: KNR: 0301 GNR: 149 BNR: 556 Bestemmelse om vedlikehold av anlegg/ledninger GJELDER DENNE REGISTERENHETEN MED FLERE KAN IKKE SLETTES UTEN SAMTYKKE FRA: OSLO KOMMUNE EIENDOMS- OG BYFORN ORG.NR: 874 780 782 21.03.2024 - Dokumentnr: 1244906 - Bestemmelse om adkomstrett Rettighet hefter i: KNR: 0301 GNR: 149 BNR: 556 GJELDER DENNE REGISTERENHETEN MED FLERE KAN IKKE SLETTES UTEN SAMTYKKE FRA: OSLO KOMMUNE EIENDOMS- OG BYFORN ORG.NR: 874 780 782 Dokumenter kan fås ved henvendelse til megler.
Legalpant
Kommunen har legalpant for forfalte kommunale avgifter og ev. eiendomsskatt.
Boligselgerforsikring
Selger har tegnet boligselgerforsikring som dekker selgers ansvar etter avhendingsloven begrenset oppad kr. 20 000 000,-. Egenerklæringsskjema er vedlagt salgsoppgaven og interessenter oppfordres til å gjennomgå denne før bud inngis.
Boligkjøperforsikring
Kjøper har anledning til å tegne boligkjøperforsikring. Vedlagt i salgsoppgaven følger informasjon om Boligkjøperforsikring fra Söderberg & Partners. Boligkjøperforsikring er en rettshjelpsforsikring som gir trygghet og profesjonell juridisk hjelp dersom det oppdages uventede feil eller mangler ved boligen de neste fem årene. Les mer om Boligkjøperforsikring i vedlagte materiell eller på https://www.soderbergpartners.no/eiendom/boligkjoper/
Diverse
Både kjøper og selger er forpliktet til å signere den standard kjøpekontrakten som er utarbeidet av Emera i forbindelse med eiendomshandler. Kjøpekontrakten kan gjennomgås hos eiendomsmegleren før budet legges inn. Ta kontakt med eiendomsmegler dersom det er spørsmål. Selger leverer eiendommen i ryddig og rengjort tilstand.
Sentrale lover
Regelverk og generelle opplysninger Boligen selges med det inventar og utstyr som i henhold til gjeldende lover, forskrifter eller offentlige pålegg skal følge med eiendommen, jf. avhendingsloven § 3-4. Fastmonterte eller spesialtilpassede installasjoner og innredning som anses som varig tilknyttet boligen, følger normalt med i handelen, med mindre det foreligger en særskilt avtale mellom partene om noe annet, jf. avhendingsloven § 3-5. En standard tilbehørsliste utarbeidet av Norges Eiendomsmeglerforbund (NEF) følger salgsoppgaven, og gjelder som utgangspunkt for hva som inkluderes i salget – med mindre avvik er tydelig avtalt mellom kjøper og selger. Om informasjonsgrunnlaget Opplysninger om boligens størrelse og utforming, både innvendig og utvendig, bygger på informasjon hentet fra vedlagte tilstands- og boligsalgsrapport. Innholdet i salgsoppgaven er basert på selgers informasjon, fagkyndig vurdering, samt opplysninger fra offentlige registre som kommunen og Kartverket. Det er viktig at kjøper setter seg grundig inn i alle salgsdokumentene, herunder salgsoppgave, tilstandsrapport og selgers egenerklæring. Kjøper anses for å være kjent med forhold som er tydelig beskrevet i salgsdokumentene, slike forhold kan ikke senere gjøres gjeldende som en mangel ved boligen. Dette gjelder uavhengig av om dokumentene er lest. Det kan være forskjell mellom boligens faktiske bruk av rom og det som er godkjent av myndighetene. Alle interessenter anbefales derfor å undersøke eiendommen nøye, gjerne sammen med fagperson, før bud gis. Dersom kjøper velger å kjøpe uten å ha sett eiendommen, kan det ikke etter overtakelse reklameres på forhold som burde ha vært oppdaget ved en ordinær gjennomgang. Dersom det oppstår behov for ytterligere avklaringer, oppfordres interessenter til å kontakte eiendomsmegler eller egne rådgivere før de gir bud. Slitasje og bruk Det må også forventes at eiendommer som har vært i bruk, vil kunne ha tegn til slitasje og eventuelle skader. Slik normal bruksslitasje og behov for vedlikehold må kjøper påregne, og dette vil normalt ikke gi grunnlag for reklamasjon eller prisavslag. Avtalerettslig Partenes rettigheter og plikter reguleres av avtalen mellom partene, og all tilgjengelig dokumentasjon som forelå for kjøper før handelen ble inngått. I tillegg gjelder avhendingsloven. Det gjelder ulike avtalevilkår avhengig av om kjøper er forbrukerkjøper eller ikke, og dette er nærmere forklart nedenfor. Budgivning og selgers vurdering På grunn av ulike ansvarsforhold kan selger velge å prioritere bud fra ikke-forbrukere, selv om budet er lavere enn et forbrukerbud. Når kjøper ikke er forbruker, kan selges ansvar begrenses ettersom boligen selges «som den er», noe som kan være av verdi for selger. Det understrekes at selger står fritt til å velge hvilket bud som aksepteres, og er ikke forpliktet til å velge det høyeste. Alle budgivere må ved inngivelse av bud opplyse om de opptrer som forbruker eller som næringsdrivende/person som handler hovedsakelig som ledd i næringsvirksomhet. Det vil opplyses hvis konkurrerende bud kommer fra en ikke-forbruker. Forbrukerkjøp – definisjon og vilkår: Et forbrukerkjøp foreligger når en fysisk person kjøper eiendom uten at formålet hovedsakelig er knyttet til næringsvirksomhet. En eiendom anses å ha en mangel dersom den ikke oppfyller kravene som følger av avtalen, eller ved brudd på bestemmelser i avhendingsloven §§ 3-2 til 3-8. Det samme gjelder hvis eiendommen ikke samsvarer med det som med rimelighet kunne forventes ut fra blant annet alder, type og synlig tilstand – eller hvis det er tilbakeholdt, eller gitt feilaktige opplysninger, og dette har påvirket avtalen. Dersom det er avvik mellom oppgitt og faktisk innvendig areal på minst 2 % og samtidig minst 1 kvadratmeter, kan dette utløse rett til kompensasjon etter § 3-3 i avhendingsloven. Ved beregning av krav om prisavslag eller erstatning må kjøper selv dekke kostnader med inntil kr 10 000 (som en egenandel). Ikke-forbruker – definisjon og vilkår: Dersom kjøper er en juridisk enhet, eller en fysisk person som handler i næringssammenheng, regnes kjøpet ikke som et forbrukerkjøp. Ved slike kjøp selges eiendommen «som den er», og selgers ansvar er begrenset til det som følger direkte av avtalen, jf. avhendingsloven § 3-9. I disse tilfellene fravikes § 3-3 andre ledd, og eventuelle arealavvik vurderes etter § 3-8. Kjøperens plikt til å foreta grundige undersøkelser gjelder også fullt ut for kjøpere som ikke omfattes av forbrukerdefinisjonen.
Betalingsbetingelser
Hele oppgjøret må betales samlet fra en norsk bankkonto. Overføringer fra utlandet aksepteres kun unntaksvis, og kun dersom dette er forhåndsavtalt med megler i forbindelse med aksept av budet.
Viktig informasjon om budgivning
Bud kan legges inn på nettannonsen på "gi bud" knappen eller via hjemmesiden. Ved elektronisk budgivning kan bud legges inn trygt og enkelt med bank-ID. Eiendomsmegler kan også kontaktes for tilsendelse av budkjema, og budskjema finnes også i salgsoppgaven. Alle bud skal inngi skriftlig til eiendomsmegler. Kravet til skriftlighet gjelder også ved forhøyelse av bud, motbud og selgers aksept eller avslag. Før et bud kan formidles til selger må megler innhente gyldig legitimasjon og signatur fra budgiver. Kravet til legitimasjon og signatur er oppfylt dersom budgiver bruker e-signatur som f eks. bankID. Etter det første budet er inngitt, kan budgiver inngi bud pr e-post eller pr SMS til megler. Hvis budgiver skal by på eiendommen i henhold til en kjøpsfullmakt må megler kontaktes og fullmakten oversendes før budgivning. Et bud bør inneholde eiendommens adresse (eventuelt gnr/bnr), kjøpesum, budgivers kontaktinformasjon, finansieringsplan, akseptfrist, overtakelsesdato og eventuelle forbehold som for eksempel usikker finansiering, salg av nåværende bolig ol. Normalt vil ikke et bud med forbehold bli akseptert før forbeholdet er avklart. Konferer gjerne med megler før bud avgis. Megler skal legge til rette for en forsvarlig avvikling av budrunden. I forbrukerforhold (dvs. der selger er forbruker) skal megleren ikke formidle bud med kortere akseptfrist enn til kl. 12.00 første virkedag etter siste annonserte visning. Senere bud må ha en akseptfrist som er lang nok til at budet og eventuelle forbehold kan videreformidles til alle involverte parter slik at disse får tid til å områ seg, jf. forskrift om eiendomsmegling § 6-3. Akseptfrist bør derfor være på minimum 30 minutter, og budforhøyelser bør skje senest 10 minutter før fristens utløp. Dersom bud inngis med en frist som åpenbart er for kort til at megleren kan avvikle budrunden på en forsvarlig måte, vil megler fraråde budet. Eiendomsmegler skal så snart som mulig bekrefte skriftlig overfor budgivere at budene deres er mottatt, og vil uoppfordret gi sin vurdering av det enkelte bud overfor selgeren. Etter at handel har kommet i stand, eller dersom en budrunde avsluttes uten at handel er kommet i stand, kan en budgiver kreve kopi av budjournalen i anonymisert form. Kopi av budjournal gis til kjøper og selger uten ugrunnet opphold etter at handel er kommet i stand. Hvis budgiver ønsker å være anonym, kan bud fremmes via en fullmektig. For mer informasjon om budgivningsprosessen, se «Forbrukerinformasjon om budgivning», som er vedlagt salgsoppgaven, eller ta kontakt med megler.
Vederlag megler
Provisjon ved salg til prisantydning: kr 129 900,00 Grunnpakke bolig info kr 9 900,00 Markedspakke inkl. Emera digital kr 23 900,00 Oppgjørshonorar inkl. factoring kr 9 900,00 Tilretteleggingshonorar kr 15 000,00 Visning-/overtagelseshonorar pr. stk. 3000 kr 0,00 Utlegg: Selger dekker utlegg i henhold til oppdragsavtalen. Disse er estimert til ca. kr 25 000,00, og omfatter vanligvis innhenting av informasjon fra kommunen, eventuell forretningsfører, samt kopi av tinglyste dokumenter. Total kostnad ved salg til prisantydning: kr 213 600,00 Dette inkluderer både vederlag og stipulerte utlegg. Ved avbrutt oppdrag: Dersom oppdraget sies opp eller utløper uten at salget gjennomføres, har megler krav på rimelig vederlag for medgått tid og for utført arbeid. Dette omfatter blant annet vederlag knyttet til tilrettelegging, markedsføring og eventuelle avholdte visninger, samt påløpte utlegg. Timepris ved slik beregning er kr 3500.
Hvitvasking
Eiendomsmeglere er underlagt lov om hvitvasking, og er blant annet forpliktet til å gjennomføre kundetiltak av både selger og kjøper. Hvis kjøper ikke bidrar til at megler får gjennomført kundetiltak og dette fører til at avtalen ikke kan gjennomføres eller blir forsinket, er dette et mislighold fra kjøpers side. Et vesentlig mislighold kan gi selger rett til å heve avtalen og til å gjennomføre dekningssalg for kjøpers regning. Dersom selger ikke bidrar til at megler får gjennomført løpende kundetiltak underveis i oppdraget, må eiendomsmegler stanse gjennomføringen av transaksjonen. Selger vil i et slikt tilfelle ha misligholdt sine forpliktelser, og kjøper vil kunne ha et krav mot selger etter avhendingsloven. Hvis kundetiltak ikke lar seg gjennomføre, vil Emera eiendomsmegling ikke kunne bistå med handelen eller foreta oppgjør.
Personopplysningsloven
Personopplysninger blir behandlet i samsvar med personopplysningsloven. Se www.emera.no for vår personvernerklæring.
Oppdragsnummer
02260105
Status salgsoppgave
Salgsoppgave sist endret: 13. april 2026
Megler
Megler
Milad Alexander Sabori
Meglerforetaket
Emera No2 AS Org.nr: 934963407
Samarbeidspartnere og tilknyttede foretak
Emera Norge AS og eiendomsmeglingsforetakene som er tilknyttet Emera har samarbeid med forskjellige foretak som tilbyr forbrukerne produkter eller tjenester i forbindelse med et salgsoppdrag. Våre samarbeidspartene er:
Søderberg & Partners AS - formidler av boligselger- og boligkjøperforsikring Overo AS - leverandør av digitale oppgjørsskjemaer og overtakelsesprotokoller som også inneholder tilbud til forbruker om tilpassede strøm-, internett- og alarmtjenester.
Hvilke produkter/tjenester kjøper og selger får i forbindelse med oppdraget, kan variere ut fra hvor i landet eiendommen ligger.
Egenerklæring boligselgerforsikring
Tilstandsrapport
Salgsoppgave
Salgsoppgavevedlegg
Boligkjøperforsikring
Når du kjøper bolig, er det viktig å sikre seg mot uforutsette utgifter. Söderberg & Partners og Emera Eiendomsmegling hjelper deg med å skape trygghet i boligkjøpet.
Fritt meglervalg
Valg av megler skal være frivillig. Megler kan ikke inngå oppdrag om eiendomsmegling dersom inngåelsen av oppdraget er satt som vilkår i avtale om annet enn eiendomsmegling, for eksempel tilbud om lån eller andre banktjenester, jf. eiendomsmeglingsloven § 6-3 (3).