




SKJOLD
Dyrhaugen 19
- Ukjent -
|
Nøkkelinfo
Boligtype
- Ukjent -
Eierform
Eier
tomteareal
1228 m2 (eiet)
Objektbeskrivelse
Tomten
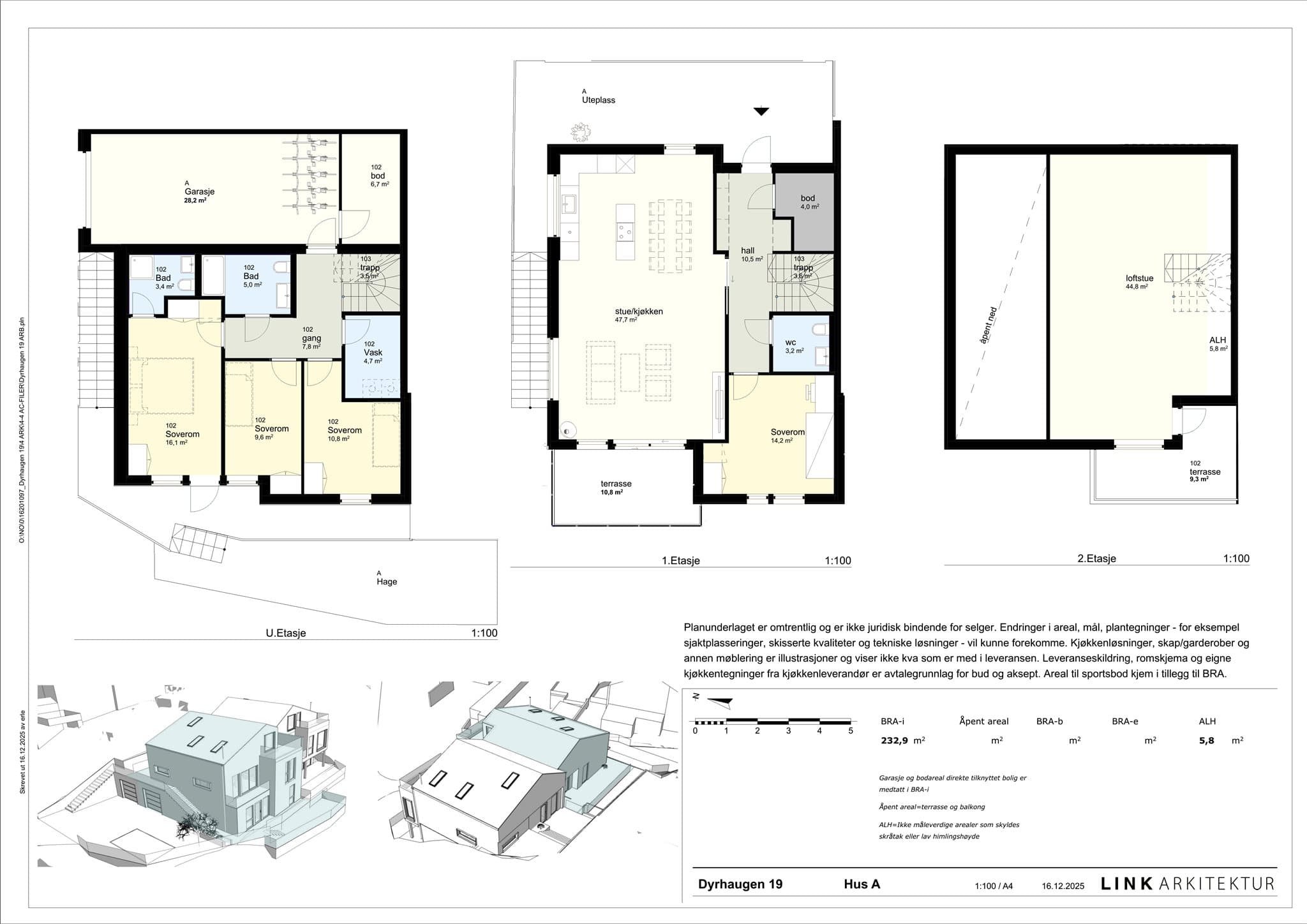
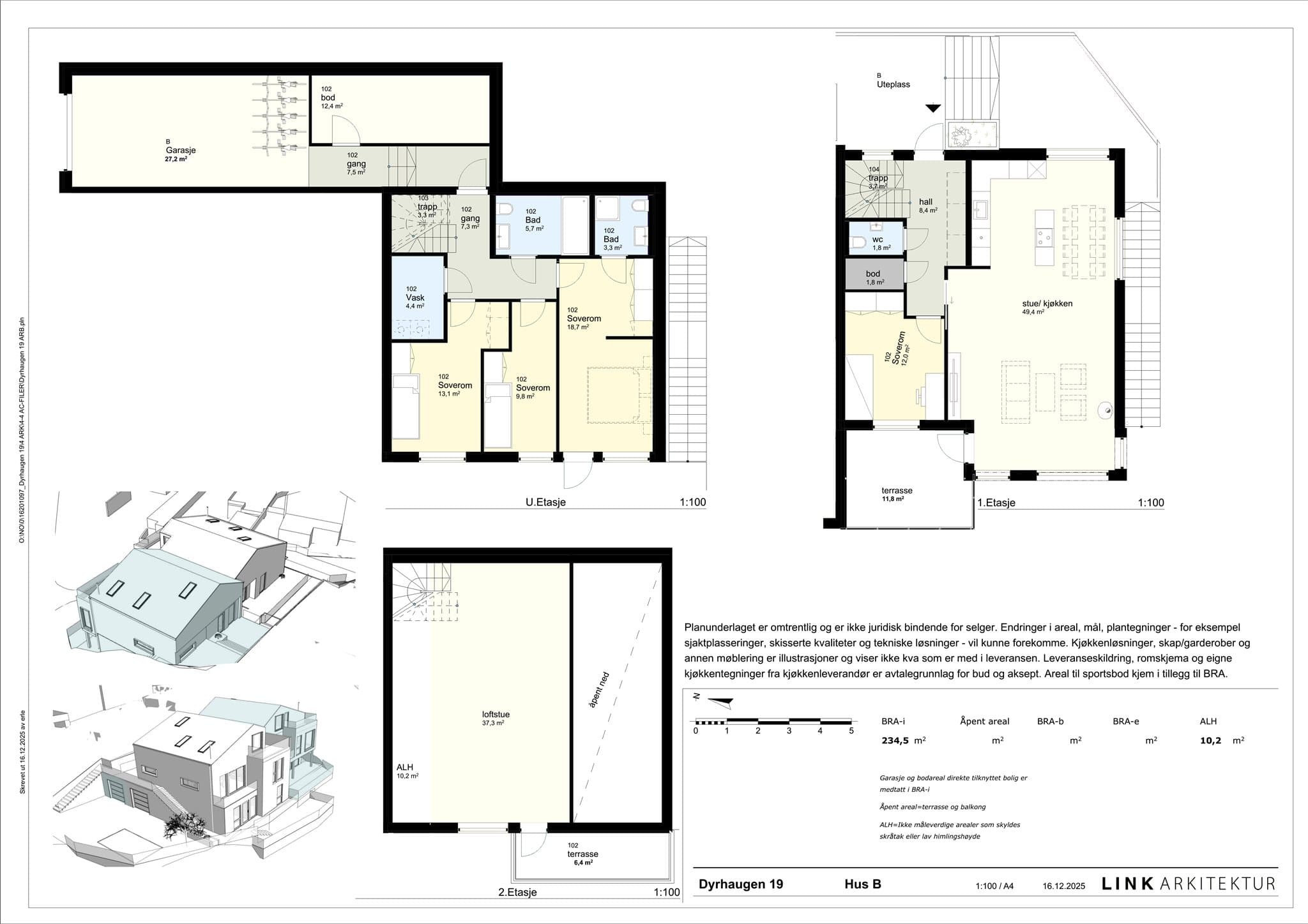
Tomtestørrelse: 1228 m2 (eiet)
Utvendige overflater leveres ferdig grovplanert med jord eller grus. Det er inkludert opparbeidelse av ca. 70 m² natursteinsmur (gråsteinsmur). Terreng mot nabogrenser tilpasses naturlig fall og eksisterende forhold. Utomhusarealene ferdigstilles samtidig med ferdigstillelse av de enkelte bygg eller så snart årstiden tillater det. På eiendommen vil det bli etablert diverse ledningsnett for vann, avløp, overvann, elektrisitet og eventuelt data/ tv/ telefon og andre ledninger. Disse ledningene som går over eiendommen, vil også være i sameie med andre tilliggende eiendommer. Kjøper er kjent med og aksepterer ovennevnte og at tilliggende eiendommer kan få tinglyst nødvendige rettigheter til å legge, vedlikeholde og skifte ut ledninger ved behov. Kjøper plikter å medvirke til dette i årsmøter dersom slike avtaler skal inngås og tinglyses etter at overskjøting har funnet sted.
Kommunale avgifter
Info kommunale avgifter Da boligen ikke er oppført enda foreligger det ikke kommunale avgifter eller eiendomsskatt for denne. For mer info om dette kontakt Bergen kommune. Kjøper betaler kommunale avgifter for vann, avløp, renovasjon og feiing. Årsgebyr for vann og avløp består av et abonnentsgebyr og et forbruksgebyr basert på et stipulert forbruk. Byggets areal legges til grunn for forbruksgebyret. For å omregne antall kvadratmeter til stipulert forbruk brukes en faktor på 1,3 kubikkmeter per kvadratmeter areal. Årsgebyret beregnes slik: Abonnementsgebyr: Kr 21,04 * pr m2 Forbruksgebyr: Antall kvadratmeter * faktor 1,3 * 31,09 For bolig på 208 kvm er stipulert årsgebyr for vann og avløp: Abonnementsgebyr: Kr 21,04 * 208 kvm = kr 4 376 014 Informasjon om boligen Forbruksgebyr: 208 kvm * faktor 1,3 * 31,09 = 8 407 Sum: Kr 12 783 Årsgebyr for renovasjon avhenger av spanstørrelse/ omfang/ antall tømminger. Minimumsgebyret/grunnprisen er kr 2 653,- per bolig. Prisen er basert på 140 liter beholder med 3 hentinger av restavfall i kvartalet. Hvis bosset tømmes gjennomsnittlig hver 14. dag, blir gebyret kr 3 234,-. Span/ søppelbeholdere må bestilles av Kjøper, det anbefales at dette gjøres noen uker før overtagelse. For bestilling av span, se www.bir.no. Feiegebyr faktureres etter medgått tid på utførelsen av feiing og koster kr 1 042,- per time. I tillegg kommer fast årlig tilsynsgebyr kr 435,-. Det tas forbehold om endringer i de oppgitte satser.
Eiendomsskatt
Det er eiendomsskatt på boliger i Bergen kommune og denne fastsettes etter ferdigstillelse av boligen. Eiendomsskatten beregnes på følgende måte i 2026: Kommunen starter med boligverdi fastsatt av Skatteetaten som skal være tilnærmet lik markedsverdien. Eiendomsskattegrunnlaget er 70% av boligverdien. Et bunnfradrag på kr 750 000 trekkes så fra eiendomsskattegrunnlaget. Eiendomsskatten beregnes som 2,6 promille av det gjenværende beløpet. Eiendomsskatten faktureres sammen med de kommunale avgiftene. For mer informasjon om eiendomsskatt, se kommunens nettside. Eventuelle spørsmål om eiendomsskatt rettes til Eiendomsskattekontoret i kommunen.
Formuesverdi
Formuesverdien er ikke beregnet. Skatteetaten vil beregne en boligverdi (beregnet markedsverdi for bolig) basert på SSBs statistiske opplysninger om omsatte boliger. Beregningen vil skje i forbindelse med første skattemelding etter overtakelse. I beregningen tas det hensyn til din boligs beliggenhet, areal, byggeår og type bolig. Formuesverdien er en prosentandel av denne boligverdien og vil variere dersom boligen brukes som primær- eller sekundærbolig. For mer informasjon, se Skatteetatens nettsider.
Beliggenhet
Boligen ligger svært attraktivt til i populære Dyrhaugen på Skjold – et etablert og familievennlig boligområde med trygg internbeliggenhet og minimal gjennomgangstrafikk. Her bor du med kort gangavstand til både Skjold skole, barnehager og dagligvarebutikk, samt flotte tur- og friluftsområder på Smøråsfjellet og rundt Tveitevannet. Bybanestopp på Skjold gir rask og enkel forbindelse til både Bergen sentrum og Lagunen Storsenter, som også nås på få minutter. Området byr på lekeplasser, grønne fellesområder og gode solforhold – en perfekt kombinasjon av rolig nabolag og sentral beliggenhet i et av Fanas mest etterspurte boligområder.
Info energiklasse
Info energiklasse Boligen vil få energimerke Oransje A. Alle eiendommer som selges/leies ut skal ha energiattest. Unntak gjelder blant annet for frittstående bygninger med bruksareal mindre enn 50 m². Det er eier som plikter å fremlegge energiattest og er selv ansvarlig for at opplysningene er riktig. Selger har fylt ut fullstendig energiattest som er lagt ved salgsoppgaven. Megler har ikke ansvar for informasjonen som fremgår av energiattest.
Oppvarming
Luft-til-luft varmepumpe: Mitsubishi Kaiteki 6300. Varmekabler i alle rom i underetasje/kjeller, unntatt garasje og bod i garasje. Vedovn: Ild 9 med ventilert stålpipe.
Ferdigattest / brukstillatelse
Midlertidig brukstillatelse eller ferdigattest skal foreligge innen overtagelse av boligene. Midlertidig brukstillatelse gir kjøper anledning til å ta boligen i bruk. I motsatt fall anbefaler megler at overtagelse utsettes og at kjøper ikke overtar. Det er selgers ansvar å fremskaffe ferdigattest på boligen, selv etter at boligen er overlevert kjøper. Kjøper er gjort oppmerksom på at slik ferdigattest ofte kan foreligge lang tid etter overtagelse og blant annet avhenger av årstid for opparbeidelse av uteareal og endelig ferdigstillelse av felles infrastruktur. Manglende ferdigattest skal ikke være til hinder for selgers oppgjør i forbindelse med overtagelsen. Boligene på feltet kan bli overlevert i etapper. Ved overtakelse på vinterstid vil væravhengige utomhusarbeider gjenstå til våren.
Vei, vann og avløp
Boligene tilknyttes offentlig vannforsyning via privat stikkledning. Spillvann føres via privat pumpestasjon til offentlig avløpsnett. Overvann fra taknedløp og terreng føres via sandfangskummer til fordrøyningskum i front på egen eiendom. Eiendommen er tilknyttet offentlig vann og avløp. Stikkledninger fra eiendommen og ut til kommunalt nett er private, vedlikeholdsansvaret påhviler eier. Adkomst via offentlig vei.
Tinglyste heftelser og rettigheter
Eiendommen selges fri for panteheftelser med unntak av boligsameiets legalpant i hver seksjon jf. lov om eierseksjoner. Pantet er begrenset oppad til 2G (G er Folketrygdens grunnbeløp). Kommunen har i tillegg legalpant for forfalte kommunale avgifter og eiendomsskatt. På eiendommen/ prosjektet er det tinglyst heftelser og rettigheter som følger eiendommen ved overskjøting. Bestemmelsene fremkommer av grunnboken for eiendommen til prosjektet og eventuelle avgivereiendommer. Følgende tinglyste bestemmelser vil ligge til grunn for avtalen: 1958/305363-1/106 25.10.1958 Bestemmelse om veg Bestemmelse om gjerde 2022/1341810-1/200 25.11.2022 Pantedokument Beløp: NOK 15 000 000 Tilhører utbygger og vil slettes ved overskjøting til ny eier. Panthaver: NORDEA BANK ABP, FILIAL I NORGE ORG.NR: 920 058 817 2024/1411446-1/200 07.05.2024 Bestemmelse om veg RETTIGHETSHAVER: KNR: 4601 GNR: 40 BNR: 466 Bestemmelse om vedlikehold 2024/1411446-3/200 07.05.2024 Bestemmelse om vann/kloakk Rettighetshaver: Knr: 4601 Gnr: 40 Bnr: 466 2024/1411446-5/200 07.05.2024 Bestemmelse om spillvann/drensvann/stikkrenner Rettighetshaver: Knr: 4601 Gnr: 40 Bnr: 466 1958/302479-1/106 29.05.1958 Registrering av grunn Denne matrikkelenhet utskilt fra: KNR: 4601 GNR: 40 BNR: 11 2020/195825-1/200 01.01.2020 Omnummerering ved kommuneendring Tidligere: Knr: 1201 Gnr: 40 Bnr: 603 Eiendommens rettigheter Servitutter: 1958/305363-2/106 25.10.1958 Bestemmelse om veg Rettighet hefter i: KNR: 4601 GNR: 40 BNR: 11 2024/1411446-2/200 07.05.2024 Bestemmelse om veg Rettighet hefter i: Knr: 4601 Gnr: 40 Bnr: 466 Bestemmelse om vedlikehold 2024/1411446-4/200 07.05.2024 Bestemmelse om vann/kloakk Rettighet hefter i: KNR: 4601 GNR: 40 BNR: 466 2024/1411446-6/200 07.05.2024 Bestemmelse om spillvann/drensvann/stikkrennerBESTEMMELSE OM SPILLVANN/DRENSVANN/STIKKRENNER Rettighet hefter i: Knr: 4601 Gnr: 40 Bnr: 466 Selger kan tinglyse erklæringer/ heftelser/ rettigheter som er nødvendig for gjennomføringen av prosjektet, herunder bestemmelser som vedrører sameiet, utbyggingseiendommen, naboforhold eller forhold pålagt av myndighetene. Kjøper kan ikke motsette seg eller kreve prisavslag/ erstatning for dette.
Legalpant
Kommunen har legalpant som sikkerhet for betaling av kommunale avgifter og eventuell eiendomsskatt. Legalpant er pant som ikke kommer frem av grunnboksutskriften, og har bedre prioritet enn for eksempel lån til bank som er tinglyst på eiendommen.
Diverse
Det leveres røykvarsler til hver etasje, samt ett brannslukningsapparat pr. boenhet. På tak leveres stigetrinn/takstige til pipe og snøfangere der dette er et krav. Overvannsledninger med tilhørende kummer i henhold til prosjektering. 2 stk.
Sentrale lover
Når en privatperson inngår avtale med en utbygger om oppføring av ny bolig, vil dette normalt omfattes av reglene i bustadoppføringslova. Dette regelverket sikrer blant annet at kjøperen får garanti for at selgeren oppfyller sine forpliktelser, jf. bustadoppføringslova § 12. Med en forbruker menes i denne sammenhengen en fysisk person som handler for personlig bruk, og ikke som en del av næringsvirksomhet. Dersom kjøperen ikke oppfyller kriteriene for å være forbruker, for eksempel ved at kjøpet skjer som ledd i næringsvirksomhet, kan selger kreve at avhendingsloven legges til grunn for avtalen i stedet. Alle bud skal inngis skriftlig til megler, som formidler disse videre til selger. Kravet til skriftlighet gjelder også budforhøyelser og motbud, aksept eller avslag fra selger. Alle bud skal stå til Tirsdag 01.04.2025 kl. 12.00. Regler om budfrister i Eiendomsmeglerloven kommer ikke til anvendelse da selger ikke er forbruker. Selger står fritt til å akseptere eller avslå ethvert bud, herunder bestemme om de vil akseptere salg til selskaper. Bud kan legges inn på eiendommens finn-annonse ved å trykke på knappen «gi bud» eller via vår hjemmeside. Ved elektronisk budgivning legges bud inn ved å benytte BankID. Bud kan også inngis på budskjema vedlagt i salgsoppgaven. Før megler formidler bud til selger, skal megler innhente gyldig legitimasjon og signatur fra budgiver. Kravet til legitimasjon og signatur er oppfylt for budgivere som benytter e-signatur, eksempelvis BankID eller MinID. Senere bud kan inngis per e-post eller telefon til megler. Et bud bør inneholde eiendommens adresse (eventuelt gnr/bnr), kjøpesum, budgivers kontaktinformasjon, finansieringsplan, akseptfrist, overtakelsesdato og eventuelle forbehold som for eksempel usikker finansiering, salg av nåværende bolig ol. Normalt vil ikke et bud med forbehold bli akseptert før forbeholdet er avklart. Konferer gjerne med megler før bud avgis. Megler skal så snart som mulig bekrefte skriftlig overfor budgivere at budene deres er mottatt. Etter at handel har kommet i stand, eller dersom en budrunde avsluttes uten at handel er kommet i stand, kan en budgiver kreve kopi av budjournalen i anonymisert form. Kopi av budjournal skal gis til kjøper og selger uten ugrunnet opphold etter at handel er kommet i stand. Dersom det er viktig for budgiver å bevare sin anonymitet, bør budet fremmes gjennom fullmektig. For mer informasjon ta kontakt med megler.
Viktig informasjon om budgivning
Bud kan legges inn på nettannonsen på "gi bud" knappen eller via hjemmesiden. Ved elektronisk budgivning kan bud legges inn trygt og enkelt med bank-ID. Eiendomsmegler kan også kontaktes for tilsendelse av budkjema, og budskjema finnes også i salgsoppgaven. Alle bud skal inngi skriftlig til eiendomsmegler. Kravet til skriftlighet gjelder også ved forhøyelse av bud, motbud og selgers aksept eller avslag. Før et bud kan formidles til selger må megler innhente gyldig legitimasjon og signatur fra budgiver. Kravet til legitimasjon og signatur er oppfylt dersom budgiver bruker e-signatur som f eks. bankID. Etter det første budet er inngitt, kan budgiver inngi bud pr e-post eller pr SMS til megler. Hvis budgiver skal by på eiendommen i henhold til en kjøpsfullmakt må megler kontaktes og fullmakten oversendes før budgivning. Et bud bør inneholde eiendommens adresse (eventuelt gnr/bnr), kjøpesum, budgivers kontaktinformasjon, finansieringsplan, akseptfrist, overtakelsesdato og eventuelle forbehold som for eksempel usikker finansiering, salg av nåværende bolig ol. Normalt vil ikke et bud med forbehold bli akseptert før forbeholdet er avklart. Konferer gjerne med megler før bud avgis. Bud som har forbehold om konfidensialitet ("hemmelige bud") vil ikke bli formidlet til selger. Alle interessenter oppfordres til å inngi bud via eiendomsmegler. Megler skal legge til rette for en forsvarlig avvikling av budrunden. I forbrukerforhold (dvs. der selger er forbruker) skal megleren ikke formidle bud med kortere akseptfrist enn til kl. 12.00 første virkedag etter siste annonserte visning. Senere bud må ha en akseptfrist som er lang nok til at budet og eventuelle forbehold kan videreformidles til alle involverte parter slik at disse får tid til å områ seg, jf. forskrift om eiendomsmegling § 6-3. Akseptfrist bør derfor være på minimum 30 minutter, og budforhøyelser bør skje senest 10 minutter før fristens utløp. Dersom bud inngis med en frist som åpenbart er for kort til at megleren kan avvikle budrunden på en forsvarlig måte, vil megler fraråde budet. Eiendomsmegler skal så snart som mulig bekrefte skriftlig overfor budgivere at budene deres er mottatt, og vil uoppfordret gi sin vurdering av det enkelte bud overfor selgeren. Etter at handel har kommet i stand, eller dersom en budrunde avsluttes uten at handel er kommet i stand, kan en budgiver kreve kopi av budjournalen i anonymisert form. Kopi av budjournal gis til kjøper og selger uten ugrunnet opphold etter at handel er kommet i stand. Hvis budgiver ønsker å være anonym, kan bud fremmes via en fullmektig. For mer informasjon om budgivningsprosessen, se «Forbrukerinformasjon om budgivning», som er vedlagt salgsoppgaven, eller ta kontakt med megler.
Hvitvasking
Eiendomsmeglere er underlagt lov om hvitvasking, og er blant annet forpliktet til å gjennomføre kundetiltak av både selger og kjøper. Hvis kjøper ikke bidrar til at megler får gjennomført kundetiltak og dette fører til at avtalen ikke kan gjennomføres eller blir forsinket, er dette et mislighold fra kjøpers side. Et vesentlig mislighold kan gi selger rett til å heve avtalen og til å gjennomføre dekningssalg for kjøpers regning. Dersom selger ikke bidrar til at megler får gjennomført løpende kundetiltak underveis i oppdraget, må eiendomsmegler stanse gjennomføringen av transaksjonen. Selger vil i et slikt tilfelle ha misligholdt sine forpliktelser, og kjøper vil kunne ha et krav mot selger etter avhendingsloven. Hvis kundetiltak ikke lar seg gjennomføre, vil Emera eiendomsmegling ikke kunne bistå med handelen eller foreta oppgjør.
Oppdragsnummer
03265006
Status salgsoppgave
Salgsoppgave sist endret: 07. april 2026
Megler
Megler
Erlend Stokmo
Meglerforetaket
Fjell og Fjord eiendomsmegling AS Org.nr: 935740274
Samarbeidspartnere og tilknyttede foretak
Emera Norge AS og eiendomsmeglingsforetakene som er tilknyttet Emera har samarbeid med forskjellige foretak som tilbyr forbrukerne produkter eller tjenester i forbindelse med et salgsoppdrag. Våre samarbeidspartene er:
Søderberg & Partners AS - formidler av boligselger- og boligkjøperforsikring Overo AS - leverandør av digitale oppgjørsskjemaer og overtakelsesprotokoller som også inneholder tilbud til forbruker om tilpassede strøm-, internett- og alarmtjenester.
Hvilke produkter/tjenester kjøper og selger får i forbindelse med oppdraget, kan variere ut fra hvor i landet eiendommen ligger.
Salgsoppgavevedlegg
Salgsoppgavevedlegg
Salgsoppgavevedlegg
Energiattest
Energiattest
Energiattest
Energiattest
Salgsoppgavevedlegg
Salgsoppgavevedlegg
Salgsoppgavevedlegg
Salgsoppgavevedlegg
Salgsoppgavevedlegg
Salgsoppgavevedlegg
Salgsoppgavevedlegg
Salgsoppgavevedlegg
Salgsoppgavevedlegg
Salgsoppgavevedlegg
Salgsoppgavevedlegg
Salgsoppgavevedlegg
Salgsoppgavevedlegg
Salgsoppgavevedlegg
Salgsoppgavevedlegg
Salgsoppgavevedlegg
Salgsoppgavevedlegg
Salgsoppgave
Boligkjøperforsikring
Når du kjøper bolig, er det viktig å sikre seg mot uforutsette utgifter. Söderberg & Partners og Emera Eiendomsmegling hjelper deg med å skape trygghet i boligkjøpet.
Fritt meglervalg
Valg av megler skal være frivillig. Megler kan ikke inngå oppdrag om eiendomsmegling dersom inngåelsen av oppdraget er satt som vilkår i avtale om annet enn eiendomsmegling, for eksempel tilbud om lån eller andre banktjenester, jf. eiendomsmeglingsloven § 6-3 (3).