
























BROMSTAD
Fjøsmestervegen 5B
66 m2
|
3 450 000 kr
|
2 soverom
|
Andelsleilighet
|
Delikat 3-roms toppleilighet med rolig og attraktiv beliggenhet | Parkering i p-kjeller | Solrik balkong m/ fin utsikt
Pris og areal
Prisantydning
3 450 000 ,-
Omkostninger
18 796 ,-
totalpris
3 554 110 ,-
felleskostnader
6 322 ,- per mnd
fellesgjeld
85 314 ,-
fellesformue
4 584 ,-
bruksareal
68 m2
internt bruksareal
66 m2
eksternt bruksareal
2 m2
Kort fortalt
Geir Einar Moen v/ Emera Eiendomsmegling ønsker velkommen til Fjøsmestervegen 5B! Dette er en lys og delikat 3-roms toppleilighet med rolig beliggenhet på Bromstad/Valentinlyst. Leiligheten ligger i øverste etasje og byr på gode solforhold, lite innsyn og flott utsikt. Stuen er romslig og har store vindusflater samt utgang til en solrik balkong på hele 13 kvm. Leiligheten ble oppgradert i 2017 med nytt kjøkken, bad og gulv, og fremstår som gjennomgående pen og velholdt. Det er parkeringsplass i p-kjeller og bod i kjeller. Området er rolig og barnevennlig med kort vei til det man trenger, samt grønne fellesarealer i borettslaget. Høydepunkter - 3-roms toppleilighet - Solrik balkong på 13 kvm med utsikt - Parkering i p-kjeller m/ mulighet for lader - Oppgradert kjøkken og bad (2017)
Nøkkelinfo
Boligtype
Andelsleilighet
Eierform
Andel
Antall soverom
2
antall bad
1
etasje
4
byggeår
1973
energimerking
E
Objektbeskrivelse
Tomten
Eiendommen ligger på festet tomt. Den årlige festeavgiften er på kr. 488 220 og er inkludert i felleskostnadene. Festetiden skal være 150 år og utløper 1. september 2118.
Byggeår
1973
Etasje
4
Arealer
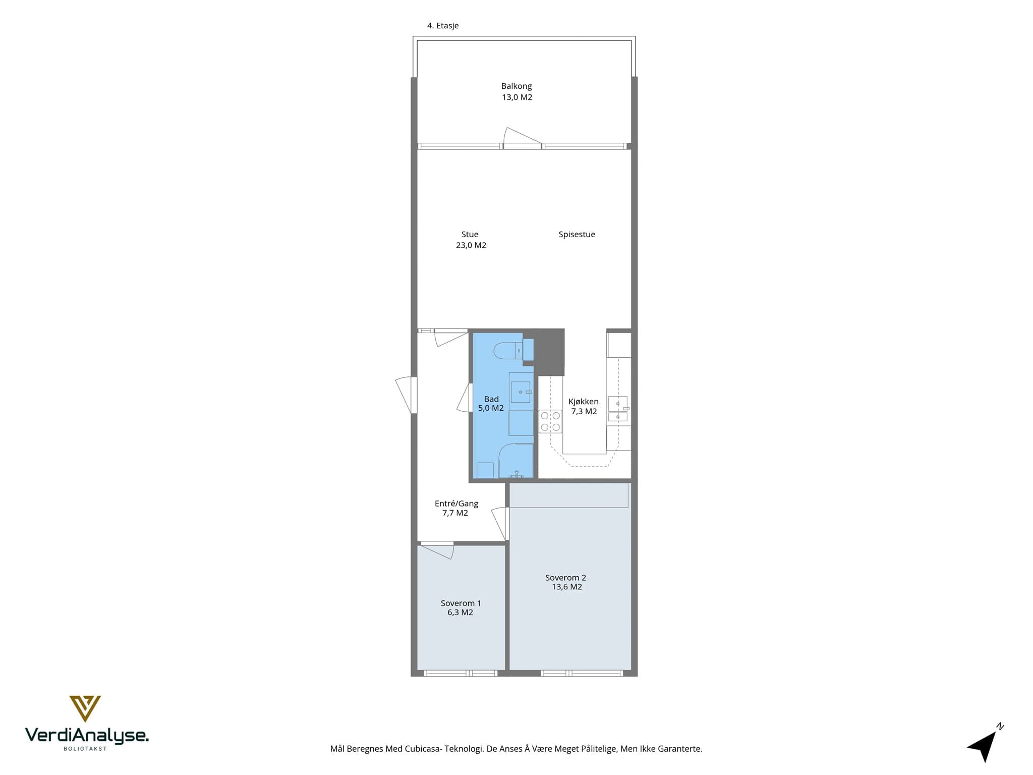
BRA-i: 66m2
BRA-e: 2m2
Totalt BRA: 68m2
TBA: 13m2
Arealbeskrivelse
Leilighet i 4. etasje
Kjeller
BRA-E: 2 m² Bod
4. etasje
BRA-I: 66 m² Entré/gang, bad, kjøkken, stue, 2 stk. soverom
4. etasje
13 m² Balkong
Fellesarealer og rettigheter til bruk
Det gjøres særskilt oppmerksom på at boden som er medtatt i BRA-e og totalt BRA, ligger på borettlagets fellesareal, men disponeres av denne andelen. Borettslaget kan på et senere tidspunkt omdisponere bruken av dette arealet.
Antall soverom
2
Antall rom
3
Innhold
Leiligheten ligger i 4. etasje og består av følgende rom: Entré, stue, kjøkken, bad, 2 soverom. Balkong på 13 m². Leiligheten disponerer en bod i kjeller på 2 m².
Standard
Velkommen hjem! Entré Lys og innbydende entré med plass til oppbevaring av yttertøy og sko. Entréen gir et godt førsteinntrykk og leder videre inn i leilighetens oppholdsrom. Stue Romslig og lys stue på ca. 23 kvm med store vindusflater som sørger for rikelig med naturlig lysinnslipp. Her er det god plass til både sofagruppe og spisestue, og rommet har en naturlig inndeling mellom oppholds- og spiseplass. Fra stuen er det utgang til en romslig og solrik balkong på hele 13 kvm med gode utsiktsforhold. Balkongen kan enkelt møbleres i flere soner og gir et flott uteareal med svært gode solforhold. Kjøkken Lyst og pent kjøkken fra 2017 med profilerte fronter og benkeplate i laminat. Kjøkkenet er godt utstyrt med integrert platetopp, stekeovn og oppvaskmaskin, samt rikelig med skap- og benkeplass. Løsningen gir en funksjonell arbeidsflate og passer godt sammen med spiseområdet. Bad Tidløst baderom pusset opp i 2017. Badet er utstyrt med vegghengt toalett, servantinnredning, speil med lys, høyskap og dusjkabinett. Det er også opplegg for vaskemaskin. Soverom 1 Romslig hovedsoverom på ca. 13,6 kvm med god plass til dobbeltseng, nattbord og øvrig møblement. Her er det god plass til garderobeløsning. Soverom 2 Soverommet er malt i lune og behagelige farger og kan enkelt innredes etter ønske og behov, enten som barnerom, gjesterom eller hjemmekontor. Bod Leiligheten disponerer bod i kjeller på ca. 2 kvm.
Innbo og løsøre
Salgsoppgaven inkluderer NEFs standardliste "Oversikt over løsøre og tilbehør", som legges til grunn med mindre annet er spesifisert i salgsoppgaven. Gjenstander som er nevnt i standardlisten, men som ikke finnes på eiendommen, vil heller ikke følge med i salget. Alt utstyr og installasjoner som medfølger overtas slik de er, uten garanti, med mindre det foreligger en gjeldende garanti fra produsent eller leverandør. Kjøper aksepterer at det kan forekomme hull og merker etter montering av inventar og utstyr som ikke er en del av overdragelsen.
Parkering
Det følger en parkeringsplass i lukket parkeringskjeller med leiligheten. Det er et eget parkeringsselskap som håndterer parkeringen i borettslaget. Bromstadenga borettslag har totalt 59 utendørs gjesteparkeringsplasser og tre parkeringsområder for MC til disposisjon (merket med P på vedlagte kart). Du bruker SmartOblat til å registrere besøkende, og kan registrere inntil tre besøkende i inntil 24 timer. For å avhjelpe andelseiere med mer enn en bil har borettslaget en ordning hvor man kan betale 250 kroner i måneden og få tillatelse til å benytte ledig gjesteplass. Dette gir ikke rett til fast plass, men kun en rett til å parkere på gjesteplass. Styret kan indeksregulere leieprisen. Blir det for mange som ønsker denne ordningen vil styret måtte sette en maks grense for å sikre at det er tilgjengelig gjesteplasser for besøkende. Andelseier kan ikke selv foreta utleie av sin parkeringsplass i parkeringskjelleren. Andelseier gir melding om at P-plassen ønskes utleid til Bromstadenga Parkeringsutleie ved vaktmester. Vaktmester inngår leieavtale med aktuelle leietakere. Avregningen utføres i desember hvert år med utbetaling i januar påfølgende år. Leieinntektene fordeles på alle som har stilt sin parkeringsplass til disposisjon for utleie. Det tilbys ordning for lading av el- og hybridbiler. Andelseier må installere den type lader som Bromstadenga Parkeringutleie har avtale på. Andelseier kan enten kjøpe laderen for 25.000 kroner, den vil da eies av andelseier og følge leiligheten ved et eventuelt salg. Alternativt kan man leie lader fra Bromstadenga Parkeringsutleie for kr 200,- + mva per måned med 1 måneds oppsigelse. Leieprisen kan reguleres. Se mer informasjon om parkering i husordensreglene som ligger vedlagt salgsoppgaven.
Sammendrag av selgers egenerklæring
Selger har i forbindelse med salget fylt ut egenerklæringsskjema som vedlagt salgsoppgaven. I skjemaet fremkommer følgende informasjon: Kjenner du til om det er utført arbeid på bad/våtrom? Ja, kun av faglært. Ifølge info fra tidligere eier ble det gjennomført modernisering av bad høsten 2017. Firmanavn: Haagensen Rørservice AS (m/ underleverandørene Ranum Elektro AS, Selven Bygg AS og Tr Mur og Flis A/S). Ble tettesjikt/membran/sluk oppgradert/fornyet? Ja. Gjennomført av Haagensen Rørservice AS høsten 2017 i følge tidligere eier. Er arbeidet byggemeldt? Ja. Gjort av forrige eier. Kjenner du til feil eller om har vært utført arbeid/kontroll på vann/avløp? Ja, kun av faglært. Renovering av avløp og rørfornying 2015/2017. Arbeid utført av: I regi av borettslag (ukjent firma). Kjenner du til om det er/har vært utført arbeid på el-anlegget eller andre installasjoner (f.eks. oljetank, sentralfyr, ventilasjon)? Ja, kun av faglært. Rehabilitering av sikringsskap utført av ES Elektro mars 2026. Ifølge info fra tidligere eier ble det montert varmekabler, lys, downlight og stikk på bad + montert 3 stk nye kurser 2x15A for oppvaskmaskin, varmtvannsbereder og stekeovn av Ranum Elektro i forbindelse med modernisering av bad høsten 2017. Det ble i samme periode montert nye stikk til platetopp og komfyr av Vintervoll. Arbeid utført av ES Elektro, Vintervoll, Ranum Elektro. Foreligger det samsvarserklæring (i henhold til forskrift om elektriske lavspenningsanlegg)? Ja. Kjenner du til om det er utført kontroll av el-anlegget og/eller andre installasjoner (f.eks. oljetank, sentralfyr, ventilasjon)? Ja. Utført av forrige eier. Har du ladeanlegg/ladeboks for elbil i dag? Ja. Leier elbillader i parkeringskjeller av borettslaget. Kjenner du til vedtak/forslag til vedtak om forhold vedr. eiendommen som kan medføre økte felleskostnader/økt fellesgjeld? Ja. Borettslaget planlegger utvendig rehabilitering av minihusene i Bromstadbuen sommeren 2026. Det er derfor estimert at felleskostnadene vil øke i snitt med 350 kr/mnd. Samsvarserklæring: Det fremgår av tilstandsrapporten at det foreligger samsvarserklæring for det elektriske arbeidet i boligen. Samsvarserklæring fra 2026 for skifte til automatsikringer er fremvist. Samsvarserklæring fra 2017 for installasjoner i bad og kjøkken er fremvist Det tas forbehold om at det kan være utført andre arbeider på det elektriske anlegget som ikke har samsvarserklæring.
Bygningssakkyndig
Ole-Einar Fjeldheim
Byggemåte
I forbindelse med salget er det blitt utført en tilstandsrapport av en bygningssakkyndig, som gir en teknisk gjennomgang av boligen og påpeker eventuelle avvik. Rapporten, sammen med selgers egenerklæring, er vedlagt salgsoppgaven. Det er viktig at interessenter grundig gjennomgår disse dokumentene før bud legges inn. All informasjon i tilstandsrapporten anses som kjent for kjøper, og det vil ikke være mulig å reklamere på forhold som er nevnt i rapporten. Spesielt forhold som er vurdert med TG2 og TG3 bør vurderes nøye, da de indikerer avvik fra normal slitasje og/eller høy alder, noe som kan innebære behov for utbedringer. Bygningsdeler som er merket med TGIU er ikke blitt vurdert av takstmannen. Beskrivelsen av boligen nedenfor er hentet direkte fra tilstandsrapporten: Byggemåte: Bygningen, som er ei boligblokk, ble oppført i 1973 og er på 4 etasjer + kjeller. Hovedkonstruksjonen over grunnmur består av betong. Utvendige fasader er kledd med fasadeplater. Flattak som er tekket med takmembran. Vinduer med 3-lags isolerglass. TG2 - Avvik som kan kreve tiltak: - Balkong | Mer enn halvparten av forventet brukstid er passert for tettesjikt/membran. Dette innebærer at konstruksjonen nærmer seg slutten av sin normale levetid, og det foreligger økt usikkerhet knyttet til funksjon og levetid fremover. Slike materialer eldes gradvis og kan miste sin tetthet over tid, noe som gir økt risiko for lekkasjer og fuktskader i underliggende konstruksjoner. Membran og tettesjikt ligger skjult og lar seg ikke visuelt kontrollere, noe som gjør tilstandsvurderingen usikker. Tidspunkt for utskiftning av tettesjikt/membran nærmer seg ut ifra alder på dagens tekking. - Komfyrvakt | Det er ikke etablert komfyrvakt over stekesonen ihht. krav som trår i kraft ved oppgraderinger/endringer på det elektriske anlegget i forbindelse med platetopp. Opplistingen over er ikke uttømmende og du oppfordres til å lese og sette deg grundig inn i alt salgsmateriell.
Omkostninger
3 450 000,00 (Prisantydning) 85 314 (Andel av fellesgjeld) -------------------------------------------------------- 3 535 314 (Pris inkl. fellesgjeld) Omkostninger 9 300 (Boligkjøperforsikring* (valgfritt)) 8 406 (Forhåndsvarsling forkjøpsrett) 545 (Tinglysingsgebyr - hjemmel) 545 (Tinglysningsgebyr - pantedokument) -------------------------------------------------------- 9 496 (Omkostninger totalt (uten Boligkjøperforsikring)) 18 796 (Omkostninger totalt (med Boligkjøperforsikring)) -------------------------------------------------------- 3 544 810 (Totalpris inkl. omkostninger (uten Boligkjøperforsikring)) 3 554 110 (Totalpris inkl. omkostninger (med Boligkjøperforsikring)) --------------------------------------------------------
Felleskostnader
6 322,- per mnd
renter og avdrag på fellesgjeld, driftsdel, parkering, renhold av fellesareal, samt en kollektiv avtale for kabel-TV og internett. Felleskostnadene er fordelt slik: Felleskostnad renter: kr 337,- Felleskostnad avdrag: kr 224,- Felleskostnad driftsdel: kr 2 641,- Parkering: kr 2 450,- Renhold av fellesareal: kr 125,- Tillegg elektroniske fellesavtaler (Kabel-TV og internett): kr 545,- Borettslaget planlegger utvendig rehabilitering av minihusene sommeren 2026. Det er estimert at felleskostnadene vil øke med i snitt kr 350,- per måned i den forbindelse.
Kommunale avgifter
Kommunale avgifter faktureres borettslaget og er dekket gjennom de månedlige felleskostnadene.
Fellesformue
4 584,-
Fellesgjeld
85 314,-
Borettslaget har følgende lån og vilkår: Bank: Danske Bank Lånenummer: 84261085037 Type: Annuitetslån, 4 terminer per år Restsaldo pr. 26.03.2026: kr 38 010 500,- Andel av saldo: kr 85 314,- Innfrielsesdato: 25.04.2026 Type Rente: Flytende Rente: 4,74%
Sikringsordning fellesgjeld
Borettslaget har tegnet sikring, i henhold til borettslagsloven, mot tap som følge av at en andelseier ikke betaler sine felleskostnader. Leverandør av sikring er Klare Finans AS. Avtalen har en gjensidig oppsigelsestid på 6 måneder med skriftlig varsel. Etter borettslagslovens bestemmelser skal vedtak om oppsigelse av sikringen gjøres av borettslagets generalforsamling. Sikringsselskapet kan til enhver tid si opp en avtale med sikringstaker dersom sikrede ikke oppfyller de krav som er stilt.
Formuesverdi
Formuesverdi primær: 863 524 pr. 2024
Formuesverdi sekundær: 3 454 095 pr. 2024
Skatteetaten beregner en boligverdi (beregnet markedsverdi for bolig) basert på SSBs statistiske opplysninger om omsatte boliger. I beregningen tas det hensyn til boligens beliggenhet, areal, byggeår og type bolig. Stortinget har vedtatt en ny modell for beregning som skal benyttes fra og med inntektesåret 2026, og den nye modellen henter informasjon om omsatte boliger fra grunnkretser i stedet for kommuner. Formuesverdien er en prosentandel av den beregnede boligverdien. Den nye utregningsmodellen kan medføre en høyere eller lavere markedsverdien enn tidligere. Det tas derfor forbehold om at formuesverdien kan bli endret og eventuelt øke ved endelig fastsettelse i skatteåret. For mer informasjon om formuesverdi, se Skatteetatens nettsider.
Beliggenhet
Fjøsmestervegen 5B ligger i et rolig og fredelig område på Bromstad, og er en del av Bromstadenga borettslag. Her er det flere grøntareal, lekeplass og fotballbane i umiddelbar nærhet. Man har også kort avstand til flere kjøpesenter, som blant annet Valentinlystsenter, Moholtsenter og Sirkus Shopping, som kan by på en rekke servicefasiliteter. Fra leiligheten er det kort vei til barnehager, barne- og ungdomsskole og flere av universitetene på NTNU og Dronning Maud. Nabolaget ligger i et av Trondheims mest attraktive og etterspurte område på Bromstad/Valentinlyst. Det oppleves som rolig, fredelig og barnevennlig med store grøntareal - likevel svært sentralt. Her har man "alt" man trenger av hverdagslige servicetilbud innen gangavstand. Valentinlyst senteret med sine fasiliteter; dagligvarebutikk, nisjébutikker, legesenter, tannlege, apotek og vinmonopol. I tillegg er det flere dagligvarebutikker og restauranter i området. For den aktive er det kort vei til idrettsanleggene på Leangen og Myra som nyttes av bydelsklubben Strindheim. Gang- og sykkelavstand til store studiesteder som HiST, DMMH, NTNU-Gløshaugen og NTNU-Dragvoll. Ellers svært godt kollektivtilbud i området med bussforbindelse fra Valentinlyst og trafikalt knutepunkt ved Sirkus Shopping.
Adkomst
På høyre side i annonsen finner du et kartutsnitt. Ved å klikke på kartet kan du enkelt planlegge din rute fra valgt startpunkt og helt frem til boligen. Det vil være skiltet ved fellesvisninger for enkel orientering.
Energiklasse
E
Info energiklasse
Se fullstendig energiattest som ligger vedlagt salgsoppgave.
Oppvarming
Elektrisk oppvarming. Det er elektrisk gulvvarme på badet. Hvis et rom på visningen mangler fast installert oppvarmingskilde, vil ikke dette bli inkludert i handelen.
Om borettslaget
BROMSTADENGA BORETTSLAG Org.nr: 948656132
Bromstadenga Borettslag er et borettslag som består av 366 boenheter. Borettslaget er tilknyttet Boligbyggelaget TOBB som er forretningsfører. Vi gjør oppmerksom på følgende saker i borettslaget: Det pågår en sak angående utvendig rehabilitering av Bromstadbuen 1-11 og 2-32. Økt fellesgjeld vil fordeles på alle andelseierne i henhold til eierbrøk. Med en kostnad på 20 millioner vil fellesgjelden øke i gjennomsnitt med 55.000 kroner. Legger vi til grunn dagens rentenivå og en nedbetalingstid på 30 år vil felleskostnadene øke i snitt med 350 kroner pr måned for å betjene lånet. Styret presiserer at alle tall er estimater da det ikke er gjennomført anbud verken på byggekostnader eller lånekostnader. Planlagt oppstart av rehabilitering vil være sommeren 2026, og økning i felleskostnader/fellesgjeld vil da sannsynligvis være gjeldende fra sommeren 2026. Generalforsamlingen ber styret å gå i dialog med Trondheim kommune for å få etablert flere parkeringsplasser i tilknytning til boligene i Bromstadbuen. Generalforsamlingen ber samtidig styret se på muligheten for å etablere elbillading på noen av parkeringsplassene. Kjekt å vite: Borettslaget har et Miljøhus som brukes til sosiale arrangementer, møter og lignende i borettslaget. Miljøhuset kan leies til private formål som barnedåp, konfirmasjoner osv. Kun gass- og elektrisk grill er tillatt på terrasser og verandaer uten innglassing. Det er ikke tillatt å endre på bærende konstruksjoner, eller montere parabolantenner og varmepumper. Renovering av bad/kjøkken som berører vann, avløp, elektrisk anlegg eller ventilasjon, krever søknad til styret. Fasadeendringer må godkjennes av generalforsamlingen.
Regnskap / Budsjett / Kostnadsøkninger
Borettslaget hadde i 2024 samlede driftsinntekter på kr 29 104 917 og samlede driftskostnader på kr 24 603 791. Dette ga et positivt årsresultat på kr 1 976 295. Bromstadenga parkeringsutleie hadde i 2024 samlede driftsinntekter på kr 7 926 729 og samlede driftskostnader på kr 3 664 676. Dette ga et negativt årsresultat på kr 2 252 622.
Forretningsfører
TOBB boligbyggelag
Styregodkjennelse
Kjøper må godkjennes av borettslagets styre. Styret kan kun nekte godkjenning dersom det foreligger saklig grunnlag, jf. borettslagsloven § 4-4. Kjøper må være registrert som medlem og tegnet andel i Boligbyggelaget Nye Trondheim før søknad om godkjenning av ny eier kan behandles.
Forkjøpsrett
Forkjøpsretten er lagt ut til boligbyggelagets medlemmer samtidig med boligsalget. Det betyr at medlemmer kan benytte forkjøpsretten innen 5 virkedager etter at selger har akseptert et bud. Dersom forkjøpsretten blir brukt, faller kjøpsavtalen med opprinnelig kjøper bort, og kjøperen har ingen videre økonomiske forpliktelser overfor selger. Vær oppmerksom på at forretningsfører kan kreve et gebyr av den som benytter forkjøpsretten.
Forsikringsselskap og polisenummer felles forsikring
Fremtind Forsikring AS
19471692m.fl
Vedtekter / husordensregler
Borettslagets vedtekter og husordensregler ligger vedlagt salgsoppgaven.
Husdyrhold
Det er tillatt med dyrehold i henhold til husordensreglene. Dyreholdet skal ikke være til ulempe eller sjenanse for de øvrige beboere. Dersom det fremsettes berettigede klager over at dyreholdet sjenerer naboer med lukt, bråk etc., eller på annen måte er til ulempe, for eksempel skaper redsel eller angst, forplikter eier å fjerne dyret dersom ikke en minnelig ordning med klageren kan oppnås. I tvilstilfeller avgjør styret etter forhandling med partene hvorvidt en klage er berettiget. Beboere som holder husdyr, må sørge for å ha full kontroll av dyret til enhver tid og påse at dyret ikke sjenerer noen eller etterlater ekskrementer i borettslagets boområde.
Adgang til utleie
Det er begrenset adgang til å leie ut bolig i borettslag. Med styrets godkjenning og under visse vilkår kan boligen leies ut i inntil 3 år, jf. borettslagsloven § 5-3 til § 5-10. Andelseier som selv bor i boligen, har imidlertid rett til å leie ut deler av boligen til andre uten styregodkjenning, jf. borettslagsloven § 5-4. Korttidsutleie er tillatt i opptil 30 døgn per år uten samtykke fra styret.
Ferdigattest / brukstillatelse
Det er utstedt brukstillatelse for terrassehus datert 26.06.1973. Det foreligger ikke ferdigattest. Jf. plan- og bygningsloven § 21-10 (5) utstedes det ikke lengre ferdigattest for tiltak det er søkt om før 01.01.1998. Dette innebærer at byggverkene lovlig kan brukes og omsettes uten at det foreligger ferdigattest. Det betyr imidlertid ikke at ulovlige bygde tiltak blir lovlige. Det er i tillegg utstedt en midlertidig brukstillatelse for rehabilitering datert 09.12.1994. Det er ikke utstedt ferdigattest for tiltaket. Det foreligger godkjente byggetegninger stemplet 26.08.1970. Tegningene samsvarer ikke med dagens bruk av boligen. Følgende er bemerket: - Et opprinnelig kott er i dag innredet som soverom. En slik endring fra tilleggsdel til hoveddel er søknadspliktig. - Et opprinnelig toalettrom er innlemmet i badet. Kjøper overtar risiko og ansvar for nevnte forhold.
Vei, vann og avløp
Eiendommen er tilknyttet offentlig vann- og avløpssystem. Stikkledningene fra eiendommen og ut til det kommunale nettet er private, og vedlikeholdsansvaret for disse påhviler borettslaget. Adkomst til eiendommen skjer via privat vei.
Regulerings- og arealplaner
Eiendommen er etter reguleringsplan r20130056 og r20140037, regulert til gang-/sykkelveg, lekeplass, parkeringsplasser, boligbebyggelse-blokkbebyggelse m.m. Eiendommen er i kommuneplanens arealdel avsatt til sentrumsformål - nåværende og byggesone 2. Vi gjør oppmerksom på følgende planforslag som berører eiendommen: - Plan-ID: r20240035 Planen skal legge til rette for boligbebyggelse med tilhørende infrastruktur i Cecilie Thoresens veg 4. Kopi av situasjonskart, målebrev, reguleringsplaner m/bestemmelser etc. ligger vedlagt i salgsoppgaven eller kan fås ved henvendelse til megler. Vi oppfordrer interessenter til å gjøre seg kjent med disse.
Tinglyste heftelser og rettigheter
På eiendommen er det tinglyst følgende heftelser og rettigheter som følger eiendommens matrikkel ved overskjøting til ny hjemmelshaver: 5001/13/93: 30.12.1970 - Dokumentnr: 17849 - Festekontrakt - vilkår Gjelder feste Festetid: 150 år ÅRLIG AVGIFT NOK 47,428 BESTEMMELSER OM REGULERING AV LEIEN PANT FOR FORFALT FESTEAVGIFT Gjelder denne registerenheten med flere 21.04.2016 - Dokumentnr: 355003 - Bestemmelse om vannledn. Gjelder feste Rettighetshaver: Knr:5001 Gnr:13 Bnr:94 Rettighetshaver: Knr:5001 Gnr:13 Bnr:95 Kan ikke slettes uten samtykke fra kommunen Gjelder denne registerenheten med flere 30.12.1970 - Dokumentnr: 17849 - Festekontrakt - vilkår Festetid: 150 år ÅRLIG AVGIFT NOK 47,428 BESTEMMELSER OM REGULERING AV LEIEN PANT FOR FORFALT FESTEAVGIFT Gjelder denne registerenheten med flere 13.03.1972 - Dokumentnr: 3458 - Erklæring/avtale Bestemmelse om trafostasjon/kiosk 09.10.1970 - Dokumentnr: 13639 - Registrering av grunn Denne matrikkelenhet opprettet fra: Knr:5001 Gnr:13 Bnr:1 21.04.2016 - Dokumentnr: 354892 - Registrering av grunn Utskilt fra denne matrikkelenhet: Knr:5001 Gnr:13 Bnr:277 21.04.2016 - Dokumentnr: 354965 - Arealoverføring Areal overført til: Knr:5001 Gnr:13 Bnr:92 Vederlag: NOK 0 Omsetningstype: Annet 01.01.2018 - Dokumentnr: 123904 - Omnummerering ved kommuneendring Tidligere: Knr:1601 Gnr:13 Bnr:93 21.04.2016 - Dokumentnr: 355003 - Best. om vann/kloakkledn. Rettighet hefter i: Knr:5001 Gnr:13 Bnr:94 Rettighet hefter i: Knr:5001 Gnr:13 Bnr:95 Kan ikke slettes uten samtykke fra kommunen Gjelder denne registerenheten med flere Dokumenter kan fås ved henvendelse til megler.
Legalpant
Borettslaget har legalpant på inntil 2G som sikkerhet for betaling av felleskostnader. Dette betyr at borettslaget har prioritet over tinglyste lån når det gjelder betaling av felleskostnader, og kan kreve inn pengene før andre kreditorer, selv om de har lån registrert på andelen.
Boligselgerforsikring
Selger har tegnet boligselgerforsikring som dekker selgers ansvar etter avhendingsloven begrenset oppad kr. 20 000 000,-. Egenerklæringsskjema er vedlagt salgsoppgaven og interessenter oppfordres til å gjennomgå denne før bud inngis.
Boligkjøperforsikring
Kjøper har anledning til å tegne boligkjøperforsikring. Vedlagt i salgsoppgaven følger informasjon om Boligkjøperforsikring fra Söderberg & Partners. Boligkjøperforsikring er en rettshjelpsforsikring som gir trygghet og profesjonell juridisk hjelp dersom det oppdages uventede feil eller mangler ved boligen de neste fem årene. Les mer om Boligkjøperforsikring i vedlagte materiell eller på https://www.soderbergpartners.no/eiendom/boligkjoper/
Diverse
Borettslagsmodellen innebærer at borettslaget eier eiendommen, mens andelseierne eier andeler i borettslaget, som gir borett til en bestemt bolig. Andelseierne har ikke personlig ansvar for borettslagets fellesgjeld, men de må dekke borettslagets løpende utgifter. Manglende innbetaling av fellesutgiftene som følge av andre andelshaveres mislighold, eller dersom borettslaget sitter på fraflyttede og/eller usolgte andeler, må dekkes av de øvrige andelseierne. Borettslaget har legalpanterett i andelen for krav på dekning av felleskostnader og andre krav fra borettslaget, på inntil 2 ganger folketrygdens grunnbeløp. Kjøper og selger er forpliktet til å undertegne standard kjøpekontrakt utarbeidet av Emera i forbindelse med eiendomstransaksjonen. Kjøpekontrakten kan besiktiges hos eiendomsmegler før bud inngis. Kontakt eiendomsmegler for spørsmål. Selger leverer eiendommen i ryddig og rengjort stand.
Sentrale lover
Regelverk og generelle opplysninger Boligen selges med det inventar og utstyr som i henhold til gjeldende lover, forskrifter eller offentlige pålegg skal følge med eiendommen, jf. avhendingsloven § 3-4. Fastmonterte eller spesialtilpassede installasjoner og innredning som anses som varig tilknyttet boligen, følger normalt med i handelen, med mindre det foreligger en særskilt avtale mellom partene om noe annet, jf. avhendingsloven § 3-5. En standard tilbehørsliste utarbeidet av Norges Eiendomsmeglerforbund (NEF) følger salgsoppgaven, og gjelder som utgangspunkt for hva som inkluderes i salget – med mindre avvik er tydelig avtalt mellom kjøper og selger. Om informasjonsgrunnlaget Opplysninger om boligens størrelse og utforming, både innvendig og utvendig, bygger på informasjon hentet fra vedlagte tilstands- og boligsalgsrapport. Innholdet i salgsoppgaven er basert på selgers informasjon, fagkyndig vurdering, samt opplysninger fra offentlige registre som kommunen og Kartverket. Det er viktig at kjøper setter seg grundig inn i alle salgsdokumentene, herunder salgsoppgave, tilstandsrapport og selgers egenerklæring. Kjøper anses for å være kjent med forhold som er tydelig beskrevet i salgsdokumentene, slike forhold kan ikke senere gjøres gjeldende som en mangel ved boligen. Dette gjelder uavhengig av om dokumentene er lest. Det kan være forskjell mellom boligens faktiske bruk av rom og det som er godkjent av myndighetene. Alle interessenter anbefales derfor å undersøke eiendommen nøye, gjerne sammen med fagperson, før bud gis. Dersom kjøper velger å kjøpe uten å ha sett eiendommen, kan det ikke etter overtakelse reklameres på forhold som burde ha vært oppdaget ved en ordinær gjennomgang. Dersom det oppstår behov for ytterligere avklaringer, oppfordres interessenter til å kontakte eiendomsmegler eller egne rådgivere før de gir bud. Slitasje og bruk Det må også forventes at eiendommer som har vært i bruk, vil kunne ha tegn til slitasje og eventuelle skader. Slik normal bruksslitasje og behov for vedlikehold må kjøper påregne, og dette vil normalt ikke gi grunnlag for reklamasjon eller prisavslag. Avtalerettslig Partenes rettigheter og plikter reguleres av avtalen mellom partene, og all tilgjengelig dokumentasjon som forelå for kjøper før handelen ble inngått. I tillegg gjelder avhendingsloven. Det gjelder ulike avtalevilkår avhengig av om kjøper er forbrukerkjøper eller ikke, og dette er nærmere forklart nedenfor. Budgivning og selgers vurdering På grunn av ulike ansvarsforhold kan selger velge å prioritere bud fra ikke-forbrukere, selv om budet er lavere enn et forbrukerbud. Når kjøper ikke er forbruker, kan selges ansvar begrenses ettersom boligen selges «som den er», noe som kan være av verdi for selger. Det understrekes at selger står fritt til å velge hvilket bud som aksepteres, og er ikke forpliktet til å velge det høyeste. Alle budgivere må ved inngivelse av bud opplyse om de opptrer som forbruker eller som næringsdrivende/person som handler hovedsakelig som ledd i næringsvirksomhet. Det vil opplyses hvis konkurrerende bud kommer fra en ikke-forbruker. Forbrukerkjøp – definisjon og vilkår: Et forbrukerkjøp foreligger når en fysisk person kjøper eiendom uten at formålet hovedsakelig er knyttet til næringsvirksomhet. En eiendom anses å ha en mangel dersom den ikke oppfyller kravene som følger av avtalen, eller ved brudd på bestemmelser i avhendingsloven §§ 3-2 til 3-8. Det samme gjelder hvis eiendommen ikke samsvarer med det som med rimelighet kunne forventes ut fra blant annet alder, type og synlig tilstand – eller hvis det er tilbakeholdt, eller gitt feilaktige opplysninger, og dette har påvirket avtalen. Dersom det er avvik mellom oppgitt og faktisk innvendig areal på minst 2 % og samtidig minst 1 kvadratmeter, kan dette utløse rett til kompensasjon etter § 3-3 i avhendingsloven. Ved beregning av krav om prisavslag eller erstatning må kjøper selv dekke kostnader med inntil kr 10 000 (som en egenandel). Ikke-forbruker – definisjon og vilkår: Dersom kjøper er en juridisk enhet, eller en fysisk person som handler i næringssammenheng, regnes kjøpet ikke som et forbrukerkjøp. Ved slike kjøp selges eiendommen «som den er», og selgers ansvar er begrenset til det som følger direkte av avtalen, jf. avhendingsloven § 3-9. I disse tilfellene fravikes § 3-3 andre ledd, og eventuelle arealavvik vurderes etter § 3-8. Kjøperens plikt til å foreta grundige undersøkelser gjelder også fullt ut for kjøpere som ikke omfattes av forbrukerdefinisjonen.
Betalingsbetingelser
Hele oppgjøret må betales samlet fra en norsk bankkonto. Overføringer fra utlandet aksepteres kun unntaksvis, og kun dersom dette er forhåndsavtalt med megler i forbindelse med aksept av budet.
Viktig informasjon om budgivning
Bud kan legges inn på nettannonsen på "gi bud" knappen eller via hjemmesiden. Ved elektronisk budgivning kan bud legges inn trygt og enkelt med bank-ID. Eiendomsmegler kan også kontaktes for tilsendelse av budkjema, og budskjema finnes også i salgsoppgaven. Alle bud skal inngi skriftlig til eiendomsmegler. Kravet til skriftlighet gjelder også ved forhøyelse av bud, motbud og selgers aksept eller avslag. Før et bud kan formidles til selger må megler innhente gyldig legitimasjon og signatur fra budgiver. Kravet til legitimasjon og signatur er oppfylt dersom budgiver bruker e-signatur som f eks. bankID. Etter det første budet er inngitt, kan budgiver inngi bud pr e-post eller pr SMS til megler. Hvis budgiver skal by på eiendommen i henhold til en kjøpsfullmakt må megler kontaktes og fullmakten oversendes før budgivning. Et bud bør inneholde eiendommens adresse (eventuelt gnr/bnr), kjøpesum, budgivers kontaktinformasjon, finansieringsplan, akseptfrist, overtakelsesdato og eventuelle forbehold som for eksempel usikker finansiering, salg av nåværende bolig ol. Normalt vil ikke et bud med forbehold bli akseptert før forbeholdet er avklart. Konferer gjerne med megler før bud avgis. Bud som har forbehold om konfidensialitet ("hemmelige bud") vil ikke bli formidlet til selger. Alle interessenter oppfordres til å inngi bud via eiendomsmegler. Megler skal legge til rette for en forsvarlig avvikling av budrunden. I forbrukerforhold (dvs. der selger er forbruker) skal megleren ikke formidle bud med kortere akseptfrist enn til kl. 12.00 første virkedag etter siste annonserte visning. Senere bud må ha en akseptfrist som er lang nok til at budet og eventuelle forbehold kan videreformidles til alle involverte parter slik at disse får tid til å områ seg, jf. forskrift om eiendomsmegling § 6-3. Akseptfrist bør derfor være på minimum 30 minutter, og budforhøyelser bør skje senest 10 minutter før fristens utløp. Dersom bud inngis med en frist som åpenbart er for kort til at megleren kan avvikle budrunden på en forsvarlig måte, vil megler fraråde budet. Eiendomsmegler skal så snart som mulig bekrefte skriftlig overfor budgivere at budene deres er mottatt, og vil uoppfordret gi sin vurdering av det enkelte bud overfor selgeren. Etter at handel har kommet i stand, eller dersom en budrunde avsluttes uten at handel er kommet i stand, kan en budgiver kreve kopi av budjournalen i anonymisert form. Kopi av budjournal gis til kjøper og selger uten ugrunnet opphold etter at handel er kommet i stand. Hvis budgiver ønsker å være anonym, kan bud fremmes via en fullmektig. For mer informasjon om budgivningsprosessen, se «Forbrukerinformasjon om budgivning», som er vedlagt salgsoppgaven, eller ta kontakt med megler.
Vederlag megler
Provisjon ved salg til prisantydning: kr 39 675 Grunnpakke (Kommunal info, gebyr utlegg, tinglysing, grunnbok) kr 10 000,00 Kunderabatt kr -10 000,00 Markedspakke inkl. stor FINN-annonse, Emera digital og prospekt kr 22 900,00 Oppgjørshonorar kr 5 900,00 Tilretteleggingshonorar kr 15 000,00 Tobb - innhenting av info kr 5 000,00 Visningshonorar pr. stk. kr 1 990,00 Utlegg: Selger dekker utlegg i henhold til oppdragsavtalen. Disse er estimert til ca. kr 19 425,00. Total kostnad ved salg til prisantydning: kr 110 465. Dette inkluderer både vederlag og stipulerte utlegg. Ved avbrutt oppdrag: Dersom oppdraget sies opp eller utløper uten at salget gjennomføres, har megler krav på rimelig vederlag for medgått tid og for utført arbeid. Dette omfatter blant annet vederlag knyttet til tilrettelegging, markedsføring og eventuelle avholdte visninger, samt påløpte utlegg. Timepris ved slik beregning er kr 3500.
Hvitvasking
Eiendomsmeglere er underlagt lov om hvitvasking, og er blant annet forpliktet til å gjennomføre kundetiltak av både selger og kjøper. Hvis kjøper ikke bidrar til at megler får gjennomført kundetiltak og dette fører til at avtalen ikke kan gjennomføres eller blir forsinket, er dette et mislighold fra kjøpers side. Et vesentlig mislighold kan gi selger rett til å heve avtalen og til å gjennomføre dekningssalg for kjøpers regning. Dersom selger ikke bidrar til at megler får gjennomført løpende kundetiltak underveis i oppdraget, må eiendomsmegler stanse gjennomføringen av transaksjonen. Selger vil i et slikt tilfelle ha misligholdt sine forpliktelser, og kjøper vil kunne ha et krav mot selger etter avhendingsloven. Hvis kundetiltak ikke lar seg gjennomføre, vil Emera eiendomsmegling ikke kunne bistå med handelen eller foreta oppgjør.
Personopplysningsloven
Personopplysninger blir behandlet i samsvar med personopplysningsloven. Se www.emera.no for vår personvernerklæring.
Oppdragsnummer
05260053
Status salgsoppgave
Salgsoppgave sist endret: 14. april 2026
Megler
Ansvarlig megler
Geir Einar Moen
Megler
Geir Einar Moen
Meglerforetaket
Era eiendomsmegling AS Org.nr: 936749259
Samarbeidspartnere og tilknyttede foretak
Emera Norge AS og eiendomsmeglingsforetakene som er tilknyttet Emera har samarbeid med forskjellige foretak som tilbyr forbrukerne produkter eller tjenester i forbindelse med et salgsoppdrag. Våre samarbeidspartene er:
Søderberg & Partners AS - formidler av boligselger- og boligkjøperforsikring Overo AS - leverandør av digitale oppgjørsskjemaer og overtakelsesprotokoller som også inneholder tilbud til forbruker om tilpassede strøm-, internett- og alarmtjenester.
Hvilke produkter/tjenester kjøper og selger får i forbindelse med oppdraget, kan variere ut fra hvor i landet eiendommen ligger.
Plantegning
Tilstandsrapport
Energiattest
Egenerklæring boligselgerforsikring
Tilstandsrapport
Salgsoppgave
Boligkjøperforsikring
Når du kjøper bolig, er det viktig å sikre seg mot uforutsette utgifter. Söderberg & Partners og Emera Eiendomsmegling hjelper deg med å skape trygghet i boligkjøpet.
Fritt meglervalg
Valg av megler skal være frivillig. Megler kan ikke inngå oppdrag om eiendomsmegling dersom inngåelsen av oppdraget er satt som vilkår i avtale om annet enn eiendomsmegling, for eksempel tilbud om lån eller andre banktjenester, jf. eiendomsmeglingsloven § 6-3 (3).