

























ILADALEN
Vøyensvingen 7
49 m2
|
5 490 000 kr
|
1 soverom
|
Eierseksjon
|
Lys og moderne 2-roms med garasjeplass og elbillader | Franske vinduer | Heis | Attraktiv beliggenhet ved Iladalen
Pris og areal
Prisantydning
5 490 000 ,-
Omkostninger
152 610 ,-
totalpris
5 674 007 ,-
felleskostnader
5 277 ,- per mnd
fellesgjeld
31 397 ,-
fellesformue
1 728 ,-
bruksareal
54 m2
internt bruksareal
49 m2
eksternt bruksareal
5 m2
Kort fortalt
Velkommen til Vøyensvingen 7! En lys og moderne 2-roms med attraktiv og rolig beliggenhet i Iladalen. Leiligheten har store franske vinduer som gir rikelig med dagslys, en god planløsning og garasjeplass med elbillader - en attraktiv kombinasjon i dette området. Høydepunkter: Garasjeplass med elbillader (fritt omsettelig) Store franske vinduer - svært gode lysforhold Oppvarming og varmtvann inkludert Heis i bygget To felles takterrasser med gode solforhold Rolig og attraktiv beliggenhet ved Iladalen God og moderne planløsning
Nøkkelinfo
Boligtype
Eierseksjon
Eierform
Selveier
Antall soverom
1
antall bad
1
etasje
3
byggeår
2010
energimerking
B
tomteareal
1380 m2 (eiet)
heis
Ja
garasje
Ja
Objektbeskrivelse
Tomten
Tomtestørrelse: 1380 m2 (eiet)
Tomten er fellesareal. At tomten er fellesareal innebærer at sameiet eier og disponerer over de aktuelle områdene i fellesskap. Dette gir ikke hver enkelt seksjon en eksklusiv rett til bruk eller å disponere arealene, med mindre annet er uttrykkelig avtalt i avtale eller at det følger av vedtektene.
Byggeår
2010
Etasje
3
Arealer
BRA-i: 49m2
BRA-e: 5m2
Totalt BRA: 54m2
Arealbeskrivelse
Kjeller
BRA-E: 5 m² Kjellerbod
3. etasje
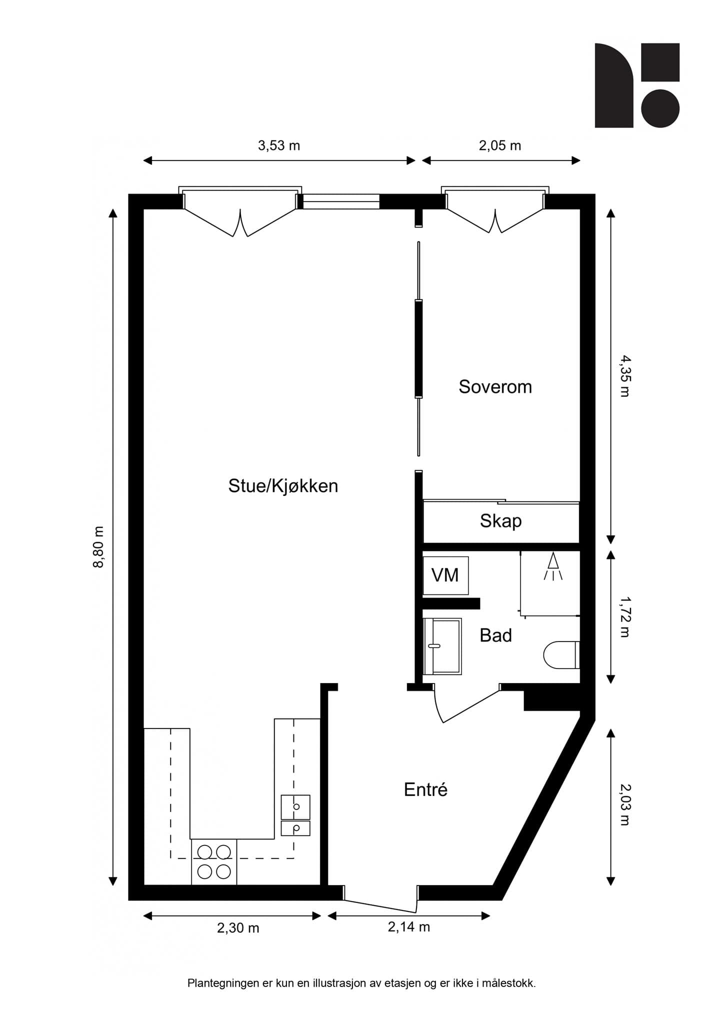
BRA-I: 49 m² Entré, stue/kjøkken, baderom og 1 soverom.
Bygningssakkyndiges kommentar til arealoppmåling
Oppmålingen er fysisk utført med en håndholdt avstandsmåler som har nøyaktighet på +/- 1 mm. Rommene betegnes slik de fremstår og blir benyttet som under befaringen, selv om de i enkelte tilfeller kan avvike fra godkjente byggetegninger og gjeldende byggeregler. Angivelsen av rom for varig opphold i rapporten innebærer ikke nødvendigvis at rommet er, eller kan bli, godkjent for varig opphold i samsvar med dagens forskriftskrav. Arealmålingen er ikke kontrollert opp mot godkjente plantegninger. Bod er fremvist av selger, men bruksretten er ikke kontrollert. Det foreligger godkjente og byggemeldte tegninger, som stemmer med dagens bruk.
Antall soverom
1
Antall rom
2
Innhold
Selveierleiligheten ligger i 3. etasje og består av følgende rom: Entré, stue/kjøkken, 1 soverom og baderom. Leiligheten disponerer en kjellerbod på ca. 5 m².
Standard
Velkommen til Vøyensvingen 7, en arealeffektiv og lys leilighet med attraktiv beliggenhet rett ved Alexander Kiellands plass. Boligen har en funksjonell planløsning med åpen stue- og kjøkkenløsning, store vindusflater og gode lysforhold. Fra oppholdsrommet er det adkomst til fransk balkong som bidrar til en luftig romfølelse. Leiligheten inneholder et romslig soverom med god plass til dobbeltseng og garderobeløsning, samt en innbydende entré med gode oppbevaringsmuligheter. Boligen fremstår som praktisk og lett å møblere, med gode bruksegenskaper i hverdagen. Det medfølger parkeringsplass i felles garasjekjeller med elbillader. Beboerne har tilgang til to felles takterrasser med gode solforhold gjennom sommerhalvåret og fantastisk utsikt – perfekt for sosiale sammenkomster i sommervarmen, kun en heistur unna. Entré: Entré med parkett på gulv og malte, slette overflater på vegger og himling. Rommet har gode oppbevaringsmuligheter i garderobeløsning, samt plass til oppbevaring av yttertøy og sko. Entréen fungerer som et ryddig og funksjonelt bindeledd mellom leilighetens øvrige rom. Kjøkken: Moderne kjøkken med innredning fra 2010 med glatte fronter og laminat benkeplate. Integrerte hvitevarer bestående av platetopp, stekeovn, oppvaskmaskin og kjøleskap med fryser. Mekanisk avtrekk via ventilator. Kjøkkenet har en praktisk utforming med gode arbeidsflater samt oppbevaringsmuligheter, og ligger i åpen løsning mot stue som gir oppholdsrommet en sosial og luftig planløsning. Overflater består av parkett på gulv og malte vegger og himling. Stue: Stue med parkett på gulv og malte, slette overflater på vegger og himling. Rommet har en god og fleksibel planløsning med plass til både sofagruppe og spiseplass/arbeidsplass. Her har du franske vinduer med store vindusflater som kan åpnes helt ned til gulvet, noe som gir godt med naturlig lys og bidrar til en åpen og luftig romfølelse. Soverom: Soverom med parkett på gulv og malte overflater på vegger og himling. Rommet har fleksible innredningsmuligheter, med god plass til dobbeltseng og tilhørende møblement, samt garderobeløsning med skyvedører som gir gode oppbevaringsmuligheter. Godt med lysinnslipp fra franske vinduer gir soverommet et luftig og åpent uttrykk. Baderom: Flislagt baderom fra byggeår. Fliser på gulv og vegger, samt slette overflater i himling. Badet er utstyrt med servant og innredning med glatte fronter, veggmontert klosett og dusj med svingbare glassdører. Det er opplegg for vaskemaskin. Mekanisk avtrekk og tilluft via luftespalte over dør. Overflater: Gulvoverflater: Parkett. Fliser på bad. Vegger: Sparklet/pussede og malte overflater. Himling: Sparklet/pussede og malte overflater. Lagring: Gode oppbevaringsmuligheter i entré og på soverom. Boligen disponerer en kjellerbod på ca. 5 m². Garasje: Boligen disponerer én parkeringsplass i felles garasjekjeller. Det er montert elbillader tilknyttet plassen. Felles takterrasse: Beboerne har tilgang til to felles takterrasser. Takterrassene ligger kun en heistur unna og fungerer som hyggelige fellesområder for opphold og sosiale sammenkomster. Her har du nydelig utsikt over Oslo samt gode solforhold gjennom sommerhalvåret.
Innbo og løsøre
Salgsoppgaven inkluderer NEFs standardliste "Oversikt over løsøre og tilbehør", som legges til grunn med mindre annet er spesifisert i salgsopggaven. Gjenstander som er nevnt i standardlisten, men som ikke finnes på eiendommen, vil heller ikke følge med i salget. Alt utstyr og installasjoner som medfølger overtas slik de er, uten garanti, med mindre det foreligger en gjeldende garanti fra produsent eller leverandør. Kjøper aksepterer at det kan forekomme hull og merker etter montering av inventar og utstyr som ikke er en del av salgsoppgaven.
Parkering
Det medfølger en garasjeplass (nr. 20) i felles garasjekjeller. Plassen er utstyrt med elbillader. Også folk som ikke er sameiere kan kjøpe garasjeplass her. Personer med nedsatt funksjonsevne kan kreve at styret pålegger en annen seksjonseier å bytte parkeringsplass. Bytteretten gjelder bare dersom seksjonseieren med nedsatt funksjonsevne allerede disponerer en parkeringsplass i sameiet. Retten gjelder bare parkeringsplasser som i vedtak etter plan- og bygningsloven er krevet opparbeidet til bruk av personer med nedsatt funksjonsevne. Det faktureres månedlige kostnader på kr. 564,- for parkeringsplassen.
Sammendrag av selgers egenerklæring
Selgers egenerklæringsskjema følger vedlagt salgsoppgaven. Interessenter oppfordres til å gjennomgå dette nøye. Følgende opplysninger er spesielt viktig å merke seg: 3. Kjenner du til om det er/har vært tilbakeslag av avløpsvann i sluk eller lignende? - Ja. - Beskrivelse: Leietaker meldte om tett avløp og tilbakeslag av kloakk i dusjen 15. september 2025. Arbeid utført av: UM Eiendomsdrift AS 4. Kjenner du til feil eller om det har vært utført arbeid/kontroll på vann/avløp? - Ja, kun av faglært. - Beskrivelse: Tett dusj sluk, blokkering funnet ca. 3-4 meter inn i røret i form av oppsamlet papir - brukerfeil/feilbruk. Spylt åpent og funksjonstestet med kunde på sted - alt OK. Arbeid utført av: UM Eiendomsdrift AS 13. Har du ladeanlegg/ladeboks for elbil i dag? - Ja. - Beskrivelse: Ladeboks installert gjennom sameiet. Samsvarserklæring: Det fremgår av tilstandsrapporten at det mangler fremlagt samsvarserklæring for deler av det elektriske arbeidet i boligen. Det er fremlagt samsvarserklæring på deler av anlegget: - Nyinstallasjon. - Montering av stikkontakter i stue, gang og soverom. - Byttet lamper på soverom, gang og over spisebord.
Bygningssakkyndig
Theodor Bugge Østlie
Byggemåte
I forbindelse med salget er det blitt utarbeidet en tilstandsrapport av en bygningssakkyndig, som gir en teknisk gjennomgang av boligen og påviser eventuelle avvik. Det er viktig å merke seg at forhold med TG2 og TG3 bør gjennomgås nøye, ettersom disse indikerer avvik fra normal slitasje eller høy alder, og kan medføre behov for utbedring. Bygningsdeler vurdert med TGUI er ikke blitt undersøkt av takstmann. Se vedlagt tilstandsrapport for vurderinger av TG1 og TGIU. Rapporten, sammen med selgers egenerklæring, er vedlagt salgsoppgaven. Det er viktig at interessenter grundig gjennomgår disse dokumentene før bud legges inn. All informasjon i tilstandsrapporten anses som kjent for kjøper, og det vil ikke være mulig å reklamere på forhold som er nevnt i rapporten. Rapporten omfatter kun den aktuelle boligen og felles bygningsdeler under boligsammenslutningens ansvar er ikke vurdert. Beskrivelsen av boligen nedenfor er hentet fra tilstandsrapporten: Bygning - felles bygningsdeler, UTVENDIG: Byggeår: 2010 - Bygningen er oppført med grunnmur i betong. - Yttervegger i betong, stål- og trekonstruksjon, forblendet med pusset og malte overflater og kledd med panel. - Yttertak i oppforet betongdekke, tekket med takpapp. Parkering: - Boligen disponerer en parkeringsplass i felles garasjekjeller. - Elbillader er montert. Parkeringsplass er fremvist av selger, men bruksrett og funksjonalitet er ikke undersøkt. Bygning - felles bygningsdeler, innvendig: - Etasjeskiller i betong - Felles varmtvann - Trapper i betong - Dørcalling - Personheis Overflater innvendig, utover våtrom: - Gulv: Parkett. - Vegger: Sparklet/pussede og malte overflater. - Himling: Sparklet/pussede og malte overflater. - Himlingshøyde: Ca. 2,40 meter, målt i stue. Vinduer: Vinduer med isolerglass, fra byggeåret. Dører: Brann- og lydklassifisert entrédør. Balkongdør med isolerglass. Dørene er fra byggeåret. Våtrom/baderom: Badet er ifølge eier fra byggeåret. Fliser på vegger. Slette overflater i himlingen. Fliser på gulv. Sluket er i plast. Membran kan ikke konstateres visuelt. Luftespalte med lufttilførsel over dør. Tilleggende konstruksjoner våtrom: Hulltaking og fuktmåling i veggkonstruksjonen er ikke utført da våtrommet er et prefabrikkert våtromskabin. I denne typen konstruksjon skal det ikke foretas hulltaking i henhold til forskrift til avhendingslova. Det er gjennomført fuktsøk med overflateindikator på utsiden av veggene, uten at det ble avdekket indikasjoner på fuktskade. Det understrekes imidlertid at denne metoden har begrenset evne til å avdekke skjulte fuktskader, og resultatene må derfor ikke tolkes som en garanti mot slike skader. VVS-installasjoner: Innvendige vannledninger er av plast (rør-i-rør). Hovedstoppekranen er lokalisert og enkelt funksjonstestet. Lekkasjesikring: Drensåpning i front til fordelerskap. Ventilasjon: Avtrekk: Mekanisk avtrekk. Tilluft: Luftspalte med lufttilførsel over dør. Spørsmål til eier: Når var anlegget nytt, og er det eventuelt fornyet? Anlegget er fra byggeåret. Når ble det sist inspisert eller rengjort? Ukjent. Tekniske detaljer: Elektrisk anlegg: Sikringer av jordfeilautomater. Når ble det elektriske anlegget installert eller sist gang totalt rehabilitert (årstall)? Med totalt rehabilitert menes fullstendig utskiftet anlegg fra inntakssikring og videre. - 2010. Er det elektriske anlegget utført eller er det foretatt tilleggsarbeider på det elektriske anlegget etter 1.1.1999? - Ja. Eksisterer det samsvarserklæring? - Ja. Det er fremvist samsvarserklæring på følgende opplyste arbeider: - Nyinstallasjon - Montering av stikkontakter i stue, gang og soverom - Byttet lamper på soverom, gang og over spisebord Inntak og sikringsskap: Foreta en helhetsvurdering av det elektriske anlegget, dets alder, almene tilstand og fare for liv og helse. Bør det elektriske anlegget ha en utvidet el-kontroll? - Ukjent. Generell kommentar: Det presiseres at undertegnede ikke har elektrofaglig kompetanse. Elektriske installasjoner er strengt regulert med tekniske krav til installasjoner og kompetansekrav for de som utfører arbeidet. Kun fagfolk med nødvendige kvalifikasjoner, i henhold til forskrift om elektroforetak og kvalifikasjonskrav, kan utføre el-kontroll. Det er ikke avdekket forhold som er vurdert til TG3. Bygningsdeler vurdert med TG2: - INNVENDIG | Dører Det er registrert at enkelte dører tar i karmen. Dette gjør dørene tyngre å åpne og lukke, og gir økt slitasje. Justering anbefales. - VÅTROM | Overflater vegger og himling Det er påvist sprekkdannelser i mykfuger. Forholdet kan svekke fugens funksjon som bevegelses- og tettesjikt. Re-fuging bør påregnes. Konstruksjonen har passert halvparten av forventet levetid og har bruksslitasje. Alder og bruksslitasje kan øke behov for vedlikehold og tiltak. - VÅTROM | Overflater gulv Riss er observert i flisefuger. Dette kan skyldes flere årsaker, for eksempel bevegelser i underlaget, dårlig håndverk, normal slitasje, temperaturendringer eller fuktskader. Årsaken er ikke fastslått, og regelmessig oppfølging anbefales for å overvåke utviklingen. Dersom forholdet utvikler seg, kan det medføre økt risiko for fuktinntrengning og skade på underliggende konstruksjon. - VÅTROM | Sluk, membran og tettesjikt Membranens utførelse og tilstand kan ikke konstateres visuelt, og det foreligger ikke dokumentasjon som tilfredsstiller vurderingskriteriene i NS 3600. Forholdet medfører usikkerhet knyttet til konstruksjonens fuktsikring. Membranen har passert halvparten av forventet levetid. Når membranen eldes, svekkes den gradvis og kan utvikle mindre utettheter som slipper fukt ned i konstruksjonen. Hvor raskt dette skjer avhenger av kvalitet, utførelse og bruk, og regelmessig tilsyn er viktig. En full oppgradering med nytt tettesjikt må påregnes på sikt, selv om det er vanskelig å si nøyaktig når. Tilstandsrapporten for boligen er vedlagt salgsoppgaven. Henviser til rapporten for mer detaljert informasjon.
Omkostninger
5 490 000,00 (Prisantydning) 31 397 (Andel av fellesgjeld) -------------------------------------------------------- 5 521 397 (Pris inkl. fellesgjeld) Omkostninger 13 500 (Boligkjøperforsikring* (valgfritt)) 138 020 (Dokumentavgift) 545 (Tinglysingsgebyr - hjemmel) 545 (Tinglysningsgebyr - pantedokument) -------------------------------------------------------- 139 110 (Omkostninger totalt (uten Boligkjøperforsikring)) 152 610 (Omkostninger totalt (med Boligkjøperforsikring)) -------------------------------------------------------- 5 660 507 (Totalpris inkl. omkostninger (uten Boligkjøperforsikring)) 5 674 007 (Totalpris inkl. omkostninger (med Boligkjøperforsikring)) --------------------------------------------------------
Felleskostnader
5 277,- per mnd
Totale felleskostnader er kr. 5.277,- per måned. Felleskostnadene er fordelt slik: - Fjernvarme (oppvarming): kr. 803,- - Renter lån: kr. 183,- - Avdrag lån: kr. 115,- - Felleskostnader bolig: kr. 1.842,- - Vedlikeholdsinntekter: kr. 1.200,- - Kabel-TV og internett: kr. 570,- - Garasjeplass: kr. 564,- På grunn av prisstigning og renteøkning er det påregnelig at felleskostnadene økes etter utarbeidelse av denne salgsoppgaven. Felleskostnadene kan bli besluttet økt etter utarbeidelse av salgsoppgaven.
Kommunale avgifter
I følge selger utgjør eiendomsskatten noen få hundre kroner per år for boligen.
Fellesformue
1 728,-
Fellesgjeld
31 397,-
Kjøperen må være innforstått med at fellesgjelden i sameiet og fellesutgiftene kan variere over tid, også at den kan øke som følge av beslutninger i sameiets styre eller generalforsamlinger. Styret i sameiet bestemmer om og når felleskostnadene skal justeres.
Sameiet har følgende lån og vilkår: Bank: OBOS-banken AS Lånenummer: 98207702153 Type: Annuitetslån, 4 terminer per år Restsaldo per 09.03.2026: kr. 2.391.1997,- Andel av saldo: kr. 31.398,- Antall terminer til innfrielse: 56 (siste termin 30.01.2040) Type rente: Flytende Rentesats per 09.03.2026: 7% pa Det er ikke vedtatt avtale om individuell nedbetaling av fellesgjeld.
Formuesverdi
Formuesverdi primær: 1 511 340 pr. 2025
Formuesverdi sekundær: 6 045 358 pr. 2025
Skatteetaten beregner en boligverdi (beregnet markedsverdi for bolig) basert på SSBs statistiske opplysninger om omsatte boliger. I beregningen tas det hensyn til din boligs beliggenhet, areal, byggeår og type bolig. Formuesverdien er en prosentandel av denne boligverdien. For mer informasjon om formuesverdi, se Skatteetatens nettsider.
Beliggenhet
Leiligheten har en attraktiv og rolig beliggenhet i et etablert og ettertraktet boligområde midt mellom Torshov, Sagene, Lovisenberg og Alexander Kiellands. Her bor du i rolige omgivelser, samtidig som du har byens liv rett utenfor døren. Området har de siste årene gjennomgått en stor forvandling, og fremstår i dag som et moderne og levende knutepunkt. Med noen få minutters gange finner du hyggelige kaféer, populære restauranter og sjarmerende uteserveringer. Dagens første kaffekopp kan for eksempel nytes på Åpent Bakeri i Tranen, som om kvelden forvandles til en av byens mest omtalte pizzarestauranter. I nærheten finner du også vinbaren Bar Amour, Colonel Mustard med god mat og brettspill, samt flere kjente kaffebarer som Java, Tim Wendelboe og Supreme Roastworks. For den matglade er det kort vei til Vulkan, et spennende byutviklingsprosjekt med Mathallen, konsertscener, treningssentre, kunstskole, hotell og et rikt utvalg av restauranter og barer. Like ved ligger også Kiellands Hus, et praktisk nærsenter med Coop Mega med ferskvaredisk, apotek, vinmonopol, blomsterbutikk, bokhandel, bakeri og kafeer. Ringen Kino og Ringnes Park senter ligger også bare noen minutters gange unna, med kino, butikker og spisesteder. Området er kjent for sine flotte grøntområder og rekreasjonsmuligheter. Iladalen Park og St. Hanshaugen er innen kort gangavstand, og byr på store gressletter, lekeplasser og gode forhold for både små og store. Akerselva ligger like nedenfor, og inviterer til avslappende spaserturer gjennom frodig natur og historiske omgivelser, hele veien fra sentrum og opp mot Maridalen. For den aktive finnes et bredt utvalg av treningssentre som SATS Ila, SATS Ringnes Park, Athletica Vulkan og flere mindre, spesialiserte studioer. Det gode kollektivtilbudet gjør det enkelt å komme seg rundt i byen. Fra Kiellands plass går bussene 21, 33, 34 og 54 med hyppige avganger, også gjennom natten. I tillegg er det kort vei til Biermanns gate trikkeholdeplass med linje 11, 12 og 18 som raskt tar deg til sentrum, Majorstuen eller Grünerløkka. Fra leiligheten har du også enkel tilgang til flere utdanningsinstitusjoner som Arkitektur- og designhøgskolen (AHO), Kunsthøgskolen (KhiO), Westerdals, Elvebakken videregående, OsloMet, Handelshøyskolen BI og Universitetet i Oslo.
Adkomst
På høyre side i annonsen finner du et kartutsnitt. Ved å klikke på kartet kan du enkelt planlegge din rute fra valgt startpunkt og helt frem til boligen. Det vil være skiltet ved fellesvisninger for enkel orientering.
Energiklasse
B
Info strømforbruk
Selger opplyser om et årlig strømforbruk på mellom ca. 7.000 - 11.000 kWh og ellers månedlige strømregninger på mellom ca. 600 kr - 1.600 kr, avhengig av forbruk og strømpris. Det er viktig å merke seg at energiforbruket kan variere fra husstand til husstand. Selger har ikke tegnet avtale om Norgespris.
Info energiklasse
Alle eiendommer som selges eller leies ut skal ha en energiattest. Unntak gjelder blant annet for frittstående bygninger med et bruksareal mindre enn 50 m². Det er eier som har plikt til å fremlegge energiattest og er ansvarlig for at opplysningene er korrekte. Selger har fylt ut fullstendig energiattest, som er lagt ved salgsoppgaven. Megler påtar seg ikke ansvar for informasjonen som fremgår av energiattesten.
Oppvarming
Boligen har følgende oppvarmingskilder: Vannbåren gulvvarme tilknyttet felles varmeanlegg. Elektriske varmekabler på baderom. Hvis et rom på visningen mangler fast installert oppvarmingskilde, vil ikke dette bli inkludert i handelen.
Om sameiet
Eierseksjonssameiet Kiellands Terrasse Org.nr: 996575853
Eierseksjonssameiet Kiellands Terrasse har forretningskontor i Oslo kommune. Sameiet består av 79 selveierleiligheter og 2 næringsseksjoner (garasje og butikk). Eiendommen er beliggende på gnr 219, bnr 145 i Oslo kommune. Svar fra styret: 1. Foreligger det noen planer om vedlikehold/prosjekter eller lignende i sameiet i nær fremtid? - Nei, ikke noen konkrete planer ut over vanlig vedlikehold. 2. Har du/dere en oversikt over tidligere vedlikehold/oppgraderinger i sameiet som vi kan få tilsendt? - Vi har ikke slik oversikt tilgjengelig. Av større vedlikehold har vi lagt ny membran på uteplatting i 5. etg og fått ordnet gulvet i bilheisen i garasjen. Av oppgraderinger gjennomført den seneste tiden er det ikke mye, bortsett fra oppgradering av postkasseanlegget. 3. Er det noen planer om å justere fellesutgifter og/eller fellesgjeld? - Nei, ingen konkrete planer. 4. Ser sameiet har felles grunnpakke for tv/internett, som er inkludert i fellesutgiftene. Hvilken leverandør? - Telenor. 5. Er det ellers noe som styret ønsker at vi skal informere nye eiere om? - Nei. 6. Kan dere sende meg dokumentet "Innkalling til generalforsamling?" - Det er ikke utformet innkalling til årsmøte for 2026.
Regnskap / Budsjett / Kostnadsøkninger
Årsregnskapet for 2024 viser et positivt resultat på litt over 380.000 kr. For 2025 ble det budsjettert med et overskudd på litt over 580.000 kr. Se vedlagt årsberetning for ytterligere informasjon.
Forretningsfører
Boligbyggelaget Usbl
Styregodkjennelse
Sameiet praktiserer ikke styregodkjennelse.
Forkjøpsrett
Det foreligger ikke forkjøpsrett på eiendommen.
Forsikringsselskap og polisenummer felles forsikring
Gjensidige
80717142
Vedtekter / husordensregler
Vedtekter og husordensregler ligger vedlagt salgsoppgaven.
Husdyrhold
Dyrehold søkes til styret.
Adgang til utleie
Boligen kan leies ut i samsvar med gjeldende lovverk, og vedtektene setter ingen begrensninger på eierens utleieadgang. Korttidsutleie er tillatt i inntil 90 døgn per år, jf. eierseksjonsloven § 24. Denne grensen kan endres i vedtektene, men den må være satt mellom 60 og 120 døgn. Med korttidsutleie menes utleie i en sammenhengende periode på opptil 30 døgn.
Ferdigattest / brukstillatelse
Det foreligger ferdigattest for eiendommen, datert 11.06.2014. Ferdigattest utstedes av bygningsmyndighetene basert på dokumentasjon mottatt fra kontrollansvarlig når et søknadspliktig tiltak er utført i samsvar med tillatelsen og øvrige krav etter plan- og bygningslovgivningen. Det er viktig å merke seg at selv om ferdigattest foreligger, gir det ingen garanti for at bygget er oppført i henhold til tillatelsen og gjeldende regelverk, eller at det senere er utført arbeid på bygget som ikke er byggemeldt eller godkjent. Det foreligger godkjente og byggemeldte tegninger som stemmer med dagens bruk.
Vei, vann og avløp
Eiendommen er tilknyttet offentlig vann- og avløpssystem. Stikkledningene fra eiendommen og ut til det kommunale nettet er private, og vedlikeholdsansvaret for disse påhviler sameiet. Adkomst til eiendommen skjer via offentlig vei.
Regulerings- og arealplaner
Ny kommuneplan fra 23. september 2015. Oslo kommune har vedtatt en ny kommuneplan som kan få betydning for en rekke eksisterende reguleringsplaner i kommunen. For informasjon om eventuelle arbeider eller prosjekter i nærliggende områder, anbefales det å gjøre søk i Oslo kommunes portal for saksinnsyn:https://www.oslo.kommune.no/plan-bygg-og-eiendom/ Reguleringsplanen som gjelder for eiendommen er helt eller delvis opphevet som følge av bystyrets vedtak 23.09.2015 (sak 262) – Kommuneplan 2015 – Oslo mot 2030: Smart, trygg og grønn. Eiendommen er regulert til blant annet bolig. For mer informasjon om gjeldende reguleringsforhold, kontakt megler eller se Plan- og bygningsetatens nettsider. Det anbefales å søke på saksnummer, adresse eller gårds- og bruksnummer. Eiendommen er regulert til blant annet bolig. For mer informasjon om reguleringsforhold, kontakt megler eller søk på saksnummer, adresse eller gårds- og bruksnummer på Plan- og bygningsetatens hjemmeside.
Tinglyste heftelser og rettigheter
På eiendommen er det tinglyst følgende heftelser og rettigheter som følger eiendommens matrikkel ved overskjøting til ny hjemmelshaver: 301/219/145/36: 22.01.1903 - Dokumentnr: 900509 - Erklæring/avtale Bestemmelse om anlegg og vedlikehold av ledninger m.v. Rettighetshaver Maridalsvn. 62b. Overført fra: Knr:0301 Gnr:219 Bnr:145 Gjelder denne registerenheten med flere 31.07.1920 - Dokumentnr: 901674 - Erklæring/avtale Bestemmelse om trafostasjon/kiosk Med flere bestemmelser Overført fra: Knr:0301 Gnr:219 Bnr:145 Gjelder denne registerenheten med flere 05.10.1920 - Dokumentnr: 901675 - Erklæring/avtale Bestemmelse om trafostasjon/kiosk Med flere bestemmelser Overført fra: Knr:0301 Gnr:219 Bnr:145 Gjelder denne registerenheten med flere 18.09.1923 - Dokumentnr: 993692 - Bestemmelse om gjerde Bestemmelse om benyttelse Med flere bestemmelser Overført fra: Knr:0301 Gnr:219 Bnr:145 Gjelder denne registerenheten med flere 10.12.1962 - Dokumentnr: 519452 - Best om garasje/parkering Midlertidig dispensasjon fra bygningsloven Kan ikke slettes uten samtykke fra bygningsrådet Overført fra: Knr:0301 Gnr:219 Bnr:145 Gjelder denne registerenheten med flere 19.02.1971 - Dokumentnr: 502776 - Bestemmelse om bebyggelse vedr. innredning, vareheis m.v. Kan ikke slettes uten samtykke fra bygningsrådet Overført fra: Knr:0301 Gnr:219 Bnr:145 Gjelder denne registerenheten med flere 14.05.2010 - Dokumentnr: 347550 - Seksjonering Opprettet seksjoner: Snr: 36 Formål: Bolig Sameiebrøk: 49/4513 07.05.2012 - Dokumentnr: 350978 - Bruksrett Rettighetshaver: Handelseiendommer 3 AS Org.nr: 998 437 849 Hefter i ideell 1/78 av matrikkelenhet tilhørende: Buvik Kari Hangeland Hefter i ideell 1/39 av matrikkelenhet tilhørende: Bühring-Andersen Birger Hefter i ideell 1/78 av matrikkelenhet tilhørende: Eriksen Siri Øverland Hefter i ideell 1/39 av matrikkelenhet tilhørende: Frey Harald Eika Hefter i ideell 1/39 av matrikkelenhet tilhørende: Gulliksen Tommy Hefter i ideell 1/39 av matrikkelenhet tilhørende: Hannemyr Bjørnar Hefter i ideell 1/39 av matrikkelenhet tilhørende: Hansen-Gaard Hans Sverre Hefter i ideell 1/39 av matrikkelenhet tilhørende: Kjeldset Ola Hefter i ideell 1/78 av matrikkelenhet tilhørende: Kvalsvik Jørgen Haverstad Hefter i ideell 1/39 av matrikkelenhet tilhørende: Leilighetsinvest AS Hefter i ideell 1/39 av matrikkelenhet tilhørende: Mesel Inger Kirstine Hefter i ideell 1/39 av matrikkelenhet tilhørende: Nguyen Leon Nhat Tran Hefter i ideell 1/39 av matrikkelenhet tilhørende: Raabe Sigrid Solbakk Hefter i ideell 1/39 av matrikkelenhet tilhørende: Ranchil Eivind Alexander Hefter i ideell 1/78 av matrikkelenhet tilhørende: Wilsher Thomas Hefter i ideell 1/78 av matrikkelenhet tilhørende: Wilsher Veronika Lervik Hefter i ideell 1/78 av matrikkelenhet tilhørende: Ødegård Johannes Dag Bestemmelse om 2 parkeringsplasser Registrert på feil måte Rettet etter tingl. §18 09.09.2021. Arkivref. 17/57085-22 ---------- Transport Fra: Bunnpris Iladalen AS Org.nr: 993 971 480 Til: Handelseiendommer 3 AS Org.nr: 998 437 849 13.05.2015 - Dokumentnr: 423528 - Bruksrett Rettighetshaver: Knr:0301 Gnr:219 Bnr:5 Hefter i ideell 1/78 av matrikkelenhet tilhørende: Eriksen Siri Øverland Hefter i ideell 1/39 av matrikkelenhet tilhørende: Hansen-Gaard Hans Sverre Hefter i ideell 1/78 av matrikkelenhet tilhørende: Kvalsvik Jørgen Haverstad Hefter i ideell 1/39 av matrikkelenhet tilhørende: Nguyen Leon Nhat Tran Hefter i ideell 1/39 av matrikkelenhet tilhørende: Raabe Sigrid Solbakk Gjelder parkering. 04.08.2015 - Dokumentnr: 705008 - Bruksrett Rettighetshaver: Knr:0301 Gnr:219 Bnr:5 Snr:1 Rettighetshaver: Knr:0301 Gnr:219 Bnr:5 Snr:2 Rettighetshaver: Knr:0301 Gnr:219 Bnr:5 Snr:3 Rettighetshaver: Knr:0301 Gnr:219 Bnr:5 Snr:4 Rettighetshaver: Knr:0301 Gnr:219 Bnr:5 Snr:5 Rettighetshaver: Knr:0301 Gnr:219 Bnr:5 Snr:6 Rettighetshaver: Knr:0301 Gnr:219 Bnr:5 Snr:7 Rettighetshaver: Knr:0301 Gnr:219 Bnr:5 Snr:8 Rettighetshaver: Knr:0301 Gnr:219 Bnr:5 Snr:9 Rettighetshaver: Knr:0301 Gnr:219 Bnr:5 Snr:10 Rettighetshaver: Knr:0301 Gnr:219 Bnr:5 Snr:11 Rettighetshaver: Knr:0301 Gnr:219 Bnr:5 Snr:12 Hefter i ideell 1/78 av matrikkelenhet tilhørende: Eriksen Siri Øverland Hefter i ideell 1/39 av matrikkelenhet tilhørende: Hansen-Gaard Hans Sverre Hefter i ideell 1/78 av matrikkelenhet tilhørende: Kvalsvik Jørgen Haverstad Hefter i ideell 1/39 av matrikkelenhet tilhørende: Nguyen Leon Nhat Tran Hefter i ideell 1/39 av matrikkelenhet tilhørende: Raabe Sigrid Solbakk Gjelder parkering Kan ikke endres eller slettes uten samtykke fra Oslo kommune 21.01.2016 - Dokumentnr: 58535 - Urådighet Rettighetshaver: Sameiet Vøyensvingen 10 Org.nr: 916 221 088 Hefter i ideell 1/78 av matrikkelenhet tilhørende: Eriksen Siri Øverland Hefter i ideell 1/78 av matrikkelenhet tilhørende: Kvalsvik Jørgen Haverstad Kan ikke overdras til andre enn eiere av seksjoner i Sameiet Vøyensvingen 10, gnr. 219 bnr. 5 foruten sammen med gnr. 219 bnr. 5 snr. 7 02.02.2016 - Dokumentnr: 94361 - Urådighet Rettighetshaver: Sameiet Vøyensvingen 10 Org.nr: 916 221 088 Hefter i ideell 1/39 av matrikkelenhet tilhørende: Raabe Sigrid Solbakk Kan ikke overdras til andre enn eierene av seksjoner i Sameiet Vøyensvingen 10, gnr. 219 bnr. 5, foruten sammen med gnr. 219 bnr. 5 snr. 12. 02.02.2016 - Dokumentnr: 94396 - Urådighet Rettighetshaver: Sameiet Vøyensvingen 10 Org.nr: 916 221 088 Hefter i ideell 1/39 av matrikkelenhet tilhørende: Nguyen Leon Nhat Tran Kan ikke overdras til andre enn eiere av seksjoner i Sameiet Vøyensvingen 10, gnr. 219 bnr. 5, foruten sammen med gnr. 219 bnr. 5 snr. 9 04.03.2016 - Dokumentnr: 191237 - Urådighet Rettighetshaver: Sameiet Vøyensvingen 10 Org.nr: 916 221 088 Hefter i ideell 1/39 av matrikkelenhet tilhørende: Hansen-Gaard Hans Sverre Kan ikke overdras til andre enn eiere av seksjoner i Sameiet Vøyensvingen 10, gnr. 219 bnr. 5, foruten sammen med gnr. 219 bnr. 5 snr. 10 22.01.1903 - Dokumentnr: 900509 - Erklæring/avtale Bestemmelse om anlegg og vedlikehold av ledninger m.v. Rettighetshaver Maridalsvn. 62b. Overført fra: Knr:0301 Gnr:219 Bnr:145 Gjelder denne registerenheten med flere 31.07.1920 - Dokumentnr: 901674 - Erklæring/avtale Bestemmelse om trafostasjon/kiosk Med flere bestemmelser Overført fra: Knr:0301 Gnr:219 Bnr:145 Gjelder denne registerenheten med flere 05.10.1920 - Dokumentnr: 901675 - Erklæring/avtale Bestemmelse om trafostasjon/kiosk Med flere bestemmelser Overført fra: Knr:0301 Gnr:219 Bnr:145 Gjelder denne registerenheten med flere 18.09.1923 - Dokumentnr: 993692 - Bestemmelse om gjerde Bestemmelse om benyttelse Med flere bestemmelser Overført fra: Knr:0301 Gnr:219 Bnr:145 Gjelder denne registerenheten med flere 10.12.1962 - Dokumentnr: 519452 - Best om garasje/parkering Midlertidig dispensasjon fra bygningsloven Kan ikke slettes uten samtykke fra bygningsrådet Overført fra: Knr:0301 Gnr:219 Bnr:145 Gjelder denne registerenheten med flere 19.02.1971 - Dokumentnr: 502776 - Bestemmelse om bebyggelse vedr. innredning, vareheis m.v. Kan ikke slettes uten samtykke fra bygningsrådet Overført fra: Knr:0301 Gnr:219 Bnr:145 Gjelder denne registerenheten med flere 24.02.2026 - Dokumentnr: 209948 - Registerenheten kan ikke disponeres over uten samtykke fra rettighetshaver Rettighetshaver: Emera No1 AS Org.nr: 934 963 385 Gjelder denne registerenheten med flere Elektronisk innsendt 14.05.2010 - Dokumentnr: 347550 - Seksjonering Opprettet seksjoner: Snr: 36 Formål: Bolig Sameiebrøk: 49/4513 301/219/145/80: 22.01.1903 - Dokumentnr: 900509 - Erklæring/avtale Bestemmelse om anlegg og vedlikehold av ledninger m.v. Rettighetshaver Maridalsvn. 62b. Overført fra: Knr:0301 Gnr:219 Bnr:145 Gjelder denne registerenheten med flere 31.07.1920 - Dokumentnr: 901674 - Erklæring/avtale Bestemmelse om trafostasjon/kiosk Med flere bestemmelser Overført fra: Knr:0301 Gnr:219 Bnr:145 Gjelder denne registerenheten med flere 05.10.1920 - Dokumentnr: 901675 - Erklæring/avtale Bestemmelse om trafostasjon/kiosk Med flere bestemmelser Overført fra: Knr:0301 Gnr:219 Bnr:145 Gjelder denne registerenheten med flere 18.09.1923 - Dokumentnr: 993692 - Bestemmelse om gjerde Bestemmelse om benyttelse Med flere bestemmelser Overført fra: Knr:0301 Gnr:219 Bnr:145 Gjelder denne registerenheten med flere 10.12.1962 - Dokumentnr: 519452 - Best om garasje/parkering Midlertidig dispensasjon fra bygningsloven Kan ikke slettes uten samtykke fra bygningsrådet Overført fra: Knr:0301 Gnr:219 Bnr:145 Gjelder denne registerenheten med flere 19.02.1971 - Dokumentnr: 502776 - Bestemmelse om bebyggelse vedr. innredning, vareheis m.v. Kan ikke slettes uten samtykke fra bygningsrådet Overført fra: Knr:0301 Gnr:219 Bnr:145 Gjelder denne registerenheten med flere 14.05.2010 - Dokumentnr: 347550 - Seksjonering Opprettet seksjoner: Snr: 36 Formål: Bolig Sameiebrøk: 49/4513 07.05.2012 - Dokumentnr: 350978 - Bruksrett Rettighetshaver: Handelseiendommer 3 AS Org.nr: 998 437 849 Hefter i ideell 1/78 av matrikkelenhet tilhørende: Buvik Kari Hangeland Hefter i ideell 1/39 av matrikkelenhet tilhørende: Bühring-Andersen Birger Hefter i ideell 1/78 av matrikkelenhet tilhørende: Eriksen Siri Øverland Hefter i ideell 1/39 av matrikkelenhet tilhørende: Frey Harald Eika Hefter i ideell 1/39 av matrikkelenhet tilhørende: Gulliksen Tommy Hefter i ideell 1/39 av matrikkelenhet tilhørende: Hannemyr Bjørnar Hefter i ideell 1/39 av matrikkelenhet tilhørende: Hansen-Gaard Hans Sverre Hefter i ideell 1/39 av matrikkelenhet tilhørende: Kjeldset Ola Hefter i ideell 1/78 av matrikkelenhet tilhørende: Kvalsvik Jørgen Haverstad Hefter i ideell 1/39 av matrikkelenhet tilhørende: Leilighetsinvest AS Hefter i ideell 1/39 av matrikkelenhet tilhørende: Mesel Inger Kirstine Hefter i ideell 1/39 av matrikkelenhet tilhørende: Nguyen Leon Nhat Tran Hefter i ideell 1/39 av matrikkelenhet tilhørende: Raabe Sigrid Solbakk Hefter i ideell 1/39 av matrikkelenhet tilhørende: Ranchil Eivind Alexander Hefter i ideell 1/78 av matrikkelenhet tilhørende: Wilsher Thomas Hefter i ideell 1/78 av matrikkelenhet tilhørende: Wilsher Veronika Lervik Hefter i ideell 1/78 av matrikkelenhet tilhørende: Ødegård Johannes Dag Bestemmelse om 2 parkeringsplasser Registrert på feil måte Rettet etter tingl. §18 09.09.2021. Arkivref. 17/57085-22 ---------- Transport Fra: Bunnpris Iladalen AS Org.nr: 993 971 480 Til: Handelseiendommer 3 AS Org.nr: 998 437 849 13.05.2015 - Dokumentnr: 423528 - Bruksrett Rettighetshaver: Knr:0301 Gnr:219 Bnr:5 Hefter i ideell 1/78 av matrikkelenhet tilhørende: Eriksen Siri Øverland Hefter i ideell 1/39 av matrikkelenhet tilhørende: Hansen-Gaard Hans Sverre Hefter i ideell 1/78 av matrikkelenhet tilhørende: Kvalsvik Jørgen Haverstad Hefter i ideell 1/39 av matrikkelenhet tilhørende: Nguyen Leon Nhat Tran Hefter i ideell 1/39 av matrikkelenhet tilhørende: Raabe Sigrid Solbakk Gjelder parkering. 04.08.2015 - Dokumentnr: 705008 - Bruksrett Rettighetshaver: Knr:0301 Gnr:219 Bnr:5 Snr:1 Rettighetshaver: Knr:0301 Gnr:219 Bnr:5 Snr:2 Rettighetshaver: Knr:0301 Gnr:219 Bnr:5 Snr:3 Rettighetshaver: Knr:0301 Gnr:219 Bnr:5 Snr:4 Rettighetshaver: Knr:0301 Gnr:219 Bnr:5 Snr:5 Rettighetshaver: Knr:0301 Gnr:219 Bnr:5 Snr:6 Rettighetshaver: Knr:0301 Gnr:219 Bnr:5 Snr:7 Rettighetshaver: Knr:0301 Gnr:219 Bnr:5 Snr:8 Rettighetshaver: Knr:0301 Gnr:219 Bnr:5 Snr:9 Rettighetshaver: Knr:0301 Gnr:219 Bnr:5 Snr:10 Rettighetshaver: Knr:0301 Gnr:219 Bnr:5 Snr:11 Rettighetshaver: Knr:0301 Gnr:219 Bnr:5 Snr:12 Hefter i ideell 1/78 av matrikkelenhet tilhørende: Eriksen Siri Øverland Hefter i ideell 1/39 av matrikkelenhet tilhørende: Hansen-Gaard Hans Sverre Hefter i ideell 1/78 av matrikkelenhet tilhørende: Kvalsvik Jørgen Haverstad Hefter i ideell 1/39 av matrikkelenhet tilhørende: Nguyen Leon Nhat Tran Hefter i ideell 1/39 av matrikkelenhet tilhørende: Raabe Sigrid Solbakk Gjelder parkering Kan ikke endres eller slettes uten samtykke fra Oslo kommune 21.01.2016 - Dokumentnr: 58535 - Urådighet Rettighetshaver: Sameiet Vøyensvingen 10 Org.nr: 916 221 088 Hefter i ideell 1/78 av matrikkelenhet tilhørende: Eriksen Siri Øverland Hefter i ideell 1/78 av matrikkelenhet tilhørende: Kvalsvik Jørgen Haverstad Kan ikke overdras til andre enn eiere av seksjoner i Sameiet Vøyensvingen 10, gnr. 219 bnr. 5 foruten sammen med gnr. 219 bnr. 5 snr. 7 02.02.2016 - Dokumentnr: 94361 - Urådighet Rettighetshaver: Sameiet Vøyensvingen 10 Org.nr: 916 221 088 Hefter i ideell 1/39 av matrikkelenhet tilhørende: Raabe Sigrid Solbakk Kan ikke overdras til andre enn eierene av seksjoner i Sameiet Vøyensvingen 10, gnr. 219 bnr. 5, foruten sammen med gnr. 219 bnr. 5 snr. 12. 02.02.2016 - Dokumentnr: 94396 - Urådighet Rettighetshaver: Sameiet Vøyensvingen 10 Org.nr: 916 221 088 Hefter i ideell 1/39 av matrikkelenhet tilhørende: Nguyen Leon Nhat Tran Kan ikke overdras til andre enn eiere av seksjoner i Sameiet Vøyensvingen 10, gnr. 219 bnr. 5, foruten sammen med gnr. 219 bnr. 5 snr. 9 04.03.2016 - Dokumentnr: 191237 - Urådighet Rettighetshaver: Sameiet Vøyensvingen 10 Org.nr: 916 221 088 Hefter i ideell 1/39 av matrikkelenhet tilhørende: Hansen-Gaard Hans Sverre Kan ikke overdras til andre enn eiere av seksjoner i Sameiet Vøyensvingen 10, gnr. 219 bnr. 5, foruten sammen med gnr. 219 bnr. 5 snr. 10 22.01.1903 - Dokumentnr: 900509 - Erklæring/avtale Bestemmelse om anlegg og vedlikehold av ledninger m.v. Rettighetshaver Maridalsvn. 62b. Overført fra: Knr:0301 Gnr:219 Bnr:145 Gjelder denne registerenheten med flere 31.07.1920 - Dokumentnr: 901674 - Erklæring/avtale Bestemmelse om trafostasjon/kiosk Med flere bestemmelser Overført fra: Knr:0301 Gnr:219 Bnr:145 Gjelder denne registerenheten med flere 05.10.1920 - Dokumentnr: 901675 - Erklæring/avtale Bestemmelse om trafostasjon/kiosk Med flere bestemmelser Overført fra: Knr:0301 Gnr:219 Bnr:145 Gjelder denne registerenheten med flere 18.09.1923 - Dokumentnr: 993692 - Bestemmelse om gjerde Bestemmelse om benyttelse Med flere bestemmelser Overført fra: Knr:0301 Gnr:219 Bnr:145 Gjelder denne registerenheten med flere 10.12.1962 - Dokumentnr: 519452 - Best om garasje/parkering Midlertidig dispensasjon fra bygningsloven Kan ikke slettes uten samtykke fra bygningsrådet Overført fra: Knr:0301 Gnr:219 Bnr:145 Gjelder denne registerenheten med flere 19.02.1971 - Dokumentnr: 502776 - Bestemmelse om bebyggelse vedr. innredning, vareheis m.v. Kan ikke slettes uten samtykke fra bygningsrådet Overført fra: Knr:0301 Gnr:219 Bnr:145 Gjelder denne registerenheten med flere 24.02.2026 - Dokumentnr: 209948 - Registerenheten kan ikke disponeres over uten samtykke fra rettighetshaver Rettighetshaver: Emera No1 AS Org.nr: 934 963 385 Gjelder denne registerenheten med flere Elektronisk innsendt 14.05.2010 - Dokumentnr: 347550 - Seksjonering Opprettet seksjoner: Snr: 36 Formål: Bolig Sameiebrøk: 49/4513
Legalpant
Kommunen har legalpant som sikkerhet for betaling av kommunale avgifter og eventuell eiendomsskatt. De øvrige seksjonseierne i sameiet har legalpant på inntil 2G som sikkerhet for krav knyttet til sameieforholdet, som felleskostnader. Legalpant er pant som ikke vises i grunnboksutskriften, og har prioritet foran tinglyste lån, for eksempel banklån på seksjonen. Legalpant til kommunen har høyere prioritet enn legalpant til sameiet.
Boligselgerforsikring
Selger har tegnet boligselgerforsikring som dekker selgers ansvar etter avhendingsloven. Boligselgerforsikring for profesjonelle dekker selgers ansvar overfor kjøper, begrenset til boligens salgssum og maksimalt 4 millioner kroner. Da selger er å anse som profesjonell, er ansvaret begrenset oppad til kr. 4 000 000,-. Egenerklæringsskjema er vedlagt salgsoppgaven og interessenter oppfordres til å gjennomgå denne før bud inngis.
Boligkjøperforsikring
Kjøper har anledning til å tegne boligkjøperforsikring. Vedlagt i salgsoppgaven følger informasjon om Boligkjøperforsikring fra Söderberg & Partners. Boligkjøperforsikring er en rettshjelpsforsikring som gir trygghet og profesjonell juridisk hjelp dersom det oppdages uventede feil eller mangler ved boligen de neste fem årene. Les mer om Boligkjøperforsikring i vedlagte materiell eller på https://www.soderbergpartners.no/eiendom/boligkjoper/
Diverse
Det informeres om at ingen kan eie mer enn to boligseksjoner i sameiet, i henhold til eierseksjonsloven § 23. I henhold til eierseksjonsloven § 31 er sameierne ansvarlige overfor sameiets kreditorer i forhold til sin sameiebrøk. Ved manglende betaling av fellesutgifter har sameiet legal panterett i den enkelte eierseksjon, begrenset til inntil 2 ganger folketrygdens grunnbeløp. Kjøper og selger er forpliktet til å signere den standard kjøpekontrakten utarbeidet av Emera som en del av eiendomshandleren. Kjøpekontrakten kan gjennomgås hos eiendomsmegler før budet legges inn. Kontakt eiendomsmegler for eventuelle spørsmål. Selger leverer eiendommen i ryddig og rengjort stand. Foto: Henrik Fjørtoft Sporsheim.
Sentrale lover
Regelverk og generelle opplysninger Boligen selges med det inventar og utstyr som i henhold til gjeldende lover, forskrifter eller offentlige pålegg skal følge med eiendommen, jf. avhendingsloven § 3-4. Fastmonterte eller spesialtilpassede installasjoner og innredning som anses som varig tilknyttet boligen, følger normalt med i handelen, med mindre det foreligger en særskilt avtale mellom partene om noe annet, jf. avhendingsloven § 3-5. En standard tilbehørsliste utarbeidet av Norges Eiendomsmeglerforbund (NEF) følger salgsoppgaven, og gjelder som utgangspunkt for hva som inkluderes i salget – med mindre avvik er tydelig avtalt mellom kjøper og selger. Om informasjonsgrunnlaget Opplysninger om boligens størrelse og utforming, både innvendig og utvendig, bygger på informasjon hentet fra vedlagte tilstands- og boligsalgsrapport. Innholdet i salgsoppgaven er basert på selgers informasjon, fagkyndig vurdering, samt opplysninger fra offentlige registre som kommunen og Kartverket. Det er viktig at kjøper setter seg grundig inn i alle salgsdokumentene, herunder salgsoppgave, tilstandsrapport og selgers egenerklæring. Kjøper anses for å være kjent med forhold som er tydelig beskrevet i salgsdokumentene, slike forhold kan ikke senere gjøres gjeldende som en mangel ved boligen. Dette gjelder uavhengig av om dokumentene er lest. Det kan være forskjell mellom boligens faktiske bruk av rom og det som er godkjent av myndighetene. Alle interessenter anbefales derfor å undersøke eiendommen nøye, gjerne sammen med fagperson, før bud gis. Dersom kjøper velger å kjøpe uten å ha sett eiendommen, kan det ikke etter overtakelse reklameres på forhold som burde ha vært oppdaget ved en ordinær gjennomgang. Dersom det oppstår behov for ytterligere avklaringer, oppfordres interessenter til å kontakte eiendomsmegler eller egne rådgivere før de gir bud. Slitasje og bruk Det må også forventes at eiendommer som har vært i bruk, vil kunne ha tegn til slitasje og eventuelle skader. Slik normal bruksslitasje og behov for vedlikehold må kjøper påregne, og dette vil normalt ikke gi grunnlag for reklamasjon eller prisavslag. Avtalerettslig Partenes rettigheter og plikter reguleres av avtalen mellom partene, og all tilgjengelig dokumentasjon som forelå for kjøper før handelen ble inngått. I tillegg gjelder avhendingsloven. Det gjelder ulike avtalevilkår avhengig av om kjøper er forbrukerkjøper eller ikke, og dette er nærmere forklart nedenfor. Budgivning og selgers vurdering På grunn av ulike ansvarsforhold kan selger velge å prioritere bud fra ikke-forbrukere, selv om budet er lavere enn et forbrukerbud. Når kjøper ikke er forbruker, kan selges ansvar begrenses ettersom boligen selges «som den er», noe som kan være av verdi for selger. Det understrekes at selger står fritt til å velge hvilket bud som aksepteres, og er ikke forpliktet til å velge det høyeste. Alle budgivere må ved inngivelse av bud opplyse om de opptrer som forbruker eller som næringsdrivende/person som handler hovedsakelig som ledd i næringsvirksomhet. Det vil opplyses hvis konkurrerende bud kommer fra en ikke-forbruker. Forbrukerkjøp – definisjon og vilkår: Et forbrukerkjøp foreligger når en fysisk person kjøper eiendom uten at formålet hovedsakelig er knyttet til næringsvirksomhet. En eiendom anses å ha en mangel dersom den ikke oppfyller kravene som følger av avtalen, eller ved brudd på bestemmelser i avhendingsloven §§ 3-2 til 3-8. Det samme gjelder hvis eiendommen ikke samsvarer med det som med rimelighet kunne forventes ut fra blant annet alder, type og synlig tilstand – eller hvis det er tilbakeholdt, eller gitt feilaktige opplysninger, og dette har påvirket avtalen. Dersom det er avvik mellom oppgitt og faktisk innvendig areal på minst 2 % og samtidig minst 1 kvadratmeter, kan dette utløse rett til kompensasjon etter § 3-3 i avhendingsloven. Ved beregning av krav om prisavslag eller erstatning må kjøper selv dekke kostnader med inntil kr 10 000 (som en egenandel). Ikke-forbruker – definisjon og vilkår: Dersom kjøper er en juridisk enhet, eller en fysisk person som handler i næringssammenheng, regnes kjøpet ikke som et forbrukerkjøp. Ved slike kjøp selges eiendommen «som den er», og selgers ansvar er begrenset til det som følger direkte av avtalen, jf. avhendingsloven § 3-9. I disse tilfellene fravikes § 3-3 andre ledd, og eventuelle arealavvik vurderes etter § 3-8. Kjøperens plikt til å foreta grundige undersøkelser gjelder også fullt ut for kjøpere som ikke omfattes av forbrukerdefinisjonen.
Betalingsbetingelser
Hele oppgjøret må betales samlet fra en norsk bankkonto. Overføringer fra utlandet aksepteres kun unntaksvis, og kun dersom dette er forhåndsavtalt med megler i forbindelse med aksept av budet.
Viktig informasjon om budgivning
Bud kan legges inn på nettannonsen på "gi bud" knappen eller via hjemmesiden. Ved elektronisk budgivning kan bud legges inn trygt og enkelt med bank-ID. Eiendomsmegler kan også kontaktes for tilsendelse av budkjema, og budskjema finnes også i salgsoppgaven. Alle bud skal inngi skriftlig til eiendomsmegler. Kravet til skriftlighet gjelder også ved forhøyelse av bud, motbud og selgers aksept eller avslag. Før et bud kan formidles til selger må megler innhente gyldig legitimasjon og signatur fra budgiver. Kravet til legitimasjon og signatur er oppfylt dersom budgiver bruker e-signatur som f eks. bankID. Etter det første budet er inngitt, kan budgiver inngi bud pr e-post eller pr SMS til megler. Hvis budgiver skal by på eiendommen i henhold til en kjøpsfullmakt må megler kontaktes og fullmakten oversendes før budgivning. Et bud bør inneholde eiendommens adresse (eventuelt gnr/bnr), kjøpesum, budgivers kontaktinformasjon, finansieringsplan, akseptfrist, overtakelsesdato og eventuelle forbehold som for eksempel usikker finansiering, salg av nåværende bolig ol. Normalt vil ikke et bud med forbehold bli akseptert før forbeholdet er avklart. Konferer gjerne med megler før bud avgis. Bud som har forbehold om konfidensialitet ("hemmelige bud") vil ikke bli formidlet til selger. Alle interessenter oppfordres til å inngi bud via eiendomsmegler. Megler skal legge til rette for en forsvarlig avvikling av budrunden. I forbrukerforhold (dvs. der selger er forbruker) skal megleren ikke formidle bud med kortere akseptfrist enn til kl. 12.00 første virkedag etter siste annonserte visning. Senere bud må ha en akseptfrist som er lang nok til at budet og eventuelle forbehold kan videreformidles til alle involverte parter slik at disse får tid til å områ seg, jf. forskrift om eiendomsmegling § 6-3. Akseptfrist bør derfor være på minimum 30 minutter, og budforhøyelser bør skje senest 10 minutter før fristens utløp. Dersom bud inngis med en frist som åpenbart er for kort til at megleren kan avvikle budrunden på en forsvarlig måte, vil megler fraråde budet. Eiendomsmegler skal så snart som mulig bekrefte skriftlig overfor budgivere at budene deres er mottatt, og vil uoppfordret gi sin vurdering av det enkelte bud overfor selgeren. Etter at handel har kommet i stand, eller dersom en budrunde avsluttes uten at handel er kommet i stand, kan en budgiver kreve kopi av budjournalen i anonymisert form. Kopi av budjournal gis til kjøper og selger uten ugrunnet opphold etter at handel er kommet i stand. Hvis budgiver ønsker å være anonym, kan bud fremmes via en fullmektig. For mer informasjon om budgivningsprosessen, se «Forbrukerinformasjon om budgivning», som er vedlagt salgsoppgaven, eller ta kontakt med megler.
Vederlag megler
Provisjon ved salg til prisantydning: kr 44 251,18 Fakturagebyr per stk. kr 1500,00 Grunnpakke bolig info** kr 14 300,00 Markedspakke inkl. stor annonse på FINN.no, Emera digital mm kr 24 850,00 Oppgjørshonorar inkl. factoring kr 9 900,00 Tilretteleggingshonorar kr 6 500,00 Visnings-/overtagelseshonorar pr. stk. kr. 2.500,00 Rabatt: 2 første visninger inkludert kostnadsfritt. Eierskiftegebyr kr 6 725,00 Utlegg: Selger dekker utlegg i henhold til oppdragsavtalen. Disse er estimert til ca. kr 20 725,00, og omfatter vanligvis innhenting av informasjon fra kommunen, eventuell forretningsfører, samt kopi av tinglyste dokumenter. Total kostnad ved salg til prisantydning: kr 123 026,18 Dette inkluderer både vederlag og stipulerte utlegg. Ved avbrutt oppdrag: Dersom oppdraget sies opp eller utløper uten at salget gjennomføres, har megler krav på rimelig vederlag for medgått tid og for utført arbeid. Dette omfatter blant annet vederlag knyttet til tilrettelegging, markedsføring og eventuelle avholdte visninger, samt påløpte utlegg. Timepris ved slik beregning er kr 3500.
Hvitvasking
Eiendomsmeglere er underlagt lov om hvitvasking, og er blant annet forpliktet til å gjennomføre kundetiltak av både selger og kjøper. Hvis kjøper ikke bidrar til at megler får gjennomført kundetiltak og dette fører til at avtalen ikke kan gjennomføres eller blir forsinket, er dette et mislighold fra kjøpers side. Et vesentlig mislighold kan gi selger rett til å heve avtalen og til å gjennomføre dekningssalg for kjøpers regning. Dersom selger ikke bidrar til at megler får gjennomført løpende kundetiltak underveis i oppdraget, må eiendomsmegler stanse gjennomføringen av transaksjonen. Selger vil i et slikt tilfelle ha misligholdt sine forpliktelser, og kjøper vil kunne ha et krav mot selger etter avhendingsloven. Hvis kundetiltak ikke lar seg gjennomføre, vil Emera eiendomsmegling ikke kunne bistå med handelen eller foreta oppgjør.
Personopplysningsloven
Personopplysninger blir behandlet i samsvar med personopplysningsloven. Se www.emera.no for vår personvernerklæring.
Oppdragsnummer
01260025
Status salgsoppgave
Salgsoppgave sist endret: 15. april 2026
Megler
Ansvarlig megler
Francis Johansson-Merrick
Megler
Silje Hoel Nygård
Meglerforetaket
Emera No1 AS Org.nr: 934963385
Samarbeidspartnere og tilknyttede foretak
Emera Norge AS og eiendomsmeglingsforetakene som er tilknyttet Emera har samarbeid med forskjellige foretak som tilbyr forbrukerne produkter eller tjenester i forbindelse med et salgsoppdrag. Våre samarbeidspartene er:
Søderberg & Partners AS - formidler av boligselger- og boligkjøperforsikring Overo AS - leverandør av digitale oppgjørsskjemaer og overtakelsesprotokoller som også inneholder tilbud til forbruker om tilpassede strøm-, internett- og alarmtjenester.
Hvilke produkter/tjenester kjøper og selger får i forbindelse med oppdraget, kan variere ut fra hvor i landet eiendommen ligger.
Egenerklæring boligselgerforsikring
Energiattest
Salgsoppgavevedlegg
Salgsoppgave
Boligkjøperforsikring
Når du kjøper bolig, er det viktig å sikre seg mot uforutsette utgifter. Söderberg & Partners og Emera Eiendomsmegling hjelper deg med å skape trygghet i boligkjøpet.
Fritt meglervalg
Valg av megler skal være frivillig. Megler kan ikke inngå oppdrag om eiendomsmegling dersom inngåelsen av oppdraget er satt som vilkår i avtale om annet enn eiendomsmegling, for eksempel tilbud om lån eller andre banktjenester, jf. eiendomsmeglingsloven § 6-3 (3).