





















LILLESTRØM SENTRUM
Adolph Tidemands gate 29A
49 m2
|
3 990 000 kr
|
1 soverom
|
Andelsleilighet
|
Perfekt førstegangskjøp! Sentral 2-roms i 3.etg med garasjeplass og heis - Lave fellesutgifter - Felles takterrasse
Pris og areal
Prisantydning
3 990 000 ,-
Omkostninger
18 796 ,-
totalpris
4 008 796 ,-
felleskostnader
3 344 ,- per mnd
fellesformue
42 722 ,-
bruksareal
53 m2
internt bruksareal
49 m2
eksternt bruksareal
4 m2
Kort fortalt
Emera Eiendomsmegling ved Eirik Blix har gleden av å ønske velkommen til Adolph Tidemands gate 29A! Dette er en lys og romslig 2-roms leilighet med svært sentral beliggenhet i Lillestrøm. Fra leiligheten har man umiddelbar nærhet til samtlige sentrumsfasiliteter, samt kort vei til offentlig kommunikasjon og flotte friluftsområder. Leiligheten er beliggende i 3.etasje og har adkomst fra svalgang. Bygget er fra 2007 og leiligheten holder en normal god standard. Leiligheten byr på en åpen stue/kjøkkenløsning med plass til både sofagruppe og spisebord, samt koselig uteplass ved inngangspartiet. Videre finner man et flislagt bad med gulvvarme og ett romslig soverom med garderobeløsning. Det er lagringsplass i disponibel kjellerbod og garasjeplass medfølger. Velkommen til visning!
Nøkkelinfo
Boligtype
Andelsleilighet
Eierform
Andel
Antall soverom
1
antall bad
1
etasje
3
byggeår
2007
energimerking
C
tomteareal
891.4 m2 (eiet)
heis
Ja
garasje
Ja
Objektbeskrivelse
Tomten
Tomtestørrelse: 891.4 m2 (eiet)
Byggeår
2007
Etasje
3
Arealer
BRA-i: 49m2
BRA-e: 4m2
Totalt BRA: 53m2
Arealbeskrivelse
Kjeller
BRA-E: 4 m² Bod
3. etasje
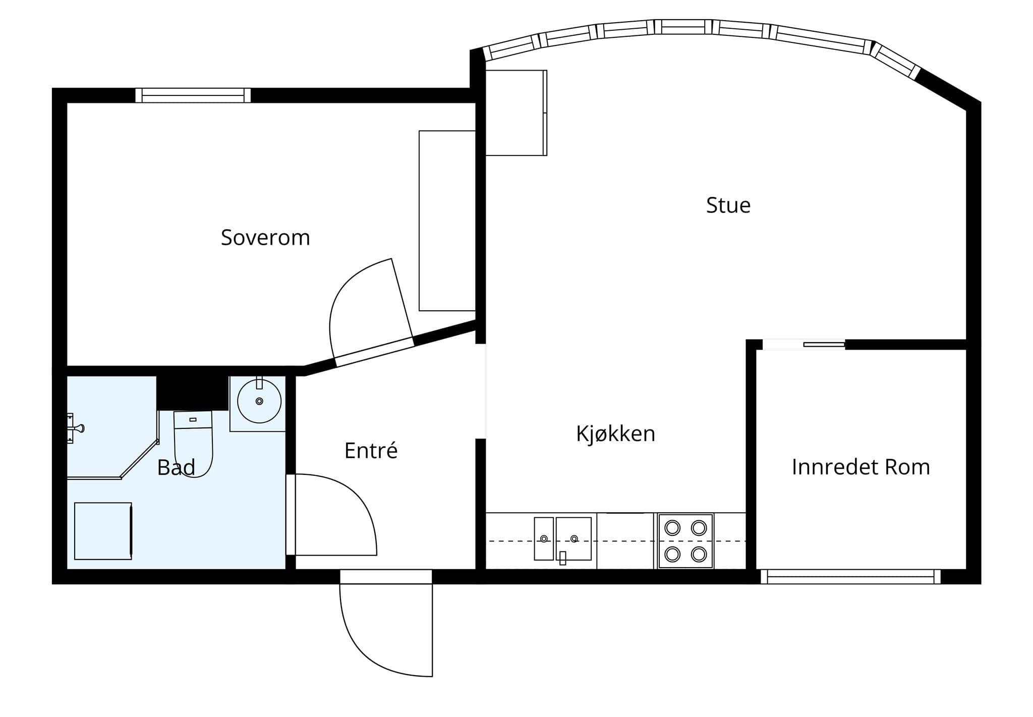
BRA-I: 49 m² Entré, bad, soverom, innredet rom, stue, kjøkken
Bygningssakkyndiges kommentar til arealoppmåling
Oppmålingen er fysisk utført med en håndholdt avstandsmåler som har nøyaktighet på +/- 1 mm. Rommene betegnes slik de fremstår og blir benyttet som under befaringen, selv om de i enkelte tilfeller kan avvike fra godkjente byggetegninger og gjeldende byggeregler. Angivelsen av rom for varig opphold i rapporten innebærer ikke nødvendigvis at rommet er, eller kan bli, godkjent for varig opphold i samsvar med dagens forskriftskrav. Arealmålingen er ikke kontrollert opp mot godkjente plantegninger. Det foreligger godkjente og byggemeldte tegninger, men de stemmer ikke med dagens bruk Kommentar: Det er bygd et ekstra rom i opprinnelig stue og kjøkken. Rommet har et vindu, men dette er et brannvindu som ikke kan åpnes. Det er derfor ikke et godkjent rømningsvindu. Rommet er derfor ikke godkjent til bruk som rom for varig opphold.
Antall soverom
1
Antall rom
2
Innhold
3.etasje: Entré, bad, soverom, innredet rom, stue, kjøkken Annet: Kjellerbod
Standard
Entré: Velkommen inn! Leiligheten har adkomst fra svalgang hvor det er plass til et caféset. Vel inne har man en lysmalt entré med garderobeskap. Det er montert dør-calling og leilighetens sikringsskap er plassert her. Stue og kjøkken: Stue og kjøkken er i åpen løsning. Stuen byr på flere møbleringsmuligheter med god plass til sofagruppe og tilhørende mediemøblement. Kjøkkeninnredningen har lyse, slette fronter og benkeplate i laminat. Det er avsatt plass til frittstående hvitevarer. Bad Flislagt baderom med gulvvarme. Badet er innredet med servant på skuffeseksjon, gulvstående klosett, dusj samt opplegg for vaskemaskin. Badet har adkomst fra entré. Soverom og lagring: Leiligheten har et lysmalt soverom med plass til dobbeltseng og tilhørende møblement. Soverommet har garderobeskap. I stuen er det etablert et innredet rom som ikke oppfyller kravene til varig opphold grunnet brannvindu som ikke kan åpnes. Leiligheten disponerer leiligheten én bod på i kjeller (ca. 4 m²).
Innbo og løsøre
Salgsoppgaven inkluderer NEFs standardliste "Oversikt over løsøre og tilbehør", som legges til grunn med mindre annet er spesifisert i salgsoppgaven. Gjenstander som er nevnt i standardlisten, men som ikke finnes på eiendommen, vil heller ikke følge med i salget. Alt utstyr og installasjoner som medfølger overtas slik de er, uten garanti, med mindre det foreligger en gjeldende garanti fra produsent eller leverandør. Kjøper aksepterer at det kan forekomme hull og merker etter montering av inventar og utstyr som ikke er en del av overdragelsen.
Parkering
Leiligheten har bruksrett til parkeringsplass nr. 306, som ligger på borettslagets fellesareal. Bruksretten er regulert gjennom borettslagets vedtekter. Det presiseres at borettslaget senere kan vedta endringer i organiseringen av parkeringsplassene.
Sammendrag av selgers egenerklæring
Selgers egenerklæringsskjema følger vedlagt salgsoppgaven. Interessenter oppfordres til å gjennomgå dette nøye. Følgende opplysninger er spesielt viktig å merke seg: Kjenner du til om det er/har vært feil tilknyttet våtrommene, f.eks. sprekker, lekkasje, råte, lukt eller soppskader? - Ja. Lekkasje på kjøkkenet i 2025, og fikset av fagperson. Kjenner du til om det er utført kontroll av el-anlegget og/eller andre installasjoner (f.eks. oljetank, sentralfyr, ventilasjon)? - Ja. Kontrollert av ventilasjon i 2025.
Bygningssakkyndig
Joachim Andre Mæhlum Kirkerud
Byggemåte
Boligblokk med bærende konstruksjoner, etasjeskillere og leilighetsskillende vegger i betong/mur, flat takkonstruksjon antatt tekket med. Yttertak er ikke besiktiget. Det er bindingsverk i mellomliggende fasadefelter. Yttervegger over grunnmur som utvendig har pussede flater. I forbindelse med salget er det blitt utført en tilstandsrapport av en kvalifisert bygningssakkyndig. Rapporten gir en grundig vurdering av boligens tilstand og påpeker eventuelle avvik som ble oppdaget under befaringen. Tilstandsrapporten og selgers egenerklæring er vedlagt salgsoppgaven, og det er viktig at interessenter setter seg grundig inn i disse dokumentene før bud legges inn. Kjøper anses kjent med opplysninger som kommer tydelig frem i tilstandsrapporten, og det vil ikke være mulig å gjøre slike forhold gjeldende som en mangel. Spesielt forhold som er vurdert med TG2 og TG3 bør vurderes nøye, da de indikerer avvik fra normal slitasje og/eller høy alder, noe som kan innebære behov for utbedringer. Bygningsdeler som er merket med TGIU er ikke blitt vurdert av takstmannen. Beskrivelsen av boligen nedenfor er hentet direkte fra tilstandsrapporten: LIM INN BYGGEMÅTE FRA TILSTANDSRAPPORT Bygningsdeler vurdert med TG2: - Tekniske installasjoner > Vannledninger Kursene for rør-i-rør er ikke merket. Rørene skal være enkle å skifte ut, og bør derfor merkes. Fordelerstokken er plassert over baderomshimlingen uten vanntett skap. Hvis en lekkasje skulle oppstått på rørene kan denne være vanskelig å oppdage, og tilstøtende konstruksjoner risikerer vannskader. - Våtrom > 3. Etasje > Bad > Overflater vegger og himling Konstruksjonen har passert halvparten av forventet levetid og har bruksslitasje. Alder og bruksslitasje kan øke behov for vedlikehold og tiltak. - Våtrom > 3. Etasje > Bad > Overflater Gulv Konstruksjonen har passert halvparten av forventet levetid og har bruksslitasje. Alder og bruksslitasje kan øke behov for vedlikehold og tiltak. Høydeforskjell mellom topp slukrist og overkant gulv ved døren er lavere enn 25 mm (måles til ca. 23mm). Dette gjør at nærliggende konstruksjoner er mer utsatt for vannskade, hvis en lekkasje skulle oppstått. - Våtrom > 3. Etasje > Bad > Sluk, membran og tettesjikt Membranen har oppnådd en alder hvor fremtidig funksjon er mer usikker. Når tettesjikt blir eldre, kan elastisitet og tetthet gradvis reduseres. Dette gir økt risiko for utettheter over tid. Jevnlig tilsyn anbefales, og oppgradering må påregnes på sikt. - Våtrom > 3. Etasje > Bad > Sanitærutstyr og innredning Det er registrert svelling i baderomsinnredningen. Slike skader oppstår ofte som følge av fuktpåvirkning over tid, for eksempel fra vannsøl eller høy luftfuktighet. Forholdet påvirker hovedsakelig utseende og holdbarhet, og utskifting av skadet del kan bli nødvendig. Bygningsdeler vurdert med TG3: -INGEN. Bygningsdeler som ikke har blitt undersøkt (TGIU): - HMS (forhold av betydning for Helse, miljø og sikkerhet): -
Omkostninger
3 990 000,00 (Prisantydning) Omkostninger 9 300 (Boligkjøperforsikring* (valgfritt)) 8 406 (Forhåndsvarsling forkjøpsrett) 545 (Tinglysingsgebyr - hjemmel) 545 (Tinglysningsgebyr - pantedokument) -------------------------------------------------------- 9 496 (Omkostninger totalt (uten Boligkjøperforsikring)) 18 796 (Omkostninger totalt (med Boligkjøperforsikring)) -------------------------------------------------------- 3 999 496 (Totalpris inkl. omkostninger (uten Boligkjøperforsikring)) 4 008 796 (Totalpris inkl. omkostninger (med Boligkjøperforsikring)) --------------------------------------------------------
Felleskostnader
3 344,- per mnd
Felleskostnadene inkluderer bl.a. bygningsforsikring, grunnpakke kabel-tv, vedlikehold, forretningsførsel og revisjon. Felleskostnadene skal økes med 12% fra 01.10.2026
Kommunale avgifter
Kommunale avgifter faktureres borettslaget og er dekket gjennom de månedlige felleskostnadene.
Fellesformue
42 722,-
Fellesgjeld
DNB BANK ASA 5,49% rente 4 terminer pr. år Løpetid 18.02.08-30.03.38 Restgjeld pr. 31.03.2026: 5 347 522,- Annuitetslån (IN) Andelen har innfridd sin andel av lånet og det er dermed ingen fellesgjeld.
Sikringsordning fellesgjeld
Borettslaget er tilknyttet en sikringsordning for fellesutgifter gjennom Skadeforsikringsselskapet Borettslagenes Sikringsordning AS.
Formuesverdi
Formuesverdi primær: 954 035 pr. 2024
Formuesverdi sekundær: 3 816 140 pr. 2024
Skatteetaten beregner en boligverdi (beregnet markedsverdi for bolig) basert på SSBs statistiske opplysninger om omsatte boliger. I beregningen tas det hensyn til boligens beliggenhet, areal, byggeår og type bolig. Stortinget har vedtatt en ny modell for beregning som skal benyttes fra og med inntektesåret 2026, og den nye modellen henter informasjon om omsatte boliger fra grunnkretser i stedet for kommuner. Formuesverdien er en prosentandel av den beregnede boligverdien. Den nye utregningsmodellen kan medføre en høyere eller lavere markedsverdien enn tidligere. Det tas derfor forbehold om at formuesverdien kan bli endret og eventuelt øke ved endelig fastsettelse i skatteåret. For mer informasjon om formuesverdi, se Skatteetatens nettsider.
Beliggenhet
Leiligheten ligger sentralt plassert midt i Lillestrøm - her har man alt av bymessige fasiliteter og servicetilbud man måtte ønske like utenfor døren! Det er kun å ta heisen ned i 1. etasje så har man Odeon kino, Meny, Dominos pizza, Chi Restaurant, samt en rekke butikker og serveringssteder i umiddelbar nærhet. Fra leiligheten er det kort gangavstand til Åråsen og Lillestrøm stadion hvor det er turløyper, skiløyper mot Asak/Jølsen på vinterstid, ridesenter (Sørum gård), idrettshall, treningsanlegg for golf og idrettsanlegg. Eiendommen har nærhet til tur- og rekreasjonsområder ved Øyeren og rundt Nitelva, samt badeanlegg på Nebbursvollen. Dette gir gode rekreasjonsmuligheter både sommer og vinter. Syklistenes Landsforeningen har kåret Lillestrøm til landets beste sykkelby to år på rad. Eiendommen har nærhet til et godt utvalg av daglige servicetilbud. Dagligvarehandelen kan gjøres ved bl.a. Meny Lillestrøm (50 m) og Kiwi Lillestrøm (400 m). Coop Obs Hypermarked er også et populært handlested i kommunen med stor dagligvare, sport, tekstil, kjøkken/hjem, leker, småelektrisk og byggevarer. Ønsker du ytterligere servicetilbud har Lillestrøm Torv kjøpesenter (100 m), samt de øvrige handlegatene i Lillestrøm sentrum har et rikt og variert utvalg. Her finner du bl.a. butikker, post, bank, apotek, vinmonopol, kafeer, barer, restauranter, helsetilbud, kino, kulturhus, etc. Det er også kort vei til Strømmen Storsenter, landets mest innholdsrike kjøpesenter med over 200 butikker og tilknyttede virksomheter. I Lørenskog finner du både Metro- og Triaden kjøpesenter. OsloMet - storbyuniversitet ligger kun 2,3 km unna. Området gir mulighet for offentlig kommunikasjon via buss. Nærmeste holdeplasser er Stortorget og ligger ca. 100 meter fra leiligheten. Hurtigtog/flytog fra Lillestrøm stasjon (700 m) til Oslo S/Oslo Lufthavn har en reisetid på ca. 12 min.
Adkomst
På høyre side i annonsen finner du et kartutsnitt. Ved å klikke på kartet kan du enkelt planlegge din rute fra valgt startpunkt og helt frem til boligen. Det vil være skiltet ved fellesvisninger for enkel orientering.
Bebyggelse
Hovedsakelig leilighetsbebyggelse og næring.
Energiklasse
C
Info strømforbruk
Nåværende eier har tegnet avtale om Norgespris på strøm, og avtalen har bindingstid til 31.12.2026. Avtalen følger boligen, og må derfor overtas av kjøper. Norgespris er en ny, statlig ordning, som gir en forutsigbar og fast strømpris på 50 øre per kWh med mva (40 øre uten mva)gjennom året. Norgespris har et forbrukstak på 5 000 kWh per måned for husholdninger og 1 000 kWh for hytter. Når det er tegnet avtale om Norgespris bortfaller eventuell strømstøtte. Som boligeier må du fortsatt ha en strømavtale med en strømleverandør. Du kan lese mer om Norgespris blant annet her: https://www.regjeringen.no/no/tema/energi/strom/sporsmal-og-svar-om-norgespris
Oppvarming
Elektriske panelovner. Gulvvarme bad.
Om borettslaget
Teatergata 22 Borettslag
Teatergt. 22 Borettslag ble stiftet 06.11.2003, og har organisasjonsnummer 986 257 535. Borettslaget består av 35 boligseksjoner, fordelt på 1 bygning med adresse Adolph Tidemandsgt.29A Eiendommen har gnr 81, bnr 172 i Lillestrøm kommune. Forretningsfører er BORI BBL. Boligselskapet er tilknyttet BORI BBL og alle eiere må være medlem av BORI BBL Revisor er statsautorisert revisor SLM Revisjon AS, Lillestrøm. Siden forrige ordinære generalforsamling har styret avholdt 11 møter og behandlet saker som: • Godkjenning av nye eiere • Godkjenning av nye leietagere og bruksoverlating • Budsjettering • Vurdering av regulering av felleskostnader • Internkontroll og oppdatering av HMS-plan (Helse, Miljø og Sikkerhet) • Løpende vedlikehold • Beboerkontakt - løpende Av andre saker kan nevnes: • Styreleder ble valgt som styreleder også i Sameiestyret • Oppgradering garasjeport • Utskifting av lysstoffrør til LED • Håndtering av 3 innbrudd • Oppgradering av inngangsdør • Løpende gjennomgang av kontrakter • Vedlikeholdsarbeid av diverse skader • Dugnad Mai 2024 • Beboersaker • Løpende info til beboere på FB, oppslagstavle, i heisen o.l. Styret er ikke i en rettslig tvist som kan medføre økonomisk ansvar for borettslaget.
Forretningsfører
Bori Bbl
Styregodkjennelse
Kjøper må godkjennes av borettslagets styre. Styret kan kun nekte godkjenning dersom det foreligger saklig grunnlag, jf. borettslagsloven § 4-4.
Forkjøpsrett
Andelseiere i borettslaget og medlemmer av boligbyggelaget har forkjøpsrett. Avklaring av forkjøpsrett skjer parallelt med salget.
Forsikringsselskap og polisenummer felles forsikring
Storebrand
5963268
Vedtekter / husordensregler
Borettslagets vedtekter og husordensregler følger vedlagt i salgsoppgaven.
Husdyrhold
Dyrehold er tillatt. Dyrehold skal ikke være til sjenanse for andre beboere. Hunder skal luftes i bånd – dog ikke av barn under 10 år. Hunder og katter skal luftes under tilsyn – dog ikke av barn under 10 år. Kommer en seg ikke fort nok ut med dyrene så må dyreeksskrementer fjernes øyeblikkelig og det må vaskes ordenlig. Vi forventer at all lufting av dyr foregår på dertil egnede steder utenfor boligblokken.
Adgang til utleie
Det er begrenset adgang til å leie ut bolig i borettslag. Med styrets godkjenning og under visse vilkår kan boligen leies ut i inntil 3 år, jf. borettslagsloven § 5-3 til § 5-10. Andelseier som selv bor i boligen, har imidlertid rett til å leie ut deler av boligen til andre uten styregodkjenning, jf. borettslagsloven § 5-4. Korttidsutleie er tillatt i opptil 30 døgn per år uten samtykke fra styret.
Ferdigattest / brukstillatelse
Det foreligger ferdigattest for eiendommen, datert 07.04.2011. Ferdigattest utstedes av bygningsmyndighetene basert på dokumentasjon mottatt fra kontrollansvarlig når et søknadspliktig tiltak er utført i samsvar med tillatelsen og øvrige krav etter plan- og bygningslovgivningen. Det er viktig å merke seg at selv om ferdigattest foreligger, gir det ingen garanti for at bygget er oppført i henhold til tillatelsen og gjeldende regelverk, eller at det senere er utført arbeid på bygget som ikke er byggemeldt eller godkjent. Det foreligger ferdigattest for installasjon av brannalarm i Adolph Tiedemands gate 29A datert 06.12.2018. Det foreligger godkjente og byggemeldte tegninger, men de stemmer ikke med dagens bruk. Det er bygd et ekstra rom i opprinnelig stue og kjøkken. Rommet har et vindu, men dette er et brannvindu som ikke kan åpnes. Det er derfor ikke et godkjent rømningsvindu. Rommet er derfor ikke godkjent til bruk som rom for varig opphold.
Vei, vann og avløp
Eiendommen er tilknyttet offentlig vann- og avløpssystem. Stikkledningene fra eiendommen og ut til det kommunale nettet er private, og vedlikeholdsansvaret for disse påhviler sameiet. Adkomst til eiendommen skjer via offentlig vei.
Regulerings- og arealplaner
Eiendommen er regulert til kombinert arealformål forretning og bolig innenfor felt Kvartal 17, i henhold til områderegulering for Lillestrøm Øst, vedtatt 09.12.2015. Eiendommen omfattes av kommuneplanen, hvor arealet er avsatt til sentrumsformål. Eiendommen berøres av hensynssone H320 (Flomfare). Bestemmelsene for sonen krever at tiltak i kjellernivå etableres slik at de tåler å bli satt under vann, og at elektriske/ tekniske installasjoner anlegges flomsikkert. Området er under utvikling og det må påberegnes byggeutvikling. På nabotomten bygges prosjektet "Timbre".
Tinglyste heftelser og rettigheter
På eiendommen er det tinglyst følgende heftelser og rettigheter som følger eiendommens matrikkel ved overskjøting til ny hjemmelshaver: 3205/81/172/4: 15.06.1939 - Dokumentnr: 102109 - Bestemmelse om bebyggelse Overført fra: Knr:3205 Gnr:81 Bnr:172 Gjelder denne registerenheten med flere 12.12.1944 - Dokumentnr: 103129 - Bestemmelse om vannledn. Vegvesenets betingelser vedtatt Overført fra: Knr:3205 Gnr:81 Bnr:172 Gjelder denne registerenheten med flere
Legalpant
Borettslaget har legalpant på inntil 2G som sikkerhet for betaling av felleskostnader. Dette betyr at borettslaget har prioritet over tinglyste lån når det gjelder betaling av felleskostnader, og kan kreve inn pengene før andre kreditorer, selv om de har lån registrert på andelen.
Boligselgerforsikring
Selger har tegnet boligselgerforsikring som dekker selgers ansvar etter avhendingsloven begrenset oppad kr. 20 000 000,-. Egenerklæringsskjema er vedlagt salgsoppgaven og interessenter oppfordres til å gjennomgå denne før bud inngis.
Boligkjøperforsikring
Kjøper har anledning til å tegne boligkjøperforsikring. Vedlagt i salgsoppgaven følger informasjon om Boligkjøperforsikring fra Söderberg & Partners. Boligkjøperforsikring er en rettshjelpsforsikring som gir trygghet og profesjonell juridisk hjelp dersom det oppdages uventede feil eller mangler ved boligen de neste fem årene. Les mer om Boligkjøperforsikring i vedlagte materiell eller på https://www.soderbergpartners.no/eiendom/boligkjoper/
Diverse
Borettslagsmodellen innebærer at borettslaget eier eiendommen, mens andelseierne eier andeler i borettslaget, som gir borett til en bestemt bolig. Andelseierne har ikke personlig ansvar for borettslagets fellesgjeld, men de må dekke borettslagets løpende utgifter. Manglende innbetaling av fellesutgiftene som følge av andre andelshaveres mislighold, eller dersom borettslaget sitter på fraflyttede og/eller usolgte andeler, må dekkes av de øvrige andelseierne. Borettslaget har legalpanterett i andelen for krav på dekning av felleskostnader og andre krav fra borettslaget, på inntil 2 ganger folketrygdens grunnbeløp. Kjøper og selger er forpliktet til å undertegne standard kjøpekontrakt utarbeidet av Emera i forbindelse med eiendomstransaksjonen. Kjøpekontrakten kan besiktiges hos eiendomsmegler før bud inngis. Kontakt eiendomsmegler for spørsmål. Selger leverer eiendommen i ryddig og rengjort stand.
Sentrale lover
Regelverk og generelle opplysninger Boligen selges med det inventar og utstyr som i henhold til gjeldende lover, forskrifter eller offentlige pålegg skal følge med eiendommen, jf. avhendingsloven § 3-4. Fastmonterte eller spesialtilpassede installasjoner og innredning som anses som varig tilknyttet boligen, følger normalt med i handelen, med mindre det foreligger en særskilt avtale mellom partene om noe annet, jf. avhendingsloven § 3-5. En standard tilbehørsliste utarbeidet av Norges Eiendomsmeglerforbund (NEF) følger salgsoppgaven, og gjelder som utgangspunkt for hva som inkluderes i salget – med mindre avvik er tydelig avtalt mellom kjøper og selger. Om informasjonsgrunnlaget Opplysninger om boligens størrelse og utforming, både innvendig og utvendig, bygger på informasjon hentet fra vedlagte tilstands- og boligsalgsrapport. Innholdet i salgsoppgaven er basert på selgers informasjon, fagkyndig vurdering, samt opplysninger fra offentlige registre som kommunen og Kartverket. Det er viktig at kjøper setter seg grundig inn i alle salgsdokumentene, herunder salgsoppgave, tilstandsrapport og selgers egenerklæring. Kjøper anses for å være kjent med forhold som er tydelig beskrevet i salgsdokumentene, slike forhold kan ikke senere gjøres gjeldende som en mangel ved boligen. Dette gjelder uavhengig av om dokumentene er lest. Det kan være forskjell mellom boligens faktiske bruk av rom og det som er godkjent av myndighetene. Alle interessenter anbefales derfor å undersøke eiendommen nøye, gjerne sammen med fagperson, før bud gis. Dersom kjøper velger å kjøpe uten å ha sett eiendommen, kan det ikke etter overtakelse reklameres på forhold som burde ha vært oppdaget ved en ordinær gjennomgang. Dersom det oppstår behov for ytterligere avklaringer, oppfordres interessenter til å kontakte eiendomsmegler eller egne rådgivere før de gir bud. Slitasje og bruk Det må også forventes at eiendommer som har vært i bruk, vil kunne ha tegn til slitasje og eventuelle skader. Slik normal bruksslitasje og behov for vedlikehold må kjøper påregne, og dette vil normalt ikke gi grunnlag for reklamasjon eller prisavslag. Avtalerettslig Partenes rettigheter og plikter reguleres av avtalen mellom partene, og all tilgjengelig dokumentasjon som forelå for kjøper før handelen ble inngått. I tillegg gjelder avhendingsloven. Det gjelder ulike avtalevilkår avhengig av om kjøper er forbrukerkjøper eller ikke, og dette er nærmere forklart nedenfor. Budgivning og selgers vurdering På grunn av ulike ansvarsforhold kan selger velge å prioritere bud fra ikke-forbrukere, selv om budet er lavere enn et forbrukerbud. Når kjøper ikke er forbruker, kan selges ansvar begrenses ettersom boligen selges «som den er», noe som kan være av verdi for selger. Det understrekes at selger står fritt til å velge hvilket bud som aksepteres, og er ikke forpliktet til å velge det høyeste. Alle budgivere må ved inngivelse av bud opplyse om de opptrer som forbruker eller som næringsdrivende/person som handler hovedsakelig som ledd i næringsvirksomhet. Det vil opplyses hvis konkurrerende bud kommer fra en ikke-forbruker. Forbrukerkjøp – definisjon og vilkår: Et forbrukerkjøp foreligger når en fysisk person kjøper eiendom uten at formålet hovedsakelig er knyttet til næringsvirksomhet. En eiendom anses å ha en mangel dersom den ikke oppfyller kravene som følger av avtalen, eller ved brudd på bestemmelser i avhendingsloven §§ 3-2 til 3-8. Det samme gjelder hvis eiendommen ikke samsvarer med det som med rimelighet kunne forventes ut fra blant annet alder, type og synlig tilstand – eller hvis det er tilbakeholdt, eller gitt feilaktige opplysninger, og dette har påvirket avtalen. Dersom det er avvik mellom oppgitt og faktisk innvendig areal på minst 2 % og samtidig minst 1 kvadratmeter, kan dette utløse rett til kompensasjon etter § 3-3 i avhendingsloven. Ved beregning av krav om prisavslag eller erstatning må kjøper selv dekke kostnader med inntil kr 10 000 (som en egenandel). Ikke-forbruker – definisjon og vilkår: Dersom kjøper er en juridisk enhet, eller en fysisk person som handler i næringssammenheng, regnes kjøpet ikke som et forbrukerkjøp. Ved slike kjøp selges eiendommen «som den er», og selgers ansvar er begrenset til det som følger direkte av avtalen, jf. avhendingsloven § 3-9. I disse tilfellene fravikes § 3-3 andre ledd, og eventuelle arealavvik vurderes etter § 3-8. Kjøperens plikt til å foreta grundige undersøkelser gjelder også fullt ut for kjøpere som ikke omfattes av forbrukerdefinisjonen.
Betalingsbetingelser
Hele oppgjøret må betales samlet fra en norsk bankkonto. Overføringer fra utlandet aksepteres kun unntaksvis, og kun dersom dette er forhåndsavtalt med megler i forbindelse med aksept av budet.
Viktig informasjon om budgivning
Bud kan legges inn på nettannonsen på "gi bud" knappen eller via hjemmesiden. Ved elektronisk budgivning kan bud legges inn trygt og enkelt med bank-ID. Eiendomsmegler kan også kontaktes for tilsendelse av budkjema, og budskjema finnes også i salgsoppgaven. Alle bud skal inngi skriftlig til eiendomsmegler. Kravet til skriftlighet gjelder også ved forhøyelse av bud, motbud og selgers aksept eller avslag. Før et bud kan formidles til selger må megler innhente gyldig legitimasjon og signatur fra budgiver. Kravet til legitimasjon og signatur er oppfylt dersom budgiver bruker e-signatur som f eks. bankID. Etter det første budet er inngitt, kan budgiver inngi bud pr e-post eller pr SMS til megler. Hvis budgiver skal by på eiendommen i henhold til en kjøpsfullmakt må megler kontaktes og fullmakten oversendes før budgivning. Et bud bør inneholde eiendommens adresse (eventuelt gnr/bnr), kjøpesum, budgivers kontaktinformasjon, finansieringsplan, akseptfrist, overtakelsesdato og eventuelle forbehold som for eksempel usikker finansiering, salg av nåværende bolig ol. Normalt vil ikke et bud med forbehold bli akseptert før forbeholdet er avklart. Konferer gjerne med megler før bud avgis. Bud som har forbehold om konfidensialitet ("hemmelige bud") vil ikke bli formidlet til selger. Alle interessenter oppfordres til å inngi bud via eiendomsmegler. Megler skal legge til rette for en forsvarlig avvikling av budrunden. I forbrukerforhold (dvs. der selger er forbruker) skal megleren ikke formidle bud med kortere akseptfrist enn til kl. 12.00 første virkedag etter siste annonserte visning. Senere bud må ha en akseptfrist som er lang nok til at budet og eventuelle forbehold kan videreformidles til alle involverte parter slik at disse får tid til å områ seg, jf. forskrift om eiendomsmegling § 6-3. Akseptfrist bør derfor være på minimum 30 minutter, og budforhøyelser bør skje senest 10 minutter før fristens utløp. Dersom bud inngis med en frist som åpenbart er for kort til at megleren kan avvikle budrunden på en forsvarlig måte, vil megler fraråde budet. Eiendomsmegler skal så snart som mulig bekrefte skriftlig overfor budgivere at budene deres er mottatt, og vil uoppfordret gi sin vurdering av det enkelte bud overfor selgeren. Etter at handel har kommet i stand, eller dersom en budrunde avsluttes uten at handel er kommet i stand, kan en budgiver kreve kopi av budjournalen i anonymisert form. Kopi av budjournal gis til kjøper og selger uten ugrunnet opphold etter at handel er kommet i stand. Hvis budgiver ønsker å være anonym, kan bud fremmes via en fullmektig. For mer informasjon om budgivningsprosessen, se «Forbrukerinformasjon om budgivning», som er vedlagt salgsoppgaven, eller ta kontakt med megler.
Vederlag megler
Provisjon ved salg til prisantydning: kr 35 910,00 Eiendomsregisteret og e-signeringer kr 1 800,00 Markedspakke kr 21 000,00 Oppgjørshonorar inkl. factoring kr 9 900,00 Tilretteleggingshonorar kr 13 900,00 Visnings-/overtagelseshonorar pr. stk. kr 1 500,00 Utlegg: Selger dekker utlegg i henhold til oppdragsavtalen. Disse er estimert til ca. kr 14 530,00, og omfatter vanligvis innhenting av informasjon fra kommunen, eventuell forretningsfører, samt kopi av tinglyste dokumenter. Total kostnad ved salg til prisantydning: kr 98 540,00 Dette inkluderer både vederlag og stipulerte utlegg. Ved avbrutt oppdrag: Dersom oppdraget sies opp eller utløper uten at salget gjennomføres, har megler krav på rimelig vederlag for medgått tid og for utført arbeid. Dette omfatter blant annet vederlag knyttet til tilrettelegging, markedsføring og eventuelle avholdte visninger, samt påløpte utlegg. Timepris ved slik beregning er kr 3500.
Hvitvasking
Eiendomsmeglere er underlagt lov om hvitvasking, og er blant annet forpliktet til å gjennomføre kundetiltak av både selger og kjøper. Hvis kjøper ikke bidrar til at megler får gjennomført kundetiltak og dette fører til at avtalen ikke kan gjennomføres eller blir forsinket, er dette et mislighold fra kjøpers side. Et vesentlig mislighold kan gi selger rett til å heve avtalen og til å gjennomføre dekningssalg for kjøpers regning. Dersom selger ikke bidrar til at megler får gjennomført løpende kundetiltak underveis i oppdraget, må eiendomsmegler stanse gjennomføringen av transaksjonen. Selger vil i et slikt tilfelle ha misligholdt sine forpliktelser, og kjøper vil kunne ha et krav mot selger etter avhendingsloven. Hvis kundetiltak ikke lar seg gjennomføre, vil Emera eiendomsmegling ikke kunne bistå med handelen eller foreta oppgjør.
Personopplysningsloven
Personopplysninger blir behandlet i samsvar med personopplysningsloven. Se www.emera.no for vår personvernerklæring.
Oppdragsnummer
04260087
Status salgsoppgave
Salgsoppgave sist endret: 16. april 2026
Megler
Ansvarlig megler
Eirik Blix
Megler
Eirik Blix
Meglerforetaket
Meglerhuset Romerike AS Org.nr: 936357660
Samarbeidspartnere og tilknyttede foretak
Emera Norge AS og eiendomsmeglingsforetakene som er tilknyttet Emera har samarbeid med forskjellige foretak som tilbyr forbrukerne produkter eller tjenester i forbindelse med et salgsoppdrag. Våre samarbeidspartene er:
Søderberg & Partners AS - formidler av boligselger- og boligkjøperforsikring Overo AS - leverandør av digitale oppgjørsskjemaer og overtakelsesprotokoller som også inneholder tilbud til forbruker om tilpassede strøm-, internett- og alarmtjenester.
Hvilke produkter/tjenester kjøper og selger får i forbindelse med oppdraget, kan variere ut fra hvor i landet eiendommen ligger.
Egenerklæring boligselgerforsikring
Energiattest
Tilstandsrapport
Salgsoppgave
Boligkjøperforsikring
Når du kjøper bolig, er det viktig å sikre seg mot uforutsette utgifter. Söderberg & Partners og Emera Eiendomsmegling hjelper deg med å skape trygghet i boligkjøpet.
Fritt meglervalg
Valg av megler skal være frivillig. Megler kan ikke inngå oppdrag om eiendomsmegling dersom inngåelsen av oppdraget er satt som vilkår i avtale om annet enn eiendomsmegling, for eksempel tilbud om lån eller andre banktjenester, jf. eiendomsmeglingsloven § 6-3 (3).