












































OPPAKER
Bjertnesvegen 146
209 m2
|
3 700 000 kr
|
2 soverom
|
Enebolig
|
Idyllisk eiendom over 5 mål samlet som strekker seg ned mot Glomma med småbrukspreg. Enebolig over to plan med kjeller.
Pris og areal
Prisantydning
3 700 000 ,-
Omkostninger
112 490 ,-
totalpris
3 812 490 ,-
bruksareal
294 m2
internt bruksareal
209 m2
eksternt bruksareal
85 m2
Kort fortalt
Emera Eiendomsmegling ved Celine B. S. Holm ønsker velkommen til Bjertnesvegen 146! Her bor man i idylliske omgivelser rett ved Glomma, perfekt for deg som ønsker å bo landlig og fredelig. Den romslige eiendommen strekker seg ned mot Glomma og byr på nok av boltreplass for hele familien. Eneboligen inneholder entré, en romslig stue og spisestue, kjøkken, 2 soverom, bad og toalett. Videre er det en matbod og et vindfang i 1.etasje. Fra trappegang i 2.etasje har man utgang til balkong. I kjelleren har man vaskerom samt flere rom med potensiale. Tomten er pent opparbeidet med en stor, gruset gårdsplass, dobbeltgarasje, hagestue og fine uteplasser. Det er laget sti ned til Glomma. Eiendommen har to matrikler og tomtestørrelse på totalt 5 741,3 kvm. Velkommen!
Nøkkelinfo
Boligtype
Enebolig
Eierform
Eier
Antall soverom
2
antall bad
1
etasje
2
byggeår
1949
energimerking
E
tomteareal
5741.3 m2 (eiet)
garasje
Ja
veranda
Ja
Objektbeskrivelse
Tomten
Tomtestørrelse: 5741.3 m2 (eiet)
Gnr. 141 Bnr. 17 har areal på 2 594,8 m2 Gnr. 141 Bnr. 47 har areal på 3 146,5 m2
Byggeår
1949
Etasje
2
Arealer
BRA-i: 209m2
BRA-e: 85m2
Totalt BRA: 294m2
TBA: 78m2
Arealbeskrivelse
Enebolig
Kjeller
BRA-I: 70 m² Annet, annet 2, annet 3, annet 4, teknisk rom, bod, bod 2, bod 3
1. etasje
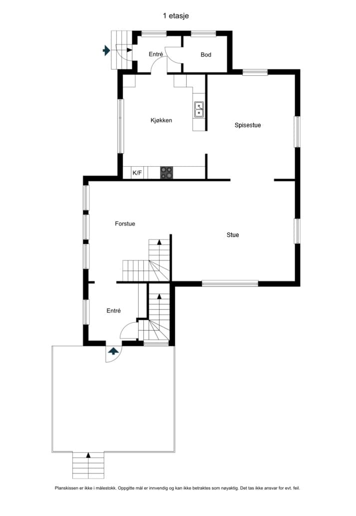
BRA-I: 81 m² Entré, stue, stue m/trapp, spisestue, kjøkken, bod, vindfang
2. etasje
BRA-I: 58 m² Gang, toalettrom, bad, soverom, soverom 2, bod
1. etasje
72 m²
2. etasje
6 m²
Uthus/hønsehus
1. etasje
BRA-E: 38 m² Lagerrom
Garasje
1. etasje
BRA-E: 47 m²
Antall soverom
2
Antall rom
3
Innhold
1.etg: Entré, stue, spisestue, kjøkken, entré 2, matbod 2.etg: Trappegang, wc, bad, 2 soverom, walk-in closet/bod Kjeller: Vaskerom, bodarealer
Standard
I forbindelse med salget er det utarbeidet en tilstandsrapport fra bygningssakkyndig. Rapporten gir en teknisk vurdering av boligen og påviser eventuelle avvik. Det er viktig å merke seg at forhold som er vurdert med TG2 og TG3 bør gjennomgås nøye, ettersom disse indikerer avvik fra normal slitasje eller høy alder, og kan medføre behov for utbedring. Bygningsdeler vurdert med TGIU er ikke blitt undersøkt av takstmann. Bygningsdeler med TG2: Utvendig > Taktekking Mer enn halvparten av forventet brukstid er passert på taktekkingen. Mer enn halvparten av forventet brukstid er passert på undertak. Utvendig > Dører Det er påvist dører som er vanskelig å åpne eller lukke. Dør til kjøkkeninngang må justeres for å ikke gå i terskel. Innvendig > Etasjeskille/gulv mot grunn Målt høydeforskjell på mellom 10 - 20 mm innenfor en lengde på 2 meter. Tilstandsgrad 2 gis med bakgrunn i standardens krav til godkjente måleavvik. Innvendig > Pipe og ildsted Det er avvik: Halvparten av forventet levetid for pipen er passert. Innvendig > Rom Under Terreng Det er påvist indikasjoner på noe fuktgjennomtrenging inn i kjellermur. Fuktsøk og visuell befaring indikerer at det er enkelte steder er tilløp til fuktgjennomtrenging i kjellermur. Tekniske installasjoner > Vannledninger Mer enn halvparten av forventet brukstid er passert på innvendige vannledninger. Tekniske installasjoner > Varmtvannstank Det er ikke påvist tilfredsstillende el-tilkobling av varmtvannstank iht. gjeldende forskrift. Tomteforhold > Fuktsikring og drenering Det mangler, eller på grunn av alder er det sannsynlig at det mangler, utvendig fuktsikring av grunnmuren ved kjeller/underetasje. Mer enn halvparten av forventet levetid på drenering er overskredet. Tomteforhold > Utvendige vann- og avløpsledninger Mer enn halvparten av forventet brukstid er passert på utvendige vannledninger. Tomteforhold > Oljetank Det er opplyst om at oljetank er sanert, men tilfredsstillende dokumentasjon mangler Spesialrom > 2. Etasje > Toalettrom > Overflater og konstruksjon Toalettrom har kun naturlig avtrekk fra rommet, NS 3600 krever mekanisk avtrekk for å kunne gi TG 0/1. Våtrom > 2. Etasje > Bad > Sluk, membran og tettesjikt Det er påvist mangelfull/feil utførelse rundt rørgjennomføringer e.l. som gir fare for fukt i konstruksjonen i våtsone. Membran kan ikke konstateres (ikke synlig og det foreligger heller ikke dokumentasjon). Mer enn halvparten av forventet brukstid er passert på membranløsningen. Mer enn halvparten av forventet brukstid er passert på slukløsningen. Sluk har begrenset mulighet for inspeksjon og rengjøring. Bygningsdeler med TG3: Utvendig > Vinduer Det er påvist at enkelte vinduer er vanskelig å åpne/lukke. Det er påvist avvik rundt innsettingsdetaljer. Det er påvist vinduer med fukt/råteskader. Karmene i vinduer er slitte og det er sprekker i trevirket. Utvendig > Balkong Mer enn halvparten av forventet brukstid er passert på tettesjikt/membran. Tekkingen på balkong/terrasse har utettheter. Det er flere sprekker og åpninger i tekkingen, særlig kritisk punkt er gjennomføringer for forankring av rekkverk. HMS: Åpninger i rekkverk er større enn dagens forskriftskrav til rekkverk i innvendige trapper. Det er ikke foretatt radonmålinger, og bygget er heller ikke utført med radonsperre. Det mangler håndløper på vegg i det innvendige trappeløpet. Rekkverket på balkong eller terrasse er for lavt i forhold til dagens krav. Rekkverkshøyder er under dagens forskriftskrav til rekkverk i innvendige trapper.
Innbo og løsøre
Salgsoppgaven inkluderer NEFs standardliste "Oversikt over løsøre og tilbehør", som legges til grunn med mindre annet er spesifisert i salgsoppgaven. Gjenstander som er nevnt i standardlisten, men som ikke finnes på eiendommen, vil heller ikke følge med i salget. Alt utstyr og installasjoner som medfølger overtas slik de er, uten garanti, med mindre det foreligger en gjeldende garanti fra produsent eller leverandør. Kjøper aksepterer at det kan forekomme hull og merker etter montering av inventar og utstyr som ikke er en del av overdragelsen. Følgende medfølger ikke handelen: - Toalett i 2.etasje er levert av kommunen og vil bli fjernet til overtakelse. Det blir satt inn nytt gulvmontert toalett. - Fuglebur i hage medfølger ikke handelen. Selger opplyser at det er fyringsforbud i den ene pipa.
Parkering
Parkering i dobbelgarasje og på egen tomt. Det er montert elbil-lader på garasjevegg.
Sammendrag av selgers egenerklæring
Kjenner du til om det er utført arbeid på bad/våtrom? - Ja, kun av ufaglært/egeninnsats/dugnad. Satt inn dusjkabinett i 2019. Kjenner du til om det er/har vært problemer med drenering, fuktinnsig, øvrig fukt eller fuktmerker i underetasje/kjeller? - Litt saltutslag på enkelte steder. Kjenner du til om det er/har vært sopp/råteskader/insekter/skadedyr på eiendommen som rotter, mus, maur eller lignende? - For 2 år siden tok vi 3 mus i kjelleren, fant inngangen og stengte der. Ingen mus siden. Kjenner du til om det er/har vært skjeggkre i boligen? - Oppdaget sølvkre i kjeller og på bad/wc. Har du ladeanlegg/ladeboks for elbil i dag? - El-billader er installert i garasje. Kjenner du til om det har vært utført arbeid på terrasse/garasje/tak/fasade? - Ja, kun av ufaglært/egeninnsats/dugnad. Bygd terrasse/utestue og drivhus i 2021. Malt hus og garasje utvendig, nye garasjeporter, nye inngangsdører i 2022. Byttet vindskier, blikk, takrenner og nedløp i 2024. Er det andre forhold av betydning ved eiendommen som kan være relevant for kjøper å vite om (f.eks. rasfare, tinglyste forhold eller private avtaler)? - Ja. Boligen er tilknyttet privat renseanlegg fra Biovac. Service utføres 1 gang/år, ca 2.700,-. Tømmingen av avløpet ligger i de kommunale avgifter.
Bygningssakkyndig
Rambøll
Byggemåte
Boligen har yttertaktekking av betongtakstein, synlig undertak av taktro (trepanel) med overliggende underlagspapp, sløyfer og lekter. Takrenner og nedløp av metall. Beslag, snøfangere og stigetrinn til pipe er av metall. Bygningens tak er konstruert i en enkel sadelform. Det er utvendig tekket med betongtakstein, kjent for sin holdbarhet og værbestandighet. Loftet er utformet som et kaldt loft og er tilgjengelig fra gang 2.et via en loftsluke. Takstolene er laget av tre, og gir strukturell styrke til taket. Undertak av trepanel med overliggende takpapp fungerer som et ekstra lag beskyttelse under betongtaksteinene. Ventilasjon håndteres gjennom en ventil i gavlen og luftekassetter i gesimsen. Dette gir nødvendig luftstrøm gjennom loftet for å forhindre kondens. Bygningens yttervegger er oppført med et trebindingsverk med standard og byggeskikk fra oppføringsåret. Dette bindingsverket består av stendere og vindsperre. Utenpå dette er veggene kledd med stående og liggende bordkledning av treverk. Bordkledningen gir et enkelt og tradisjonelt utseende samtidig som den fungerer som en beskyttende barriere mot værforholdene. Kledningen er fra byggeår, og har enkelte sprekker. Vinduer fra ulike årstall. De eldste vinduene er fra husets byggeår. Inngangsdør og kjøkken inngangangsdør av treverk med glassfelt. Sydvest vendt terrasse på omtrent 72 kvadratmeter. Eiendommen har terrasse på bakkeplan langs fasade, utført hovedsakelig med skiferdekke. På terrassen er det oppført et mindre utestuebygg av enkel konstruksjon. I tillegg er det etablert terrasse/platting i tre langs deler av bygningen samt mindre platting ved inngangsparti. Uteplassene fremstår med normal slitasje ut fra alder og bruk og er vurdert ut fra visuell befaring. Innvendig: Gulvoverflater av: Laminatgulv, furugulv, belegg, teppegulv og klikkvinyl. Veggoverflater av: Tapet og trepanel. Himlingsoverflater av: Himlingsplater og trepanel. Innvendige trapper og rekkverk av treverk. Det er malte profilerte innvendige dører. Etasjeskille av: Kjeller: Støpt gulv på grunn. 1.etg: Støpt etasjeskiller. 2. etg: Trebjelkelag.
Kommunale avgifter
24 989,- pr. 2026
De kommunale avgiftene omfatter renovasjon, feiing og tilsynsgebyr, vann, slam og eiendomsskatt. De kommunale avgiftene kan variere etter forbruk.
Eiendomsskatt
2 245,- pr. 2026
Formuesverdi
Formuesverdi primær: 846 850 pr. 2024
Formuesverdi sekundær: 3 387 399 pr. 2024
Skatteetaten beregner en boligverdi (beregnet markedsverdi for bolig) basert på SSBs statistiske opplysninger om omsatte boliger. I beregningen tas det hensyn til boligens beliggenhet, areal, byggeår og type bolig. Stortinget har vedtatt en ny modell for beregning som skal benyttes fra og med inntektesåret 2026, og den nye modellen henter informasjon om omsatte boliger fra grunnkretser i stedet for kommuner. Formuesverdien er en prosentandel av den beregnede boligverdien. Den nye utregningsmodellen kan medføre en høyere eller lavere markedsverdien enn tidligere. Det tas derfor forbehold om at formuesverdien kan bli endret og eventuelt øke ved endelig fastsettelse i skatteåret. For mer informasjon om formuesverdi, se Skatteetatens nettsider.
Beliggenhet
Bjertnesvegen 146 har en særdeles attraktiv og idyllisk beliggenhet i rolige, landlige omgivelser med vakker natur rett utenfor døren. Eiendommen ligger skjermet til, omgitt av grøntområder, noe som gir en privat og fredelig atmosfære – perfekt for deg som ønsker å trekke deg tilbake fra en travel hverdag. En av eiendommens store kvaliteter er den flotte strandlinjen, som gir direkte tilgang til vannet. Her kan du nyte lange sommerdager med bading, båtliv og rekreasjon, eller rolige morgener med utsikt over vannspeilet. Den nære kontakten med naturen skaper en helt spesiell ro og livskvalitet som er vanskelig å finne andre steder. Området byr på rike tur- og friluftsmuligheter året rundt, med skog, mark og vann i umiddelbar nærhet. Enten du foretrekker fotturer, sykkelturer eller vinteraktiviteter, ligger alt til rette for en aktiv og naturnær livsstil. Samtidig er det kort vei til skoler, barnehager og dagligvarehandel, noe som gjør hverdagen enkel og praktisk for både familier og pendlere. Det er gode forbindelser til nærliggende tettsteder og byer, slik at du enkelt kan kombinere det landlige livet med jobb og øvrige aktiviteter. Eiendommen fremstår dermed som et ideelt valg for deg som ønsker det beste fra to verdener – fredelige omgivelser, privat strandlinje og nærhet til nødvendige fasiliteter. Dette er en sjelden mulighet til å sikre seg en eiendom med unike kvaliteter, hvor beliggenhet, natur og livskvalitet står i sentrum.
Adkomst
På høyre side i annonsen finner du et kartutsnitt. Ved å klikke på kartet kan du enkelt planlegge din rute fra valgt startpunkt og helt frem til boligen. Det vil være skiltet ved fellesvisninger for enkel orientering.
Bebyggelse
Spredt boligbebyggelse.
Barnehage/Skole/Fritid
Espira Opaker barnehage (0-5 år) 3.4 km Skogbygda barnehage (0-5 år) 7.2 km Ullern barnehage (1-5 år) 8.5 km Skogbygda skole (1-7 kl.) 6.7 km Vormsund ungdomsskole (8-10 kl.) 8.7 km Runni ungdomsskole (8-10 kl.) 9.9 km Nes videregående skole 10.8 km Hvam videregående skole 17.5 km
Offentlig kommunikasjon
Herbergåsen busstopp: Linje 451, 460, 465 1.4 km Skarnes Korsmo: Totalt 23 ulike linjer 12.5 km Årnes stasjon: Linje F1, R14 11.6 km Oslo Gardermoen 36 min med bil
Energiklasse
E
Info energiklasse
Alle eiendommer som selges eller leies ut, skal ha energiattest. Unntak gjelder blant annet for frittstående bygninger med bruksareal mindre enn 50 m². Det er eier som plikter å fremlegge energiattest og er selv ansvarlig for at opplysningene er korrekte. Selger har fylt ut fullstendig energiattest, som er lagt ved salgsoppgaven. Megler påtar seg ikke ansvar for informasjonen som fremgår av energiattesten.
Oppvarming
Gulvvarme bad. Varmepumpe montert i stue og i kjeller. Vedovn x2. Det gjøres oppmerksom på at den ene pipa har fyringsforbud, da denne er tettet igjen.
Ferdigattest / brukstillatelse
Det foreligger verken ferdigattest, ekspedisjonsdokument eller midlertidig brukstillatelse for eiendommen. Dette innebærer at det ikke finnes dokumentasjon på at boligen lovlig kan tas i bruk. Eiendommen er oppført før 1998 og og i hht. plan- og bygningsloven § 21-10, utstedes ikke ferdigattest for bygg/endringer som ble omsøkt før 01.01.1998. Det vil dermed ikke være mulig å be om ferdigattest for slike tiltak. Dette betyr ikke at tiltak blir lovlige, men at saken ikke lenger kan avsluttes med ferdigattest. Kjøper påtar seg risikoen for fortsatt bruk av boligen, samt eventuelle pålegg fra offentlige myndigheter. Megler har ikke klart å skaffe godkjente byggemeldte tegninger, til tross for henvendelser til kommunen. Dokumentene ville ha avklart hvilken bruk de ulike rommene i boligen er godkjent til. Megler har derfor ikke hatt mulighet til å verifisere om dagens bruk samsvarer med den godkjente bruken. Det foreligger ferdigattest for garasje datert 09.01.1990. Det foreligger tegninger av garasje.
Vei, vann og avløp
Eiendommen ligger til offentlig vann. Eiendommen er tilknyttet offentlig vann. Eiendommen har privat septikanlegg.
Regulerings- og arealplaner
Eiendommen ligger i et område som ikke er regulert. Eiendommen følger kommuneplan for Nes kommune 2024-2036. Id: 2021021 Navn: Kommuneplan for Nes kommune 2024 - 2036 Plantype: Kommuneplanens arealdel Status: Endelig vedtatt arealplan Ikrafttredelse: 19.03.2024 Bestemmelser - https://www.arealplaner.no/3228/dokumenter/532/Planbestemmelser%20kommuneplan%20vedtatt%2019.03.24.pdf Delarealer Delareal: 2 595 m2 Arealbruk LNRF areal for nødvendige tiltak for landbruk og reindrift og gårdstilknyttet næringsvirksomhet basert på gårdens ressursgrunnlag,Nåværende Delareal: 2 595 m2 KPHensynsonenavnMaarud KPFare Brann-/eksplosjonsfare Delareal 2 595 m2 KPAngittHensyn Hensyn landskap KPHensynsonenavnHensynssone flom Id: 201205 Navn: Kommuneplan Plantype: Kommuneplanens arealdel Status: Endelig vedtatt arealplan Ikrafttredelse: 29.10.2013 Bestemmelser - https://www.arealplaner.no/3415/dokumenter/209/bestemmelser-og-retningslinjer.pdf Delarealer Delareal 2 595 m2 KPHensynsonenavnH350_1 KPFare Brann-/eksplosjonsfare
Tinglyste heftelser og rettigheter
På eiendommen er det tinglyst følgende heftelser og rettigheter som følger eiendommens matrikkel ved overskjøting til ny hjemmelshaver: 3228/141/17: 26.07.1977 - Dokumentnr: 5061 - Registrering av grunn Denne matrikkelenhet opprettet fra: Knr:3228 Gnr:141 Bnr:31 01.01.2020 - Dokumentnr: 644583 - Omnummerering ved kommuneendring Tidligere: Knr:0236 Gnr:141 Bnr:47 01.01.2024 - Dokumentnr: 254491 - Omnummerering ved kommuneendring Tidligere: Knr:3034 Gnr:141 Bnr:47 13.09.1949 - Dokumentnr: 1188 - Bestemmelse om vannledn. 23.11.1959 - Dokumentnr: 3577 - Bestemmelse om vannledn. RETTIGHETSHAVER:Skogbygda Vannverk AL 03.07.1946 - Dokumentnr: 903 - Registrering av grunn Denne matrikkelenhet opprettet fra: Knr:3228 Gnr:141 Bnr:8 01.01.2020 - Dokumentnr: 1698867 - Omnummerering ved kommuneendring Tidligere: Knr:0236 Gnr:141 Bnr:17 01.01.2024 - Dokumentnr: 253929 - Omnummerering ved kommuneendring Tidligere: Knr:3034 Gnr:141 Bnr:17 3228/141/47: 26.07.1977 - Dokumentnr: 5061 - Registrering av grunn Denne matrikkelenhet opprettet fra: Knr:3228 Gnr:141 Bnr:31 01.01.2020 - Dokumentnr: 644583 - Omnummerering ved kommuneendring Tidligere: Knr:0236 Gnr:141 Bnr:47 01.01.2024 - Dokumentnr: 254491 - Omnummerering ved kommuneendring Tidligere: Knr:3034 Gnr:141 Bnr:47 13.09.1949 - Dokumentnr: 1188 - Bestemmelse om vannledn. 23.11.1959 - Dokumentnr: 3577 - Bestemmelse om vannledn. RETTIGHETSHAVER:Skogbygda Vannverk AL 03.07.1946 - Dokumentnr: 903 - Registrering av grunn Denne matrikkelenhet opprettet fra: Knr:3228 Gnr:141 Bnr:8 01.01.2020 - Dokumentnr: 1698867 - Omnummerering ved kommuneendring Tidligere: Knr:0236 Gnr:141 Bnr:17 01.01.2024 - Dokumentnr: 253929 - Omnummerering ved kommuneendring Tidligere: Knr:3034 Gnr:141 Bnr:17
Legalpant
Kommunen har legalpant som sikkerhet for betaling av kommunale avgifter og eventuell eiendomsskatt. Legalpant er et pant som ikke vises i grunnboksutskriften, og har prioritet foran for eksempel tinglyste banklån på eiendommen.
Boligselgerforsikring
Selger har tegnet boligselgerforsikring som dekker selgers ansvar etter avhendingsloven begrenset oppad kr. 20 000 000,-. Egenerklæringsskjema er vedlagt salgsoppgaven og interessenter oppfordres til å gjennomgå denne før bud inngis.
Boligkjøperforsikring
Kjøper har anledning til å tegne boligkjøperforsikring. Vedlagt i salgsoppgaven følger informasjon om Boligkjøperforsikring fra Söderberg & Partners. Boligkjøperforsikring er en rettshjelpsforsikring som gir trygghet og profesjonell juridisk hjelp dersom det oppdages uventede feil eller mangler ved boligen de neste fem årene. Les mer om Boligkjøperforsikring i vedlagte materiell eller på https://www.soderbergpartners.no/eiendom/boligkjoper/
Diverse
Det gjøres oppmerksom på at toalett i 2.etasje blir skiftet til overtakelse da nåværende toalett tilhører kommunen. Det vil bli montert et gulvmontert toalett. Både kjøper og selger er forpliktet til å signere den standard kjøpekontrakten som er utarbeidet av Emera i forbindelse med eiendomshandler. Kjøpekontrakten kan gjennomgås hos eiendomsmegleren før budet legges inn. Ta kontakt med eiendomsmegler dersom det er spørsmål. Selger leverer eiendommen i ryddig og rengjort tilstand. Det gjøres oppmerksom på at megler ikke har innhentet særskilte opplysninger om det finnes pålegg fra brann-/feiervesen på eiendommen. Selger har observert skjeggkre i boligen. Skjeggkre er et insekt i samme familie som sølvkre. Dette insektet lever utelukkende innendørs og trives best i miljøer med høy fuktighet, men har vist seg å klare seg i tørrere omgivelser enn sølvkre. Skjeggkre er funnet i bygninger over hele landet, inkludert mange nyere og moderne boliger. For å bekjempe skjeggkre har bruk av forgiftet åte vist seg å være svært effektivt. Skadedyrfirmaer som benytter denne metoden, tilbyr sikker og grundig sanering.
Sentrale lover
Regelverk og generelle opplysninger Boligen selges med det inventar og utstyr som i henhold til gjeldende lover, forskrifter eller offentlige pålegg skal følge med eiendommen, jf. avhendingsloven § 3-4. Fastmonterte eller spesialtilpassede installasjoner og innredning som anses som varig tilknyttet boligen, følger normalt med i handelen, med mindre det foreligger en særskilt avtale mellom partene om noe annet, jf. avhendingsloven § 3-5. En standard tilbehørsliste utarbeidet av Norges Eiendomsmeglerforbund (NEF) følger salgsoppgaven, og gjelder som utgangspunkt for hva som inkluderes i salget – med mindre avvik er tydelig avtalt mellom kjøper og selger. Om informasjonsgrunnlaget Opplysninger om boligens størrelse og utforming, både innvendig og utvendig, bygger på informasjon hentet fra vedlagte tilstands- og boligsalgsrapport. Innholdet i salgsoppgaven er basert på selgers informasjon, fagkyndig vurdering, samt opplysninger fra offentlige registre som kommunen og Kartverket. Det er viktig at kjøper setter seg grundig inn i alle salgsdokumentene, herunder salgsoppgave, tilstandsrapport og selgers egenerklæring. Kjøper anses for å være kjent med forhold som er tydelig beskrevet i salgsdokumentene, slike forhold kan ikke senere gjøres gjeldende som en mangel ved boligen. Dette gjelder uavhengig av om dokumentene er lest. Det kan være forskjell mellom boligens faktiske bruk av rom og det som er godkjent av myndighetene. Alle interessenter anbefales derfor å undersøke eiendommen nøye, gjerne sammen med fagperson, før bud gis. Dersom kjøper velger å kjøpe uten å ha sett eiendommen, kan det ikke etter overtakelse reklameres på forhold som burde ha vært oppdaget ved en ordinær gjennomgang. Dersom det oppstår behov for ytterligere avklaringer, oppfordres interessenter til å kontakte eiendomsmegler eller egne rådgivere før de gir bud. Slitasje og bruk Det må også forventes at eiendommer som har vært i bruk, vil kunne ha tegn til slitasje og eventuelle skader. Slik normal bruksslitasje og behov for vedlikehold må kjøper påregne, og dette vil normalt ikke gi grunnlag for reklamasjon eller prisavslag. Avtalerettslig Partenes rettigheter og plikter reguleres av avtalen mellom partene, og all tilgjengelig dokumentasjon som forelå for kjøper før handelen ble inngått. I tillegg gjelder avhendingsloven. Det gjelder ulike avtalevilkår avhengig av om kjøper er forbrukerkjøper eller ikke, og dette er nærmere forklart nedenfor. Budgivning og selgers vurdering På grunn av ulike ansvarsforhold kan selger velge å prioritere bud fra ikke-forbrukere, selv om budet er lavere enn et forbrukerbud. Når kjøper ikke er forbruker, kan selges ansvar begrenses ettersom boligen selges «som den er», noe som kan være av verdi for selger. Det understrekes at selger står fritt til å velge hvilket bud som aksepteres, og er ikke forpliktet til å velge det høyeste. Alle budgivere må ved inngivelse av bud opplyse om de opptrer som forbruker eller som næringsdrivende/person som handler hovedsakelig som ledd i næringsvirksomhet. Det vil opplyses hvis konkurrerende bud kommer fra en ikke-forbruker. Forbrukerkjøp – definisjon og vilkår: Et forbrukerkjøp foreligger når en fysisk person kjøper eiendom uten at formålet hovedsakelig er knyttet til næringsvirksomhet. En eiendom anses å ha en mangel dersom den ikke oppfyller kravene som følger av avtalen, eller ved brudd på bestemmelser i avhendingsloven §§ 3-2 til 3-8. Det samme gjelder hvis eiendommen ikke samsvarer med det som med rimelighet kunne forventes ut fra blant annet alder, type og synlig tilstand – eller hvis det er tilbakeholdt, eller gitt feilaktige opplysninger, og dette har påvirket avtalen. Dersom det er avvik mellom oppgitt og faktisk innvendig areal på minst 2 % og samtidig minst 1 kvadratmeter, kan dette utløse rett til kompensasjon etter § 3-3 i avhendingsloven. Ved beregning av krav om prisavslag eller erstatning må kjøper selv dekke kostnader med inntil kr 10 000 (som en egenandel). Ikke-forbruker – definisjon og vilkår: Dersom kjøper er en juridisk enhet, eller en fysisk person som handler i næringssammenheng, regnes kjøpet ikke som et forbrukerkjøp. Ved slike kjøp selges eiendommen «som den er», og selgers ansvar er begrenset til det som følger direkte av avtalen, jf. avhendingsloven § 3-9. I disse tilfellene fravikes § 3-3 andre ledd, og eventuelle arealavvik vurderes etter § 3-8. Kjøperens plikt til å foreta grundige undersøkelser gjelder også fullt ut for kjøpere som ikke omfattes av forbrukerdefinisjonen.
Betalingsbetingelser
Hele oppgjøret må betales samlet fra en norsk bankkonto. Overføringer fra utlandet aksepteres kun unntaksvis, og kun dersom dette er forhåndsavtalt med megler i forbindelse med aksept av budet.
Viktig informasjon om budgivning
Bud kan legges inn på nettannonsen på "gi bud" knappen eller via hjemmesiden. Ved elektronisk budgivning kan bud legges inn trygt og enkelt med bank-ID. Eiendomsmegler kan også kontaktes for tilsendelse av budkjema, og budskjema finnes også i salgsoppgaven. Alle bud skal inngi skriftlig til eiendomsmegler. Kravet til skriftlighet gjelder også ved forhøyelse av bud, motbud og selgers aksept eller avslag. Før et bud kan formidles til selger må megler innhente gyldig legitimasjon og signatur fra budgiver. Kravet til legitimasjon og signatur er oppfylt dersom budgiver bruker e-signatur som f eks. bankID. Etter det første budet er inngitt, kan budgiver inngi bud pr e-post eller pr SMS til megler. Hvis budgiver skal by på eiendommen i henhold til en kjøpsfullmakt må megler kontaktes og fullmakten oversendes før budgivning. Et bud bør inneholde eiendommens adresse (eventuelt gnr/bnr), kjøpesum, budgivers kontaktinformasjon, finansieringsplan, akseptfrist, overtakelsesdato og eventuelle forbehold som for eksempel usikker finansiering, salg av nåværende bolig ol. Normalt vil ikke et bud med forbehold bli akseptert før forbeholdet er avklart. Konferer gjerne med megler før bud avgis. Bud som har forbehold om konfidensialitet ("hemmelige bud") vil ikke bli formidlet til selger. Alle interessenter oppfordres til å inngi bud via eiendomsmegler. Megler skal legge til rette for en forsvarlig avvikling av budrunden. I forbrukerforhold (dvs. der selger er forbruker) skal megleren ikke formidle bud med kortere akseptfrist enn til kl. 12.00 første virkedag etter siste annonserte visning. Senere bud må ha en akseptfrist som er lang nok til at budet og eventuelle forbehold kan videreformidles til alle involverte parter slik at disse får tid til å områ seg, jf. forskrift om eiendomsmegling § 6-3. Akseptfrist bør derfor være på minimum 30 minutter, og budforhøyelser bør skje senest 10 minutter før fristens utløp. Dersom bud inngis med en frist som åpenbart er for kort til at megleren kan avvikle budrunden på en forsvarlig måte, vil megler fraråde budet. Eiendomsmegler skal så snart som mulig bekrefte skriftlig overfor budgivere at budene deres er mottatt, og vil uoppfordret gi sin vurdering av det enkelte bud overfor selgeren. Etter at handel har kommet i stand, eller dersom en budrunde avsluttes uten at handel er kommet i stand, kan en budgiver kreve kopi av budjournalen i anonymisert form. Kopi av budjournal gis til kjøper og selger uten ugrunnet opphold etter at handel er kommet i stand. Hvis budgiver ønsker å være anonym, kan bud fremmes via en fullmektig. For mer informasjon om budgivningsprosessen, se «Forbrukerinformasjon om budgivning», som er vedlagt salgsoppgaven, eller ta kontakt med megler.
Vederlag megler
Provisjon ved salg til prisantydning: kr 55 500,00 Eiendomsregisteret og e-signeringer kr 1 800,00 Grunnpakke opplysninger enebolig kr 5 900,00 Markedspakke inkl. stor annonse på FINN.no, Emera digital mm kr 25 900,00 Oppgjørshonorar inkl. factoring kr 9 900,00 Tilretteleggingshonorar kr 16 900,00 Visnings-/overtagelseshonorar pr. stk. kr 3 000,00 Utlegg: Selger dekker utlegg i henhold til oppdragsavtalen. Disse er estimert til ca. kr 545,00, og omfatter vanligvis innhenting av informasjon fra kommunen, eventuell forretningsfører, samt kopi av tinglyste dokumenter. Total kostnad ved salg til prisantydning: kr 119 445,00 Dette inkluderer både vederlag og stipulerte utlegg. Ved avbrutt oppdrag: Dersom oppdraget sies opp eller utløper uten at salget gjennomføres, har megler krav på rimelig vederlag for medgått tid og for utført arbeid. Dette omfatter blant annet vederlag knyttet til tilrettelegging, markedsføring og eventuelle avholdte visninger, samt påløpte utlegg. Timepris ved slik beregning er kr 3500.
Hvitvasking
Eiendomsmeglere er underlagt lov om hvitvasking, og er blant annet forpliktet til å gjennomføre kundetiltak av både selger og kjøper. Hvis kjøper ikke bidrar til at megler får gjennomført kundetiltak og dette fører til at avtalen ikke kan gjennomføres eller blir forsinket, er dette et mislighold fra kjøpers side. Et vesentlig mislighold kan gi selger rett til å heve avtalen og til å gjennomføre dekningssalg for kjøpers regning. Dersom selger ikke bidrar til at megler får gjennomført løpende kundetiltak underveis i oppdraget, må eiendomsmegler stanse gjennomføringen av transaksjonen. Selger vil i et slikt tilfelle ha misligholdt sine forpliktelser, og kjøper vil kunne ha et krav mot selger etter avhendingsloven. Hvis kundetiltak ikke lar seg gjennomføre, vil Emera eiendomsmegling ikke kunne bistå med handelen eller foreta oppgjør.
Personopplysningsloven
Personopplysninger blir behandlet i samsvar med personopplysningsloven. Se www.emera.no for vår personvernerklæring.
Oppdragsnummer
04260089
Status salgsoppgave
Salgsoppgave sist endret: 28. april 2026
Megler
Ansvarlig megler
Celine Beatrice S. Holm
Megler
Celine Beatrice S. Holm
Meglerforetaket
Meglerhuset Romerike AS Org.nr: 936357660
Samarbeidspartnere og tilknyttede foretak
Emera Norge AS og eiendomsmeglingsforetakene som er tilknyttet Emera har samarbeid med forskjellige foretak som tilbyr forbrukerne produkter eller tjenester i forbindelse med et salgsoppdrag. Våre samarbeidspartene er:
Søderberg & Partners AS - formidler av boligselger- og boligkjøperforsikring Overo AS - leverandør av digitale oppgjørsskjemaer og overtakelsesprotokoller som også inneholder tilbud til forbruker om tilpassede strøm-, internett- og alarmtjenester.
Hvilke produkter/tjenester kjøper og selger får i forbindelse med oppdraget, kan variere ut fra hvor i landet eiendommen ligger.
Salgsoppgave
Egenerklæring boligselgerforsikring
Energiattest
Tilstandsrapport
Boligkjøperforsikring
Når du kjøper bolig, er det viktig å sikre seg mot uforutsette utgifter. Söderberg & Partners og Emera Eiendomsmegling hjelper deg med å skape trygghet i boligkjøpet.
Fritt meglervalg
Valg av megler skal være frivillig. Megler kan ikke inngå oppdrag om eiendomsmegling dersom inngåelsen av oppdraget er satt som vilkår i avtale om annet enn eiendomsmegling, for eksempel tilbud om lån eller andre banktjenester, jf. eiendomsmeglingsloven § 6-3 (3).